제 정 2006. 04. 27. 개 정 2007. 03. 23. 개 정 2009. 09. 01. 개 정 2010. 02. 19. 개 정 2011. 12. 27. 개 정 2012. 06. 05. 개 정 2014. 04. 29. 개 정 2015. 02. 28. 개 정 2016. 09. 13. 개 정 2019. 11. 19. 개 정 2020. 11. 05. 재 정 2024. 04. 01.
제1장 총칙 제1조(설립근거 및 명칭) 대한장애인배구협회는 국민체육진흥법 제34조에 의해 설립된 대한장애인체육회(이하 “장애인체육회” 라 한다)에 가맹·승인된 경기단체로 대한장애인배구협회(이하 “장애인배구협회” 라 한다)라 하며, 영문으로는 Korea Volleyball Association for the Disabled(약칭 KOVAD)로 한다.제 정 2020. 09. 28.
제1조(목적) 이 지침은 대한장애인배구협회(이하 “협회”라 한다) 규약 제18조 제3항 및 제0항, 제33조 제3항에 따른 원격통신수단에 의한 대의원총회와 이사회(이하 “원격통신회의”)의 구성과 운영에 관하여 필요한 사항을 규정함을 목적으로 한다. 제2조(운영 조건) 협회는 내우, 외환, 중대한 재난이나 재해 등으로 인해 출석하여 결의하는 것이 어려운 특별한 사정이 있는 경우, 대의원이나 이사의 전부 또는 일부가 직접 회의에 출석하지 아니하고 총회 참석자의 음성을 동시에 송수신하는 원격통신수단에 의하여 결의할 수 있다. 제3조(운영 방법) ① 원격통신회의에 관한 운영방법은 원칙적으로 직접 참석하는 대의원총회 및 이사회의 경우와 동일하다. ② 협회는 원격통신회의를 운영함에 있어 참석자의 장애에 따라 필요한 지원을 하여야 한다. 제4조(회의의 기록) ① 원격통신회의는 기본적으로 작성하여야 하는 회의록 이외에도 전체 음성 또는 영상이 기록되어야 한다. ② 제1항의 기록된 음성 또는 기록은 영구히 보존하여야 한다. 제5조(출석 확인) 원격통신회의의 출석은 회의 중에 음성이나 영상으로 확인할 수 있어야 하며 전체 참석자의 출석확인 서류는 협회 사무국에서 작성한다. 제6조(의결 방법) ① 원격통신회의의 의결은 회의 중에 음성 또는 영상으로 참석자의 의견을 표현하여야 하며 참석자 전원이 확인할 수 있어야 한다. ② 협회 사무국은 의결 대상자에게 회의에 앞서 안건을 보낼 때 의결서를 포함하여야 하며 의결 사항은 문서로 작성하여 협회 사무국에 회신하여야 한다. 제7조(실비보상) 원격통신에 의한 회의의 경우에도 협회는 참석한 비상근 임원에게는 예산의 범위 안에서 업무수행에 소요되는 실비, 기타 필요한 수당을 지급할 수 있다. 부 칙 (2020. 9. 28.) 제1조(시행일) 이 지침은 회장의 승인을 받은 날부터 시행한다. 원격통신수단에 의한 대의원총회 및 이사회 운영 지침 파일 열기2016. 9. 27. 제정 2020. 11. 5. 개정 2024. 10. 20. 개정
제1장 총 칙 제1조(목적) 이 규정은 대한장애인체육회(이하 “장애인체육회”라 한다) 가맹단체운영규정 제12조 및 대한장애인배구협회 (이하 “협회”라 한다) 정관 제23조에 의거 협회 회장 선출을 하기 위한 선거(이하 “회장선거”라 한다)에 필요한 사항을 규정함을 목적으로 한다.<개정 ’20.11.05.> 제2조(적용범위) 회장선거에 관한 사항은 이 규정이 정한 바에 의하며, 필요에 따라 별도세칙을 정하여 운영할 수 있다.<개정 ’20.11.05.> 제3조(선거사무관장) 회장선거 사무는 사무국에서 관장한다. 제2장 선거관리위원회 제4조(선거관리위원회의 설치 및 구성) ① 협회는 공정하고 투명한 회장선거 사무를 수행하기 위하여 회장 임기만료일 전 60일까지 선거관리위원회(이하 “위원회”라 한다)를 구성하여 운영하여야 한다.<개정 ’20.11.05. 개정‘24.10.20.’> ② 위원회는 5명 이상 7명 이내의 인사로 구성하되 협회 임원이 과반수를 넘을 수 없다. 임원 이외의 인원은 협회 직원이 아니면서 선거인을 추천하는 어떠한 단체에도 소속되지 않는 사람으로 한정한다.<개정 ’20.11.05.> ③ 위원회의 위원은 당해분야에 전문적인 지식을 갖고 있는 인사 중에서 회장이 추천한 자로 이사회의 동의를 받아 위촉하고 위원장은 위원 중에서 호선한다. 단, 회장이 후보자로 등록하고자 하는 경우에는 가맹단체 운영규정 제17조 제2항 및 협회 정관 29조2항에 따라 직무를 대행하는 자가 위원을 추천하고 이사회의 동의를 받아 위촉한다.<개정 ‘24.10.20.’> ④ 위원회에 간사 1인을 두며, 간사는 협회 사무국장으로 한다.<개정 ’20.11.05.> 제5조(선거업무) 위원회는 다음 각호의 업무를 관장한다.<개정 ’20.11.05.> 1. 선거공고 2. 제8조에 따른 선거인명부 작성 및 확정<개정 ’20.11.05.> 3. 입후보 등록 고지 4. 선거권 및 피선거권자의 결격사유에 관한 검토 및 조치 5. 선거운동의 제한, 정견발표에 관한 관리 6. 투표용지에 관한 업무 7. 선거(투ㆍ개표)에 관한 업무 8. 선거의 연기 및 재선거에 관한 업무 9. 제9조에 따른 이의신청에 대한 결정 10. 공명선거에 관한 업무 11. 당선자 보고 및 선포 12. 선거지침에 관한 업무 13. 불법, 부정 선거운동 감시 및 조사, 단속에 관한 업무 14. 기타 가맹단체운영규정, 협회 정관 또는 이 규정이 정하지 않은 사항에 대한 결정<개정 ’20.11.05.> 제3장 회장선출기구 및 선거인<개정 ’20.11.05.> 제5조의2(회장선출기구) 가맹단체운영규정 제12조 제2항 및 협회 정관 제23조에 따라 이 규정 제6조에서 정한 선거인단이 회장선출기구가 된다.<개정 ’20.11.05.> 제6조(선거인) ① 가맹단체운영규정 제12조 제2항 및 협회 정관 제23조에 따른 회장선출기구의 선거인은 다음 각호에 의하여 구성된다.<개정 ’20.11.05.> 1. 시ㆍ도지부의 장<개정 ’20.11.05.> 2. 전국규모연맹체의 장 3. 선수대표 4명(선수위원장은 당연직, 선수위원회에서 선출된 위원 3명)<개정 ’20.11.05.> 4. 지도자 대표 2명(지도자협의회장은 당연직, 지도자협의회에서 선출된 위원1명)<개정 ’20.11.05.> 5. 심판 대표 2명(심판위원장은 당연직, 심판위원회에서 선출된 위원 1명)<개정 ’20.11.05.> ② 선거인은 다음 각 호의 요건을 갖추어야 한다. 1. 만 18세 이상(정기 등록일 기준)<개정 ’20.11.05.> 2. 선수대표는 협회에 2년 연속(당해연도 포함) 선수 등록을 필한 자<개정 ’20.11.05.> 3. 지도자대표는 협회에 2년 연속(당해연도 포함) 등록된 지도자로 다음 중 1개 이상의 조건에 해당하는 자<개정 ’20.11.05.> 가. 최근 3년 내 협회가 주최ㆍ주관하거나 승인한 전국규모 대회에 총 4회 이상 참가한 자<개정 ’20.11.05.> 나. 10년 내 국가대표지도자(코치 이상)로 선임된 경력이 있는 자<개정 ’20.11.05.> 다. 10년 내 전임지도자 또는 실업팀 지도자(감독, 코치)로 선임된 경력이 있는 자<개정 ’20.11.05.> 4. 심판대표는 협회에 2년 연속(당해연도 포함) 등록된 심판으로 최근 3년 내 협회가<개정 ’20.11.05.> 주최ㆍ주관하거나 승인한 전국규모 대회에 연 1회 이상 총 4회 이상 심판으로 활동한 자<개정 ’20.11.05.> <개정 ‘24.10.20.’> ③ 제1항 제3호의 선수대표에는 비장애인 선수는 포함되지 아니하며, 또한 다종목에 등록한 선수와 지도자를 겸하고 있는 선수는 1인 1표로 제한한다. ④ 지도자와 심판 모두 등록된 자는 1인 1표제로 제한한다. ⑤ 제1항 각호에 의한 선거인은 가맹단체운영규정 제12조 제5항 및 협회 정관 제23조에 의하여 협회 회장선거 전에 새로이 선출된 자로 한다. 다만 제1항 1호의 선거인은 시ㆍ도장애인체육회의 승인을 받은 자로 하며, 시ㆍ도장애인체육회에 가맹하지 아니한 시ㆍ도지부는 협회의 승인을 받은 자로 하되, 협회 회장 임기만료일을 경과하여 임기가 남은 자는 그러하지 아니하다.<개정 ’20.11.05.> 제7조(선거인 추천요청)<개정 ’20.11.05.> ① 협회는 회장 임기만료일 전 80일까지 제6조 제1항에서 정한 시ㆍ도지부, 전국규모연맹체, 선수위원회, 지도자협의회 및 심판위원회에 선거인 수를 통보하고, 해당단체 및 위원회는 회장 임기만료일 전 60일까지 선거관리위원회에 선거인을 추천하도록 한다.<개정 ’20.11.05.> 제8조(선거인명부 작성) ① 선거관리위원회는 제7조에 의한 단체 등으로부터 제출받은 선거인 추천 명단을 토대로 중복여부 및 자격 유무를 검토하여 선거인 명부(별지 제2호 서식)를 작성하여야 한다.<개정 ’20.11.05.> ② 선거인 자격이 없는 자가 선거인으로 추천된 경우에는 재추천 요청없이 배제하여야 한다. 제9조(선거인명부 열람 및 이의신청과 결정)<개정 ’20.11.05.> ① 선거관리위원회는 제8조에 따라 작성된 선거인명부를 협회 홈페이지에 공고하여야 하며, 선거권자 및 피선거권자(후보자)가 선거인명부를 열람할 수 있는 기회를 보장하여야 한다.<개정 ’20.11.05.> ② 선거권자 및 피선거권자(후보자)는 누구든지 선거인명부에 누락 또는 오기가 있거나 자격이 없는 선거인이 등재되어 있다고 인정되면 열람 기간 내에 구술 또는 서면으로 협회 선거관리위원회에 이의를 신청할 수 있다.<개정 ’20.11.05.> ③ 제2항의 이의신청이 있는 경우에는 이의신청을 받은 날의 다음날까지 이를 심사·결정하되, 그 신청이 이유가 있다고 결정할 때에는 즉시 선서인명부를 정정하고 신청인·관계인에게 통지하여야 하며, 이유 없다고 결정한 때에는 그 사유를 신청인에게 통지하여야 한다. ④ 선거인명부의 열람 기간은 3일로 한다. ⑤ 선거인명부는 열람 기간 종료일 다음날 확정한다. ⑥ <삭제 `20. 11. 05.> 제4장 후보자 자격 및 등록 제10조(선거일 등의 공고) 선거관리위원회는 선거인명부작성 개시일 전일에 선거일을 별지 제1호 서식에 의거 협회 홈페이지에 공고하여야 한다.<개정 ’20.11.05.> 제11조(회장 후보자 자격요건) ① 가맹단체운영규정 제14조 제1항과 제2항 및 협회 정관 제25조에 따른 결격사유 해당자는 후보자가 될 수 없다.<개정 ’20.11.05.> ② 장애인체육회(가맹단체 포함), 시ㆍ도장애인체육회, 가맹단체 시ㆍ도지부(가맹단체 시‧군‧구지부 포함) 및 시ㆍ군ㆍ구장애인체육회(읍ㆍ면ㆍ동장애인체육회 포함)의 회장과 임원이 후보자로 등록하고자 하는 경우 회장의 임기 만료일 전 70일까지 후보자 등록의사 표명서 제출과 동시에 직무는 정지된다. 다만, 보궐선거에 후보자로 등록하는 경우 그 실시사유가 확정된 날부터 10일 이내에 제출하여야 한다.<개정 ‘24.10.20.’> ③ <삭제><‘24.10.20.’> 제12조(기탁금) 후보자등록을 신청하는 자는 등록신청 시에 후보자 1명마다 2천만원의 기탁금을 선거관리위원회에 납부하여야 한다. 제13조(회장 후보자 등록 및 공고) ① 후보자가 되려는 자는 후보자 등록기간에 선거관리위원회에 서면으로 등록하여야 한다. 이 경우 후보자등록신청서의 접수는 공휴일에도 불구하고 매일 오전 9시부터 오후 6시까지로 한다. ② 후보자등록을 신청하는 자는 다음 각호의 서류 등을 제출하여야 한다. 1. 별지 제3호 서식의 후보자 등록신청서<개정 ’20.11.05.> 2. 가족관계증명서 3. <삭제 `20.11.05.> 4. 피성년후견인, 피한정후견인 등기사항 부존재 증명서 5. 스포츠윤리센터에서 발급한 징계사실유무확인서<개정 ’20.11.05. 개정 ‘24.10.20.’> 6. 기타 후보자 결격사유에 해당하지 않음을 확인할 수 있는 서류(별지 제5호 서식)<개정 ’20.11.05.> 7. 개인정보수집·이용동의서(별지 제6호 서식)<개정 ’20.11.05.> 8. 후보자 등록의사표명서(제11조 제2항에 해당하는 후보자에 한함)<개정 ’20.11.05. ‘24.10.20.’> ③ 선거관리위원회는 후보자등록부(별지 제7호 서식)에 등재한 후 후보자에게 접수증(별지 제8호 서식)을 발급한다. 다만, 제2항 제1호부터 제8호까지의 규정에 따른 서류 등을 갖추지 아니한 등록신청은 수리하지 아니한다.<개정 ’20.11.05.> ④ 선거관리위원회는 후보자등록마감 후에 후보자의 범죄경력을 조회하는 등 후보 등록 자격에 관한 조사를 할 수 있다. ⑤ 선거관리위원회는 문화체육관광부가 정한 문화체육관광부 산하 체육단체의 정관 및 규약이 정하는 임원 결격사유를 취합하여 회장 임기만료일 전 60일까지 게시하여야 한다. ⑥ 회장후보자 등록 마감일의 다음 날에 회장후보자 명단을 별지 제9호 서식에 의해 협회 홈페이지에 공고한다.<개정 ’20.11.05.> 제14조(등록무효) ① 선거관리위원회는 후보자등록 후에 다음 각호의 어느 하나에 해당하는 사유가 있을 때에는 그 후보자의 등록은 무효로 한다. 1. 후보자가 제11조에 따른 후보자의 자격이 없는 것을 발견된 때 2. 제13조 제2항 1호부터 8호까지의 규정에 따른 서류 등을 제출하지 아니하거나 위변조가 발견된 때<개정 ’20.11.05.> ② 선거관리위원회는 후보자등록을 무효로 한때에는 지체없이 해당 후보자에게 등록무효의 사유를 명시하여 그 사실을 알려야 한다. 제15조(후보자 사퇴신고) ① 후보자가 사퇴하려는 경우에는 자신이 직접 선거관리위원회에 가서 서면으로 신고하여야 한다. ② 후보자 사퇴의 신고는 별지 제10호 서식에 따른다.<개정 ’20.11.05.> 제16조(회장후보자 정견발표) 회장후보자의 정견발표는 후보자와 선거관리위원회가 협의하여 정한다. 제5장 선거 및 선거운동 제17조(선거일) ① 선거관리위원회는 현 회장의 임기만료일 전 45일까지 선거가 실시될 수 있도록 선거일을 정하여야 한다. ② 재선거 또는 보궐선거는 그 실시 사유가 확정된 날로부터 60일 이내에 실시하여야 한다. 제18조(선거운동의 정의) 선거운동이란 당선되게 하거나 되지 못하게 하기 위한 행위를 말한다. 다만, 다음 각호의 어느 하나에 해당하는 행위는 선거운동으로 보지 아니한다. 1. 선거에 관한 단순한 의견의 개진ㆍ의사의 표시 2. 입후보와 선거운동을 위한 준비행위 3. 통상적인 업무행위 제19조(선거운동 주체 및 방법)<개정 ’20.11.05.> 후보자는 전화, 명함, 정보통신망을 이용한 선거운동, 선거일에 후보자 소개 및 소견발표의 방법으로 선거운동을 하는 경우를 제외하고는 누구든지 어떠한 방법으로도 선거운동을 할 수 없다. 제20조(선거운동 기간) 선거운동은 후보자등록 마감일의 다음 날부터 선거일 전일까지로 한정한다. 단, 제16조에 따른 후보자의 선거당일 정견발표는 예외로 한다.<개정 ’20.11.05.> 제21조(금지행위) 다음 각호의 해당 행위를 금지한다. 1. 특정인의 인신공격 등 중상비방을 하거나 서명날인 운동을 주동, 선동 또는 참여하는 행위 2. 선거에 관하여 금품수수 또는 향응을 제공하는 행위 3. 입후보자가 회장선거관리위원회의 승인 없이 별도의 선거사무소를 설치하거나 선거 종사자를 운영하는 행위 4. 선거관리위원 및 협회 직원이 특정인 지지 옹호, 격려하는 행위<개정 ’20.11.05.> 5. 허위의 이력을 기재하여 배포하는 행위 6. 기타 선거관리위원회에서 의결한 사항 제22조(벌칙) <삭제 `20.11.05.> 제6장 투표 및 개표 제23조(선거방법 등) ① 선거는 무기명 비밀투표로 한다. ② 투표는 선거인이 직접 투표용지에 기표하는 방법으로 한다. ③ 투표는 선거인 1명마다 1표로 하며, 대리인 투표는 허용하지 않는다. 제24조(투표소 설치)<개정 ’20.11.05.> ① 선거관리위원회는 투표소의 설치수, 설치장소 등을 협의하여 선거일 전일까지 투표소를 설치하여야 한다. ② 선거관리위원회는 공정하고 중립적인 사람 중에서 투표소에 투표에 관한 사무를 관리할 투표관리관 1명과 투표사무를 보조할 투표사무원을 위촉하여야 한다. 제25조(투표용지) ① 투표용지(별지 제11호 서식)에는 후보자의 기호와 성명을 표시하되, 기호는 후보자의 게재순위에 따라 "1, 2, 3" 등으로 표시하고, 성명은 한글로 기재하여야 한다. 다만, 한글로 표시된 성명이 같은 후보자가 있는 경우에는 괄호 속에 한자를 함께 기재한다.<개정 ’20.11.05.> ② <삭제 `20.11.05.> ③ 선거관리위원회는 후보자등록 마감 후에 후보자 또는 그 대리인의 참여하에 투표용지에 게재할 후보자의 순위를 추첨의 방법으로 정하여야 한다. 다만, 추첨 개시 시각에 후보자 또는 그 대리인이 참여하지 아니하는 경우에는 선거관리위원장이 지정하는 자가 그 후보자를 대리하여 추첨할 수 있다. 제26조(개표 및 감표위원 선정)<개정 ’20.11.05.> 선거인단 중 3인의 위원을 개표 및 감표위원으로 선정한다. 제27조(투표) ① 선거인은 감표위원의 참여하에 본임임을 확인받은 후 선거인 명부에 서명하고 투표용지 1매를 받아야 한다. ② 선거인은 투표용지를 받은 후 기표소에서 기표를 한 후 그 자리에서 보이지 않게 접은 후 투표함에 넣어야 한다. 제28조(투표시간) 투표시간은 선거관리위원회가 정한다. 제29조(투표권 제한) 회장후보 출마자는 투표권을 보유할 수 없다. 제30조(개표참관인) 각 후보자는 개표참관인 1인을 선정하여 선거일 전일까지 별지 제12호 서식에 의하여 선거관리위원회에 등록 하여야 하며, 개표참관인은 개표상황을 참관하여야 한다.<개정 ’20.11.05.> 제31조(무효투표) 다음 각호의 1에 해당하는 투표지는 무효로 한다. 1. 정규의 투표용지를 사용하지 아니한 것 2. 어느 후보자의 난에도 기표를 하지 아니한 것 3. 2인 이상의 후보자의 난에 표를 한 것 4. 어느 후보자의 난에 표를 한 것인지 식별할 수 없는 것 5. 기표용구를 사용하지 아니하고 문자 또는 다른 사항을 기입한 것 6. 선거인 자신이 투표용지를 공개한 것 제32조(개표결과 보고서 작성) 감표위원은 개표가 끝난 즉시 개표결과 보고서(별지 제13호 서식)를 작성 날인 후 위원장에게 제출하여야 한다. 제33조(기탁금의 처리) 기탁금은 득표수에 상관없이 협회 발전기금으로 귀속된다.<개정 ‘24.10.20.’> 제7장 당선 결정 제34조(회장 당선인 결정) ① 유효투표 중 다수의 득표를 한 자를 당선인으로 결정하고, 다수 득표수가 동수일 경우에는 연장자를 당선인으로 결정한다. ② 후보자가 1인일 때에는 투표를 실시하지 아니하고 선거일에 그 후보자를 당선인으로 결정한다.<개정 ’20.11.05.> 제35조(회장 당선인 공고) 선거관리위원회는 회장 당선인이 결정되면 선거일 다음날에 즉시 별지 제14호 서식에 의거 회장 당선인을 협회 홈페이지에 공고하여야 한다.<개정 ’20.11.05.> 제8장 보 칙 제36조(재선거) 다음 각호 중 어느 하나에 해당하는 경우에는 재선거를 실시한다. 1. 후보자가 없는 경우 2. 당선인이 없는 경우 3. 선거관리위원회의 선거무효결정이 있는 경우 제37조(보궐선거) ① 회장이 궐위된 경우에는 60일 이내에 보궐선거를 실시하며, 그 잔여임기는 장애인체육회 가맹단체운영규정 제12조 제10항 및 협회 정관 제23조에 따라 정한다. 개정‘24.10.20.’‘> ② 보궐선거는 임기만료에 의한 선거와 같은 방법으로 실시한다.<개정 ’20.11.05.> 제38조(제한) 제6조에서 정한 선거인(시ㆍ도지부의 장, 전국규모연맹체의 장, 선수ㆍ지도자ㆍ심판 대표)를 협회 회장 임기만료 60일 전까지 새롭게 선출하지 않을 경우 협회 회장선거 투표권을 제한한다. 다만, 협회 회장 임기만료일을 경과하여 임기가 남은 선거인은 그러하지 아니하다.<개정 ’20.11.05.> 제39조(규정의 해석) 이 규정은 장애인체육회가 승인한 날로부터 유효하며, 수정이 있을 때마다 장애인체육회의 승인을 받아야 한다. 보고된 규정에 대하여 개정이 필요한 때에는 장애인체육회의 결정한 바에 따라 시행하여야 한다. 부 칙(2016. 9.27.) 제1조(시행일) 이 규정은 이사회 의결을 거쳐 장애인체육회의 승인을 받아 시행한다. 부 칙(2020. 11. 05.) 제1조(시행일) 이 규정은 이사회 의결을 거쳐 장애인체육회의 승인을 받아 시행한다. 부 칙(2024. 10. 20.) 제1조(시행일) 이 규정은 이사회 의결을 거쳐 장애인체육회의 승인을 받아 시행한다. 회장선거관리규정 파일 열기제 정 2015. 2. 7. 개 정 2018. 1.26. 전면개정 2019.10.08. 개 정 2022. 04. 25.
제1장 총 칙 제1조(목적) 이 규정은 대한장애인배구협회(이하 “협회”라 한다) 정관 54조에 의거 사무국 조직 및 운영의 원활한 수행을 위하여 필요한 사항을 정함을 그 목적으로 한다.이 규정은 대한장애인배구협회(이하 “협회”라 한다) 정관 54조에 의거 사무국 조직 및 운영의 원활한 수행을 위하여 필요한 사항을 정함을 그 목적으로 한다. 제2조(적용) 본 협회 사무국의 운영에 관하여 법령·정관에서 따로 정한 경우를 제외하고는 이 규정에 의한다. 제3조(정의) 이 규정에서 사용되는 용어의 정의는 다음과 같다. 1. “임용”이라 함은 직원의 채용, 승진, 승급, 전직, 전보, 휴직, 정직, 복직, 면직, 해임 및 파면을 말한다. 2. “직위”라 함은 1인의 직원에게 부여할 수 있는 직무와 책임을, “직급”이라 함은 직원의 직위에 상응하는 등급을 말한다. 3. “보수”라 함은 기본급, 기말수당, 정근수당과 기타 예산의 범위 내에서 지급되는 제 수당을 합산한 금액을 말한다. 4. “기본급”이라 함은 직원의 직종, 직위별로 지급되는 월 기본급여를 말한다. 5. “문서”라 함은 공무상 작성 또는 시행된 서류와 접수한 모든 서류를 말한다. 6. 기타 이 규정에서 사용되는 용어의 정의는 정부 또는 유사 경기단체 협회의 사용례에 의한다. 제2장 직 제 제4조(직능분류) ① 사무국 직원은 다음과 같이 구분한다. 1. 일반직 2. 계약직 3. 임시직 ② 일반직의 직위는 사무국장, 과장, 대리, 주임으로 부여한다. ③ 계약직은 정원 외에서 본 협회의 사업을 수행함에 있어 당해분야에 관한 전문적인 지식과 경험이 있는 자 중에서 임명할 수 있다. ④ 임시직은 필요한 경우 예산의 범위 내에서 한시적으로 운영할 수 있다. 제5조(정원) 사무국의 정원은 이사회의 동의를 얻어 회장이 정한다. 제6조(업무분장) 사무국 직원의 업무분장은 회장이 따로 정한다. 제7조(직무대행) 사무국장의 유고 시에는 전무이사 또는 회장이 지명한 직원이 그 직무를 대행한다. 제8조(위임전결 등의 결재) ① 회장은 부회장, 전무이사, 사무국장에게 권한의 일부를 위임전결하게 할 수 있다. ② 제1항의 위임전결사항은 별표1과 같으며, 별표1에 명시되지 아니한 사항은 그 중요도에 따라 제1항을 준용하여 전결하게 할 수 있다. ③ 결재권자가 출장 등의 사유로 상당한 기간 부재중일 때에는 그 직무대행자가 대결할 수 있으며, 내용이 주요한 문서는 결재권자의 후열을 받아야 한다. ④ 긴급한 문서로써 결재권자의 사정에 의해 결재를 받을 수 없을 때에는 그 직무를 대행할 수 있는 자의 대결로 우선 시행하고 결재권자의 후열을 받아야 한다. ⑤ 제4항에 의해 문서를 처리한 후 정규의 결재권자의 후열 시에 그 내용을 수정한 때에는 그 수정사항을 관계인에게 통보하여야 한다. 제3장 인 사 제9조(인사) ① 직원의 채용, 보직, 승진, 포상 및 징계 등에 관한 인사관리는 특별한 사유가 없는 한 본 규정에 의한다. ② 직원의 인사관리에 관한 사항은 별도의 관리대장에 의하여 기록․유지하여야 한다. 제10조(임명) 직원은 인사위원회의 심의를 거쳐 회장이 임명한다. 제11조(신규채용) ① 직원의 임용은 회장의 결재로 시행한다. ② 직원의 신규채용은 공개경쟁 채용시험에 의함을 원칙으로 한다. 다만, 다음 각호의 경우에는 특별채용할 수 있다. 1. 공개경쟁 채용시험에 의하여 임용하는 것이 부적당한 경우 2. 법령에 의하여 특별채용 하도록 규정한 경우 3. 직무의 특수성으로 인하여 공개경쟁에 의한 채용이 곤란한 경우 4. 특별한 사유로 인하여 긴급충원이 불가피한 경우 5. 기타 회장이 필요하다고 인정하는 경우 ③ 공개경쟁 채용 시험과목, 시험방법 등 시험의 실시에 관한 세부사항은 인사위원회 심의를 거쳐 회장이 이를 따로 정한다. ④ 직원의 채용에 필요한 구비서류는 다음 각호와 같다. 1. 입사지원서(소정 양식) 2. 이력서 3. 주민등록등본 4. 최종학교 졸업증명서 및 성적증명서 5. 자격증 또는 면허증 사본 6. 경력증명서 7. 사진(최근 6개월 이내에 찍은 상반신 명함판) ⑤ 필요한 경우에는 학력, 경력, 병역, 신원관계 등을 관계기관에 조회할 수 있다. 제12조(결격사유) ① 다음 각호에 해당하는 자는 직원으로 임용할 수 없다.<개정 ‘22.04.25.> 1. 국가공무원법 제33조(결격사유) 각 호의 어느 하나에 해당하는 사람 2. 국민체육진흥법 제2조 제9호 가목부터 다목까지의 체육단체 및 시도ㆍ시군구 종목단체에서 재직기간 중 직무와 관련하여 「형법」 제355조 및 제356조에 규정된 죄를 범한 사람으로서 300만 원 이상의 벌금형을 선고받고 그 형이 확정된 사람 3. 국민체육진흥법 제2조 제9호 가목부터 다목까지의 체육단체 및 시도ㆍ시군구 종목단체가 주최ㆍ주관하는 경기의 결과에 영향을 미치는 승부조작에 가담하여 「형법」 제314조 및 「국민체육진흥법」 제47조 및 제48조에 규정된 죄를 범한 사람으로서 벌금형 이상을 선고받고 그 형이 확정된 사람 4. 국민체육진흥법 제2조 제9호 가목부터 다목까지의 체육단체 및 시도ㆍ시군구 종목단체에서 다음 각 목에 따른 사람 가. 폭력 및 성폭력 등 성 관련 비위로 자격정지 이상의 징계 처분을 받은 사람 나. 승부조작, 편파판정, 횡령ㆍ배임으로 자격정지 1년 이상의 징계처분을 받은 사람 다. 가목과 나목에 해당하는 사람을 제외하고 자격정지 이상의 징계처분을 받고 그 기간이 종료되지 아니한 사람 5. 관리단체로 지정되어 해임된 임원으로 관리단체 지정일로부터 4년이 지나지 아니한 사람 6. 해외여행에 결격사유가 있는 자 ② 직원이 제1항 각 호에 해당하게 되거나 채용 당시 그에 해당하는 자로 밝혀졌을 때에는 당연히 퇴임한다. 제13조(보직) 보직은 직급에 따르며 각자의 능력, 경력, 본인의 희망 등을 참착하되, 본 협회의 필요성을 우선적으로 고려하여야 한다. 제14조(승진 및 승진의 제한) ① 직원의 승진 및 특별승진에 관한 사항은 이를 별도로 정한다. ② 다음 각호의 1에 해당하는 직원은 승진을 할 수 없다. 1. 견책 처분 후 6개월이 경과하지 아니한 자 2. 감봉된지 1년이 경과하지 아니한 자 3. 정직된 자로 복직된 지 1년이 경과하지 아니한 자 제15조(직원의 신분보장) ① 사무국의 전체 직원은 관계법령 및 이사회에서 정한 사무국운영규정에 의하지 아니하고는 본인의 의사에 반하여 면직되지 아니한다. <개정 ‘22. 04. 25.> ② 회장단의 교체 시에도 기존 직원의 신분을 보장해야 하며, 사무국을 원거리로 이전 시 기존 직원의 고용 안정을 위한 거주 지원 등 복리후생 지원을 해야 한다. <신설 ‘22. 04. 25.> 제16조(당연 퇴직) 직원은 제12조의 결격사유에 해당될 때 또는 제30조에서 정한 정년에 달한 때에는 당연 퇴직한다. 제17조(휴직 및 직권면직) ① 직원이 다음 각 호의 1에 해당되는 때에는 일정기간 휴직시킬 수 있다. 1. 신체, 정신상의 장애로 장기요양을 요할 때 2. 3월(업무상의 질병은 6월)의 병가를 얻어 업무를 담당할 수 없게 되었을 때 3. 병역의무 기타 법률의 규정에 의하여 징집 또는 기타 법률의 규정에 의한 의무를 수행하기 위해 직무를 이탈하게 되었을 때 4. 천재지변이나 전시·사변 등 기타 사유로 인해 생사 또는 소재가 불명하게 되었을 때 5. 회장이 지정하는 연구기관이나 교육기관 등에서 연수하게 된 때 6. 해외유학을 하게 된 때 7. 육아휴직을 신청한 때 8. 사고 또는 질병 등으로 장기간의 요양을 요하는 부모, 배우자, 자녀 또는 배우자 부모의 간호를 위하여 필요한 때 9. 국제기구 또는 외국기관에 임시로 고용될 때 ② 직원이 다음 각 호의 1에 해당될 때 회장은 직권에 의하여 면직시킬 수 있다. 1. 심신장애로 인하여 직무를 담당할 수 없거나 제1항에 의하여 휴직된 자가 그 휴직기간이 경과하여도 복귀할 수 없을 때 2. 근무성적이 현저히 불량한 때 3. 직제와 정원의 개폐 또는 예산의 감소로 인한 폐직, 폐원이 있을 때 4. 휴직기간의 만료 또는 휴직사유가 소명된 후에도 직문에 복귀하지 아니하거나 직무를 감당할 수 없을 때 ③ 제2항 2호의 사유가 있는 때에는 면직 대신에 그 직위를 일정기간 해제할 수 있다. ④ 제2항 3호에 의하여 직원을 면직시킬 때에는 인사위원회의 동의를 얻어야 한다. 제18조(의원면직 제한) 휴직기간은 다음과 같다. 1. 제17조 제1항 제1호 및 제2호의 규정에 의한 휴직기간은 1년 이내로 한다. 2. 제17조 제1항 제3호의 규정에 의한 휴직기간은 그 복무기간이 만료될 때까지로 한다. 3. 제17조 제1항 제4호의 규정에 의한 휴직기간은 3월 이내로 한다. 4. 제17조 제1항 제5호의 규정에 의한 휴직기간은 2년 이내로 한다. 5. 제17조 제1항 제6호의 규정에 의한 휴직기간은 3년 이내로 하되, 부득이한 경우 2년의 범위 내에서 연장할 수 있다. 6. 제17조 제1항 제7호의 규정에 의한 휴직기간은 근로기준법이 정한 산전·산후 유급 휴가기간을 포함하여 1년 이내로 한다. 7. 제17조 제1항 제8호의 규정에 의한 휴직기간은 1년 이내로 한다. 8. 제17조 제1항 제9호의 규정에 의한 휴직기간은 그 채용기간으로 한다. 제19조(휴직기간) 직원이 비위관련 사건으로 기소 중이거나, 징계위원회에 중징계 의결이 요구중인 때, 수사기관 또는 감사기관에서 비위와 관련하여 수사 또는 조사중인 때에는 의원면직을 할 수 없다. 제20조(휴직의 효력) ① 휴직중인 직원의 신분은 유지되나 직무에 종사하지 못한다. ② 휴직기간 중 그 사유가 소멸된 때에는 7일 이내에 회장에게 이를 신고하여야 하며, 회장은 지체 없이 복직을 명하여야 한다. ③ 휴직기간이 만료된 직원이 7일 이내에 복귀신고를 한 때에는 당연 복직된다. 제21조(직위해제)① 회장은 다음 각 호의 1에 해당하는 직원에 대하여는 직위를 부여하지 아니할 수 있다.<개정 ‘22.04.25.> 1. 직무수행능력이 부족하거나 근무성적이 극히 불량한 자 2. 징계의결 요구 중인 자 3. 형사사건으로 기소된 자(약식명령이 청구된 자는 제외한다) 4. 채용비리에 연루되어 수사 의뢰된 자 ② 제2항의 규정에 의거 직위를 부여하지 아니한 경우에 그 사유가 소멸된 때에는 지체 없이 직위를 부여하여야 한다. <개정 ’22. 04. 25.> 제22조(징계의 사유) 직원으로서 다음 각 호의 1에 해당하는 경우에는 인사위원회의 심의를 거쳐 회장이 징계한다. 1. 법령, 정관, 기타 제규정을 위반한 경우 2. 직무상의 의무를 위반하거나 또는 정당한 사유 없이 직무를 태만히 하였을 경우 3. 본 협회의 명예훼손, 기밀누설 또는 규율질서를 심히 문란하게 하였을 경우 4. 고의 또는 중대한 과실로 인해 본 협회의 재산상의 손해를 끼쳤을 경우 5. 폭력, 성폭력, 성희롱, 성매매, 음주운전 등의 위법 행위를 하였을 경우 6. 직장 내 괴롭힘 행위를 한 자 제23조(징계의 종류) ① 징계는 비위의 정도 및 과실의 경중에 따라 다음과 같이 구분한다. 1. 중징계 : 해고, 정직<개정 ‘22.04.25.> 2. 경징계 : 감봉, 견책<개정 ‘22.04.25.> ② 감봉은 1개월 이상 3개월 이하의 기간으로 하며, 1회에 평균임금 1일분의 2분의 1, 총액은 월 급여총액의 10분의 1을 초과하지 않는 범위의 금액을 감액한다.<개정 ‘22.04.25.> ③ 정직은 1개월 이상 3개월 이하의 기간으로 하며, 그 기간 중 직원으로서의 신분은 보유하나 직무에 종사하지 못하며, 급여는 본봉의 3분의 2를 지급하고, 명절상여금은 정상적으로 지급한다.<개정 ‘22.04.25.> 제24조(징계의 양정 등) ① 징계는 비위의 정도 및 과실의 경중과 평소의 소행, 근무성적, 공적, 개전의 정, 기타 정상 등을 참작하여 징계를 양정한다. ② 제1항에도 불구하고 비위의 도가 경하고 과실에 의한 비위로서 성실하고 능동적인 업무처리 과정에서 발생되었거나 행위 당시의 여건 기타 사회통념상 적법하게 처리할 것을 기대하기 극히 곤란하다고 인정되는 때에는 징계의결을 아니할 수 있다. ③ 징계의 양정 및 감경, 가중 등에 대하여는 대한장애인체육회 인사규정을 준용한다. 제25조(징계사유의 시효) 징계는 징계사유가 발생한 날로부터 3년(금품 및 향응수수, 공금의 횡령․유용, 채용비리의 경우 5년)을 경과한 때에는 이를 행하지 못한다. 제26조(건강진단·재해보상) ① 직원에 대해 2년에 1회 정기건강진단을 실시한다. ② 직원이 업무로 인하여 부상, 질병 또는 사망 등 재해를 입었을 때에는 인사위원회의 심의를 거쳐 근로기준법이 정하는 바에 따라 재해보상을 한다. 제27조(교육) ① 직원의 자질과 사무능률을 향상시키기 위하여 예산범위 내에서 매년 1회 이상의 자체교육 또는 위탁교육을 실시한다. ② 법령에서 의무실시를 규정하고 있는 ‘직장 내 장애인 인식개선 교육’, ‘인권향상에 관련된 교육’ 등은 필수적으로 실시(또는 참여)해야 한다. 제28조(성희롱의 예방) ① ‘성희롱’이란 양성평등기본법 제3조 2항의 규정에 의한 성희롱을 말한다. ② 협회는 직장 내 성희롱을 예방하고 직원이 안전한 근로환경에서 일할 수 있는 여건 조성을 위해 성희롱 관련법령의 요지, 성희롱 피해자의 권리구제 방법과 가해자의 조치 등을 내용으로 성희롱 예방교육을 연1회 이상 시행(또는 참여)하여야 한다. ③ 직장 내 성희롱을 하여 물의를 일으킨 직원에 대해서는 인사위원회 심의를 통해 해고 등의 징계 조치를 취할 수 있다.<개정 ‘22.04.25.> ④ 피해자가 상담, 신고 등을 했다는 이유로 고용, 인사상의 불이익을 주어서는 아니 된다. 제29조(포상) 직무성적이 우수하거나 공적이 현저한 직원에 대하여는 회장이 포상 또는 표창할 수 있으며, 상급기관에 포상 또는 표창을 추천할 수 있다. 제30조(정년) ① 직원의 정년은 만60세로 한다. 다만, 본 협회가 필요하다고 판단될 경우에는 이사회의 의결을 거쳐 2년 이내에서 연장할 수 있다. ② 정년에 이른 달이 1월부터 6월 사이에 있는 경우에는 6월 30일에, 7월부터 12월 사이에 있으면 12월 31일에 각각 당연히 퇴직된다. 제4장 인사위원회 제31조(인사위원회의 설치 및 운영) ① 직원의 인사업무에 관한 사항을 심의하기 위하여 인사위원회를 설치한다. ② 인사위원회의 기능은 다음 각호와 같다. 1. 직원의 신규채용, 승진, 승급 및 직권면직에 관한 사항 2. 직원의 포상 및 징계에 관한 사항 3. 기타 인사관리에 필요하다고 인정되는 사항 ③ 위원장은 위원회를 대표하고 그 업무를 총괄한다. ④ 위원장이 부득이한 사정으로 직무를 수행할 수 없는 경우 회장이 지정한 순서에 따라 그 직무를 대행한다. 제32조(인사위원회의 구성) ① 위원회는 위원장을 포함하여 5인 내외로 구성한다. ② 위원장은 임원 중에서 정하고, 외부인사 2인 이상을 포함시켜야 한다. <개정 ‘22. 04. 25.> ③ 위원회의 운영 실무를 위하여 사무국장을 간사로 한다. 제33조(인사위원회의 소집 및 회의) ① 위원회의 의사결정은 과반수 이상의 출석과 출석위원 과반수 이상의 찬성으로 의결한다. ② 위원은 본인 또는 본인과 직접적인 이해관계가 있거나 공정을 기할 수 없는 사유가 있을 경우 심의․의결에 참여할 수 없다. 제5장 복 무 제34조(직원의 의무) ① 직원은 본 협의의 사명을 깊이 인식하고, 정관 및 제규정을 준수하며 성실히 직무를 수행하여 본 협회의 발전에 기여하여야 한다. ② 직원은 친절과 공정으로 직무에 임하며, 직무와 관련하여 직·간접을 불문하고 사례, 향응 및 금품수수 행위를 하여서는 아니 된다. ③ 직원은 본 협회와 관련하여 정치활동이나 영리사업에 종사할 수 없다. ④ 직원은 직무내․외를 불문하고 그 품위를 손상하는 행위를 하여서는 아니 된다. ⑤ 직원은 재직 중은 물론 퇴직 후에도 직무상 알게 된 기밀을 누설하여서는 아니 된다. 제35조(근무시간) ① 사무국 직원의 근무시간은 점심시간을 제외하고 주 40시간으로 하며, 토요일은 휴무함을 원칙으로 한다. ② 직원의 1일 근무시간은 9시부터 18시까지로 하며, 휴게시간은 12시부터 13시까지로 한다. 제36조(시간외 근무, 휴일 근무) ① 회장은 업무수행 상 필요하다고 인정할 때에는 제24조의 규정에도 불구하고 근무시간 외 근무를 명하거나 휴무일 또는 공휴일의 근무를 명할 수 있다. ② 제1항의 규정에 의하여 시간외 근무, 휴일 및 휴무일 근무를 한 경우에는 예산 범위 내에서 수당을 지급하거나 대체 휴무를 주어야 한다.<개정 ‘22.04.25.> 제37조(근태) ① 직원은 근무시간 전에 출근하여 제24조에 의한 근무시간 시작과 동시에 집무할 수 있는 준비를 갖추어야 한다. ② 직원이 질병 등의 사유로 결근, 지각 또는 조퇴할 때에는 사전에 상사의 허가를 받아야 한다. ③ 근무시간 중 외출할 때에는 근무상황부를 작성하여 상사의 허가를 받아야 한다. 제38조(휴일) 다음 각호에 해당하는 날은 공휴일로 정한다. 1. 주 휴일(일요일로 함) 2. 법정 공휴일 3. 근로자의 날 4. 정부가 정한 임시공휴일 및 공민권 행사를 위한 각종 선거일 5. 본 협회 창립기념일 제39조(휴가의 종류) 직원에게 부여하는 유급휴가의 종류는 다음과 같다. 1. 연차 유급휴가 2. 공가 3. 병가 4. 특별휴가 5. 보상휴가 ② 연차휴가 시 예산의 범위 내에서 소정의 휴가비를 지급할 수 있다. 제40조(연차 유급휴가) ① 직원의 재직기간별 연차 유급휴가 일수는 다음 각호와 같다. 1. 재직기간 6개월 미만인 경우, 1개월간 개근 시 1일의 유급휴가(월차라 한다)를 준다. 2. 재직기간 6개월 이상 1년 미만인 경우, 12일간의 유급휴가를 준다. 3. 재직기간 1년 이상 2년 미만인 경우, 15일간의 유급휴가를 준다. 4. 재직기간 2년 이상 3년 미만인 경우, 18일간의 유급휴가를 준다. 5. 재직기간 3년 이상인 경우에는 1년당 1일씩 추가하며, 연가 부여 한도는 25일로 한다. ② 제1항의 재직기간이라 함은 장애인배구협회의 재직기간을 말하되 제1항에서 재직기간이라 함은 협회의 재직기간을 말하되, 근속기간 및 출근율 산정에 관한 사항은 근로기준법 등에서 정한 바에 따른다.<개정 ‘22.04.25.> ③ 연차 유급휴가 일수 부여를 위한 재직기간의 산정은 입사일로부터 1년이 되는 시점을 기준으로 산정한다. ④ 당해 연도에 결근, 휴직, 정직 및 직위해제 사실이 없는 직원으로서 다음 각호의 1에 해당하는 자에 대하여는 다음 해에 한하여 제1항의 재직기간별 연가일수에 각각 1일을 가산한다. 1. 병가를 얻지 아니한 직원 2. 연가보상비를 지급받지 못한 잔여 연가일수가 있는 직원 제41조(휴가계획 및 허가) ① 회장은 직원의 휴가가 특정한 계절에 편중되지 아니하고 공사 생활의 만족도를 높이고 직무 생산성을 올릴 수 있도록 연가계획을 수립하여 실시하여야 한다. ② 연차 유급휴가는 오전 또는 오후의 반일단위로 허가할 수 있으며, 반일 2회는 연차 유급휴가 1일로 계산한다. ③ 회장은 직원이 휴가를 청구하는 경우 직무수행 상 특별한 지장이 없는 한 이를 허가하여야 한다. 단, 직무수행 상 지장이 있다고 인정되는 경우에는 시기를 조정하여 부여할 수 있다. ④ 회장은 연차 유급휴가 미사용일수가 발생하지 않도록 분기별로 점검하고 사용을 적극 권장하여야 한다. ⑤ 직무상 연차 유급휴가를 허가할 수 없거나 당해 직원이 직무 관련으로 연차 유급휴가를 활용하지 못한 경우에는 예산의 범위 안에서 미사용일수에 해당하는 보상비를 지급하고 연차 유급휴가에 갈음할 수 있다. 이 경우 보상비를 지급할 수 있는 연차 유급휴가 대상 일수는 20일을 초과할 수 없다. ⑥ 회장이 권장하는 연차 유급휴가 일수를 제외한 잔여일수는 그 해 마지막 날을 기준으로 산정하여 해당 직원의 동의를 받아서 이월․저축하여 사용할 수 있다. ⑦ 회장은 직원이 당해연도의 잔여 연차 유급휴가 일수를 초과하는 휴가사유가 발생한 경우에는 다음 연도 연차 유급휴가 일수의 2분의 1의 범위 안에서 다음 연도의 연차 유급휴가 일수를 당해연도에 미리 사용하게 할 수 있다. 제42조(휴가일수에서의 공제) ① 제29조에 따른 연차 유급휴가 부여 시 다음 각호의 어느 하나에 해당하는 기간은 근무한 것으로 본다. 1. 법령에 의한 의무수행 2. 직무상 질병 또는 부상으로 인하여 휴업한 기간 3. 임신 중의 여성이「근로기준법」 제74조제1항부터 제3항까지의 규정에 따른 휴가로 휴업한 기간 4.「남녀고용평등과 일·가정 양립 지원에 관한 법률」 제19조제1항에 따른 육아휴직으로 휴업한 기간 ② 질병이나 부상 외의 사유로 인한 지참․조퇴 및 외출은 누계 8시간을 연차 유급휴가 1일로 계산한다. ③ 제24조 제1항의 규정에 의한 병가 중 연간 6일을 초과하는 병가일수는 이를 연가일수에서 공제한다. 다만, 의사의 진단서가 첨부된 병가일수는 이를 연가일수에서 공제하지 아니한다. 제43조(병가) ① 회장은 직원이 다음 각 호의 1에 해당할 경우에는 연 60일의 범위 안에서 병가를 허가할 수 있다. 이 경우 질병이나 부상으로 인한 지참·조퇴 및 외출은 누계 8시간을 병가 1일로 계산하고, 제31조의 규정에 의하여 연가일수에서 공제하는 병가는 이를 병가일수에 산입하지 아니한다. 1. 질병 또는 부상으로 인하여 직무를 수행할 수 없을 때 2. 전염병의 이환으로 인하여 그 직원의 출근이 다른 직원의 건강에 영향을 미칠 우려가 있을 때 ② 회장은 직원이 직무상 질병 또는 부상으로 직무를 수행할 수 없거나 요양을 요할 경우에는 연 180일의 범위 안에서 병가를 허가할 수 있다. ③ 병가일이 7일 이상일 경우에는 의사의 진단서를 첨부하여야 한다. 제44조(공가) 회장은 직원이 다음 각호의 1에 해당하는 경우에는 이에 직접 필요한 기간에 대한 공가를 허가하여야 한다. 1. 병역법 및 기타 법령에 의한 징병검사·소집·검열점호 등에 응하거나 동원 또는 훈련에 참가할 때 2. 직무에 관하여 국회·법원·검찰 기타 국가기관에 소환된 때 3. 법률의 규정에 의하여 투표에 참가할 때 4. 원격지간의 전보발령을 받고 부임할 때 5. 국민건강보험법시행령 및 제29조의 규정에 의한 건강검진을 받을 때 6. 패럴림픽 등 종합국제대회와 전국장애인체전, 장애학생체육대회 등 국가적인 행사에 참가하는 때 7. 천재·지변·교통차단 기타의 사유로 출근이 불가능할 때 제45조(특별휴가) ① 직원은 본인이 결혼하거나 기타 경조사가 있을 경우에는 별표2의 기준에 의한 경조사휴가를 얻을 수 있다. ② 임신 중의 여자직원에 대하여는 그 출산의 전후를 통하여 90일의 출산휴가를 허가하여야 한다. 다만, 이 경우 그 휴가기간 중 최초 60일은 유급으로 하고 나머지 30일은 무급으로 하며, 휴가기간의 배치는 산후에 45일 이상이 되도록 하여야 한다. ③ 여자직원은 매 생리기와 임신한 경우 검진을 위하여 매월 1일의 여성보건휴가를 얻을 수 있다. 다만, 생리로 인한 여성보건휴가는 무급으로 한다. ④ 생후 1년 미만의 유아를 가진 여자직원은 1일 1시간의 육아시간을 얻을 수 있다. ⑤ 한국방송통신대학교에 재학 중인 직원은 「한국방송통신대학교설치령」에 의한 출석 수업에 참가하기 위하여 제19조의 연가일수를 초과하는 출석수업 기간에 대한 수업휴가를 얻을 수 있다. ⑥ 풍해·수해·화재 등 재해로 인하여 피해를 입은 직원과 재해지역에서 자원봉사 활동을 하고자 하는 직원은 5일 이내의 재해구호휴가를 얻을 수 있다. ⑦ 회장은 특별한 사유로 인하여 특별휴가를 부여할 수 있다. 제46조(휴가기간 중의 토요일 또는 공휴일) 휴가기간 중의 토요일 또는 공휴일은 그 휴가일수에 산입하지 아니한다. 다만, 휴가일수가 30일 이상 계속되는 경우에는 그러하지 아니하다. 제47조(공무외의 국외여행) 직원은 휴가기간의 범위 내에서 공무외의 목적으로 국외여행을 할 수 있다. 제48조(휴가기간의 초과) 이 규정이 정한 휴가일수를 초과한 휴가는 결근으로 본다. 제49조(출장) ① 직원이 업무수행을 위해 출장하고자 할 때에는 미리 출장명령을 받아야 하고, 귀임 한 때에는 지체 없이 그 결과를 보고하되 서면으로 한다. 다만, 경미한 사항에 대해서는 구두로 할 수 있다. ② 당초 출장목적에 변동이 있거나 지정출장기일을 변경할 필요가 있을 때에는 반드시 사전에 연락하고 귀임 즉시 사후승인을 받아야한다. ③ 여비규정은 대한장애인체육회 여비규정을 따른다. 제6장 여 비 제50조(여비의 종류) 여비는 운임․일비․숙박비 및 식비 등으로 구분한다. 제51조(여행일수의 계산) 여행일수는 여행을 위하여 실제로 필요한 일수에 의한다. 다만, 공무의 형편상 또는 천재․지변 기타 부득이한 사유로 인하여 소요되는 일수는 이에 포함한다. 제52조(출장 중 사고) 출장 중 질병 또는 불의의 사고로 부득이 체재하게 된 때에는 의사의 진단서 또는 기타 확실한 증거가 있는 경우에 한하여 체재비를 추가 지급한다. 제53조(운임의 구분) ① 운임은 철도운임․선박운임․항공운임․자동차운임으로 구분하되, 철도운임은 철도여행에, 선박운임은 수로여행에, 항공운임은 항공여행에, 자동차운임은 철도 외의 육로여행에 각각 지급한다. ② 국외여행의 경우 제1항의 운임에는 공항세를 포함한다. 제54조(철도운임의 지급) ① 국내 철도운임은 별표4에 정하는 바에 따라 이를 지급한다. ② 국외 철도운임은 다음 각호의 구분에 의하여 지급한다. 1. 철도운임에 2등급이상의 등급구별이 있는 경우에는 최상등급의 철도운임 2. 철도운임에 등급구별이 없는 경우에는 그 승차에 요하는 실비액 3. 공무상 사유로 급행요금 또는 침대요금을 필요로 하는 경우에는 그 실비액 제55조(선박운임의 지급) ① 국내 선박운임은 별표4에 정하는 바에 따라 이를 지급한다. ② 국외 선박운임(부선임 및 부두임을 포함한다)은 다음 각호의 구분에 의하여 지급한다. 1. 선박운임에 2등급이상의 등급구별이 있는 경우에는 최상등급의 선박운임 2. 선박운임에 등급구별이 없는 경우에는 그 승선에 요하는 실비액 3. 공무상사유로 침대요금을 필요로 하는 경우에는 그 실비액 제56조(항공운임의 지급) 항공운임은 국내의 경우 별표4에서, 국외는 별표5에서 정하는 바에 따라 정액으로 이를 지급한다. 제57조(자동차운임의 지급) ① 국내 자동차운임은 별표4에 정하는 바에 따라 이를 지급한다. ② 국외 자동차운임은 실비액을 지급한다. 제58조(실비운임) 국내여행의 경우 특별한 사정으로 인하여 정액의 운임으로 실비를 충당하기 어려운 것이 명백한 경우에는 실비액을 지급할 수 있다. 제59조(운임지급의 제한) 협회의 차량 등을 이용하여 여행하는 경우에는 운임을 지급하지 아니한다. 제60조(일비․숙박비․식비의 지급) ① 국내여행자의 일비․숙박비 및 식비는 별표4에서, 국외여행자의 경우는 별표2에서 정하는 바에 따라 정액으로 이를 지급한다. 다만, 공무형편 및 기타 부득이한 사유로 인하여 승인 받은 숙박비(국외여행의 경우는 식비를 포함한다. 이하 이 항에서 같다)를 초과한 경우에는 당해 여행을 완료한 날부터 1주일이내에 증빙자료를 첨부하여 정산을 신청할 수 있다. ② 일비는 여행일수에 따라 이를 지급하되, 협회 차량을 이용하는 경우에는 일비의 2분의 1을 지급한다. ③ 숙박비는 숙박하는 밤의 수에 따라 이를 지급한다. 다만, 수로여행 또는 항공여행 시 해당 교통편 내에서의 숙박일은 숙박비를 지급하지 아니한다. ④ 식비는 여행일수에 따라 이를 지급한다. 다만, 수로여행 또는 항공여행 시 해당 교통편 내에서의 식비는 제외하나 따로 식비를 요하는 경우에는 이를 지급한다. 제61조(근무지내 국내출장 시의 일비) ① 근무지내 국내출장의 경우에는 출장여행시간이 4시간 이상인 자에 대하여는 2만원을, 4시간 미만인 자에 대하여는 1만원의 여비를 지급한다. 다만, 협회 차량 배정자에 대하여는 이를 지급하지 아니하며, 협회 차량을 이용하는 자에 대하여는 1만원을 감하여 지급한다. ② 제1항에서 “근무지내 국내출장”이라 함은 동일시(특별시 및 광역시를 포함한다)․군 및 도서(제주도를 제외한다) 안에서의 출장이나, 여행거리가 12킬로미터 미만인 출장을 말한다. 제62조(여비의 조정) ① 회장은 여비를 지급하지 아니할 충분한 이유가 있다고 인정될 때에는 여비의 정액을 감하거나 여비의 전부 또는 일부를 지급하지 아니할 수 있다. ② 외국정부 또는 국제연합기구 등으로부터 여비의 전액 또는 일부를 지급받은 경우에는 이 규정에 규정된 여비액 중에서 그 액을 공제한 액을 지급한다. ③ 2인 이상의 임원 및 직원이 같은 목적으로 동행하여 출장하는 경우에 출장목적 수행 상 부득이하다고 인정되는 때에는 운임(국외여비를 제외한다), 숙박비, 식비에 한하여 상급자와의 동행에 필요한 최소한의 등급에 해당하는 여비를 지급할 수 있다. 제63조(여비지급의 특례) ① 회장은 특별한 사유로 인하여 이 규정에 의한 여비의 산정이 불합리하다고 인정하는 때에는 해당자에 대한 여비의 지급액 및 지급방법을 따로 정할 수 있다. ② 장애인 직원이 부득이 본인 소유차량으로 출장여행을 하여야 경우에는 그 유류비를 실비로 지급할 수 있다. ③ 군사분계선 이북지역에 여행하는 경우의 여비는 별표5의 나등급에 준하여 지급한다. 다만, 필요한 경우 이를 달리 정할 수 있다. 제64조(임원 및 직원이 아닌 자의 여비) 공무수행을 위하여 임원 및 직원이 아닌 자를 여행하도록 하는 경우 여비지급이 필요하다고 인정되는 때에는 그 임원 및 직원이 아닌 자에 대하여도 이 규정을 준용하여 여비를 지급할 수 있다. 제65조(부대비) 국외여비를 받는 자에 대하여는 여비에 다음 각호의 부대비를 추가하여 지급할 수 있다. 1. 예방주사료 2. 여권교부 수수료 3. 사증수수료 4. 출입국세 제7장 급 여 제66조(급여의 종류) ① 직원에 대한 급여의 종류는 다음 각 호와 같다. 1. 기본급 2. 상여금 3. 각종 수당(장기근속수당, 직급보조비, 초과근무수당, 연차수당, 가족수당, 교통비, 급식비, 가계지원비, 명절휴가비 등) ② 기본급은 대한장애인체육회 보조금을 기본으로 하고, 자체예산을 통하여 그 금액을 증액할 수 있다. ③ 각종 수당은 예산의 범위 내에서 별표3을 기준으로 지급할 수 있다. ④ 상여금은 명절, 하계휴가, 연말 등에 직원의 사기앙양을 위하여 예산의 범위 내에서 지급할 수 있다. 제67조(급여 지급일) 보수는 매월 25일에 본인의 은행계좌로 지급한다. 다만, 지급일이 공휴일인 경우에는 그 전일에 지급한다. 제68조(급여의 계산) ① 급여는 임명, 전보, 승진, 승급 또는 감봉 기타 어떠한 경우에도 발령일을 기준으로 일할 계산하여 지급한다. ② 급여의 지불기간 계산은 매월 1일부터 말일까지로 하고 공휴일의 휴무는 출근으로 계산한다. 다만, 신입직원은 채용일을 기준으로 일괄 계산하여 지급한다. ③ 1년 이상 근속한 직원이 퇴직 또는 해직될 때에는 그 월분의 급여 전액을 지급한다. 제69조(퇴직금) ① 직원이 1년 이상 근속하고 퇴직하거나 사망하였을 때에는 퇴직금을 지급하며, 그 지급시기는 퇴사일로부터 14일 이내에 지급해야 한다. ② 퇴직금은 본인에게 지급하되, 퇴직자가 사망하였을 경우에는 그 가족의 청구에 의하여 지급한다. ③ 퇴직금은 근속연수 1년에 대하여 1개월분의 평균임금을 지급할 수 있도록 퇴직적립금을 운용하며, 퇴직적립금은 금융사의 개인형 퇴직연금에 가입하여 운용한다. ④ 직원에게 급여를 지급할 때 급여의 구성항목·계산방법 및 공제내역 등을 적은 임금(급여)명세서를 서면으로 교부한다. <신설‘22. 04. 25.> 제8장 영리업무·겸직·대외활동 제70조(영리업무의 금지) 직원은 다음 각호의 1에 해당하는 업무에 종사함으로써 직원의 직무상의 능률의 저해, 직무에 대한 부당한 영향, 장애인체육회의 이익과 상반되는 이익의 취득 또는 장애인체육회에 대한 불명예스러운 영향을 초래할 우려가 있는 경우에는 이에 종사할 수 없다. 1. 직원이 상업․공업․금융업 기타 영리적인 업무를 스스로 경영하여 영리를 추구함이 현저한 업무 2. 직원이 상업․공업․금융업 기타 영리를 목적으로 하는 사기업체의 이사․감사․업무를 집행하는 무한책임사원․지배인․발기인 기타의 임원이 되는 것 3. 그외 직무와 관련이 있는 타인의 기업에 투자하는 행위 4. 기타 계속적으로 재산상의 이득을 목적으로 하는 업무를 행하는 것 제71조(겸직허가) ① 직원이 제30조의 영리업무에 해당되지 아니하는 다른 직무를 겸직하고자 할 때에는 회장의 사전허가를 받아야 한다. ② 제1항의 허가는 담당직무수행에 지장이 없는 경우에 한한다. 제72조(대외활동) ①직원은 장애인체육회의 사업에 도움이 되는 경우에 회장의 승인을 받아 대외활동을 할 수 있다. ② 제1항에 따른 대외활동은 다음 각호로 구분할 수 있다. 1. 장애인체육회 직원으로서 각종 자문에 응하는 행위 2. 장애인체육회 이외의 기관․단체에서 활동하는 행위 3. 각종 교육기관 등에 출․수강하거나, 방송에 출연하는 행위 제73조(출․수강 제한) ①제33조제2항제3호에 의하여 출․수강하는 자는 근무시간 중 주2회 및 주당 8시간을 초과할 수 없다. ② 출․수강은 그 사유가 발생할 때, 장기 또는 연중 계속되는 출․수강은 참여개요서를 첨부하여 인사담당부서의 사전 심의를 받아야 한다. ③ 장애인체육회의 업무수행과 관련이 있는 출․수강 이외의 사항에 대하여는 제21조의 적용을 받으며, 그 일수가 초과될 시에는 보수규정이 정하는 바에 따라 보수에서 감액한다. ④ 승인받지 않은 출․수강에 대하여는 무단결근으로 처리한다. ⑤ 출․수강 소요시간은 교통 소요시간 등 장애인체육회의 근무지에서 이탈하는 모든 시간으로 한다. 제74조(확인서 제출) 출․수강자는 개강 후 15일 이내에 해당 교육기관의 장이 발행 하는 확인서를 인사담당부서에 제출해야 한다. 제75조(경조비) ① 회장은 장애인배구협회를 대표하여 임·직원 및 업무 관련자에게 축·조의에 소요되는 경비를 자체예산으로 편성하여 이사회의 승인을 득한 후 집행할 수 있다. ② 축·조의에 소요되는 경비는 협회 또는 협회장 명의로 지출되어야 하며, 사적인 용도로 집행되지 않도록 해야 한다. ③ 축·조의금 현금 집행 시 실 집행여부 등에 대한 문제가 발생되지 않도록 현금집행내역서에 의하여 각종 증빙자료(부고, 청첩장 등)를 첨부하여야 한다. ④ 법령상 근거 없는 격려금의 월정액 지급은 사용할 수 없다. ⑤ 회장은 경조비 집행 시 축·조화와 축·조의금을 이중으로 집행할 수 없다. ⑥ 축·조의금 지급기준은 회장이 별도로 정한다. 제9장 문서관리 제76조(문서번호) 문서번호는 기관기호․분류번호 및 문서등록번호로 구성한다. 제77조(문서의 간인) 다음 각호의1에 해당하는 2장 이상으로 이루어지는 문서에는 회장이 정하는 바에 따라 간인하여야 한다. 1. 전후관계를 명백히 할 필요가 있는 문서 2. 사실 또는 법률관계의 증명에 관계되는 문서 3. 기타 결재권자가 간인이 필요하다고 인정하는 문서 제78조(문서의 발신명의) 문서의 발신명의는 회장으로 한다. 제79조(문서의 기안) ① 문서의 기안은 전자문서로 함을 원칙으로 한다. 다만, 업무의 성격 기타 특별한 사정이 있는 경우에는 그러하지 아니한다. ② 문서의 기안은 회장이 정하는 기안문서(이하 “기안문”이라 한다)로 하여야 한다. 다만, 정기보고 또는 수시보고, 경미한 사항의 허가․인가․증명서 교부 기타 관례적인 사무에 관한 문서 및 비치문서는 그 내용을 관계서식에 기입하는 방법으로 기안할 수 있다. ③ 기안문의 결재란에는 발의자(기안하도록 지시한 자를 말하며, 기안자가 스스로 입안한 경우에는 기안자를 말한다)와 보고자(결재권자에게 직접 보고하는 자를 말한다)를 알 수 있도록 표시하여야 한다. 다만, 다음 각호의 문서는 이를 생략할 수 있다. 1. 검토 및 결정을 요하지 아니하는 문서 2. 제증명 발급, 회의록 기타 단순사실을 기록한 문서 3. 일상적․반복적인 업무로서 경미한 사항에 관한 문서 제80조(검토 및 협조) ① 기안문은 결재권자의 결재를 받기 전에 회장이 지정한 보조기관(자)의 검토를 받아야 한다. ② 제1항의 규정에 의하여 기안문을 검토 및 협조 시 또는 결재권자가 결재를 함에 있어서 그 내용과 다른 의견 또는 참조 의견이 있는 때에는 당해문서 또는 별지에 그 의견을 표시하여야 한다. 제81조(결재) ① 문서는 회장의 결재를 받아야 한다. ② 회장은 사무의 내용에 따라 그 보조기관(자)으로 하여금 위임전결하게 할 수 있으며, 그 위임전결사항은 회장이 따로 정한다. ③ 결재권자가 휴가․출장 기타의 사유로 상당기간 부재중이거나 긴급한 문서의 경우에 결재권자의 사정에 의하여 결재를 받을 수 없는 때에는 그 직무를 대리하는 자가 대결할 수 있되, 내용이 중요한 문서에 대하여는 결재권자의 후열을 받아야 한다. 제82조(시행문의 작성) 결재를 받은 문서 중 발신을 하여야 할 문서에 대하여는 회장이 정하는 바에 따라 수신자별로 시행문서(이하 “시행문”이라 한다)를 작성하여야 한다. 다만, 전신․전신타자 또는 전화로 발신하는 문서에 대하여는 시행문을 작성하지 아니한다. 제83조(문서통제자) 사무국장은 문서통제자로서 문서의 통제 및 문서수발을 총괄 책임진다. 제84조(문서의 통제) 문서통제자가 문서를 통제할 때에는 다음 사항을 심사하여야 하며, 심사결과 미비된 사항이 있는 때에는 그 사항을 처리과에 통보하여 보완하도록 하여야 한다. 1. 결재권자의 결재여부 2. 다른 문서와의 내용상 중복 또는 상충여부 3. 기안문과 시행문의 일치여부 4. 분류번호․보존기간 등 정형화된 기재사항의 정확 및 누락여부 5. 전결․대결 구분의 착오여부 6. 첨부물의 첨부여부 7. 발신방법의 지정여부 8. 관계부서와의 협조여부 제85조(직인날인 및 서명) ① 회장 명의로 발신하는 문서의 시행문과 임용장․상장 및 각종 증명서에 속하는 문서에는 직인(전자이미지 직인을 포함한다. 이하 같다)을 찍어야 한다. ② 직인을 찍어야 할 문서로서 다수의 수신자에게 동시에 발신 또는 교부하는 문서에는 직인날인에 갈음하여 직인의 인영을 인쇄하여 사용할 수 있다. 제86조(문서의 발송) ① 시행문은 정보통신망을 이용하여 발신함을 원칙으로 한다. ② 회장의 명의로 발신하는 문서 중 내용이 중요한 문서는 인편․등기우편 기타 발송사실을 증명할 수 있는 특수한 방법으로 발송하여야 한다. ③ 전자이미지직인을 찍은 문서 중 정보통신망을 이용하여 시행할 수 없는 문서는 출력하여 시행할 수 있다. 제87조(문서의 접수․처리) 문서의 접수 및 처리는 사무국장이 총괄하며, 접수된 문서에는 회장이 정하는 문서처리인을 찍고, 그 접수 일시 및 번호를 기재한다. ② 사무국장은 접수 받은 문서에 대하여 그 처리 담당자를 지정하고, 특별한 이유가 있지 아니하고는 즉시 또는 빠른 기한 내 처리될 수 있도록 한다. 제88조(문서의 등록) 문서는 당해 문서에 대한 결재가 끝난 즉시 결재일자순에 따라 문서번호를 부여하고 문서등록대장에 등록하여야 한다. 다만, 비치문서는 다른 규정에 특별한 규정이 있는 경우를 제외하고는 그 종류별로 회장이 정하는 바에 따라 따로 등록할 수 있다. 제89조(문서의 보존기간) ① 문서의 보존기간은 6종(영구, 준영구, 10년, 5년, 3년, 1년)으로 하며, 문서의 종류별 보존기간은 별표6과 같다. ② 문서의 보존기간 기산일은 당해문서(1건 문서의 경우에는 그 내용을 최종적으로 종결하는 최근문서를 말한다)를 처리․완결한 날이 속하는 해의 다음해 1월 1일로 한다 ③ 보존하고 있는 문서의 보존기간 변경 필요성 여부를 검토하여 행정여건의 변화 등에 따라 그 보존기간을 연장 또는 단축할 필요가 있다고 인정하는 때에는 회장이 정하는 바에 따라 그 보존기간을 연장 또는 단축할 수 있다. 제90조(문서의 마이크로필름 또는 전자매체 등에 의한 보존) 보존하고 있는 문서는 마이크로필름 또는 전자매체에 이를 수록할 수 있으며, 문서를 수록한 마이크로필름 또는 전자매체는 당해문서가 폐기된 경우에 한하여 이를 보존중인 문서로 본다. 제91조(문서의 폐기) 문서는 그 보존기간이 경과한 때에 이를 폐기하여야 한다. 이 경우 폐기대상의 문서에 대하여 회장의 승인을 얻어서 폐기하여야 한다. 제92조(인장의 종류 및 비치) ① 협회에 두는 인장은 직인 및 특수인으로 구분한다. ② 직인은 회장 및 기타 직인이 필요하다고 인정되는 보조기관(자)의 직명을 새긴 인장을 말한다. ③ 특수인은 계인․증인 기타 특수한 업무에 사용하기 위한 인장을 말한다. ④ 전자문서에 사용하기 위한 전자이미지인장은 인장을 전자입력하여 사용하여야 한다. 제93조(인장의 규격) 인장의 규격은 회장이 따로 정하되, 그 크기는 일변의 길이가 30밀리미터를 초과할 수 없다. 제94조(인장의 재교부 및 폐기) ① 인장이 분실 또는 마멸되거나 갱신할 필요가 있는 때에는 그 사유를 들어 회장의 승인을 얻어 재교부 할 수 있다. ② 전자이미지인장을 재등록한 경우 즉시 사용 중인 전자이미지인장을 삭제하고, 재등록한 인장을 전자입력하여 사용하여야 한다. 부 칙(‘19.10.8.) 제1조(시행일) 이 규정은 이사회 승인을 받은 날부터 시행한다. 제2조(다른 규정과의 관계) 이 규정에서 정한 세부사항에 대하여는 대한장애인체육회의 인사규정, 복무규정, 보수규정, 문서규정을 준용한다.제정 2012. 6. 27. 전면개정 2019. 2. 20.
제 1 장 총 칙 제1조(목적) 이 규정은 대한장애인배구협회(이하 “본 협회”라 한다)의 공정타당하고 일관성 있는 회계업무를 수행하기 위하여 재무와 회계에 관한 주요기준과 절차를 규정함을 목적으로 한다. 제2조(적용범위) 본 협회의 회계에 관한 업무는 이 규정에 정하는 바에 의한다. 다만, 이 규정에 명시되지 않은 사항은 관계법령을 적용한다. 제3조(회계년도) 본 협회의 회계연도는 정부의 회계연도에 따른다. 제4조 (회계년도 소속구분) <제정‘19.2.20> ① 모든 수입 및 비용의 계상과 자산, 부채 및 자본의 증감변동에 관하여는 그 원인이 되는 사실이 발생한 날을 기준으로 함을 원칙으로 한다. 다만, 그 사실이 발생한 날을 정할 수 없는 경우에는 그 사실을 확인한 날 또는 실현된 날을 기준으로 하여 연도를 구분한다. ② 수익은 실현시기를 기준으로 계상하고, 미실현수익은 당기의 손익계산에 삽입하지 아니함을 원칙으로 한다. 제5조(회계원칙) ①모든 회계거래에 대하여는 정규의 부기원칙에 따라 정확한 회계 장부를 작성 유지한다. ②회계처리는 일반적으로 공정타당하다고 인정되는 회계관습기준에 따라야한다. 다만, 법인세법의 규정에 상반되는 것은 법인세법의 규정을 따를 수 있다. 제 6조(회계구분) 본 협회의 회계는 국고보조금회계, 자체회계, 국민체육진흥기금회계(이하 기금회계라 한다)로 구분한다. 단, 협회의 특정한 사업을 운영하거나 특정자금을 보유하기 위한 특별회계를 둘 수 있다.<개정‘19.2.20> 제7조(회계책임자등) ①회장은 본 협회의 예산 및 회계를 총괄한다. ②전무이사는 본 협회의 예산 및 회계업무집행에 관하여 이를 통제·조정한다. 제8조(회계관계업무의 위임) ①회장은 회계업무를 수행하기 위하여 필요하다고 인정할 때는 회계업무에 관한 사무를 위임할 수 있다. ②제1항의 규정에 의한 사무의 위임은 그 직을 지정함으로써 이에 갈음할 수 있다. 제9조 (회계관계직원) <제정‘19.2.20> ① 회계에 관한 독립의 업무를 담당하기 위하여 다음과 같은 회계 관계직원을 둔다. 다만, 정원의 과소 등으로 인하여 불가피한 경우에는 겸직할 수 있다. 1. 재 무 원 : 계약, 기타의 지출원인행위를 담당하는 직원 2. 지 출 원 : 예산의 지출에 관한 업무를 담당하는 직원 3. 출 납 원 : 현금등가물을 수납·보관하는 직원 4. 전도자금출납원 : 현금지급을 위한 전도금을 취급하는 사무국장 5. 물품관리원 : 고정자산, 물품, 기타 자산을 관리하는 직원 6. 물품운용원 : 물품유지, 보수 및 사용을 담당하는 직원 7. 수 입 원 : 사업수익 등의 수입결정과 관리업무를 담당하는 직원 ② 다음 각 호의 직에 보임된 자는 당연직 회계직원으로 한다. 1. 전무이사 2. 사무국장 : 수입원 3. 직 원 : 지출원, 물품관리원, 물품운용원 제10조 (회계관계직원의 책임) <제정‘19.2.20> ① 회계관계직원은 법령, 기타 관계규정에 따라 그 직무를 성실하고 공정하게 수행하여야 한다. ② 회계관계직원의 책임에 관하여는 회계관계직원 등의 책임에 관한 법률에 의한다. 제11조 (회계관계직원의 재정보증) <제정‘19.2.20> ① 회계관계직원은 재정보증을 필한 후 그 직무를 담당하여야 한다. ② 제1항이 재정보증의 범위, 방법, 절차 등은 회장이 따로 정한다. 제12조 (회계관계직원의 직인사용 등) <제정‘19.2.20> ① 제8조의 규정에 의한 회계관계직원은 회계업무처리시에 그 업무 또는 직무를 표시하는 인장을 사용할 수 있다. ② 직인의 비치, 규격, 내용, 보관, 대장관리, 기타 직인의 사용절차 등에 관한 사항은 문서규정에 의한다. 제13조 (회계기록과 증빙서류의 보존) <제정‘19.2.20> ① 이 규정에 의한 모든 회계처리는 그 처리관계를 구체적으로 증명할 수 있도록 회계장부를 비치 기장하여야 하며, 그 기장을 증명하는 제기록문서를 구비하여야 한다. ② 회계서류의 보관·열람·보존·편철·대출 및 복사는 문서규정에서 정하는 바에 의한다. 제 2 장 회계처리와 회계장부 제14조 (거래의 처리) 모든 거래는 전표에 의하여 처리하여야 한다.<제정‘19.2.20> 제15조 (계정과목) <제정‘19.2.20> ① 계정과목은 대차대조표 계정과 수지계산서 계정으로 구분하며 수지계산서 계정은 국고보조금회계, 자체회계, 기금회계로 구분한다. ② 계정과목은 기업회계기준을 준용한다. ③ 회장은 필요에 따라 제2항의 계정과목을 신설, 통·폐합할 수 있다. 제16조 (전산화에 따른 회계장표의 생략) <제정‘19.2.20> ① 회계업무의 전산화에 따라 이 규정에 의한 장표의 비치 등은 생략할 수 있다. ② 제1항의 규정에 따라 장표의 비치를 생략한 경우에도 감독기관이나 이해관계자의 요구가 있으면 회계장표와 내용이 동일한 대용장표를 신속히 제공할 수 있는 필요한 조치를 취하여야 한다. 제17조 (전산화에 따른 회계장표의 관리) 회계업무의 전산에 따른 제자료의 관리는 정부투자기관 전산처리에 관한 자료의 관리기준에 따라야 한다.<제정‘19.2.20> 제18조 (비용과 수익의 대응) 기간손익을 확정하기 위하여 당해 연도의 수익과 이에 대응하는 비용을 정확하게 인식 파악하여 동일기간 내에 귀속시켜야 한다. <제정‘19.2.20> 제19조 (총액계산) <제정‘19.2.20> ① 비용과 수입은 총액에 의하여 계상하여야 하며, 비용항목과 수입항목을 직접 상계함으로써 그 전부 또는 일부를 수지계산에서 제외하여서는 아니 된다. ② 자산·부채 및 자본은 총액에 의하여 계상함을 원칙으로 하고 자산항목과 부채, 자본의 항목을 상계함으로써 그 전부 또는 일부를 대차대조표에서 제외하여서는 아니 된다. 제20조 (수익적 지출과 자본적 지출의 기준) <제정‘19.2.20> ① 다음 각 호의 지출은 이를 수익적 지출로 한다. 1. 고정자산의 원상회복을 위한 지출 2. 고정자산의 능률유지를 위한 지출 3. 경상적이고 주기적으로 발생하는 지출 ② 다음 각 호의 지출은 이를 자본적 지출로 한다. 1. 고정자산의 취득 또는 개량에 따른 지출로서 고정자산의 원가를 구성하는 지출 2. 내용년수를 연장시키는 지출 3. 수익성과 생산성을 증진시키는 지출 ③ 구분이 불분명한 경우 법인세법 시행령 제57조, 동법 시행규칙 제33조에 의하여 능률유지 및 내용년수 연장을 기준으로 구분한다. 제21조 (용역연구비) <제정‘19.2.20> ① 특정사업에 지출되는 거액의 용역연구비는 용역연구가 중지 또는 종료될 때까지 이연자산에 누적하여 계상한다. 다만, 이 경우 신규자산의 취득이 있을 때에는 동 비율을 그 자산의 가액에 가산하여 처리한다. ② 제1항의 이연자산은 5년 이내에 기간에 매기 균등액을 상각한다. 제22조 (계약보증금 등) <제정‘19.2.20> ㄴ① 계약에 따른 보증금은 자산 및 부채계정에 계상한다. 다만, 이행보증보험증권 및 지급보증서는 그 귀속사유가 발생하지 아니하는 경우에는 그러하지 아니한다. ② 귀속된 보증금 및 지체상금은 사업 외 수익으로 계상한다. 제23조 (전표의 종류) 전표는 입금전표, 출금전표, 대체전표로 구분하며, 계정과목별로 이를 작성한다.<제정‘19.2.20> 제24조 (전표의 대응) 결의서 또는 증빙서는 전표로 대응할 수 있으며, 전표의 대응범위는 회장이 정하는 바에 의한다. 이 경우 결의서 및 증빙서의 서식에는 전표의 기능이 포함되어야 한다.<제정‘19.2.20> 제25조 (전표금액의 정정) 전표의 금액은 이를 정정하지 못하며, 기타 기재사항의 오기를 정정할 때에는 반드시 책임자가 날인하여야 한다.<제정‘19.2.20> 제26조 (전표의 심사) 전표에 의하여 총계정원장에 전기할 때에는 다음 각 호의 사항을 미리 심사하고 불비한 점이 있을 때에는 보완하여 처리하여야 한다.<제정‘19.2.20> 1. 전표 기재사항에 대한 오류 유무 2. 관계자인의 누락 유무 3. 소정의 표지인 누락 유무 4. 대체전표상의 대체금액 일치 여부 5. 기타 전표작성상 불비한 사항 제27조 (회계장부) <제정‘19.2.20> ① 회계장부는 주요부와 보조부로 구분한다. ② 주요부는 총계정원장과 전표를 말하고 보조부는 각 계정원장과 보조장을 말한다. 제28조 (기재원칙) <제정‘19.2.20> ① 보조부의 적요 및 금액은 전표의 기재사항과 그 내용이 일치되어야 한다. ② 잔액의 대차구분을 요하는 때에는 이를 명확히 표시하여야 한다. ③ 오기의 정정은 정당한 절차에 의하여야 한다. ④ 정규란 이외에는 기입을 하여서는 아니 된다. 제29조 (장부의 오기정정) <제정‘19.2.20> ① 장부의 오기사항은 당해 부분을 평행 2주선으로 말소하여 정정하여야 한다. ② 오기로 인하여 공란으로 할 필요가 있을 때에는 당해 부분을 평행 2주선으로 말소하고 “공란”이라 주서한다. ③ 장부가 전면 오기되었거나 공백인 때에도 제1항 및 제2항에 준한다. ④ 금액은 일행 중 일부가 오기일지라도 그 행 전부를 정정하여야 한다. ⑤ 정정부분에는 반드시 정정자가 날인하여야 한다. ⑥ 정정시는 약품을 사용하거나 도말 또는 개서할 수 없다. 제30조 (거래기장의 오류정정) 거래기장의 오류는 동일 변에 주기 정정한다. <제정‘19.2.20> 제31조 (증빙서류의 범위) <제정‘19.2.20> ① 증빙서류는 거래사실의 경위를 입증하며 기장의 증거가 되는 서류로서 회장이 그 범위를 정한다. ② 제1항의 규정에 의하여 증빙서류의 범위에서 제외된 증빙서라 할지라도 특히 필요하다고 인정되는 경우에는 이를 증빙서로 첨부하여야 한다. ③ 증빙서류는 그 원본으로 구비하여야 한다. 다만, 원본에 의하기 곤란한 경우에는 그 사본으로 갈음하고 원본 대조자가 이에 확인표시를 하여야 한다. 제32조 (증빙서류의 생략) 오기정정 또는 결산시 계정간대체 등과 같이 단순히 계산적 조작의 필요에 의하여 발생한 준거래에서는 그 전표로써 증빙서류에 갈음할 수 있다. 다만, 이 경우에는 전표의 적요 란에 사유 및 산출내역을 기재하여야 한다. <제정‘19.2.20> 제33조 (증빙서류의 작성) 증빙서류는 다음 각 호에 의하여 작성하여야 한다.<제정‘19.2.20> 1. 지출결의서 가. 지출결의서의 지출금액은 정정하지 못한다. 나. 적요란에는 지급의 뜻, 공사명, 품명 및 수량, 산출내역, 부분급 내용과 지급 회수, 선급금 및 개산금의 표시 등 필요한 사항을 명기하여야 한다. 2. 영수증 가. 정당한 채권자가 지출결의서의 영수란에 기명날인하거나 합계금액의 정정이 없는 별지 영수증에 기명날인한 것이어야 하며, 예금계좌 또는 우편대체로 청구할 경우에는 각 기관이 발행하는 입금증명서를 영수증서로 본다. 나. 업무추진비의 경우 부득이한 사유로 인하여 영수증을 청구하지 못하는 때에는 지급증으로 갈음할 수 있다. 다. 접대성 경비는 신용카드 사용을 원칙으로 한다. 다만, 신용카드를 사용하지 않는 업체는 금전등록기에 의한 영수증으로 한다. 라. 기타벽지·오지 등 특별한 지역에서의 사용이 부득이 할 경우 간이계산서로 영수증을 대체할 수 있다. 3. 청구서 가. 청구서의 합계금액은 정정하지 못하며 그 명세는 계약서 등 다른 관계 서류의 명세와 일치하여야 한다. 4. 계약서 가. 계약서의 합계금액은 정정하지 못한다. 나. 계약서와 그 부속서류는 그 내용이 서로 부합되어야 한다. 5. 대조필 가. 급여대장·인부사역부 등 지출에 필요한 증빙서류를 첨부하기 곤란한 경우에는 지출결의서의 적요란에 대조필로써 갈음할 수 있다. 나. 대조된 서류는 증빙서에 준하여 보관·보존한다. 6. 부기증명 증빙서류의 부기증명을 요하는 사항은 관계증빙서류의 여백에 주기하고 날인한다. 7. 기타 증빙서류 기타 증빙서류의 작성에 관하여 필요한 사항은 회장이 정하는 바에 의한다.제 3 장 금전회계 <개정‘19.2.20>
제34조 (금전의 범위) <제정‘19.2.20> ① 이 규정에서 금전이라 함은 현금, 예금, 수표 및 우편환증서를 말한다. ② 당일로 현금화할 수 있는 현금대용증권 등도 금전에 준하여 취급한다. 제35조 (금전출납수임자의 책임) <제정‘19.2.20> ① 금전출납수임자는 금전의 출납 및 취급증에 있는 금전의 수불보관에 관하여 일체의 책임을 진다. ② 금전출납수임자는 그 취급하는 금전에 관하여 수납금과 지급금을 엄밀히 구분하고 다른 목적을 위하여 유용하거나 상계하지 못한다. 제36조 (입금과 지급) <제정‘19.2.20> ① 모든 입금액은 원칙적으로 은행에 예금하여야 한다. 다만, 수익증대를 위하여 필요한 경우에는 은행이외의 금융기관에 예치할 수 있다. ② 모든 지급은 수표에 의하여 수취인별로 함을 원칙으로 한다. 다만, 전도자금, 소액지급, 급여, 여비와 같이 특별한 경비의 경우에는 예외로 할 수 있다. 제37조 (수표 및 어음행위) <제정‘19.2.20> ① 수표 또는 어음행위는 회장의 명의로 한다. 다만, 회장이 위임한 경우에는 그 위임을 받는 자의 명의로 행할 수 있다. ② 수표 및 어음의 금액은 정정할 수 없으며 오기 등 사유로 인하여 무효 또는 폐기된 수표 및 어음은 수표첩 또는 어음첩에 첨부하여 보존하는 것을 원칙으로 한다. 제38조 (퇴직급여충당금의 운용) <제정‘19.2.20> ① 협회 임직원의 퇴직금 지급능력의 확보와 복리후생지원을 위한 퇴직급여충당금액에 해당하는 지급(이하 퇴직급여충당금이라 한다)은 별도로 관리운용할 수 있다. ② 제1항에 의한 퇴직급여충당금은 다음 각호의 방법에 따라 운용하여야 한다. 1. 은행법에 의한 금융기관 및 체신관서에의 예입 또는 신탁 2. 국채, 공채 또는 상장유가증권의 매입 3. 증권투자신탁법에 의한 수익증권의 매입 4. 단기금융회사 발행 보증어음 매입 5. 임직원에 대한 퇴직금 지급 6. 비연고지근무 임직원에 대한 주택임차보증금 대여 7. 임직원 또는 임직원의 자녀에 대한 학자금대여(이 경우 일정률의 이자를 받되 이자율은 회장이 정한다) 8. 기타 임직원의 복리후생을 위해 이사회 심의를 거쳐 문화체육관광부장관의 승인을 얻는 방법 ③ 퇴직급여충당금의 운용에 따라 발생하는 이자는 퇴직급여충당금으로 계상할 수 있다. ④ 제2항 제6호 및 제7호의 사업은 퇴직급여충당금의 100분의 50 범위 내에서 운용하여야 한다. 제39조 (지출원인행위의 준칙) 지출원인행위는 배정된 예산범위 내에서 하여야 한다. 다만, 특별한 경우에는 보조결정액범위 내에서 할 수 있다.<제정‘19.2.20> 제40조 (지출원인행위서의 작성) <제정‘19.2.20> ① 지출원인행위를 할 때에는 지출원인행위서를 작성하여야 한다. 다만, 지출원인행위서에 의하기 곤란한 경우에는 내부결재 문서로써 갈음할 수 있다. ② 비용예산 중 다음 각 호의 경비는 지출원인행위서 작성을 생략할 수 있다. 1. 제세공과금, 인건비, 여비, 협회비, 정보비 2. 법령, 규정 등 일정한 기준에 의한 경비 3. 기타 정례적인 확정경비 제41조 (지출원인행위의 증감취소) 지출원인행위자는 계약의 해체, 계약금의 변경, 기타 업무상의 착오 등으로 인하여 그 지출원인행위액을 취소하거나 증감하고자 할 때에는 당초의 지출원인행위를 소급하여 취소 또는 정정하지 아니하고 다음 각 호에 의하여 처리한다.<제정‘19.2.20> 1. 지출원인행위액을 증액할 경우에는 추가지출결의서를 작성하여야 한다. 2. 지출원인행위액을 취소 또는 감하고자 할 때에는 취소, 정정 등의 내용을 포함하는 수정전표를 작성하여 처리하고 당초의 지출결의서 여백에 이를 추가한 뒤 책임자가 날인하여야 한다. 제42조 (지출원인행위 서류의 송부) 지출원인행위자는 지출원인행위가 끝나면 지출원인행위 관계서류를 지출원에게 송부하여야 한다. <제정‘19.2.20> 제43조 (지출원인행위 서류의 심사) <제정‘19.2.20> ① 지출원은 지출원인행위자로부터 지출원인행위 관계서류를 받았을 때에는 이를 심사하여야 한다. ② 제1항의 심사결과 부적정한 때에는 관계서류를 지출원인행위자에게 반환하여 그 시정을 요구하여야 한다. 제44조 (지출증빙서의 검사보고) 회장은 지출업무의 적정을 유지하기 위하여 수시로 지출에 관한 증빙서를 검사하게 할 수 있다.<제정‘19.2.20> 제45조 (자금의 집중) 각 부서의 장은 발생된 수익금을 지체없이 회계부서 구좌에 입금조치하고 그 내역을 회계담당부서에 통보하여야 한다.<제정‘19.2.20> 제46조 (자금의 전도) <제정‘19.2.20> ① 회장은 업무의 성질상 현금으로 지급하지 아니하면 업무수행에 지장을 초래할 우려가 있는 경우에 한하여 자금을 전도할 수 있다. ② 전도금을 교부한 때에는 가지급금으로 처리하고 전도금 취급담당자의 정산보고에 따라 가지급금을 정리하여야 한다. ③ 전도자금의 범위, 교부 및 집행방법, 정산절차 등은 회장이 따로 정한다. 제47조 (신용카드의 사용) 사업추진의 편의를 위하여 신용카드를 사용하여 지출할 수 있며, 이에 관한 사용방법 등은 별도로 정한다.<제정‘19.2.20> 제48조 (선급금과 개산금의 지급) <제정‘19.2.20> ① 지출원은 업무의 성질상 필요하다고 인정된 경우에 한하여 선급금 또는 개산금을 지급할 수 있다. ② 지출원은 선급금 또는 개산금의 지급에 따른 업무가 완료되면 지체없이 정산하고 선급금 또는 개산금을 정리하여야 한다. 제49조 (선급금 지급의 범위) <제정‘19.2.20> ① 선급금을 지급할 수 있는 범위는 다음 각 호와 같다. 1. 외국에서 직접 구입하는 기계·도서·표본 또는 실험용 재료의 대가 2. 정기간행물의 대가 3. 토지 또는 건물의 임차료와 용선료 4. 운임 5. 보수지급일에 전출·출장 또는 휴가를 받은 자에게 지급하는 제급여 6. 국가기관 및 지방자치단체와 정부투자기관 관리법에 의한 정부투자기관에 대하여 지급하는 경비 7. 외국에서 연구·연수 또는 조사에 종사하는 자에 대하여 지급하는 제급여 8. 금융기관의 예금계좌를 통한 급여지급을 위하여 금융기관에 입금하는 급여 9. 업무 등의 위탁에 필요한 경비 및 사례금 10. 협회가 매수하거나 수용하는 토지 또는 그 토지상에 있는 물건의 대금·보상금 또는 이전료 11. 계약금액이 3천만원이상인 공사 또는 제조와 계약금액이 5백만원이상인 용역에 있어서 계약금액의 100분의 70을 초과하지 아니하는 금액 12. 협회가 초청한 외국인에게 국내에서 지급하는 경비 13. 계약상대자가 관공서 또는 다른 정부투자기관인 경우로 불가피하다고 인정할 경우의 검사전 대가 14. 기타 회장이 기준을 정하여 인정하는 경비 ② 제1항 제11호의 규정에 의한 선급금 지급에 있어서는 계약체결 후 계약대상자의 청구를 받은 날로부터 20일 이내에 지급해야 한다. 다만, 불가피한 사유로 지급이 불가능하여 그 사유를 계약상대자에게 문서로써 통지한 경우에는 그러하지 아니 한다. 제50조 (개산금의 지급범위) 개산금을 지급할 수 있는 범위는 다음 각 호와 같다. <제정‘19.2.20> 1. 여비, 업무추진비 및 부서운영비 2. 국가기관 또는 정부투자기관에 대하여 지급하는 경비 3. 협회의 복지후생관계 규정에 의하여 지급하는 요양비 4. 사전 지출이 필요하다고 회장이 인정하는 행사성 경비 및 현지사업비 5. 기타 회장이 정하는 경비4 장 자산 및 물품관리 <제정‘19.2.20>
제 1 절 통 칙 제51조 (자산의 구분) <제정‘19.2.20> ① 자산은 유동자산, 고정자산, 이연자산, 투자와 기타 자산 외 부외자산으로 구분한다. ② 자산은 업무용 자산과 비업무용 자산으로 구분하여 관리하여야 한다. ③ 유동자산이라 함은 현금과 예금, 받을어음 등의 채권, 시장성있는 일시소유의 유가증권, 기타 1년내에 기한이 도래하는 채권과 1년내에 비용으로 되는 선급비용 등을 말한다. ④ 부외자산이라 함은 현실적으로 사용 또는 점유하고 있으나 증여·잉여 또는 수익적 지출로 처리되어 대차대조표 자산의 부에 계상되어 있지 아니한 자산을 말한다. 제52조 (관리기준의 제정) <제정‘19.2.20> ① 회장은 고정자산으로 취득·관리하여야 할 품목과 기준을 정하여야 한다. ② 회장은 자산 중 필요한 것에 대하여는 정수(T/E)와 소모기준을 정하여 운용할 수 있다. 제53조 (관리보고) <제정‘19.2.20> ① 물품관리원은 매년 6월 30일 현재의 자산에 대한 상태를 파악하여 과부족 및 망실훼손, 성능저하 등 변동사항에 대한 관리보고서를 8월 31일까지 회장에게 보고하여야 한다. ② 물품관리원은 자산의 변동 및 증감사항을 반기별로 회장에게 보고하여야 한다. 제54조 (관리대장) 자산 및 물품의 관리를 위하여 자산별 관리대장을 비치하고, 취득·처분·교환 등의 내용을 발생순으로 기장 정리하여야 한다.<제정‘19.2.20> 제 2 절 고정자산 제55조 (고정자산의 범위) 고정자산이라 함은 제15조에서 정하는 계정과목 중 유형고정자산, 무형고정자산에 속하는 과목으로 정리되는 각종 자산을 말한다. <제정‘19.2.20> 제56조 (건설가계정) 고정자산의 취득 또는 개선의 목적으로 지급하는 일체의 비용은 건설가계정에서 정리하며, 그의 인수 또는 준공으로 사용개시하였을 때에는 지체없이 해당 계정과목에 대체 정리하여야 한다.<제정‘19.2.20> 제57조 (취득가액) 고정자산의 취득가액은 다음 각 호에 의한다. 다만, 재평가를 실시한 재산은 재평가액에 의한다.<제정‘19.2.20> 1. 공사 또는 제조에 의한 것은 그 투입된 원가 2. 매입에 의한 것은 그 매입가액과 부대비 3. 무상으로 취득한 것은 그 시가 이외의 평가액 4. 교환에 의한 것은 양도자산의 장부가액에 교환차액 및 부대비용을 가감한 잔액 제58조 (감가상각의 범위) <제정‘19.2.20> ① 모든 고정자산은 감가상각을 하여야 한다. 다만, 비상각자산과 대체자산은 제외한다. ② 제1항의 비상각자산은 토지, 전신전화가입권, 건설중의 자산, 투자자산, 입목 등을 말하며 대체자산은 전신, 도관 등으로 한다. 제59조 (감가상각의 실시) 감가상각의 실시시기는 회계연도말을 기준으로 한다. <제정‘19.2.20> 제60조 (신규취득자산의 상각) 연도중에 취득한 고정자산에 대한 상각은 월한상각으로 한다. 다만, 취득 후 2월을 경과하지 아니한 경우에는 당해연도의 감가상각은 하지 아니할 수 있다.<제정‘19.2.20> 제61조 (매도계약 체결후의 상각) 매도계약을 체결한 고정자산에 대하여는 감가상각하지아니할 수 있다.<제정‘19.2.20> 제62조 (법인세법의 준용) 고정자산의 감가상각방법, 내용년수, 상각율 등 감가상각에 관한 사항은 법인세법이 정하는 바에 의한다. 다만, 법인세법이 정하는 바가 없거나 동법에 의하기 곤란한 경우에는 회장이 따로 정하여 시행할 수 있다.<제정‘19.2.20> 제63조 (비용처리) <제정‘19.2.20> ① 다음 각 호에 해당하는 것을 제외하고 감가상각자산으로서 그 취득가액에 거래단위별로 100만원미만인 것에 대하여는 당해 사업년도의 비용으로 처리할 수 있다. 1. 그 고유업무의 성질상 대량으로 보유하는 자산 2. 그 사업의 개시 또는 확장을 위하여 취득한 자산 제64조 (제각, 매각 및 대여) 고정자산을 폐기, 제각, 매각, 기증, 대여 또는 용도변경을 하고자 할 때는 회장의 승인을 얻어야 한다.<제정‘19.2.20> 제 3 절 부외자산 제65조 (부외자산의 범위) <제정‘19.2.20> ① 부외자산은 성질상 당연히 자산으로 취급되어야 하거나 자산으로 관리할 가치가 있는 자산이 대차대조표의 자산의 부에 계상되지 아니한 자산을 말한다. ② 실질적으로 사용하고 있으나 소유권이 타인에게 속해 있는 임차자산, 담보자산, 국유재산 등은 부외재산에 준하여 관리한다. 제66조 (부외자산의 자산등재) <제정‘19.2.20> ① 부외자산을 자산에 등재하는 경우의 등재가액은 취득가액 또는 평가액으로 한다. 이 경우 등재가액은 사업외 수입으로 계상한다. ② 감가상각이 완료된 자산에서 제각된 자산으로 잔존가액을 배분할 수 없는 자산은 적절한 평가에 따라 자산에 등재할 수 있다. 이 경우 평가이익은 사업외 수입으로 계상한다. ③ 기증, 증여 등에 의하여 무상으로 취득한 자산은 적절한 평가를 하여 자산으로 등재할 수 있다. 이 경우 고정자산 또는 특정저장품에 등재한 가액은 기타 자본잉여금으로 계상한다. ④ 수익적 지출에 의하여 비용처리된 자산으로서 사용 후 반납된 것은 그 상태를 감안하여 재생 후 재입고시키거나 폐기처리하여야 한다. 이 경우 재활용의 가치가 있는 것은 재생 후 그 상태에 따른 평가액을 입고가액으로 할 수 있으며 평가액에서 재생비용을 공제한 가액을 평가이익으로 하고 이를 사업외 수입으로 계상한다. 제67조 (임차자산 등의 관리) 임차자산 등 타인의 소유에 속하는 자산은 원상을 유지할 수 있도록 관리하여야 하며 유지에 지출된 비용은 그 자산의 용도에 따라 사업비용 또는 사업외 비용으로 계상한다.<제정‘19.2.20> 제68조 (비망등재가액) 관리대장에 등재할 가액을 적절히 평가하기 곤란한 경우에는 비망가액을 한다. 이 경우 비망가액은 100원으로 한다.<제정‘19.2.20>제 5 장 계 약 <제정‘19.2.20>
제69조 (계약의 원칙) 계약은 상호대등한 입장에서 당사자간의 합의에 따라 체결하여야 하며, 체결된 계약은 상호 신의성실의 원칙에 따라 이를 행한다.<제정‘19.2.20> 제70조 (계약의 방법) 협회의 공사와 물품제조, 도급에 관한 재계약 및 기타의 계약업무는 공고하여 일반경쟁에 부쳐야 한다. 다만, 계약의 목적, 성질, 특정인의 기술, 용역설비 또는 특정한 위치, 구조, 품질, 가격조건, 긴급성 등 일반경쟁입찰방법으로 소기의 사업목적을 달성할 수 없다고 판단될 때에는 지명경쟁입찰, 제한경쟁입찰 또는 수의계약에 의할 수 있다.<제정‘19.2.20> 제71조 (감독 및 검사) 회장 또는 그 위임을 받은 자는 공사, 제조, 기타 도급계약을 체결한 경우 그 계약의 적정한 이행을 확인하기 위하여 필요하다고 인정할 경우 스스로 이를 감독 및 검사하고, 전문적인 지식이 필요한 경우 전문기관을 따로 지정하거나 소관사업부서의 전문가에게 그 사무를 위임하여 감독 및 검사를 하게 하여야 한다. <제정‘19.2.20> 제72조 (대가의 지급) <제정‘19.2.20> ① 회장 또는 그 위임을 받은 자는 공사, 제조, 매입, 기타 지출의 원인이 되는 계약의 경우 제71조의 규정에 의한 검사를 완료한 후 계약상대자의 청구를 받는 날로부터 20일이내에 대가를 지급하여야 한다. 다만, 계약상대자와 합의에 의한 경우에는 대가의 지급기간을 연장할 수 있다. ② 계약상 부분금을 지급하여야 할 경우 계약수량, 이행의 전망, 이행기간 등을 참작하여 적어도 90일마다 공평하게 지급하여야 한다. 제73조 (선급금의 지급 등) 선급금 또는 개산금을 지급하지 아니하면 사업 또는 사무수행에 지장을 초래할 우려가 있을 경우에 선급금 또는 개산금을 지급할 수 있다. <제정‘19.2.20> 제74조 (계약의 특례) <제정‘19.2.20> ① 회장 또는 그 위임을 받는 자는 임대차, 운송, 보관, 기타 그 성질상 중단할 수 없는 사항에 대해 회계연도 개시전에 해당 연도의 확정된 예산의 범위 안에서 미리 계약을 체결할 수 있다. ② 임대차, 운송, 전기, 가스, 수도의 공급 기타 그 성질상 수년간 계속하여 존속할 필요가 있거나 이행에 수년을 요하는 사항은 장기 계속 계약을 체결할 수 있다. 이 경우에는 각 회계연도 예산의 범위 안에서 당해 계약을 이행하게 하여야 한다. ③ 일정기간 계속하여 제조, 수리, 가공, 매매공급, 사용을 할 필요가 있을 때에는 당해연도의 예산 범위 안에서 단가에 대하여 계약을 체결할 수 있다. 제75조 (계약사무처리규칙) 계약사무처리에 관한 세부사항은 회장이 별도로 정한다. <제정‘19.2.20>제 6 장 원가계산<제정‘19.2.20>
제76조 (원가의 정의) 이 규정에서 원가라 함은 상품 및 기념품 등의 제조와 매입과 판매를 위하여 소비한 경제가치를 말한다.<제정‘19.2.20> 제77조 (원가계산의 실시) 협회의 보통재산의 운영능률증진과 적정한 손익계산의 기초로서 원가계산을 실시하여야 한다.<제정‘19.2.20> 제78조 (원가의 구분) 원가는 다음과 같이 구분 계산한다.<제정‘19.2.20> 1. 상품, 기념품 등의 원가(상품, 기념품 등의 제조와 매입활동에 의하여 발생하는 비용) 2. 판매비(상품, 기념품 등의 판매활동에 수반하여 직접, 간접으로 발생하는 비용) 3. 관리비(장애인체육회 운영전반을 관리하는 사무국과 관련하여 발생하는 비용) 제79조 (원가계산방법) 원가계산은 원칙적으로 요소별, 부문별 및 상품과 기념품등 별로 계산한다.<제정‘19.2.20> 제80조 (원가계산의 기간) 원가계산은 가급적 최단기간 내에 하여야 하며 6월을 초과할 수 없다. 다만, 그 성질에 따라 회장이 기간을 조정할 수 있다.<제정‘19.2.20> 제81조 (원가계산의 실시단위) 원가계산의 실시단위는 다음과 같다.<제정‘19.2.20> 1. 물품의 특수성, 기술 등으로 인하여 각 부서에서 구매하지 아니하면 곤란하다고 인정되는 경우에는 각 소관사무부서 회계책임자 2. 총원가계산은 재무원 제82조 (원가계산과 회계정리) 원가계산과 회계의 제계정과는 항상 유기적인 관련을 유지하여야 한다. <제정‘19.2.20>제 7 장 예 산<제정‘19.2.20>
제83조 (예산의 구분) <제정‘19.2.20> ① 예산은 수입예산과 지출예산으로 구분한다. ② 수입예산은 그 내용을 회계별 성질별로 관, 항, 세항, 목으로 구분하고 지출예산은 그 내용을 회계별·기능별 또는 성질별로 관, 항, 세항, 목으로 구분한다. 제84조 (기간) 예산기간은 회계연도와 동일하게 하고 이를 연기예산으로 편성한다. 다만, 사업의 특수성으로 1회계년도에 사업을 완료하지 못할 경우에는 계속사업으로 예산을 편성할 수 있다.<제정‘19.2.20> 제85조 (예산통제의 시점) 수입예산은 현금이 수납된 시점에 의하고, 지출예산은 지출원인행위를 기준으로 본다.<제정‘19.2.20> 제86조 (예산편성) 예산은 다음의 정하는 바에 따라 편성하여야 한다.<제정‘19.2.20> 1. 정부의 예산편성지침이 정하는 사항 2. 당해 연도의 사업계획 3. 자체편성기준 제87조 (예산안편성지침 및 예산안작성제출) <제정‘19.2.20> ① 예산담당부서의 장(이하 예산관리자라 한다)은 제86조의 규정에 따라 예산안편성지침을 관련직원에게 시달하여야 한다. ② 사무국장은 제1항의 예산안편성지침에 따라 매 회계연도에 속하는 수입, 지출예산, 계속비, 명시이월비, 채무부담행위요구서를 작성하여 예산관리자에게 제출하여야 한다. ③ 예산관리자는 각 부서로부터 제출된 예산안을 검토, 조정하여 종합예산안을 작성 이사회의 의결을 거친 후 대한장애인체육회장에게 제출하여 그 승인을 얻어야 한다. 제88조 (예산의 총괄과 운용) 예산관리자는 당해 연도 예산의 집행안을 수립하여 분기별로 이를 배정하고 분기별 예산집행실적을 심사분석한다.<제정‘19.2.20> 제89조 (예산집행) <제정‘19.2.20> ① 예산의 집행은 사업계획의 범위 내에서 이를 집행한다. ② 예산의 집행은 사무국장을 소관예산집행의 책임자로 한다. 제90조 (예산의 이용) 사무국장은 사업계획의 변경이나 집행상 불가피한 사유로 각 항간의 예산을 전용하고자 할 때는 미리 그 금액과 사유 및 전용으로 인한 효과 등을 명백히 하여 이사회의 의결을 얻어야 한다. 다만, 경미한 사업계획이나 동일 목 내부 간에서는 회장의 승인으로 전용할 수 있다.<제정‘19.2.20> 제91조 (예비비) <제정‘19.2.20> ① 예측할 수 없는 예산외의 지출 또는 예산초과지출에 충당하기 위하여 예비비를 계상할 수 있다. ② 예비비를 사용하고자 할 때는 미리 그 사용이유 및 금액을 명시한 조서를 작성하여 회장의 승인을 얻어야 한다. 제92조 (일반자체회계) 일반자체회계에 대한 예산편성, 지침, 운영, 집행에 관한 사항은 별도의 규정을 마련하여 운용한다.<제정‘19.2.20> 제93조 (추가경정예산) 예산이 확정된 후에 생긴 사업계획의 변동, 기타 불가피한 사유로 인하여 이미 성립된 예산에 변경을 가할 필요가 있을 때에는 추가경정예산을 편성할 수 있다.<제정‘19.2.20> 제94조 (예산의 이월) 예산은 다음 연도에 이월하여 사용할 수 없다. 다만, 공사·제조 또는 구매 중에 있는 자본예산은 이사회의 의결을 얻어야 한다.<제정‘19.2.20> 제95조 (명시이월비) 지출예산 중 경비의 성질상 연도 내에 그 지출을 필하지 못할 것이 예측될 때에는 특히, 그 취지를 수입, 지출예산에 명시하여 미리 이사회의 승인을 얻어 다음 연도에 이월하여 사용할 수 있다.<제정‘19.2.20> 제96조 (지출예산의 이월) <제정‘19.2.20> ① 매 회계연도의 지출예산은 다음 연도에 이월하여 사용할 수 없다. 다만, 지출예산중 명시이월비의 금액 또는 연도내에 지출원인행위를 하고 불가피한 사유로 인하여 연도말까지 지출하지 못한 경비와 지출원인행위를 하지 아니한 그 부대경비의 금액은 다음 연도에 이월하여 사용할 수 있다. ② 제1항 단서의 규정에 의하여 지출예산을 이월한 때에는 그 이월하는 과목별 금액은 이월예산으로 배정된 것으로 본다. 제97조 (준예산)<제정‘19.2.20> ① 회장은 천재지변, 기타 부득이한 사유로 회계연도 개시전까지 예산안이 확정되지 못한 때에는 예산이 확정될 때까지 전년도 예산에 준하여 준예산을 편성, 집행할 수 있다. ② 준예산은 당해 연도의 예산이 확정된 경우에는 그 효력을 잃는다. 이 경우 준예산에 의하여 집행된 예산은 이를 당해연도의 예산에 의해 집행된 것으로 본다. 제98조 (초과예산의 수입과 지출)<제정‘19.2.20> ① 용역 및 시설을 제공하여 발생하는 수입과 관련되는 경비로서 다음 각호의 경비(이하 수입대체경비라 한다)와 사용처가 명시된 초과예산 수입금에 있어서는 그 수입이 확보되는 범위 안에서 직접 지출할 수 있다. 다만, 수입이 예산을 초과하거나 초과할 것이 예상되는 경우에는 그 초과수입을 당해 초과수입에 직접 관련되는 경비 및 이에 수반되는 경비에 초과 지출할 수 있다. 1. 협회가 특별한 역무 또는 시설을 제공하고 그 제공을 받은 자로부터 비용을 징수하는 경우의 당해 경비 2. 수입의 범위 안에서 관련경비의 총액을 지출할 수 있는 경우의 당해 경비 ② 초과예산의 수입 및 지출내역과 제1항 단서의 규정에 의하여 예산을 초과하여 수입대체경비를 지출하고자 하는 때에는 그 이유 및 금액을 명시한 명세서를 대한장애인체육회장에게 보고하여야 한다. ③ 제1항 단서의 규정에 의한 초과지출경비에는 기획재정부장관이 정하는 보상적 경비 등 간접적인 경비를 포함할 수 있다.제 8 장 결 산<제정‘19.2.20>
제99조 (결산)<제정‘19.2.20> ① 결산은 당해연도의 운영성과와 재무상태를 명확히 파악할 수 있도록 명료하게 하여야 한다. ② 결산은 회계연도 말을 기준으로 하여 실시한다. 제100조 (결산정리)<제정‘19.2.20> ① 결산에 앞서 자산, 부채 및 자본과 수지에 관련되는 항목 중 결산에 필요한 사항을 정리하여야 한다. ② 결산시에는 연도이월이 불가피한 사항을 제외하고는 모든 미결산계정을 정리하여야 한다. 제101조 (결산시행)<제정‘19.2.20> ① 결산은 각 회계단위별로 실시하여 회계연도 종료 후 15일 이내에 결산에 필요한 제서류를 작성하여 결산총괄부서에 이를 제출하여야 한다. ② 결산총괄 책임자는 각 회계별 결산보고서를 총괄한 결산보고서를 작성하여야 하며, 다음 각 호의 사항을 명시하여야 한다. 1. 사업계획 대 실적보고서 2. 수입명세서 및 지출명세서 3. 자산명세서 4. 기타 부속명세서 제102조 (결산서 제출)<제정‘19.2.20> ① 회장은 감사의 감사를 거친 세입·세출 결산서를 회계연도 종료 후 이사회 개최전에 제출하여야 한다. ② 회장은 제1항의 이사회의 의결을 거친 후 세입·세출 결산서를 총회에 제출하여 승인을 얻어야 하며, 그 기한은 회계연도 종료 후 1월 이내로 한다. ③ 제2항에 의하여 총회의 승인을 얻은 후 대한장애인체육회장에게 보고하여야 한다. 1. 사업계획 대 실적 보고서 2. 수입명세서 및 지출명세서 3. 자산명세서 4. 기타 부속명세서 제103조 (자산계산기록의 수정)협회가 소유하고 있는 자산의 현재가치를 명확히 표시하기 위하여 채권가액의 확정 등 자산계산에 필요한 수정을 하여야 한다. <제정‘19.2.20> 제104조 (부채계산기록의 수정)협회가 변제하여야 할 부채의 현재 총가액을 명확히 표시하기 위하여 채무의 확정, 외화부채 등의 평가, 부채성 충당금의 정리, 기타 부채계산에 필요한 수정을 하여 부채의 과소 또는 과대표시를 하지 아니하여야 한다. <제정‘19.2.20> 제105조 (퇴직급여 충당금과 특별수선 충당금 등)퇴직급여 충당금과 특별수선 충당금 등은 결산일 현재 실질적으로 발생하거나 소요될 총액으로 하며, 그 결산의 기준과 절차를 달리하여서는 아니 된다. 다만, 그 충당금이 미달할 경우 부족액을 다음 연도 예산에 추가로 계상하여야 한다.<제정‘19.2.20> 제106조 (대손충당금)외상매출금, 대여금, 기타 이에 준하는 경상적인 사업거래에서 발생하는 채권에 대하여는 일정한 비율을 정하여 대손충당금으로 계상하여야 한다. <제정‘19.2.20> 제107조 (결손처리)결산정리에 따라 결손처리하여야 할 사항이 발생하는 경우에는 회장의 승인을 얻어 사업외 비용 또는 특별손실로 계상한다.<제정‘19.2.20> 제108조 (잉여금의 처리)당기말 미처분잉여금의 처분은 이사회의 의결을 거쳐 다음의 순으로 처리한다.<제정‘19.2.20> 1. 이월결손금의 보전 2. 다음 연도 목적사업 운영비용으로의 이월 3. 기금적립금 4. 기본재산 편입 보 칙 제109조(시행세칙)이 규정의 시행에 필요한 세부세칙은 회장이 따로 정한다. 부 칙 제110조(시행일)본 규정의 제정은 이사회에서 승인한 2012년 6월 27일부터 유효하다. 부 칙 제1조 (시행일)이 규정은 이사회 승인을 받은 날부터 시행한다.2020. 09. 28. 제정
제1조(목적) 이 지침은 대한장애인배구협회(이하 “협회”라 한다) 업무추진비(자체 및 보조사업 예산)카드 사용 및 집행의 원칙과 기준을 정하여 예산집행의 적정성 확보와 효율성 제고를 목적으로 한다. 제2조(카드 사용기준) ① 업무추진비 카드 사용기준은 「민간단체 보조금의 관리에 관한 규정」을 준수하여야 한다. ② 카드 사용제한 업종은 별표 1과 같다. 다만, 사업 목적에 부합하는 경우에는 그러하지 아니한다. 제3조(업무추진비 사전기본결재) 업무추진비의 사용은 사전 기본결재가 원칙이며 다음 각호의 내용을 포함하여야 한다. 1. 목적(사업추진, 회의 등), 사유(구체적인 협의·회의 내용), 일시, 대상 등 2. 사용 예상금액, 참석인원, 1인당 지출액 등 제4조(업무추진비 집행액) 공식회의, 업무협의, 간담회 등에 사용하는 업무추진비는 가능한 한 참석자 1인당 30,000원 이내에서 집행하여야 한다. 다만, 행사 성격 등 불가피한 경우에는 증빙서류 등에 사유를 명시하여 집행할 수 있다. 제5조(업무추진비 전결금액 및 품의) ① 사전 기본결재는「위임전결내규」에 따른다. ② 집행품의시 사전 기본결재기안문, 카드전표, 사유서 등 증빙서류를 제출하여야 한다. ③ 업무추진내용 등 회의결과보고서에는 다음 각 호의 내용을 포함하여야 한다. 1. 회의명, 일시, 장소, 구체적인 협의․회의 내용, 참석인원 2. 예산과목, 총 지출액 ④ 업무추진비 집행 시에는 반드시 주된 상대방의 소속 및 성명을 증빙서류에 반드시 기재하여야 한다. 제6조(업무추진비 분할결재 금지) 업무추진비 결재 시 동일거래를 2회 이상 분할결재 할 수 없다. 제7조(업무추진비 사용시간 및 지역 제한) ① 특별한 경우를 제외하고 업무추진비 사용을 제한하는 경우는 다음의 각호와 같다. 1. 공휴일 및 휴무일 사용 제한 2. 22시 이후 사용 제한 3. 자택근처 사용제한 4. 관할구역을 현저하게 벗어난 원거리지역 사용제한 ② 제1항의 특별한 경우란 업무추진을 위하여 사용이 불가피하고 객관적 증명(출장, 사전 내부결재 등)이 가능한 경우를 말한다. ③ 객관적 증명이 없는 사용시간․지역 제한 등에 사용한 경우에는 사유서를 첨부하여야 한다. 제8조(사용카드 실명서명) 카드전표는 반드시 사용자의 실명으로 서명해야한다. 특히, 서명이 나타나지 않는 카드전표도 반드시 실명을 기재한다. 제9조(사적사용 및 개인카드 사용 금지) 업무추진비카드 사적사용 및 개인카드의 업무상 사용을 금지한다. 다만 불가피하게 사용한 경우에는 사용경위 소명 후 즉시 적합한 카드로 변경 결제하여야 한다. 제10조(관리책임) 업무추진비카드는 사무국 내 회계담당자 및 사용자의 책임 하에 사용․관리한다. 제11조(행정사항) ① 업무추진비카드를 사용한 경우에는 사용 즉시 품의를 완료하여야 한다. ② 연체에 따른 발생 연체금은 담당자가 자부담한다. ③ 카드전표를 분실 시에는 매출전표로 갈음할 수 있다. ④ 제2항, 제3항의 경우 위임전결 상 최고결재자의 결제를 득한 사유서를 첨부하여야 한다. ⑤ 업무추진비카드 분실 시에는 즉시 유선으로 카드사에 신고하고 부정사용이 없도록 하여야 하며, 별지 제2호 서식에 의거 분실기록을 남겨야 한다. 미신고나 지연 신고로 인하여 부정사용액이 발생할 경우 카드분실자는 그 책임을 져야한다. ⑥ 업무추진비카드를 사용하고자 하는 경우는 카드 사용대장(별지 제3호 서식)에 기록한다. 제12조(시정요구) 본 지침이 지켜지지 않을 경우 위임전결 상 회계처리 최고결재권자는 이에 대해 시정을 요구할 수 있으며 인사 및 성과급 지급 등에 반영할 수 있다. 제13조(해석) 본 지침은 민간단체 보조금의 관리에 관한 규정 및 보조사업비 정산지침에 따라 변경될 수 있으며, 명시되지 않은 사항은 관계법령에 따른다. 부 칙(2020. 09. 28.) 제1조(시행일) 이 지침은 2020년 09월 28일부터 시행한다.제 정 2007. 2. 3. 전면개정 2015. 2. 7. 개 정 2016. 8. 6. 개 정 2019. 10.8. 개 정 2022. 04. 25. 개 정 2024. 03. 08. 개 정 2024. 09. 27.
제1장 설치근거 및 명칭 제1조(설치근거 및 명칭) 본 법제상벌위원회는 대한장애인배구협회 정관 제36조에 의거하여 설치하는 위원회로써, 법제상벌위원회(이하위원회라 칭한다.)라 칭한다. 제2장 목적 및 기능 제2조(목적) 본 위원회는 본 협회와 관련되는 각종 규정의 제정, 개정과 효율적인 관리를 통하여 합리적인 운영을 도모하고, 장애인 배구 발전에 공적이 있는 단체 및 개인을 표창하고, 비위가 있는 단체 및 개인을 징계함으로써 건전한 체육풍토 조성을 위한 업무를 심의 검토하여 이사회의 자문에 응하는 데 그 목적이 있다. 제3조(기능) 본 위원회는 다음 각 호의 업무를 검토하고 심의한다. 1. 본 협회 제규정의 제정 및 개정에 관한 사항 2. 시․도지부 및 전국규모 연맹체 규정 승인 및 상벌에 관한 사항<개정 ’19.10.8.> 3. 각종 규정의 관리 및 유권해석에 관한 사항 4. 표창에 관한 사항 5. 징계에 관한 사항 6. 각종 단체의 체육상 추천에 관한 사항(단, 경기부문과 지도자 부문은 전문체육위원회에서 추천)<개정 ’19.10.8.> 7. 정부포상대상자 추천에 관한 사항 8. 그 밖에 목적 달성에 필요한 사항 제3장 위 원 제4조(조직) ①위원회는 다음의 위원으로 구성한다.<개정 ’19.10.8.> 1. 위원장 1인 2. 부위원장 1인 3. 위원 15인 이내(위원장, 부위원장 포함) ②위원회의 위원은 다음 각 호의 사람을 포함하여 구성한다.<신설‘24.09.27.> 1. 판사, 검사 또는 변호사의 직에 3년 이상 종사한 사람 2. 스포츠 또는 법률관련 분야 학문을 전공하고 대학이나 공인된 연구기관에서 3년 이상 근무한 사람 3. 스포츠분야에서 5년 이상 종사한 경력이 있는 사람 4. 장애인 관련 유관기관 및 단체에서 5년 이상 종사한 경력이 있는 사람 5. 인권 전문가로서 관련 분야에서 5년 이상 종사한 경력이 있는 사람 ③위원회의 위원을 구성 시 여성과 장애인선수 출신이 재적 위원수의 20%이상 포함 되도록 노력하여야 한다.<신설 ‘24.09.27.> ④위원 위촉 후보자는 위원회 심의 의결 과정에 이해 당사자가 부당하게 개입할 가능성을 최소화하기 위해 사전진단서 및 서약서를 제출하여야 한다.<신설 ‘24.09.27.> ⑤위원회에 간사 1인을 두며, 회장이 장애인배구협회 직원 중에서 지명한다.<개정 ‘24.09.27.> 제5조(임기) ①위원(위원장, 부위원장 포함)의 임기는 2년으로 하고, 연임할 수 있다. ②보선된 위원의 임기는 전임자의 잔여기간으로 한다.<개정 ’19.10.8.> 제6조(위원의 직무) ①위원장은 위원회를 대표하고 그 업무를 총괄한다. ②부위원장은 위원장을 보좌하고 위원장이 부득이한 사유로 직무를 수행할 수 없을 경우 그 직무를 대행한다. ③위원은 위원회를 구성하고 위원회에 출석하여 그 직무에 관한 사항을 의결한다. 제7조(위원의 위촉) ①위원(위원장, 부위원장 포함)은 회장이 추천한 자를 이사회에서 위촉한다. ②결원발생시 회장이 추천한 자를 위원회에서 위촉한다. 제8조(회의) ①위원회의 회의는 회장 또는 위원장의 요청에 따라 개최한다. ②위원회의 회의는 위원회에서 특별히 규정한 것을 제외하고는 재적위원 과반수의 출석으로 개회하고, 출석위원 과반수 찬성으로 의결한다. ③회의소집은 회의 개최 7일전까지 안건·일시 및 장소를 기재하여 서면(전자문서를 포함한다)으로 위원에게 통지하여야 한다. 다만, 긴급한 사유가 있을 때에는 그 기간을 단축할 수 있다.<신설 ‘24.09.27.> 제8조1(수당 등의 지급) 외부 위원에 대해서는 예산의 범위 안에서 수당, 기타 필요한 경지를 지급 할 수 있다.<신설 ’19.10.8. 개정 ‘24.09.27.> 제4장 표 창 제9조(종류) ①표창종류는 정부포상, 대한장애인체육회(이하 “장애인체육회”라 한다) 표창, 자체표창으로 구분한다. <개정 ’19.10.8.> ②정부포상은 상훈법 및 정부표창 규정에 따르며 자체표창도 대한장애인체육회 포상업무지침에 따른다. <신설 ’19.10.8> 제10조(절차) ①모든 표창은 단체장의 추천에 의하여 심의 결정하여야 한다. ②본 협회 임직원의 경우에는 직접 심의 결정 할 수 있다. ③특별한 경우에는 본 위원회가 정하는 절차에 따라 심의 결정 할 수 있다. 제11조(표창시기) ①표창의 시기는 정기표창과 임시표창으로 구분한다. ②정기 표창은 매년 1회 정기대의원 총회 개최일에 실시한다. ③임시표창은 특별이 필요할 때 본 위원회를 거쳐 이사회 결의에 따라 실시한다. ④단, 제11조3항에 관련하여 예외로 협회 사무국에서 필요시 회장 결제 하에 제9조 1호, 제9조 6호는 수여할 수 있다.〈신설 ‘16. 8. 6〉 제12조(구비서류) 표창을 추천 할 때에는 별지 서식의 추천자 명단과 공적조사서를 제출하여야 한다. 제5장 징 계 제13조(법제상벌위원회 설치의무) ①모든 징계업무를 관장처리하기 위하여 본 협회 및 시·도지부, 전국규모연맹체에서는 상벌위원회를 설치 운영(이하 "위원회" 라 한다)하여야 한다. ②시·도지부 및 전국규모연맹체. 법제상벌위원회가 심의 결정한 징계 사항은 본 위원회 이사회가 승인함으로써 효력이 발생한다. ③특별한 경우에는 본 위원회가 정하는 절차에 따라 심의 결정 할 수 있다. ④징계가 확정되면 시·도지부 및 전국규모연맹체는 즉시 본 협회에 문서로 승인을 받아야 한다. 제14조(증거우선의 원칙) 위원회는 징계를 할 경우 징계혐의자에 대하여는 그 혐의를 입증한 충분한 증거가 있을 때에만 징계하여야 한다. 제14조1(우선 징계처분) 위원회(장애인배구협회, 시·도지부, 가맹단체 상벌위원회를 포함한다)는 징계대상자에게 징계사유가 충분히 인정되는 경우에 한하여 관계된 형사사건이 유죄로 인정되지 않았거나, 수사기관이 이를 수사 중에 있다하여도 제21조 제2항에 따라 징계할 수 있다. <신설 ’19.10.8> 제15조(징계종류) ① 징계의 종류는 징계대상자의 신분에 따라 다음 각호와 같이 달리 구분한다.<개정 ’19.10.8., 개정 ‘24.3.8., 개정 ‘24.09.27.> 1. 선수에 대한 징계 가. 중징계: 출전정지, 자격정지, 제명 나. 경징계: 견책 2. 지도자에 대한 징계 가. 중징계: 출전정지, 자격정지, 해임, 제명 나. 경징계: 견책, 감봉(보수 또는 보수에 준하는 수당을 수령하는 지도자만 해당) 3. 심판에 대한 징계 가. 중징계: 출전정지, 자격정지, 강등, 해임, 제명 나. 경징계: 견책, 감봉(보수 또는 보수에 준하는 수당을 수령하는 심판만 해당) 4. 단체 임원 및 회원에 대한 징계 가. 중징계: 직무정지, 자격정지, 해임, 제명 나. 경징계: 견책, 감봉(보수 또는 보수에 준하는 수당을 수령하는 임원 및 임원만 해당) <2024.3.8.> 5. 선수(팀) 지원인력: 견책, 감봉(보수 또는 보수에 준하는 수당을 수령하는 자만 해당), 출전정지, 자격정지,해임, 제명<신설,‘‘24.09.27.> ② 제1항 각 호의 출전정지, 자격정지 이상의 징계를 받는 자는 징계 만료 시까지 관련한 모든 활동이 제한된다. <신설 ’19.10.8 개정 ‘24.3.8. 개정 ‘24.09.27.> ③ 제1항5호의‘선수 또는 팀 지원인력은’대한장애인체육회 및 가맹단체, 시도지회의 지원을 받아 선수 또는 팀을 지원하는 자로 트레이너, 파트너, 물리치료사, 매니저, 보조, 파일럿 등을 포함한다.<신설,‘24.09.27.> 제16조(조사 및 징계대상) ① 위원회는 다음 각 호의 경우에 징계 심사를 할 수 있다.〈개정‘16. 8. 6.,개정 ’19.10.8., 개정‘24.09.27.> <개정 ’19.10.8.> 1. 단체 및 대회운영과 관련한 금품수수, 횡령 배임, 회계부정, 직권 남용, 직무태만 등 비위의 사건 2. 폭력·성폭력 3. 승부조작, 편파판정 4. 음주운전, 음주소란 행위(강화 훈련 기간 중), 불법도박 <신설‘22. 04. 25.> 5. 체육인으로서의 품위를 훼손하는 경우 <개정‘22. 04. 25. 개정 ‘24.09.27.> 6. 인권침해, 괴롭힘 등<신설 2024.3.8. 개정‘24.09.27.> 7. 부정 참가, 대회진행 방해 등 각종 대회 중 발생한 대회 질서 문란 행위 <개정‘22. 0 4. 25. 개정 2024.3.8.> 8. 사업장에서 안전사고가 발생한 경우<신설 2024.3.8.> 9. 채용관련 비리<신설‘‘24.09.27.> 10. 체육관련 입학 비리<신설 ‘24.09.27.> 11. 선거관련 비리<신설‘24.09.27.> 12. 장애인배구협회 정관 및 규정을 준수하지 않은 경우 <개정‘22. 04. 25.,개정 2024.3.3.> 13. 기타 제1호부터 제12호까지의 규정에 준하는 사건 <개정‘22. 04. 25., 개정 2024.3.8., 개정‘24.09.27.> ② 위원회는 제1항 각 호와 관련하여 위법 또는 부당한 사실이 있다는 혐의가 있을 때에는 직접 조사 또는 장애인배구협회 감사 또는 사무국에 조사를 요청 할 수 있다.<개정 ’19.10.8.> ③ 제1항에도 불구하고 본 협회 사무국 직원에 대한 징계는 해당단체의 인사위원회에서 조치할 수 있다. <개정 ’19.10.8.,2024.3.8.> ④ 징계혐의자가 사임(사직), 임기만료, 미등록, 명예퇴직 등의 사유로 가맹단체, 시도지부에 소속되어 있지 않더라도 소속 당시 행한 비위행위에 관하여 징계할 수 있다. 〈신설‘16. 8. 6〉<개정 ’19.10.8.> 제16조1(징계요구) ① 장애인배구협회의 장은 제16조의 사유에 해당하는 경우 위원회의 의결로 구체적인 징계 수위를 정하여 해당단체에 징계의결을 요구할 수 있다. ② 이 경우 해당단체의 장은 장애인배구협회의 징계요구를 따라야 하며, 징계요구일로부터 3개월 이내에 징계처리 결과를 장애인배구협회에 보고하지 않을 경우에는 장애인배구협회는 직접 징계할 수 있다.<신설 ’19.10.8> 제16조2(징계시효) 제16조의2(징계시효) ① 위원회는 징계할 사유가 발생한 날로부터 3년(제26조제5항 각 호의 경우에는 10년)이 지나면 심의․의결하지 못한다. 단, 해당신고․접수일로부터 심의․의결 전일까지 기간은 제외한다. <신설 ’19.10.8> ② 제1항의 징계시효 만료 여부에 대한 입증 책임은 1차 징계결정기관에 있다. <신설 ’19.10.8> 제17조(징계기관분류) ①장애인체육회는 본 협회가 재심 후 의결한 징계사항(및 시,도장애인배구협회가 직접 징계하고 재심후 의결한 사항..삭제)에 대한 이의신청 기관이다.〈신설‘16. 8. 6., 개정‘24.09.27.〉 ② 시․도 장애인배구협회 및 시·군·구 장애인배구협회가 징계하고 재심 후 의결한 사항은 본 협회 및 시, 도지회가 이의신청 기관으로서 징계를 최종 결정한다.〈신설‘16. 8. 6., 개정 ‘24.09.27.〉 제18조(출석요구) ①위원회가 징계혐의자의 출석을 요구할 때에는 위원회 개최일 3일 전에 별지 제3호 서식에 따른 출석요구서가 징계혐의자에게 도달되도록 하여야 한다.<개정 ‘24.7.25.‘24.09.27.> ②징계혐의자에게 직접 송부하는 것이 주소불명 기타 사유로 곤란하다고 인정될 때에는 출석 요구서를 징계 혐의자 소속기관의 장에게 송부하여 교부하게 할 수 있다. ③위원회는 징계혐의자가 위원회에서의 진술을 위한 출석을 원하지 아니할 때에는 진술권 포기서를 제출하게 하여 이를 기록에 첨부하고 서면 기타 제반자료에 따라 징계 심사를 할 수 있다. ④징계혐의자가 정당한 사유서를 제출하지 아니한 때에는 출석을 원하지 아니하는 것으로 보아 그 사실을 기록에 명시하고 서면 기타 제반 자료에 따라 징계, 심사를 할 수 있다. ⑤징계혐의자가 출석통지서의 수령을 거부한 경우에는 위원회에서의 진술권을 포기한 것으로 본다. 다만, 징계혐의자는 출석통지서의 수령을 거부한 경우에는 위원회에 출석하여 진술 할 수 있다. 제19조(심문과 진술권) ①위원회는 징계혐의자에게 혐의내용에 관한 심문을 행하고 필요하다고 인정할 때에는 관계인의 출석을 요구하여 심문 할 수 있다. ②위원회는 징계혐의자에게 충분한 진술을 할 수 있는 기회를 부여하여야 하며, 징계혐의자는 서면 또는 구술로써 자기에게 이익이 되는 사실을 진술하거나 증거를 제출할 수 있다. ③징계혐의자는 증인의 심문을 신청할 수 있다. 이 경우에는 위원회는 그 채택여부를 결정하여야 한다. 제20조(제척 및 기피) 징계혐의자의 친족이거나 그 징계사유와 관계가 있는 자는 그 징계사건의 심사, 의결에 관여하지 못한다. 1. 심의 대상자가 친족(「민법」제777조에 의한 친족을 말한다)인 경우 2. 해당 심의 건과 관계가 있는 경우 3. 위원 본인과 직접적인 이해관계가 있는 경우 4. 그 밖에 공정을 기할 수 없는 타당한 사유가 있는 경우 ② 심의 대상자는 위원장, 부위원장 및 위원 중에서 불공정한 의결을 할 우려가 있다고 인정할 만한 타당한 사유가 있을 때에는 그 사실을 서면으로 밝히고 기피를 신청할 수 있다. <신설 ‘24.09.27.> ③ 위원장, 부위원장 또는 위원은 제1항에 해당하면 스스로 해당 심의 건의 심의·의결을 회피하여야 하며, 제2항에 해당하면 회피할 수 있다. <신설 ‘24.09.27.> ④ 제2항에 따른 기피신청이 있을 때에는 재적위원 과반수의 출석과 출석위원 과반수의 의결로 기피 여부를 결정한다. 이 경우 기피 신청을 받은 위원은 그 의결에 참여하지 못한다. <신설 ‘24.00.00.> 제21조(징계의 양정) ①위원회가 징계사건을 심사함에 있어서는 징계혐의자의 비위의 유형, 비위의 정도 및 과실의 경중과 평소의 행실, 공적, 적극행정, 뉘우치는 정도 또는 그 밖의 정상을 참작할 수 있다. <개정 ’19.10.8., 22.04.25., 개정 ‘24.09.27.> ② 위원회는 제16조 제1항 제1호부터 제13호(이에 준하는 위반행위를 포함한다)까지 해당하는 위법 또는 부당한 사실이 있다고 인정될 경우, 별표 1에 따라 징계한다. <신설 ’19.10.8.,개정 2024.3.8., ‘24.09.27.> ③ 위원회는 제16조제1항제7호(이에 준하는 위반행위를 포함한다)에 해당하는 위법 또는 부당한 사실이 있다고 인정될 때에는 별표 2에 따라 징계한다. <신설 ’19.10.8.,재정 2024.3.8.> ④ 위원회는 제16조제1항제8호(이에 준하는 위반행위를 포함한다)에 해당하는 경우 안전사고에 관한 임원문책규정에 따라 징계한다.<신설 2024.3.8.> ⑤위원회는 혐의자가 징계기간 내 동일 위반행위를 하였을 경우 2배 이상으로 가중하여 처분할 수 있다.<신설 ‘24.09.27.> ⑥위원회는 서로 관련이 없는 둘 이상의 비위가 경합될 경우 이 중 가장 무거운 혐의에 해당하는 징계 기간의 2분의 1까지 가중하여 처분할 수 있다. 단, 각 혐의에 대하여 합산한 징계의 기간을 초과할 수 없다,<신설‘24.09.27.> 제22조(징계의 통보) ①위원회가 징계를 심사하였을 경우 즉시 이를 문서로써 징계혐의자 및 그 소속단체의 장에게 통보하여야 한다. ②징계 통보서에는 징계 이유와 내용은 물론 징계재심사 및 이의신청 기한과 방법 등을 명시하여 통보하여야 한다. 제23조(재심사 요구) ①본 협회 위원회의 징계 심사결과에 이의가 있을 때에는 재심사 요구의 취지 및 이유와 입증 방법 등을 명시하여 재심사를 요구할 수 있다. 단, 재심사 요구 시 취지 및 이유와 입증방법에 대한 충분한 자료가 제출되지 않으면 재심의 요구를 기각할 수 있다. ②재심사 요구는 징계 통보서를 받은 날로부터 7일 이내에 하여야 한다. ③재심사 요구를 받은 위원회는 재심사 요구일로부터 30일 이내에 이 규정 제18조, 제19조, 제26조의 절차에 따라 재심사 하여야 한다.<개정 ’19.10.8> 제24조(이의신청) ①장애인배구협회 법제상벌위원회가 재심사하여 이사회에서 의결한 징계결과에 이의가 있을 때에는 대한장애인체육회 법제상벌위원회에 이의를 신청할 수 있다. 단, 장애인배구협회 법제상벌위원회에서 출석위원 전원의 찬성으로 의결되었거나, 해당단체 이사회의 2/3이상의 찬성으로 의결된 징계사항을 장애인체육회에 이의신청하였을 경우에는 이를 기각할 수 있다.<개정 ‘24.09.27.> ②이의신청을 할 때에는 이의신청의 취지 및 이유와 입증 방법 등을 명시하여 신청하여야 한다. ③이의신청은 장애인배구협회 법제상벌위원회의 재심사 결과 통보서를 받은 날로부터 7일 이내에 하여야 한다.<개정‘24.09.27.> ④대한장애인체육회 법제상벌위원회는 이의 신청을 받은 날로부터 60일 이내에 이 규정 제21조 내지 제24조의 절차에 따라 이의신청에 대한 심사를 하여 결정내용을 즉시 문서로써 징계를 심사한 대한장애인배구협회장 및 징계혐의자와 그 소속 단체의 장에게 통보하여야 한다.<개정 ‘24.09.27.>. ⑤이의신청에 대한 대한장애인체육회 법제상벌위원회의 결정은 최종결정이며, 그 즉시 효력이 발생한다.<개정 ’19.10.8., 개정 ‘24.09.27.> ⑥대한장애인체육회 법제상벌위원회는 대한장애인배구협회의 징계가 양정기준에 위배되거나 부당하다고 판단되는 경우에는 재심의를 결정하거나 대한장애인배구협회에 재심의하도록 요구할 수 있다. 이 경우, 대한장애인배구협회는 재심의를 통보받은 날로 부터 30일 내에 법제상벌위원회를 소집처리하여 그 결과를 보고해야 한다.<신설 ‘24.09.27.>
2. 단체 및 대회 운영과 관련한 횡령‧배임
3. 단체 및 대회 운영과 관련한 권한남용, 직무태만 등 비위의 사건(인사권 남용 및 채용 비리 사건, 각종 규정 위반행위, 지도자 지도 의무 위반 등 포함)
4. 승부조작, 편파판정(경기 내용 및 결과를 조작하거나, 경기 결과에 영향을 미치기 위해 고의로 일방에게 유리한 판정 등을 한 경우)
5. 채용관련 비리
6. 체육 관련 입학비리
7. 폭력
8. 성폭력(성추행, 성희롱 등 행위 중 매우 중대한 경우 포함)
9. 성추행 등 행위(“8항”에 해당하지 않는 성추행 등 행위)
10. 성희롱 등 행위(“8항”, “9항”에 해당하지 않는 성희롱 등 행위)
11. 인권 침해(정당한 휴식권, 학습권 등)
12. 괴롭힘(지위 또는 관계 등 우위를 이용하여 신체적‧정신적 고통을 주거나 근무환경을 악화시키는 행위)
13. 선거와 관련하여 부당한 영향력을 행사하거나 기타 선거결과에 영향을 미치는 행위
14. 음주운전, 강화훈련 기간 중 음주소란 행위
15. 불법도박
16. 사회적 물의를 일으켜 체육인의 품위를 훼손하는 경우 등 제1항부터 제15항에 준하는 비위행위
[별표 2] <신설 ‘19. 10. 8., 개정 ‘24.09.27.>
위반행위별 징계기준(제21조제2항 관련)
1. 일반기준
가. 징계의 정도에 있어 규정에서 별도로 정한 경우를 제외하고는 이 별표 기준에 따른다.
나. 징계기준은 다음과 같이 정의한다.
1) “징계 혐의가 인정되나 극히 경미한 경우”란 비위의 정도가 극히 약하고 경과실인 경우, 비위행위로 인하여 발생한 피해가 극히 경미한 경우를 말한다.
2) “경미한 경우”란 비위의 정도가 약하고 경과실인 경우, 피해액이 경미한 경우,비위행위로 인하여 발생한 피해가 경미한 경우를 말한다.
3) “중대한 경우”란 비위의 정도가 심하거나 고의가 있는 경우, 중과실인 경우, 비위행위로 인하여 발생한 피해가 중대한 경우를 말한다.
4) 단, “2. 개별기준”에 따라 징계 양정 시 아래 위반행위별 ‘주요 혐의내용(예시)’은 “중대한 경우”로 판단하여야 한다.
다. 위반행위를 불문하고 2회 위반자에 대해서는 해당 징계기준의 2배 이상 가중 처분하며, 3회 위반한 자에 대해서는 제명 또는 파면한다.
2. 개별기준
주1) 피해자가 제2조의 적용대상이 아닌 경우에는 위반행위“차”를 적용한다.
주2) “라. 폭력”, “사. 성희롱 등 행위” 중 “징계 혐의가 인정되나 극히 경미한 경우”는 언어적 혐의로서 고의성이 없고 우발적으로 발생된 단순 언어폭력 및 언어적 성희롱에 한하여 적용한다.
주3) 성추행과 성희롱의 정의
- 성추행: 물리적으로 신체 접촉을 가함으로써 상대방에게 성적 수치심을 불러일으키는 일체의 행위
- 성희롱: 성범죄 구성 여부와 관계없이 성적 수치심 또는 혐오감을 일으키는 일체의 언어적, 시각적, 신체적 행위
주4) 괴롭힘이란 지위 또는 관계 우위 등을 이용하여 선수에게 신체적‧정신적 고통을 주는 행위를 말한다.<신설 ’22.04.25.>
주5) 음주운전의 ‘경미한 경우’란 최초 음주운전을 한 경우, 혈중 알코올농도 0.08% 미만인 경우, 음주측정 불응 등을 말한다.<신설 ’22.04.25.>
주6) 음주운전의 ‘중대한 경우’란 2회 이상 음주운전을 한 경우, 음주운전으로 중대한 인적·물적 피해와 인적·물적 피해 유발 후 교통사고를 일으킨 경우 등을 말한다.<신설 ’22.04.25.>
주7) 형법 제247조의 도박장소 등 개설의 경우를 포함한다. <신설 ‘22. 04. 25.>
[별표 2] <신설 ’19.10.8., 개정‘24.09.27.>
대회 중 경기장 질서 문란행위에 대한 징계기준(제21조제3항 관련)
1. 일반기준
가. 징계의 정도에 있어 규정에서 별도로 정한 경우를 제외하고는 이 별표 기준에 따른다.
나. 위반행위를 불문하고 2회 위반자에 대해서는 해당 징계기준의 2배 이상 가중 처분하며, 3회 위반한 자에 대해서는 제명 또는 파면한다.
2. 개별기준
[별표 3] <신설 ‘24. 7. 25.>
징계의 감경기준
[별지 제1호 서식] <신설 ‘24.09.27.>
[별지 제2호 서식] <신설 ‘24..7. 25..>
[별지 제3호 서식] <신설,‘24. 09.27.>
제 정 2019. 10.8. 전면 개정 2020.09.28. 제 정 2024.09.27.
제1장 총 칙 제1조(제정목적) 이 규정은 대한장애인체육회(이하 “장애인체육회”라 한다) 가맹단체운영규정 제8조 제1항 및 대한장애인배구협회(이하 “협회”라 한다)의 정관 제5조에 의해 설치된 시ㆍ도지부의 조직 및 운영에 관한 기본사항을 규정함을 목적으로 한다. 제2조(지위 및 명칭) ① 각 시ㆍ도지부는 협회의 시ㆍ도지부로서, 해당 시ㆍ도 단위와 협회의 명칭을 표시하는 독자적인 명칭을 정한다. ② 시ㆍ도지부의 사무소는 해당 시ㆍ도 내 소재지에 두는 것을 원칙으로 한다. 제3조(설치목적) 시ㆍ도지부는 지역 장애인의 생활체육활동을 활성화하고 시ㆍ도 장애인의 건강증진과 통합사회 가치를 실현시키며, 시ㆍ군ㆍ구 체육단체를 관리ㆍ지도하고 우수한 경기인을 양성하여 장애인체육 발전에 기여함을 목적으로 한다. 제4조(사업) 시ㆍ도지부는 제3조의 설치목적을 달성하기 위하여 다음 각 호의 사업을 수행한다. 1. 지역 장애인체육에 관한 기본방침의 심의 결정 2. 시ㆍ군ㆍ구 체육단체의 관리·지원 3. 장애인생활체육 교실운영ㆍ대회 개최ㆍ지원 등 생활체육 활성화사업 전개 4. 시ㆍ도간 체육단체와의 교류 5. 지역 장애인체육대회 개최 및 협회가 주최ㆍ주관ㆍ승인한 사업에 대하여 참가ㆍ주최ㆍ주관ㆍ후원ㆍ지원 등 6. 전국장애인체육대회 선수단 훈련 및 참가 7. 해당 시ㆍ도 소속의 장애인선수 및 지도자 육성 8. 장애인체육시설에 관한 설치 및 관리 9. 장애인체육에 관한 홍보 및 각종 자료수집, 각종 간행물 발행 10.지역의 장애인체육정책 실현 및 지방정부와 관계기관에 건의ㆍ자문 12.유형별 장애인분과위원회 운영(종목별 경기단체에 해당) 13.유형별 장애인분과위원을 해당 시ㆍ도 종목별 경기단체에 추천(장애유형별 체육단체에 해당) 14.목적달성을 위한 수익사업 및 기타 필요한 사업 제2장 조 직 제5조(조직) 시ㆍ도지부는 당해 지역을 대표하는 체육단체로서, 시ㆍ군ㆍ구지부 또는 기타 체육단체로 구성한다. 제6조(권리와 의무) ① 시ㆍ도지부는 다음 각 호와 같이 협회의 사업에 참여할 권리를 갖는다. 1. 협회의 총회에 대의원을 파견하여 발언권 및 의결권을 갖는다. 2. 협회에 대하여 건의 및 소청할 수 있다. 3. 협회의 주최·주관 및 승인한 사업에 참여할 수 있다. ② 시ㆍ도지부는 협회에 대하여 다음 각 호의 의무를 갖는다. 1. 협회의 정관 및 제규정과 의결기구에서 의결된 사항을 준수하여야 한다. 2. 선수, 지도자, 체육동호인은 협회의 등록규정에 의거 매년 등록하여야 한다. 3. 사업계획서 및 예산서, 전년도 사업결과 및 결산서를 해당 의결기구 의결 후 1개월 이내에 협회에 제출하여야 한다. 4. 한국도핑방지규정을 수용하고 준수한다.<신설 ‘24.09.27.> 제7조(시ㆍ군ㆍ구지부 승인 및 취소) ① 시ㆍ도지부는 시ㆍ군ㆍ구에 지부를 둘 수 있으며, 해당 시ㆍ군ㆍ구 체육단체가 소정의 설립요건을 갖추어 지부 승인을 요청할 시 대의원총회 의결로써 승인한다. ② 시ㆍ군ㆍ구지부가 제6조 제2항에서 정한 의무를 위배하는 경우 지부 승인을 취소할 수 있으며, 대의원총회 의결을 통하여 확정한다. 제3장 임 원 제8조(임원) 1. 회장 1인 2. 6인 이내의 부회장을 포함한 이사 7인 이상 27인 이내 3. 1인 이상의 감사<개정 ’24.09.27.> 제9조(임원의 결격 사유) ⓛ 회장을 포함한 임원의 임기는 4년으로 하고 감사의 임기는 2년으로 하되, 1회만 연임(연임횟수 산정 시 협회/연맹 및 시도지부 임원의 경력도 포함한다)할 수 있다. 다만, 회계감사는 연임횟수를 제한하지 않는다.<개정 ’24.09.27.> ② 제1항에 따라 회장의 임기 제한 기간 산정에 있어 회장 이외의 다른 임원으로 활동한 기간은 포함하지 아니한다. ③ 제1항에 따라 부회장의 임기 제한 기간 산정에 있어 회장으로 활동한 기간은 포함하나 이사 및 감사로 활동한 기간은 포함하지 아니한다. ④ 제1항에 따라 이사 및 감사의 임기 제한 기간 산정에 있어 회장, 부회장으로 활동한 기간은 포함한다. ⑤ 회장은 회장으로 당선된 후 처음으로 개최되는 정기총회일에 임기가 시작되는 것으로 본다. 회장을 제외한 임원의 임기는 임원으로 선임된 정기총회일을 기준으로 한다. 다만, 정관 제23조 및 회장선거관리규정 제6조에 의한 선거인은 임기시작 전이라도 시ㆍ도장애인체육회장의 인준을 받은 당선자가 되며, 시ㆍ도장애인체육회에 가맹하지 아니한 시ㆍ도지부의 선거인은 협회의 인준을 받은 당선자가 된다. ⑥ 보선된 임원의 임기는 전임자의 잔여기간으로 하고, 증원으로 인한 임원의 임기는 다른 임원의 잔여기간으로 한다. ⑦ 임원은 임기가 만료된 경우에 후임자가 취임하기까지 그 직무를 수행한다. ⑧ 제1항의 임원의 임기 제한에 있어 보선된 임원의 임기가 2년 미만인 경우 연임 횟수에 산입하지 아니한다. 제10조((회장의 선출)) ① 시ㆍ도지부의 회장은 총회에서 선출하며, 선거인은 다음 각 호의 자로구성한다. 1. 시ㆍ군ㆍ구지부의 장 2. 선수위원장 1명(해당 시ㆍ도 소속 선수의 직접선거로 선출하며 종목별 경기단체에 해당) ② 총회가 구성되지 아니한 시ㆍ도 지부의 회장은 이사회에서 선출하며, 선거인은 회장을 제외한 이사로 한다. ③ 제2항의 경우 제1항의 선거인은 당연히 포함된다. ④ 제1항 2호의 선수위원장에 비장애인 선수는 포함되지 아니하며, 다종목에 등록한 선수는 1인 1표로 제한한다. ⑤ 회장 후보자는 학식과 덕망, 경험이 풍부한 자로서, 장애인체육진흥에 크게 기여하였거나, 기여할 수 있는 자이어야 한다. ⑥ 회장의 선출방법은 다음 각 호에 따른다. 1. 회장선거는 무기명 비밀투표로 하며 유효투표 중 다수의 득표를 한 자를 당선인으로 결정한다. 2. 다수 득표수가 동수인 경우에는 연장자를 당선인으로 결정한다. 3. 후보자가 1명일 때에는 투표를 실시하지 아니하고 선거일에 그 후보자를 당선인으로 결정한다. ⑦ 제9조 제6항에도 잔여임기가 1년 미만의 회장의 보궐선거에서 선출된 회장의 임기는 그 잔여기간에 4년을 추가한 기간으로 보며 이 경우 제9조 제8항에도 불구하고 1회 재임한 것으로 본다.<신설 ‘24.09.27.> ⑧ 회장이 궐위된 경우 60일 이내에 회장을 선출하여야 하며, 잔여임기가 1년 미만인 경우 새로 선출된 회장의 임기는 제7항에 따르며, 잔여임기가 1년 이상인 경우 새로 선출된 회장의 임기는 전임자의 잔여기간으로 한다 <신설 ‘24.09.27.> ⑨ 시ㆍ도지부는 공정한 선거관리를 위하여 선거관리위원회 위원을 3명 이상 5명 이내의 인사로 구성하되 시ㆍ도지부 임원이 과반수를 넘을 수 없다. 다만, 총회가 구성되지 않아 이사회에서 회장을 선출할 경우에는 이사는 위원이 될 수 없다.<개정 ’24.09.27.> ⑩ 이 규정에 정한 것 외 또는 선거에 필요한 세부적인 사항은 협회의 ‘회장선거관리규정’ 및 ‘시ㆍ도지부 회장선거관리규정’에 따르며, 유권해석에 관한 사항은 협회의 법제상벌위원회의 결정을 따른다.<개정 ’24.09.27.> ⑪ 제13조 제2항에 따른 직무대행자는 통상적 사무(선거관리위원회 구성 업무 포함)를 수행하며, 새로운 정책의 수립, 인사의 이동 등 현상유지의 범위를 벗어난 사무를 처리할 수 없다. 다만, 긴급한 경우 이사회 의결로 가능할 수 있다.<개정 ’24.09.27.> ⑫ 장애인체육회, 장애인배구협회(시‧도지부, 시‧군구지부 포함), 시‧도장애인체육회(시‧군‧구장애인체육회 포함)의 회장과 임원이 후보자로 등록하고자 하는 경우 임기 만료일 전 90일 까지 후보자 등록의사 표명서 제출과 동시에 직무는 정지된다. 다만, 보궐선거에 후보자로 등록하는 경우 그 실시사유가 확정된 날로부터 10일 이내에 제출 하여야 한다. <신설‘24.09.27.> 제11조(임원선임) ① 회장을 제외한 임원은 회장이 추천한 자 중에서 총회에서 선임한다. 단, 총회의 의결로 선임권한을 회장에게 위임할 수 있으며 이 경우 차기 총회에서 선임결과를 보고하여야 하며, 위임된 임원 선임 권한의 기한은 총회에서 특별히 정한 경우를 제외하고는 차기 총회까지로 한정한다. ② 임원은 장애인체육회 가맹단체운영규정 제13조 제3항의 내용을 준용하여 구성한다. ③ 감사는 대의원 또는 회계전문가로 하되, 2인 이상일 경우에는 반드시 회계전문가를 포함하여 선임하여야 한다. ④ 부회장과 이사의 결원이 있을 때에는 회장이 추천한 자를 이사회에서 보선하되 차기 총회에 이를 보고하여야 한다. ⑤ 대의원은 임원에 선임될 수 있으나, 재적이사(회장, 부회장 포함)의 5분의 1을 초과할 수 없다. 또한 동일 시ㆍ군ㆍ구지부의 임원이 1인을 초과하여 시ㆍ도지부의 임원에 선임될 수 없다. ⑥ 임원은 반드시 협회의 임원 승인 동의 절차를 거쳐 해당 시ㆍ도장애인체육회의 승인을 받아 취임하며, 필요한 경우 관계기관에 신원사항이나 관련사항을 조회할 수 있다. 승인 후에 임원의 결격 및 기타 사유가 드러나 승인에 하자가 있는 경우 시ㆍ도장애인체육회에 승인 취소 또는 철회를 요청할 수 있다. 다만, 시ㆍ도장애인체육회에 가맹하지 아니한 시ㆍ도지부의 임원 승인, 취소 또는 철회에 관한 권한은 협회에 있다. ⑦ 제13조 제2항에 따라 부회장이 직무를 대행하고자 할 때에는, 즉시 협회에 보고하고 해당 시ㆍ도장애인체육회에 승인을 받아야 한다. 제12조(임원의 결격 사유) ① 다음 각 호의 어느 하나에 해당하는 자는 시·도지부의 임원이 될 수 없다. 1.「국가공무원법」제33조(결격사유) 각 호의 어느 하나에 해당하는 사람 2. 국민체육진흥법 제2조제9호 가목부터 다목까지의 체육단체 및 시도ㆍ시군구 종목단체에서 재직기간 중 직무와 관련하여 「형법」 제355조 및 제356조에 규정된 죄를 범한 사람으로서 300만 원 이상의 벌금형 이상을 선고받고 그 형이 확정된 사람.(형이 실효된 사람을 포함한다.)<개정 ’24.09.27.> 3. 국민체육진흥법 제2조제9호 가목부터 다목까지의 체육단체 및 시도ㆍ시군구 종목단체가 주최ㆍ주관하는 경기의 결과에 영향을 미치는 승부조작에 가담하여 「형법」 제314조 및 「국민체육진흥법」 제47조 및 제48조에 규정된 죄를 범한 사람으로서 벌금형 이상을 선고받고 그 형이 확정된 사람 (형이 실효된 사람을 포함한다.)<개정 ’24.09.27.> 3의 2. 다음 각 목의 어느 하나에 해당하는 죄를 저지른 사람으로서 금고 이상의 실형 또는 치료감호를 선고받고 그 집행이 끝나거나(집행이 끝난 것으로 보는 경우를 포함한다) 집행이 면제된 날 또는 금고 이상의 형의 집행유예를 선고받은 날부터 20년이 지나지 아니하거나 벌금형이 확정된 날부터 10년이 지나지 아니한 사람(형이 실효된 사람을 포함한다.) 가.「성폭력범죄의 처벌 등에 관한 특례법」제2조에 따른 성폭력범죄 나.「아동·청소년의 성보호에 관한 법률」제2조 제2호에 따른 아동·청소년 대상 성범죄 <신설‘24.09.27.> 3의 3. 선수를 대상으로「형법」제2편 제25장 상해와 폭행의 죄를 저지른 사람으로서 금고 이상의 실형을 선고받고 그 집행이 끝나거나(집행이 끝난 것으로 보는 경우를 포함한다) 집행이 면제된 날 또는 금고 이상의 형의 집행유예를 선고받은 날부터 10년이 지나지 아니한 사람(형이 실효된 사람을 포함한다.)<신설‘24.09.27.> 4. 국민체육진흥법 제2조제9호 가목부터 다목까지의 체육단체 및 시도ㆍ시군구 종목단체에서 다음 각 목에 따른 사람 가. 폭력 및 성폭력 등 성 관련 비위로 자격정지 이상의 징계 처분을 받은 사람 나. 승부조작, 편파판정, 횡령ㆍ배임으로 자격정지 1년 이상의 징계처분을 받은 사람 다. 가목과 나목에 해당하는 사람을 제외하고 자격정지 이상의 징계처분을 받고 그 기간이 종료되지 아니한 사람 5. 국회의원 6. 관리단체로 지정되어 해임된 임원으로 관리단체 지정일로부터 5년이 지나지 아니한 사람 (지정일로부터 6개월 전까지 임원이었던 사람 포함)<개정 ’24.09.27.> 7. 사회적 물의, 장애인체육회와 장애인체육회 관계단체로부터 징계는 받지 않았지만 임원의 결격사유에 해당하는 유사 행위 등 그 밖의 이에 준하는 사유가 있는 사람<신설‘24.09.27.> ② 회장의 친족(민법 제777조에 따른 친족을 말한다)은 그 시ㆍ도지부의 임원이 될 수 없다. ③ 문화체육관광부 산하 체육단체 및 그 가맹경기단체의 임원 결격사유에 해당하는 자는 임원이 될 수 없다. ④ 임원은 제1항부터 제3항에 해당하지 않는다는 서약서를 제출하여야 하며 서약서 제출 후 사실이 아닌 경우에는 즉시 해임되며 영구히 임원에 선임될 수 없다.<개정‘24.09.27.> ② 징계에 관한 사항은 장애인배구협회 법제·상벌위원회운영규정에 따른다. 제13조(임원의 직무) 제13조(임원의 직무) ① 회장은 시ㆍ도지부를 대표하고 그 업무를 총괄한다. ② 부회장은 회장을 보좌하고, 회장이 궐위 되었거나, 또는 사고로 인하여 직무수행이 곤란한 경우에는 회장이 부회장 선임시 정한 순서에 따라 직무를 대행하되, 순서의 정함이 없는 경우에는 부회장 중 연장자가 대행한다. 다만, 외국 국적의 부회장은 회장의 직무를 대행할 수 없다. ③ 이사는 이사회를 구성하고 이사회에 출석하여 그 직무에 관한 사항을 의결한다. ④ 감사는 다음 각 호의 직무를 행한다. 1. 시ㆍ도지부의 재산상황을 감사하는 사항 2. 이사회의 운영과 그 업무를 감사하는 사항 3. 시ㆍ도지부의 재산상황 또는 총회 및 이사회의 운영과 그 업무에 관하여 회장, 이사회 및 총회에서 의견을 진술하는 사항 4. 제1호 및 제2호의 감사결과 부정 또는 비위가 있음을 발견한 때에는 이를 이사회 및 총회에 그 시정을 요구하고, 그래도 시정되지 아니할 때에는 협회 및 시ㆍ도장애인체육회에 보고하는 사항 5. 제4호의 보고를 위하여 필요한 때에 이사회 또는 대의원총회의 소집을 요구하는 사항 ⑤ 시ㆍ도지부의 임원이 동 단체의 운영과 관련된 범죄사실로 기소되었을 경우 그 직무가 정지된다. 다만, 다음 각 호의 경우는 그러하지 아니하다. 1. 기소된 범죄사실의 법정형이 벌금형만 있는 경우 2. 약식명령이 청구된 경우 3. 과실범으로 기소된 경우 ⑥ 시ㆍ도지부의 임원이 동 단체의 운영 이외의 범죄사실로 구속 기소되었을 경우 그 직무가 정지된다. 제14조(임원의 보수) 회장을 비롯한 비상근임원에게는 보수를 지급하지 아니한다. 다만, 업무수행에 필요한 실비는 지급할 수 있다. 제15조(임원의 사임 및 해임) ① 이사 및 감사가 사임할 경우에는 회장 또는 그 직무대행자에게 사직서를 제출하여야 하며, 회장이 사임할 경우에는 사무처에 사직서를 제출해야 한다. 이사, 감사 또는 회장이 사직서를 제출한 경우에는 제출과 동시에 사임한 것으로 본다. ② 시ㆍ도지부가 관리단체로 지정된 경우에는 지정 즉시 해당 단체의 임원은 즉시 해임된다. ③ 시ㆍ도지부에 대한 관리단체 지정이 해당 시ㆍ도장애인체육회 이사회 안건으로서 통지된 경우, 통지서 발송일 30일 전부터 관리단체 지정 절차가 종료될 때까지는 임원의 사임 효력이 발생되지 아니한다. 다만, 시ㆍ도장애인체육회에 가맹하지 아니한 시ㆍ도지부의 경우는 협회의 이사회 안건 통지 30일 전부터 관리단체 지정 절차가 종료될 때까지 임원의 사임 효력이 발생하지 않는다. ④ 임원이 다음 각 호의 어느 하나에 해당하는 경우에는 당연히 퇴임한 것으로 본다. 1. 제11조 제6항의 결과로써 승인 권한을 가진 기관으로부터 승인이 취소 또는 철회된 자 2. 제12조에 해당하는 때 3. 시ㆍ도지부의 임원 또는 체육단체를 대표하는 자가 해당 단체에서 해임되거나 사임하는 경우 제16조(시ㆍ도지부 임원에 대한 징계) ➀ 협회는 다음 각 호의 어느 하나에 해당하는 경우 시ㆍ도지부 임원을 징계할 수 있다. 이 경우 해당 시ㆍ도지부는 징계 처분을 따라야 한다. 1. 임원 직위를 이용하여 지부의 사업운영에 부당하게 관여하거나, 해당 지부에 중대한 손해를 입힌 자 2. 친족간 업무위탁 및 도급에 관여한 자 3. 공금횡령, 편파 판정, 승부조작, 폭력, 성폭력, 직권남용 등 사회적 물의를 일으켜 품위를 손상시킨 자<개정‘24.09.27.> 4. 해당 지부의 규정을 위반한 자 ② 징계에 관한 사항은 협회의 법제ㆍ상벌위원회 규정에 따른다. 제4장 산하 각급 장애인배구협회 제17조(대의원) ① 시ㆍ도지부의 대의원은 다음 각 호와 같다. 1. 시ㆍ군ㆍ구 지부의 장 2. 선수위원장(해당 시ㆍ도 소속 선수의 직접선거로 선출된 대표로서 종목별 경기단체에 해당) ② 시ㆍ도장애인체육회에 가맹된 시ㆍ도지부의 경우 가맹단체와의 협의를 거쳐 시ㆍ도장애인체육회의 승인을 받아 대의원 구성을 달리할 수 있다. ③ 시ㆍ군ㆍ구지부의 장이 부득이한 사유로 총회에 출석할 수 없는 경우에는 부회장 선임 시 정한 순서에 따라 대리인을 지명하여 출석하게 할 수 있으나, 순서의 정함이 없는 경우에는 부회장 중 연장자 순으로 한다. 이 경우 대리인을 3일 전에 시ㆍ도지부에 서면으로 통보하여야 하며, 그 대리인의 권한은 해당 총회에서만 대의원과 동일한 권한을 가진다. ④ 동일인이 제1항의 각 호 및 제2항의 직을 겸할 수 없다. ⑤ 제1항 제2호 및 제2항에 해당하는 대의원은 총회에 대리참석이 불가하다. 제18조(총회의 구성 및 기능) ① 총회는 제17조 제1항 및 제2항의 대의원 또는 제3항에 의한 그 대리인으로 구성한다. ② 총회는 다음 사항을 의결한다. 1. 당해 단체의 해산 및 정관 변경에 관한 사항 2. 시ㆍ군ㆍ구지부 설치 및 제명 3. 임원의 선임(회장 제외) 및 해임에 관한 사항 4. 사업결과 및 결산에 관한 사항 5. 사무국 이전에 관한 사항 <개정‘24.09.27.> 6. 기타 중요사항<개정‘24.09.27.> 제19조(정기총회와 임시총회) ① 시ㆍ도지부의 정기총회는 매 회계연도 종료 후 20일이내에 회장이 소집한다.<개정‘24.09.27.> ② 임시총회는 다음 각 호의 어느 하나에 해당하는 경우에 15일 이내에 회장이 개최하여야 한다. 1. 회장이 필요하다고 인정하는 경우 2. 구체적 안건을 명시한 재적이사 과반수의 소집요구가 있는 경우 3. 구체적 안건을 명시한 재적대의원 3분의 1 이상의 소집요구가 있는 경우 4. 제13조 제4항에 따라 감사가 소집을 요구한 때 ③ 제2항 2호 내지 3호의 경우에 회장이 정당한 사유 없이 총회를 개최하지 아니한 때에는 소집요구를 한 이사나 대의원이 회장에게 요청한 총회소집 요청서를 첨부하고 회의안건ㆍ일시ㆍ장소를 명기하여 시ㆍ도장애인체육회의 승인을 받아 총회를 소집할 수 있다. 다만, 시ㆍ도장애인체육회에 가맹하지 않은 시ㆍ도지부는 협회의 승인을 받아 총회를 소집할 수 있다. ④ 제3항과 관련하여 이사 또는 대의원이 총회를 소집한 경우에는 이사 또는 대의원 중 연장자가 총회의 소집권자가 되고, 대의원 중 연장자의 사회로 출석대의원 중에서 의장을 선출한다. ⑤ 총회의 소집은 늦어도 개최 7일 전에 안건ㆍ 일시 및 장소를 명기하여 서면(전자문서를 포함한다)으로 대의원에게 통지하여야 한다. 다만, 긴급한 사유가 있을 때에는 그 기간을 단축할 수 있다. ⑥ 총회는 통지된 안건에 한하여 의결할 수 있다. 다만, 출석대의원 전원의 찬성이 있는 경우에는 그 외의 안건에 대하여도 상정하여 의결할 수 있다. 제20조(의장) ① 회장이 총회의 의장이 된다. 다만, 회장이 부득이한 사유로 직무를 수행할 수 없을 때에는 부회장 선임 시 순서에 따라 부회장이 의장이 되나, 순서의 정함이 없는 경우에는 부회장 중 연장자가 의장이 된다. ② 제19조 제3항에 따라 이사나 대의원이 소집한 총회의 경우에는 출석대의원의 의결로 의장을 선출한다. ③ 제1항에 의한 의장은 의결권을 행사할 수 없고, 제2항에 의한 의장은 의결권을 가지며 가부동수일 때에는 결정권을 행사할 수 있다. 제21조(의결정족수) ① 총회는 이 규정에 특별히 규정한 것을 제외하고는 재적대의원의 과반수 출석으로 개회하고, 출석대의원 과반수 찬성으로 의결한다. ② 총회 의결은 서면결의로 할 수 없다. ③ 내우, 외환, 중대한 재난이나 재해 등으로 인해 출석하여 결의하는 것이 어려운 특별한 사정이 있는 경우, 대의원의 전부 또는 일부가 직접 회의에 출석하지 아니하고 총회 참석자의 음성을 동시에 송수신하는 원격통신수단에 의하여 결의할 수 있다. 다만 이 경우에도 제1항의 출석 및 의결정족수를 충족하여야 한다. ④ 제3항의 원격통신수단의 운영에 관한 사항은 별도의 지침에 따른다. 제22조(임원의 불신임) ① 총회는 임원에 대하여 부분적 또는 전체적으로 해임을 의결할 수 있다. ② 제1항에 따라 임원 전원을 해임할 경우에는 임원의 임기 경과와 관계없이 해임할 수 있으며, 일부 임원을 해임할 경우에는 해당 임원이 선출된 날부터 만 1년이 경과해야 한다. 다만, 해당 임원이 구속 기소된 경우에는 경과기간의 제한을 두지 아니한다. ③ 해임안은 재적대의원 과반수 찬성으로 발의되고, 출석대의원 3분의 2 이상의 찬성으로 의결한다. ④ 해임안이 의결되었을 때에는 해당 임원은 즉시 해임된다. ⑤ 임원 전원이 사임하거나 해임되었을 경우, 사무국은 긴급한 업무처리를 위하여 해당 시ㆍ도장애인체육회의 승인을 받아 위원회 등을 구성하는 절차를 진행할 수 있다. 다만, 시ㆍ도장애인체육회에 가맹하지 않은 시ㆍ도지부는 협회의 승인을 받아 이를 추진할 수 있다. <개정‘24.09.27.> 제23조(총회의결 제척사유) 의장 또는 대의원이 다음 각 호의 어느 하나에 해당하는 때에는 그 의결에 참여하지 못한다. 1. 임원 선출 및 해임에 있어 자신에 관한 사항을 의결할 때 2. 금전 및 재산의 수수를 수반하는 사항으로서 자신과 당해 단체의 이해가 상반될 때 3. 제척사유에 해당되는 대의원 또는 임원은 해당 총회에 참석할 수 없다. 다만 총회 참석 대의원 전원이 찬성할 경우에는 그러하지 아니한다. 제24조(총회의 특례) ① 시ㆍ군ㆍ구 지부의 수가 적어 총회를 개최할 수 없을 경우, 시ㆍ도장애인체육회의 사전 승인을 통해 총회의 구성과 기능 및 그 권한에 관한 사항을 이사회에서 대신한다. 다만, 시ㆍ도장애인체육회에 가맹하지 않은 시ㆍ도지부는 협회의 사전 승인을 받아야 한다. ② 제1항에 의할 시에는 제17조 제1항 내지 제2항에 해당하는 대의원은 이사회에 참석하여 의결권을 행사한다. 제5장 이 사 회 제25조(이사회의 구성 및 기능) ① 이사회는 회장, 부회장 및 이사로 구성된다. ② 이사회는 다음 사항을 심의 의결한다. 1. 사업계획 및 예산에 관한 사항 2. 사업결과 및 결산에 관한 사항 3. 각종 위원회 운영에 관한 사항 4. 기본 자산의 편입 및 처분에 관한 사항 5. 제 규정의 제정 및 개정 6. 총회에서 위임받은 사항 7. 총회 안건 상정에 관한 사항 8. 기타 중요사항 제26조(의결정족수) ① 이사회는 이 규정에 특별히 규정한 것을 제외하고는 재적이사 과반수의 출석으로 개회하고 출석이사의 과반수 찬성으로 의결한다. 다만, 가부동수일 때에는 회장이 결정한다. ② 이사는 의결권을 위임할 수 없다. ③ 내우, 외환, 중대한 재난이나 재해 등으로 인해 출석하여 결의하는 것이 어려운 특별한 사정이 있는 경우, 이사의 전부 또는 일부가 직접 회의에 출석하지 아니하고 이사회 참석자의 음성을 동시에 송수신하는 원격통신수단에 의하여 결의할 수 있다. 다만 이 경우에도 제1항의 출석 및 의결정족수를 충족하여야 한다. ④ 제3항의 원격통신수단의 운영에 관한 사항은 별도의 지침에 따른다. 제27조(이사회의 소집) ① 회장은 필요에 따라 이사회를 소집하고 그 의장이 된다. 다만, 회장이 부득이한 사유로 직무를 수행할 수 없는 때에는 부회장 선임시 정한 순서에 따라 부회장이 의장이 되나, 순서의 정함이 없는 경우에는 부회장 중 연장자가 의장이 된다. ② 회장은 다음 각 호의 해당하는 소집요구가 있을 때에는 그 소집요구일로부터 10일 이내에 이사회를 소집하여야 한다. 1. 재적이사 과반수 이상의 소집요구가 있는 경우 2. 제13조 제4항 제5호의 규정에 의하여 감사가 소집을 요구한 때 ③ 이사회를 소집하고자 할 때에는 회의 5일 전까지 안건ㆍ일시ㆍ장소를 명시하여 서면(전자문서를 포함한다)으로 각 이사에게 통지하여야 한다. 다만, 긴급한 사유가 있을 때에는 그 기간을 단축할 수 있다. ④ 이사회는 미리 통지된 안건에 한하여서만 의결할 수 있다. 다만, 출석이사 전원의 찬성이 있는 경우에는 그 외의 안건을 상정하여 의결할 수 있다. ⑤ 이사회 소집권자의 기피에 의하여 이사회 소집이 불가능할 때에는 재적이사 과반수의 찬성으로 해당 시ㆍ도장애인체육회의 승인을 받아 이사회를 소집할 수 있고, 그 의장은 제1항에 의한다. 다만, 시ㆍ도장애인체육회에 가맹하지 않은 시ㆍ도지부는 협회의 승인을 받아 이를 추진할 수 있다. 제28조(긴급한 업무의 처리) 회장은 그 내용이 긴급하다고 인정될 때에는 이를 집행할 수 있다. 다만, 차기 이사회에 이를 승인받아야 한다. 이사회의 의사는 서면결의에 의하여 처리할 수 없다. 제29조(이사회의 특례) ① 제24조 제2항에 의한 대의원은 이사회에 참석하여 의결권을 행사한다. ② 제1항에 의한 대의원은 이사회의 개최 및 의결 정족수에 산입한다. 제6장 각종위원회 제30조(각종 위원회)) ① 필요시 시ㆍ도지부의 사업수행과 목적달성을 위하여 이사회의 자문기구로서 각종 위원회를 이사회의 의결로써 설치할 수 있다. ② 각종 위원회의 설치 및 운영에 관한 사항은 회장이 이를 따로 정한다. 제7장 시ㆍ군ㆍ구 경기단체 및 장애유형별 체육단체 제31조(지위 및 명칭) ⓛ 시ㆍ군ㆍ구에는 시ㆍ도지부의 지부를 둘 수 있으며, 해당 시ㆍ군ㆍ구 단위를 표시하는 독자적인 명칭을 갖는다. ② 시ㆍ군ㆍ구지부는 시ㆍ군ㆍ구장애인체육회에 가맹할 수 있으며, 그 사무소를 해당 시ㆍ군ㆍ구에 둔다. 제32조(임원 승인) 시ㆍ군ㆍ구지부의 임원, 사업 등에 대하여는 여건에 따라 시ㆍ도지부에서 별도로 정한다. 제33조(조직 및 운영) 시ㆍ군ㆍ구지부의 조직 및 운영에 대한 사항은 관련규정에 따른다. 제8장 자산 및 회계 제34조(자산의 구분) 시ㆍ도지부의 자산은 다음과 같다. 1. 소유 동산 및 부동산 2. 기금 3. 회비 4. 정부, 공공단체, 협회 등의 보조금 및 각종 지원금 6. 사업 수익금 7. 기부금 및 찬조금 8. 기타 수입금 제35조(예산편성 및 결산) ① 사업계획 및 수입ㆍ지출 예산안은 매년 회계연도 종료시까지 편성하여 이사회 승인을 얻어야 한다. ② 매 회계연도 종료후 1월 이내에 사업보고서 및 결산서를 작성하여 이사회 승인을 얻어야 한다. 제36조(기금 및 적립금) 이사회의 승인을 얻어 특별한 목적을 위한 기금 또는 적립금을 운용할 수 있으며 이는 특별회계로 한다. 제37조(회계연도) 회계연도는 협회와 동일하게 한다. 제9장 사 무 국 제38조(사무국) ① 시ㆍ도지부는 사무집행을 위하여 사무처를 둔다. ② 사무국에 사무국장과 기타 필요한 직원을 두며, 사무국장은 이사회의 동의를 얻어 회장이 임면한다. ③ 사무국장은 회장의 지휘 감독을 받아 사무처의 직무를 관장하며, 직원은 회장이 임면하되 특별한 사유 없이는 그 신분을 보장하여야 한다. ④ 직원은 협회 및 시ㆍ도장애인체육회의 각급 가맹단체(산하지부 포함)의 임원을 겸할 수 없다. 제39조(직제 및 규정) ① 사무처의 기구, 조직, 직제 및 복무에 관한 규정은 이사회 의결로 이를 따로 정한다. ② 사무처는 경영의 투명성 제고를 위하여 주요 사업의 추진계획 및 성과, 관련 규정 등을 공시하여야 한다. 제10장 보 칙 제40조(규정 제ㆍ개정 및 해석) ➀ 시ㆍ도지부는 이 규정을 준용하여 당해 시·도지부의 규약(또는 ‘정관’으로 이하 같다)을 제·개정하여야 한다. ➁ 제1항 이 외에 당해 시ㆍ도지부의 운영 등에 관한 필요한 사항은 이사회의 의결을 거쳐 규정을 제·개정한다. ③ 이 규정에 의거하여 제정된 시ㆍ도지부의 규약은 해당 시ㆍ도장애인체육회가 승인한 날로부터 유효하며, 수정이 있을 때마다 시ㆍ도장애인체육회의 승인을 받아야 한다. 보고된 규약에 대하여 개ㆍ수정 및 삽입이 필요한 때에는 시ㆍ도장애인체육회의 결정한 바에 따라 시행하여야 한다. 다만, 시ㆍ도장애인체육회에 가맹하지 않은 시ㆍ도지부는 협회의 승인을 받아야 한다. ④ 이 규정은 시ㆍ도지부의 규약에 우선하며, 당해 단체규약을 이 규정에 맞게 변경하지 아니하여 이 규정과 당해 단체규약이 상이할 경우에는 반드시 이 규정에 따라야 한다. 제41조(제한사항) 본 규정 및 상위 규정 등에서 규정한 사항이나 지시한 사항을 이행하지 않을 경우 시ㆍ도지부는 제6조 제1항에서 정한 권리사항을 제한하거나 지부 승인을 철회할 수 있다. 부 칙('19.10.8) 제1조(시행일) 이 규정은 이사회의 승인을 받은 날부터 시행한다. 부 칙('20.09.28.) 제1조(시행일) 이 규정은 이사회의 승인을 받은 날부터 시행한다. 부 칙('24.09.27.) 제1조(시행일) 이 규정은 이사회의 승인을 받은 날부터 시행한다.제 정 2007. 2. 3. 개 정 2015. 2. 7. 개 정 2016. 8. 6. 개 정 2018. 1. 26. 개 정 2024. 9. 27.
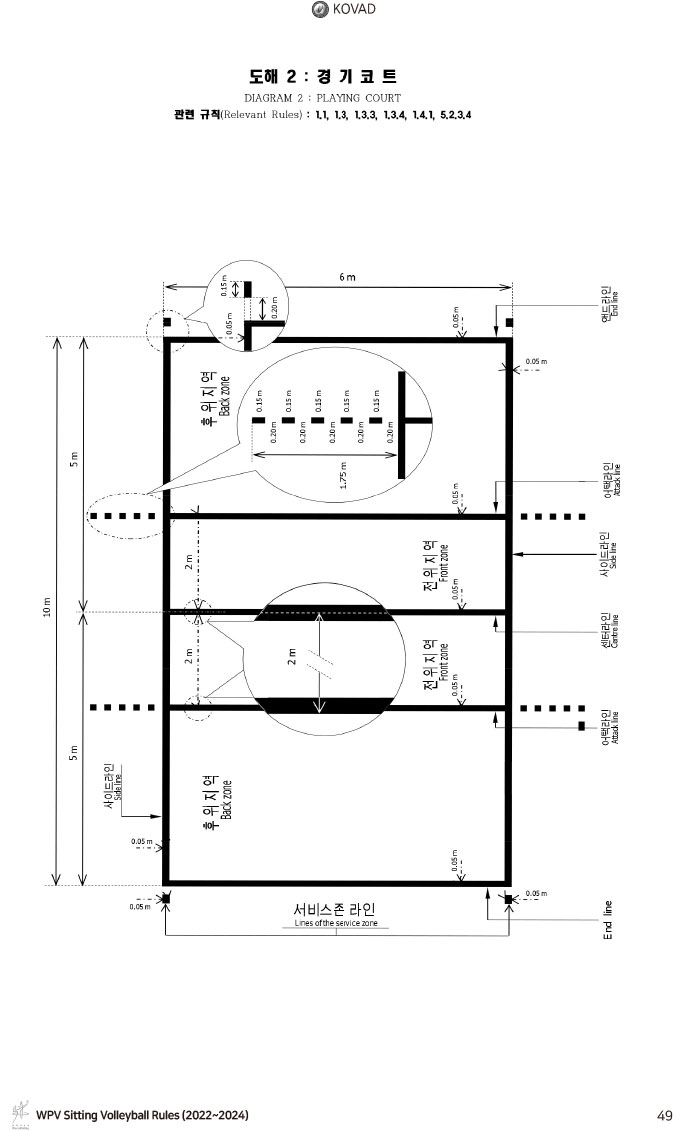
제1장 총칙 제1조(목적) 본 규정은 대한장애인배구협회(이하 “협회”라고 한다.)가 전국대회 개최 및 운영에 따른 부작용과 사회적 물의를 사전에 방지하여 건전한 장애인스포츠 문화를 정착시키기 위한 풍토를 조성하고, 장애인배구의 육성 보급·발전을 도모하기 위하여 제정한다. 또한, 각종 전국대회를 개최하고자 하는 각 주최 관계자는 본 규정을 엄격히 준수하여야 한다.<개정 2024.09.27.> 제2조(대회구분) 대회는 전문체육대회, 생활체육대회로 구분한다. 1. 전문체육대회는 대한장애인체육회 전문체육부로 등록된 선수가 참가하는 대회이다. 2. 생활체육대회는 일반부 및 동호인부가 참여하는 대회이다.<신설'18.01.26> 제3조(대회 공식 명칭) <개정'18.01.26> 대회의 명칭은 “ ㅇㅇㅇㅇ전국장애인배구대회”, “ㅇㅇㅇㅇ전국장애인좌식배구대회”, “ㅇㅇㅇㅇ전국지적장애인배구대회”, “ㅇㅇㅇㅇ전국청각장애인배구대회” 로 한다. 다만, 광역시도별 지원기관의 명칭을 부제로 사용할 수 있다. 예) 제00회 0000기 전국장애인(좌식-지적-청각)배구대회 제4조(경기장 및 경기용구)<개정'18.01.26> 1. 경기장 ● 입식배구 경기장은 일반배구 경기장 규격과 동일하다. ● 좌식배구 경기장은 10m× 6m의 장방형이며, 공격선은 센터라인 중앙으로부터 2m 지점에 센터라인과 평행이 되도록 표시한다. 서브지역은 15cm 길이의 2개의 선으로 코트에 엔드라인 후방 20cm 지점에 엔드라인과 수직으로 표시된다. 한 선은 코트 우측선의 연장선에 또 다른 한 선은 좌측 2m 지점에 표시된다. ● 12개 이상의 팀이 참가하게 되면 반드시 2개 이상의 코트를 활용하여 경기를 운영한다. ● 그 외 경기장 규격은 WPV(세계장애인배구연맹) 경기 규칙 1.경기장(PLAYING AREA)에 따른다.<신설'18.01.26.,<개정 2024.09.27.> 2. 경기용구(좌식배구) 입식배구 경기용구는 일반배구와 동일하며, 좌식배구의 경우 아래와 같다. ● 네트 : 길이는 6.5m, 폭은 0.8m, 높이는 남자 1.15m, 여자 1.05m이며, 10cm 평방의 망으로 이루어진다. ● 안테나 : 길이 1.60m, 직경 10mm의 유리섬유나 이와 유사한 재질로 만들어진 유연한 막대다. ● 공 : 협회에서 인정한 볼을 사용하여야 한다.<개정 2024.09.27.> 제5조(종목) <개정'18.01.26> 1. 입식배구 : 청각 및 언어장애 또는 지적장애 <개정'18.01.26> 2. 좌식배구 : 지체 장애 (절단 및 기타 장애), 다만 의무등급이 VS1, VS2로 판정된 경우만 가능하다.<개정 ‘18.1.26., 개정 2024.09.27.> 제6조(경기방식) <개정'18.01.26> 1. 대회 개최요강에 따라 예선전, 결승전은 25점(1세트) 3세트 또는 5세트 포인트어랠리(Point a rally) 스코어링 방식으로 진행한다. 다만, 각 세트의 마지막 세트(3세트, 5세트)는 15점으로 한다. 2. 경기는 2세트(3세트 경우) 또는 3세트(5세트 경우)를 이긴 팀이 승리한다. 3. 팀이 경기 속행에 대해 거부하게 되면 각 세트 0-25, 경기 0–3의 결과와 함께 몰수로 부전패가 선고된다. 또한 아무런 정당한 사유 없이 팀이 제 시간에 경기장에 나타나지 않아도 같은 결과로 부전패를 선고한다. 4. 한 팀은 최대 14명의 선수로 구성되며, 최대 2명의 VS2 선수가 포함될 수 있다.<개정 2024.09.27.> 5. 경기 중 팀은 항상 6명의 선수가 있어야 하고, 최대 1명의 VS2 선수가 포함될 수 있다.<개정 2024.09.27.> 6. 매 세트 시작 전, 감독은 라인-업 용지에 팀의 스타팅 라인-업을 적고, 서명하여 부심 또는 기록원에게 제출해야 한다. 7. 선수의 위치는 둔부의 위치에 의해 결정되고 조정된다. 위치 반칙을 할 경우, 상대편에 1점과 서비스 권을 주게 되는 제재를 받는다. 제7조(선수의 권리) <개정'18.01.26> 1. 부상 보호 요청 2. 판정 재심 이의 신청 3. 기타 제8조(선수의 의무) <개정'18.01.26> 1. 주최 측의 운영에 대해 적극적으로 협조할 의무가 있다. 2. 대회 출전에 앞서 반드시 자신의 건강상태를 체크하여야 한다. 3. 심판의 권위를 인정하고, 심판판정에 대해 무조건적으로 복종하여야 한다. 또한, 경기에서 심판의 판정이 오심이라 하더라도 결코 번복되지 않음을 인지하여야 한다. 4. 선수와 그 관련자(세컨진)는 대회규정을 엄격히 준수하여야 한다. 5. 경기 당일 지정한 시간 내에 반드시 대회장에 입장하여야 한다. 제9조(복장) <개정'18.01.26> 1. 선수들의 복장은 상의, 반바지나 긴 바지, 양말과 운동화로 구성된다. 경기자들은 신발을 신지 않고 경기를 할 수 있다. 단, 입식배구는 맨발로 경기할 수 있으며, 좌식배구는 맨발로 경기할 수 없다.<개정 2024.09.27.> 2. 팀의 상의, 반바지, 긴 바지, 사이클링 반바지/레깅스, 양말의 색상 및 디자인은 동일해야 하며(리베로 제외), 깨끗해야 한다. 3. 신발은 힐이 없이 고무 또는 합성 바닥으로 만들어져 가볍고 유연해야 한다. 4. 선수 셔츠의 번호는 1∼99번까지이고, 번호는 상의 앞, 뒷면 중앙에 위치하며, 번호의 색상 및 밝기는 상의와 대조되는 것이어야 한다.<개정 2024.09.27.> 5. 번호는 상의 앞가슴에 최소 15cm, 등에 최소 20cm 높이로 해야 하고, 번호의 글자 형태는 최소 2cm너비로 새겨져야 한다. 또한 팀 주장은 상의 가슴 부분에 새겨진 번호 아래에 8X2cm 선을 반드시 넣어야 한다. 6. 팀 유니폼 색상과 다른 유니폼을 입거나 공식 번호가 없는 유니폼을 착용하는 것은 금지된다(리베로 제외). 제10조(경기운영본부 및 심판진, 의료진) <개정'18.01.26> 원활한 대회와 경기진행을 위해 경기운영본부 및 심판진, 의료진을 둔다. 다만, 의료진은 항시 대기하여야 하며, 경기운영본부 또는 주심의 요청이 있을 경우, 즉시 선수 상태를 파악하고 선수의 계속적인 경기가능 여부를 통보하여야 한다. 제11조(선수의 부상 및 사고) <개정'18.01.26> 1. 선수는 경기 도중의 부상과 사고방지를 위해 최선의 노력을 다하여야 한다. 2. 경기 도중 부상 및 사고가 발생할 경우 경기운영본부는 의료진에게 의뢰하여 사후 조치하여야 한다. 제12조(임원진) <개정'18.01.26.,개정 2024.09.27.> 1. 임원은 1명의 감독, 최대 2명의 코치, 1명의 물리치료사와 1명의 의사로 구성할 수 있다. 2. 임원은 경기 도중 지정한 곳에 위치한다.<개정 2024.09.27.> 3. 감독만이 시합도중 선수에게 지시가 가능하다. <개정'18.01.26> 4. <삭제 2024.09.27.> 5. 대회와 그 경기장에서 임원은 대회운영본부가 제공 또는 인정한 용품만을 사용 할 수 있다.<개정 2024.09.27.> 6. 주심 지시에 반하는 임원는 즉시 퇴장이 가능하다.<개정 2024.09.27.> 7. 임원는 주심의 판정 및 지시에 절대 복종하여야 한다.<개정 2024.09.27.> 8. 삭제 <’24.7.25> 제13조(전국대회 운영) <개정'18.01.26> ① 명칭에 “전국”이란 단어가 들어가는 대회는 협회 정관 제7조 제1항 제4호에서 제5호에 의거하여 전문체육대회로 대한장애인배구협회에서 승인을 득한 대회만 “전국” 명칭을 넣을 수 있다.<개정 2024.09.27.> ② 각 시·도 협회들은 연간 공모사업계획서를 12월31일 전 제출하여야 하며, 제출받은 공모사업계획서를 대한장애인체육회의 대회 운영지침에 의거하여 이사회에서 심사 후, 심사에 통과한 대회만 지원한다. ③ 제13조 제2항에 의거하여 심사에 통과 한 대회가 대회를 변경 하거나 취소할 경우 법제상벌위원회에서 검토 후 징계조치 할 수 있다. 제2장 부 칙 제14조(시행일) 이 규정은 대한장애인배구협회 이사회가 승인한 날(2007년 2월3일)부터 시행한다. 제15조(시행일) 이 규정은 대한장애인배구협회 이사회가 승인한 날(2015년 2월7일)부터 시행한다. 제16조(시행일) 이 규정은 대한장애인배구협회 이사회가 승인한 날부터 시행한다. 부 칙('18.1.26) 제 1 조(시행일) 본 규정은 이사회에서 승인을 받은 날부터 시행한다. 부 칙('24.0.27) 제 1 조(시행일) 본 규정은 이사회에서 승인을 받은 날부터 시행한다.제정 2007.2.3. 개정 2015.2.7. 개정 2019.10.8.
제1장 총 칙 제1조(설치) 장애인배구단을 창단을 하고자 하는 팀은 본 규정에 의하여 창단할 수 있다. 제2조(목적) 팀 창단에 따른 부작용과 사회적 물의를 사전에 방지하여 건전한 장애인 스포츠 문화를 정착시키기 위한 풍토를 조성하고, 장애인배구의 육성․보급․발전을 도모하기 위하여 이 규정을 정한다. 제3조(창단승인) ① 창단 승인을 받고자 하는 팀은 다음과 같은 서류를 제출하여야 한다. 1. 창단신청서(붙임1) 2. 선수 명단(붙임2) 3. 운영계획서(붙임3) 4. 스포츠등급분류증, 장애인등록증 또는 선수‧지도자‧체육동호인‧심판 등록규정 제6조1호에서2호에 해당하는 증명서<개정 ‘19.10.8> ② 창단승인은 본 협회 이사회에서 최종 결정한다. 제4조(승인취소) 창단승인 후 본래의 취지 및 목적에 어긋나 사회적인 물의를 야기할 경우 이를 취소할 수 있다. 제5조(창단규정) ① 창단 팀은 최소장애 선수로 분류된 최대 2명 포함할 수 있고, 한 팀의 최소 등록인원은 7명으로 하되 최대 등록인원은 20명으로 한다. 임원은 1명의 감독, 최대 2명의 코치, 1명의 물리치료사와 1명의 의사로 구성할 수 있다. ② 기존 협회 등록선수가 과반수 이상 이면 창단을 불허 한다. 다만, 팀 해체로 인해 소속팀이 없거나 또 는 2년 이상 선수등록을 하지 않은 선수는 예외로 한다.<개정 ‘19.10.8> ③ 기존 협회에 가입된 팀 중 특정한 한 팀에서 2명 한해서만 선수를 영입할 수 있다.<개정 ‘19.10.8> 제6조(준용규정) 본 규정에 미비 된 사항에 대하여는 상위법을 준용한다. 제7조(시행일) 이 규정은 대한장애인배구협회 이사회가 승인한 날(2007년2월 3일)부터 시행한다. 제8조(시행일) 이 규정은 대한장애인배구협회 이사회가 승인한 날(2015년2월 7일)부터 시행한다. 부 칙 (‘19.10.8) 제1조(시행일) 이 규정은 이사회의 승인을 받은 날부터 시행한다.
제 정 2011. 01. 28. 개 정 2015. 02. 07. 개 정 2015. 11. 28. 개 정 2018. 01. 26. 개 정 2022. 04. 25.
제1조(설치근거 및 명칭) 본 등급분류위원회는 대한장애인배구협회 정관 제36조에 의거하여 설치하는 위원회로써, 등급분류위원회위원회(이하 “위원회" 라 칭한다)라 칭한다. <개정'18.01.26> 제2조(목적) 본 위원회는 장애인배구경기를 할 수 있는 기능적 능력을 기초로 등급분류 체계에 관한 사항을 조사, 연구, 심의하고 이사회의 자문에 응함을 목적으로 한다. 제3조(기능) 본 위원회는 다음 각 호의 업무를 검토하고 심의한다. 1. 장애인배구 선수 의무등급분류 <신설 '18.01.26> 2. 장애인배구등급분류 강습회 및 세미나 개최 3. 장애인배구 등급분류 규정의 출판 4. 선수들의 등급분류 기록의 작성 및 관리 5. 기타 본 위원회의 목적달성에 필요하다고 인정되는 사업 제4조(조직) ①위원회는 다음의 위원으로 구성한다. 1. 위원장 1인 2. 부위원장 1인 3. 위원 7인 이내(위원장, 부위원장 포함)<개정'18.01.26> ②위원회의 원활한 운영을 위하여 간사 1인을 둘 수 있으며 위원장이 위촉한다. <개정'18.01.26> 제5조(임기) ①위원(위원장, 부위원장, 포함)의 임기는 4년으로 하고, 정기총회를 기준으로 한다. ②보선된 위원의 임기는 전임자의 잔여기간으로 한다. <개정'18.01.26> 제6조(위원의 위촉) ①위원(위원장, 부위원장 포함)은 회장이 추천한 자를 이사회에서 위촉한다. ②결원발생시 회장이 추천한 자를 위원회에서 위촉한다. 제7조(회의) ①위원회의 회의는 회장 또는 위원장의 요청에 따라 개최한다. ②위원회의 회의는 위원회에서 특별히 규정한 것을 제외하고는 재적위원 과반수의 출석으로 개의하고, 출석위원 과반수 찬성으로 의결한다. 제8조(위원의 해촉) 회장은 위원이 다음 각 호의 어느 하나에 해당하는 경우 해촉할 수 있다. 1. 본인이 희망하여 사임서를 제출한 경우 2. 위원이 질병, 해외출장, 그 밖의 사유로 장기간 출석이 곤란하여 직무를 수행하기 곤란하다고 판단되는 경우 3. 실정법 위반 등 위원의 품위를 손상하는 행위로 인하여 직무수행이 부적합하다고 판단되는 경우 제9조(등급분류 심의) ① 등급분류는 선수는 반드시 선수등록 전에 반드시 받아야 하며 국제등급분류 규정 변경시에는 이후 출전경기 전까지 등급분류 재심사를 받아야 한다. ② 확정등급시에는 P (“Permanen Statust”) 등급을 부여하며 판정이 애매한 경우 우선 임시등급인 R (“Review Status”)를 부여하고 경기 관찰 혹은 등급분류위원회의 재심의 후 확정등급을 부여한다. ③ 국내 등급분류는 국제 등급분류집에 의거하여 평가하며 국제 등급분류 사항에 따른 입식배구에는 등급을 ABC 의 등급을 좌식배구는 D(Disabled) MD(Minimally Disabled)로 부여한다. ④ 등급재심사 및 상위등급분류에 필요한 제반의 비용 및 절차는 본인이 부담하며 등급분류서를 받아 제출한다. 제10조 (등급분류 이의제기 및 항소) ① 협회의 등급분류의 등급에 이의가 있는 경우에는 이의제기 신청 후 재심청구가 가능하며 상위 국제등급분류사의 등급을 받아 제출 또한 가능하다. ② 상대팀 혹은 다른 선수에 대한 등급에 이의가 있는 경우 항의 신청이 가능하며 항의 신청 후 해당선수의 재평가를 실시한다. ③ 이의제기에 의한 재평가에 필요한 제반비용 및 절차는 본인이 부담하며 항소의 의한 제반비용은 항소자가 부담하고 항소의 결과가 항소자의 의견과 일치 할시 항소비용은 되돌려준다. ④ 전문부의 등급분류는 ①②③에 준하고. 어울림부의 등급분류는 국가에서 인정한 장애 등급과 구분을 기준으로 한다.<신설 ‘22.04.25.> ⑤ 어울림부는 국가에서 발급한 장애인증만으로 인정한다. 다만 선수들은 경기전에 국가에서 발급한 장애인증을 등급분류위원에게 제시하여 확인토록 하고 만약 등급분류위원이 부재 시 전문위원에게 제시하여 확인토록 한다.<신설 ‘22.04.25.> ➅ 만약 부정한 방법으로 동 조건을 충족하였더라도 발견이 되면 경기는 즉시 중단이 되고. 부전패가 선언이 되며. 경기가 끝난 이후라도 발견이 되면 부정한 방법으로 경기에 임한 시점부터 그 경기는 소급하여 몰수패를 선언한다.<신설 ‘2022.04.25.> 제11조 (등급분류 비용) ① 등급분류의 비용은 3만원으로 한다. ② 이의제기에 의한 재평가의 비용은 2만원으로 한다. ③ 항소에 대한 비용은 5만원으로 한다. ④ 등급분류카드를 분실 시 재발급비용은 1만원으로 한다. 부 칙('11.01.29) 제1조 (시행일) 본 규정은 이사회가 승인한 2011년 01월 29일부터 시행한다. 부 칙('15.2.7) 제1조 (시행일) 본 규정은 이사회가 승인한 2015년 2월 7일부터 시행한다. 부 칙('15.11.28) 제1조 (시행일) 본 규정은 이사회가 승인한 2015년 11월 28일부터 시행한다. 부 칙('18.1.26) 제1조 (시행일) 본 규정은 이사회가 승인한 날로부터 시행한다. 부 칙('22.04.25) 제1조 (시행일) 본 규정은 이사회가 승인한 날로부터 시행한다.제 정 2015. 11. 28. 개 정 2020. 01. 21. 전 부 개 정 2021. 02. 22. 개 정 2022. 11. 10. 개 정 2024. 09. 27.
제1조(목적) 이 규정은 국가대표의 선발이 공정하고 객관적인 절차를 통해 이루어 질 수 있도록 하는데 그 목적이 있다. 제2조(용어의 정의) ①‘국가대표’란 ‘국가대표선수’ 및 ‘국가대표지도자’를 말한다. ②‘국가대표선수’란 「국민체육진흥법」제2조 제4의 2에 의거 대한장애인체육회(이하“장애인체육회”라고 한다.) 또는 대한장애인배구협회가 국제대회(친선경기대회는 제외한다. 이하 같다.)에 우리나라의 대표로 파견하기 위하여 선발·확정한 자를 말한다. ③‘국가대표지도자’란 국가대표 선수의 훈련 등을 지도하기 위해 장애인체육회 또는 대한장애인배구협회에서 선임한 사람을 말하며, 종목별로 감독, 코치로 구분한다. ④“트레이너”는 국가대표 지도자 및 선수를 지원하기 위해 체력, 기술, 영상분석, 훈련장비 관리 등을 담당하는 사람을 말한다. ⑤"선수경력"이란 장애인체육회 선수ㆍ지도자ㆍ체육동호인ㆍ심판등록규정에 따라 선수로 등록하고 활동한 경력으로 대한장애인배구협회가 증명할 수 있는 경력을 말한다. ⑥"지도자경력"이란 장애인체육회 「선수·지도자·체육동호인·심판등록규정」에 따라 지도자로 등록하고 선수를 지도한 경력으로 대한장애인배구협회가 증명할 수 있는 경력을 말한다. ⑦“장애인스포츠지도사”, “전문스포츠지도사”는 국민체육진흥법 시행령 제제9조 및 9조의3의의 자격 보유자를 말한다. <개정‘22.11.10.> ⑧“강화훈련”은 대한장애인배구협회에서 선발한 선수 및 지도자가 체육회의 승인을 받아 선수촌 등에서 실시하는 훈련으로, 연간 정기적으로 시행하는 ‘상시훈련’ 및 종합대회 참가를 위해 한시적으로 시행하는 ‘특별훈련’을 포함하여 말한다. <개정 ‘22.0.0.> ⑨“지도자 재임용”은 심사를 거쳐 연임하는 것을 말한다. <신설 ‘22.11.10.> 제3조(적용범위) 대한장애인배구협회 국가대표 선발과 관련해서는 법령 및 상위의 다른 규정에서 특별히 규정하지 않는 한 이 규정을 우선 적용한다. <개정 ‘22.11.10> 제4조(국가대표 지도자 및 트레이너 선발 절차) ①국가대표 지도자는 대한장애인배구협회 전문체육위원회에서 후보자의 평가 및 결과를 심의ㆍ추천하면, 대한장애인배구협회의 이사회에서 선발한다. <개정 ‘22.11.10> ②제1항에 따라 국가대표 지도자를 선발한 가맹단체는 계약 기간을 포함한 선발 내용을 장애인체육회로 보고하여야 하며, 장애인체육회는 전문체육위원회 심의를 거쳐 이를 확정한다. <신설 ‘22.11.10’> ③장애인체육회 국가대표 강화훈련에 참여하지 않고 대한장애인배구협회에 의하여 종목별 국제대회에 파견하는 지도자 및 트레이너는 종목별 선발절차를 거쳐 확정된 후 종목별 국가대표로서 자격을 갖는다. ④트레이너는 전문체육위원회에서 후보자의 평가 및 결과를 심의ㆍ추천하면 대한장애인배구협회의 장이 선발하고 장애인체육회에 보고한다. ⑤국가대표 지도자를 외국인으로 선발하고자 할 경우에는 공개선발을 하지 않을 수 있으나, 제1항의 절차를 따라야 한다. 제5조(국가대표 지도자 선발방법 및 시기) ①국가대표 지도자의 선발은 공개선발을 원칙으로 한다. ②선발공고 시 계약기간, 활동범위, 재임용 조건과 절차를 명확히 하여 채용이 이루어질 수 있도록 한다. <신설 ‘22.11.10.> ③선발과정 및 결과는 공개하여야 하며, 회의록 등 선발근거 자료를 최소 5년 이상 보관하여야 한다. ④국가대표 지도자의 재임용 시, 해당 지도자의 평가서를 작성하여 평가한다. 재임용하는 국가대표 지도자에 대해서는 최초 계약 일을 기준으로 1년이 경과되기 전에 가맹단체 전문체육위원회에서 재임용평가서를 심의하여 결정한다. <개정 ‘22.11.10.> ⑤ 재임용 대상자 선정 및 절차는 국가대표선발규정 제4조 ①을 따른다. <신설‘22.11.10.> ⑥국가대표지도자 선발은 각 대한장애인배구협회 국가대표선수 선발에 해당 지도자가 참여할 수 있도록 국가대표선수 선발 실시 전에 확정하여야 한다. 제6조(국가대표 지도자의 자격) ①국가대표 지도자(감독, 코치)는 다음 각 호에 해당하는 자로 선발한다. 1. 감독은 장애인스포츠지도사 자격증 소지자로 7년 이상(코치의 경우 5년이상)의 선수경력(대한체육회 선수경력 포함) 또는 5년 이상(코치의 경우 2년 이상)의 장애인 경기지도 경력이 있어야 한다. 2. 해당 종목 국가대표선수 은퇴자로 패럴림픽대회(데플림픽 포함) 1회 이상 출전 또는 장애인아시아경기대회(아시아태평양농아인경기대회 포함)에서 메달을 획득한 자. 단, 이 경우 해당 지도자는 지도자로 선발된 후 2년 이내 장애인스포츠지도사 자격증을 취득해야 하고, 위 기한 내 취득하지 못할 경우에는 선발이 자동으로 취소되는 것으로 한다. 3. <삭제 ‘22.11.10.> ②자격증 취득이 불가능한 장애인 특수종목의 경우, 종목별 대한장애인배구협회장의 추천에 의거 장애인체육회 전문체육위원회의 심의를 거쳐 국가대표지도자로 선발한다. ③감독, 코치 이외에 트레이너를 둘 수 있다. ④패럴림픽대회(데플림픽),장애인아시아경기대회(아·태농아인경기대회 포함), 유형별종합대회 등 종합대회에 참가하는 국가대표지도자는 해당 가맹단체에서 선발하고, 장애인체육회가 전문체육위원회에서 심의를 거쳐 최종 확정한다. 단 패럴림픽대회의 경우 대회 대비 훈련개시 최소 3개월 전에 국가대표지도자를 선발하여야 한다. <개정‘22.11.10.> ⑤국가대표지도자(감독, 코치 및 트레이너를 모두 포함)는 최종 선발 당시까지 성폭력관련 범죄경력(징계경력을 포함)이 없는 사람이어야 한다. 제7조(국가대표 트레이너 자격) ①트레이너는 해당 분야의 전문 자격을 보유하여야 한다. ②제1항에 해당하지 않은 사람을 선발할 경우 2년 이상의 해당 분야에서 활동한 경력이 있어야 하고 해당 분야 및 장애인스포츠지도사, 전문스포츠지도사, 생활스포츠지도사 자격이 있는 사람을 선발하도록 권장한다. 제8조(국가대표선수 선발 절차) ①국가대표 선수는 대한장애인배구협회의 국가대표 선발규정에 따라 선발하는 것을 원칙으로 하며, 대한장애인배구협회의 전문체육위원회가 선발 일정 등 세부사항의 결정과 국가대표 선수의 선발 결과를 심의한 후 후보자를 추천하면, 대한장애인배구협회의 장이 결정하고 장애인체육회에 보고하며, 전문체육위원회 심의를 거쳐 장애인체육회가 확정한다. <개정‘22.11.10.> ②장애인체육회 국가대표 강화훈련에 참여하지 않고 대한장애인배구협회에 의하여 종목별 국제대회에 파견하는 선수는 종목별 선발절차를 거쳐 확정된 후 종목별 국가대표로서 자격을 갖는다. ③국가대표 선수 선발은 최소 연 1회 이상 공개 선발전을 통한 정기선발을 원칙으로 한다. 대한장애인배구협회의 국가대표 선발규정이 정한 선발전 순위 등 종목 특성을 반영하여 객관적인 평가지표(별표1)를 기준으로 선발하되, 전문체육위원회에서는 국가대표 지도자의 추천을 받아 선발할 수 있다. 1. 남·녀 팀당 각14명 이내의 선수를 선발 한다.<개정‘24.9.27> 2. 평가표 순위에 따라 선발한다 3. 평가표 점수가 평균 60점 미만인 자는 선발대상에서 제외한다 ④대한장애인배구협회는 국가대표 상시훈련에 참가하는 국가대표 선수를 전년도 12월 31일까지 선발을 완료하여, 이를 장애인체육회에 보고하는 것을 원칙으로 한다. ⑤국제대회 파견을 위한 국가대표선수의 선발 시기는 이를 사전에 장애인체육회에 보고하고, 해당 국제기구가 정한 일정에 따라 선발하여야 한다. ⑥대한장애인배구협회의 장은 국가대표 선수를 선발하기 위해서는 최소한 선발일 2개월 이전에 다음 각 호의 사항을 포함하여 대한장애인배구협회 또는 장애인체육회 홈페이지에 공고하고 관련단체에 통지하는 것을 원칙으로 한다. 단, 국제종목연맹의 대회 참가요건의 공지가 늦어지는 경우 공고 지연에 대한 사유를 홈페이지 등을 통해 공고하고 선발 공고시기를 달리할 수 있다. 1. 국가대표 선수 선발개요 2. 국가대표 선수 선발기준, 방법 및 근거 3. 해당 국제기구가 제시하는 대회 참가 기준 및 요강 4. 기타 국가대표 선수 선발 관련자료 등 ⑦대한장애인배구협회는 국가대표 선수를 선발하면 즉시 선발 사유 및 과정 일체를 포함한 선발 개요를 공고하여야 한다. ⑧국가대표로 선발된 선수의 부상, 경기력 부진, 국제대회 출전 불응 등에 따른 결원이 발생할 경우에는 심의 없이 국가대표 선발 순위에 따라 차 순위 선수가 국가대표 선수가 된다. 결원이 발생할 경우를 대비하여 국가대표 선수 선발 시에는 포지션별 차 순위를 선정하여야 한다. ⑨대한장애인배구협회 전문체육위원회는 국가대표로 선발된 선수에 대하여 등급분류 관련 서류 및 절차에 대하여 반드시 점검하고 그 점검결과를 평가서에 기재하도록 한다. 제9조(국가대표 선수 자격) ①국가대표 선수는 대한민국 국적을 가진 사람이어야 한다. 다만, 종목별 국제연맹에서 정한 규정에 따라 대한민국 국적이 아닌 사람이 대한민국을 대표하여 각종 국제대회에 출전할 수 있는 경우에는 예외로 한다. ②국가대표 선수는 대한장애인배구협회에 선수로 등록된 사람으로 한다. 다만, 선발 당시 선수로 등록되지 않은 사람은 한시적으로 대한장애인배구협회의 소속 선수로 등록하여야 한다. 제10조(결격사유) 음 각 호의 어느 하나에 해당되는 자는 국가대표가 될 수 없다. 1.「국가공무원법」제33조(결격사유) 각 호의 어느 하나에 해당하는 사람 2. 장애인체육회 또는 대한장애인배구협회에서 금지약물을 복용하거나, 약물사용 허용 또는 부추기는 행위로 징계처분을 받고 징계기간이 만료되지 아니한 자 3. 국민체육진흥법 제2조제9호 가목부터 다목까지의 체육단체 및 시도ㆍ시군구 종목단체에서 다음 각 목에 따른 사람 가. 폭력, 성희롱ㆍ성매매 또는 성폭력과 관련된 비위 행위(강간ㆍ강제추행 포함)로 자격정지 이상의 징계 처분을 받은 사람 나. 승부조작, 편파판정, 국가대표 및 강화훈련 선수 선발과 관련한 불공정 행위(부정선발, 담합, 금품수수), 횡령ㆍ배임 행위로 자격정지의 징계를 받은 사람 다. 가목과 나목에 해당하는 사람을 제외하고 자격정지 이상의 징계처분을 받고 그 기간이 종료되지 아니한 사람 4. 국민체육진흥법 제2조제9호 가목부터 다목까지의 체육단체 및 시도ㆍ시군구 종목단체에서 재직기간 중 직무와 관련하여 「형법」 제355조 및 제356조에 규정된 죄를 범한 사람으로서 300만 원 이상의 벌금형을 선고받고 그 형이 확정된 사람 5. 국민체육진흥법 제2조제9호 가목부터 다목까지의 체육단체 및 시도ㆍ시군구 종목단체가 주최ㆍ주관하는 경기의 결과에 영향을 미치는 승부조작에 가담하여 「형법」 제314조 및 「국민체육진흥법」 제47조 및 제48조에 규정된 죄를 범한 사람으로서 벌금형 이상을 선고받고 그 형이 확정된 사람 6. 음주운전 등과 관련한 행위로 도로교통법 제148조의2의 처벌을 받은 사람으로서 다음 각 목의 어느 하나에 해당하는 사람(형이 실효된 자를 포함한다) 가. 500만원 이상의 벌금형의 선고를 받고 그 형이 확정된 후 3년이 지나지 않은 사람 나. 500만원 미만의 벌금형의 선고를 받고 그 형이 확정된 후 2년이 지나지 않은 사람 7. 도박과 관련된 행위로 형법 제246조 또는 제247조의 죄를 범한 사람으로서 다음 각 목의 어느 하나에 해당하는 사람(형이 실효된 자를 포함한다) 가. 1천만원 초과의 벌금형의 선고를 받고 그 형이 확정된 후 3년이 지나지 않은 사람 나. 1천만원 이하의 벌금형의 선고를 받고 그 형이 확정된 후 2년이 지나지 않은 사람 8. 대한장애인배구협회(시도지부 포함)의 회장, 부회장, 전무이사의 경우 국가대표 지도자를 겸직할 수 없고, 상기 직위를 사임한 경우라도 사임 후 2년 동안은 국가대표지도자로 선발될 수 없음 9. 사회적으로 물의를 일으켜 체육인의 품위를 손상시킨 자 제11조(국가대표 선발의 이의 신청) ①대한장애인배구협회의 장은 선발된 국가대표의 명단을 공개한 후 10일간의 이의신청 기간을 두어야 한다. ②대한장애인배구협회의 장은 이의를 신청한 사람에게 민원사무처리 절차에 따라 처리결과를 회신하고, 그 처리내용을 장애인체육회에 보고하여야 한다. ③다음 각 호의 사람은 국가대표 선발에 이의신청을 할 수 있다. 1.대한장애인배구협회에 등록된 선수 2.국가대표 선발전에 출전한 선수의 보호자, 지도자, 소속팀의 장 제12조(자료의 보관) 대한장애인배구협회는 국가대표 선발기준, 과정, 결과를 투명하게 공개하여야 하며, 이의제기 시 확인이 가능하도록 선발근거(선발결과 기록지, 분석지, 및 회의록 등) 관련 자료를 최소 5년간 보관(관리)하여야 한다. 제13조(국가대표 선수단의 임기) 국가대표지도자의 신분 보장과 안정적인 선수 관리를 위해 최소 1년 이상 임기(계약기간)를 보장하고 계약서를 작성한다. 제14조(국가대표의 임무) ① 국가대표지도자의 임무는 다음과 같다. 1.국가대표 선수의 훈련계획 수립 및 지도와 관리 2.국가대표 선수, 트레이너 선발에 대한 의견 제시 3.국가대표 선수의 경기력 부진 및 부상 등에 따른 훈련제외 건의 4.국가대표 선수의 국ㆍ내외 전지훈련과 국제대회 출전 시 인솔 5.국가대표로 출전한 대회의 결과보고 및 선수 평가 6.국가대표로 출전하는 대회의 경기규정 및 소청규정의 숙지와 심판판정에 대한 이의제기 7.국가대표 선수의 합숙훈련에 대한 생활지도와 인권 및 안전보호 8.훈련원 지시사항 이행 및 사고발생 시 즉시 보고 9.기타 국가대표 선수의 경기력 향상과 관련되는 사항 등 ②트레이너의 임무는 다음 각 호와 같다. 1.국가대표 지도자 및 선수에 대한 해당 전문분야 지원 2.체력 분야 트레이너는 해당 전문분야의 활동계획 및 강화훈련 선수 현황 작성, 지도자에게 선수별 상태에 대한 의견 제시 3.영상분석 분야 트레이너는 훈련 및 경기 분석결과 보고 4.국가대표 지도자가 경기력 향상 및 선수보호 등과 관련하여 지시한 사항의 이행 5.기타 경기력 향상과 관련한 사항 ③국가대표선수의 임무는 다음과 같다. 1.국가대표 지도자가 계획한 훈련 참여 2.국가대표 지도자가 경기력 향상과 관련하여 지시한 사항의 이행 3.국가대표 지도자가 정당한 인권 및 안전보호를 위하여 지시한 사항의 이행 4.세계반도핑기구에서 금지하는 약물의 복용금지 제15조(성실의무 및 품위유지) 국가대표는 국가를 대표하는 신분임을 명심하고 스스로의 품위를 떨어뜨리는 행위를 삼가야 하며, 사회적 책임감과 도덕성을 유지하도록 노력하여야 한다. 제15조의2(교육) 선발된 국가대표는 장애인체육회 또는 공공기관에서 실시하는 (성)폭력 예방 교육, 장애인권 및 인식개선(지도자) 및 반도핑 교육을 년 1회 이상 의무적으로 이수하고, 이수확인서를 기일 이내 대한장애인배구협회(또는 장애인체육회)에 제출하여야 한다. <개정 ‘22.11.10.> 제16조(국가대표의 보호 및 지원) 장애인체육회와 대한장애인배구협회는 국가대표의 인권과 권익을 보호하고 훈련 여건의 향상을 위해 다음 각 호의 노력을 하여야 한다. 1.적정한 수준의 훈련수당 지원 2.국가대표의 인권과 권익을 보호할 수 있는 예방교육 시행 및 고충처리 절차 마련 제17조(국가대표 선발규정의 제ㆍ개정) ①대한장애인배구협회는 이 규정을 준용하여 국가대표 선발규정을 제정 또는 개정하여야 한다. ②대한장애인배구협회는 국가대표 선발규정에 반드시 장애인체육회 강화훈련에 참가하는 선수, 지도자, 트레이너의 선발과 관련한 내용을 포함하여야 한다. ③대한장애인배구협회에서 제·개정한 국가대표 선발규정은 제·개정 후 즉시 장애인체육회에서 승인을 득하여야 한다. ④대한장애인배구협회는 국가대표 선발규정에 의거하여, 해당연도의 국가대표 선발 공지가 이루어진 이후에는 국가대표 선발과 관련한 조항을 개정할 수 없고, 차기연도 국가대표 선발 공지 이전 개정하여야 한다. ⑤제4항에도 불구하고 규정 개정 후 시행에 있어 특별한 사유가 발생하여 6개월 이내에 제ㆍ개정이 필요할 경우, 대한장애인배구협회는 반드시 사전에 변경사유에 대하여 장애인체육회와 협의하여야 한다. 제18조(국가대표 훈련의 관리) 국가대표 훈련에 관해 이 규정에서 정하지 않은 세부사항은 장애인체육회가 강화훈련 운영에 관한 별도 지침을 정하여 시행한다. 제19조(징계) ①대한장애인배구협회는 국가대표를 구성함에 있어 본 규정을 위반하였거나 사회적 물의를 일으킨 국가대표에 대하여 징계 할 수 있다. ②징계는 대한장애인배구협회 관련위원회에서 결정하며, 해당연맹에 대한 처분은 장애인체육회가 한다. ③국가대표 징계의 종류는 다음과 같다. 1.경징계: 경고, 견책, 감봉 2.중징계: 출전정지, 자격정지, 해임, 제명 ④대한장애인배구협회 처분의 종류는 장애인체육회 「정관」제11조에서 정한 대한장애인배구협회의 권리사항을 제한(대한장애인배구협회의 경우 대의원 자격의 정지 포함)하거나, 장애인체육회의 지원금 또는 지원 사항을 중단, 회수, 감액 등의 불이익 처분을 말한다. 제20조(전문체육위원회 설치) 대한장애인배구협회는 국가대표 선발과 관련된 다음의 각 호의 사항을 심의하기 위하여 전문체육위원회(이하 “위원회” 라 한다)를 설치·운영한다. 1. 국가대표 강화훈련 참가 선수 및 지도자 선발에 관한 사항 2. 국가대표 강화훈련의 실시, 지도, 감독, 평가분석에 관한 사항 3. 국제경기대회 국가대표 참가에 관한 사항 4. 기타 국가대표 경기력향상과 관련 사항 제21조(위원회의 구성 및 운영) ①위원회는 다음의 위원으로 구성한다. 1. 위원장 1인 2. 부위원장 1인 3. 위원 7인 이내(위원장, 부위원장 포함) ②위원회의 위원들 중에는 장애인선수출신 1인, 여성 1인이 반드시 포함되어야 한다. 장애인선수출신이면서 동시에 여성일 경우에는 장애인선수출신 1인 및 여성 1인 포함 요건이 충족된 것으로 본다. ③위원회는 재적위원 과반수의 출석으로 개회하고, 출석위원의 과반수 찬성으로 의결 한다. ④선수 및 지도자의 선발기준, 확정 관련 안건은 서면결의로 위원회 결의를 대신 할 수 없다. 다만, 선수의 부상, 경기력 부진 등에 따른 일부 선수 교체는 예외로 할 수 있다. ⑤장애유형별 선수선발 시에는 해당 장애유형분과위원회를 포함하여 구성·운영한다. 제22조(위원의 위촉) ①위원장은 대한장애인배구협회장이 위촉한다. ②부위원장은 위원 중에서 호선한다. ③위원은 당해 분야에 관한 전문적인 지식이 있는 자 중에서 대한장애인배구협회장이 위촉한다. 제23조(위원의 임기) 위원회 위원의 임기는 4년으로 하되, 일수를 기준으로 하지 않고 대한장애인배구협회 정기총회를 기준으로 한다. 위원은 1회에 한하여 중임할 수 있다. 제24조(위원회 구성 시 준수사항) ①위원회 위원은 다른 위원회 위원을 겸임할 수 없다. ②대한장애인배구협회 회장과 친족인자(민법 제777조에 따른 친족)는 위원이 될 수 없다. ③동일 대학 재직자가 재적위원수의 20%를 초과할 수 없다.<개정 ‘22.11.10.> ④위원은 해당 종목 지도자를 겸직할 수 없다. 부 칙 (2021. 2. 22.) 제1조(시행일) 이 규정은 대한장애인체육회 승인을 받은 날부터 시행한다. 제2조(경과조치) 이 규정 시행 전 대한장애인배구협회의 국가대표 선발규정에 따라 행한 사항은 이 규정에 의해 시행한 것으로 본다. 제3조(적용) ①이 규정 제6조(국가대표 지도자의 자격)의 장애인스포츠지도사 자격증 소지와 관련한 사항은, 2022년 1월 1일부터 적용하고 전문스포츠지도사 자격증 소지자에 대해서는 2021년 12월 31일까지 한시적으로 적용하며, 적용일 이전까지 장애인스포츠지도사 자격을 취득하지 못한 경우 국가대표 지도자 계약이 만료된 것으로 본다. ②이 규정 제10조제6호는 도로교통법 제148조의 2의 전문개정의 시행일인 2019. 6. 25. 이후 처벌을 받은 사람에게 적용한다. ③이 규정 제10조제7호는 형법 제246조, 제247조의 전문개정의 시행일인 2013. 4. 5. 이후 처벌을 받은 사람에게 적용한다. 부 칙 (2022. 11. 10.) 제1조(시행일) 이 규정은 이사회 승인을 받은 날부터 시행한다. 부 칙 (2024. 9. 27.) 제1조(시행일) 이 규정은 이사회 승인을 받은 날부터 시행한다.
2020. 01. 21. 제정 2021.05.10. 전부개정(규정명변경) 2023. 02. 21. 개정
제1장 총 칙 제1조(목적) 이 규정은 대한장애인배구협회(이하 “장애인배구협회”이라 한다.)가 시행하는 장애인배구 심판자격증 검정(이하 “검정”이라 한다.)의 업무를 엄정하고, 효율적으로 시행하기 위하여 필요한 사항에 대하여 규정함을 목적으로 한다. 제2조(용어의 정의) 이 규정에서 사용하는 용어의 정의는 다음과 같다. 1. “시험위원”이라 함은 출제위원, 감수위원, 본부위원, 책임관리위원, 보조위원, 시험감독위원, 실기보조위원, 채점위원 및 기타 독찰위원을 말한다. 2. “답안지”라 함은 검정 시행종목 중 수작업에 의하여 채점되는 필기시험 답안지 (주관식 시험문제지 포함) 및 실기시험 시행 시 순수 필답형으로 시행하는 종목의 답안지를 말한다. 제3조(적용대상) 이 규정은 검정을 시행하는 장애인배구협회 직원과 자격증 검정 관련 종사자(시험위원 등) 및 기타 검정업무와 관련이 있는 자(수험자 등)에게 적용한다. 제2장 업무구분 제4조(검정업무의 구분) ① 장애인배구협회는 심판 자격증의 검정업무 전반을 주관․시행하며, 다음 각 호의 업무를 수행한다. 1. 검정시행계획의 수립 및 공고에 관한 사항 2. 검정 출제기준의 작성 및 변경에 관한 사항 3. 검정업무의 기획, 제도개선에 관한 사항 4. 시험위원의 위촉․활용에 관한 사항 5. 검정 시험문제의 출제․관리 및 인쇄․운송에 관한 사항 6. 필기시험 답안지의 채점 및 합격자 사정에 관한 사항 7. 합격자 관리 및 자격수첩 발급․관리에 관한 사항 8. 검정사업 일반회계 운영에 관한 사항 9. 수험원서 교부․접수, 수험연명부 작성 및 안내에 관한 사항 10. 검정 세부실시계획 수립 및 운영에 관한 사항 11. 검정집행업무(시험장 준비, 시험위원 배치, 시험시행 등)와 관련된 사항 12. 실기시험 답안의 현지채점에 관한 사항 13. 합격자 명단 게시공고 및 자격증 교부에 관한 사항 14. 시험위원 추천 및 위촉업무에 관한 사항 15. 부정행위자 처리에 관한 사항 16. 검정수수료 수납에 관한 사항 17. 기타 민간자격검정 업무 및 기타 검정사업의 집행업무와 관련된 사항 ➁ 장애인배구협회는 검정에 필요한 인력으로서 심판위원회의 장, 장애인배구협회 직원1인 외, 기타 약간 명의 일용직 직원과 심판 자격시험 관리위원을 둘 수 있다. 제3장 검정기준 및 방법 제5조(장애인배구 심판자격증의 취득) 본 장애인배구 심판자격증을 취득하고자 하는 자는 시험에 응시하여 합격하여야 한다. 제5조의 1(심판자격증의 직무 및 심판자격증 소지자의 등급별 직무) 본 장애인배구 심판자격증 소지자는 대한장애인배구협회에 등록된 장애인배구 심판자로서 장애인배구 경기에 배정되어 경기 규칙에 따라 공정하게 직무를 수행한다. 1급 - 본 협회의 모든 장애인배구경기 주심, 부심, 선심, 기록으로 직무를 수행한다. 2급 - 본 협회의 모든 장애인배구경기 부심, 선심, 기록으로 직무를 수행한다. 3급 –본 협회의 모든 장애인배구경기 선심, 기록으로 직무를 수행한다. 제6조(자격명) 자격명은 장애인배구 심판자격증이다. 제7조(검정의 기준) 검정의 기준은 다음과 같다. ① 장애인배구 심판자격증 1급 1. 배구경기의 뛰어난 경기운영 능력 및 최고급 전문지식을 갖춘 수준의 심판 2. 윤리적 기본 소양 등의 능력을 갖춘 최고급 수준의 심판 3. 배구경기를 공정하게 판정 할 수 있는 최고급 수준의 심판 ② 장애인배구 심판자격증 2급 1. 배구의 고급 수준의 전문지식을 갖춘 수준의 심판 2. 경기기록 등 문서 업무의 능력을 갖춘 수준의 심판 3. 윤리적 기본 소양 등의 능력을 갖춘 고급 수준의 심판 ③ 장애인배구 심판자격증 3급 1. 장애인배구 심판 능력을 갖춘 자 2. 윤리적 기본 소양 등의 능력을 갖춘 수준의 심판 제8조(검정의 방법) ① 검정은 실기시험, 필기시험, 기타 (경기기록지 작성)로 시행함. ② 필기시험의 방법은 다음과 같다. 1. 시험과목은 자격급수에 따라 출제기준에 정한 과목으로 한다. 2. 시험형태는 4지 또는 5지선다 객관식 및 주관식 혼용으로 한다. 3. 과목별 시험문항 수 및 시험시간은 별표1과 같다. ③ 실기시험의 방법은 다음과 같다. 1. 급수별로 주어진 과제해결을 통한 현장실무능력을 측정한다. 2. 시험시간은 1시간 ~ 2시간으로 각 급수의 평가항목별 배정시간으로 한다. 3. 평가방법은 “장애인 배구”를 원칙으로 하며 각 과목의 평가항목별 세부배점 기준에 따라 점수를 부여한다. ➃ 기타(경기기록지 작성)의 방법은 다음과 같다 1. 주어진 과제를 통해 경기기록지 작성능력을 측정한다. 제9조(응시자격) 응시자격은 다음과 같다. ① 장애인배구 심판자격증 1급 1. 2급 취득 후 2년 이상 경과한 자 2. 대한체육회 배구 A급 심판자격증을 소지한 자 3. 대한장애인배구협회에서 주관하는 심판강습회에서 소정의 교육시간(출석율90%이상)을 이수한 자 4. 만 18세 이상 ② 장애인배구 심판자격증 2급 1. 3급 취득 후 1년 이상 경과한 자 2. 대한체육회 배구 B급 심판자격증을 소지한 자 3. 대한장애인배구협회에서 주관하는 심판강습회에서 소정의 교육시간(출석율90%이상)을 이수한 자 4. 만 16세 이상 ③ 장애인배구 심판자격증 3급 1. 장애인배구 심판으로서 활동을 희망하는 누구나 2. 배구에 대한 기초지식을 갖고 있는 자 3. 대한장애인배구협회에서 주관하는 심판강습회에서 소정의 교육시간(출석율90%이상)을 이수한 자 4. 만 15세 이상 제10조(검정의 일부 면제) 필기시험 또는 실기시험 중 1개만 합격한 경우, 이후에 시행되는 시험에 있어서 연속하여 2회에 한하여 합격한 필기시험 또는 실기시험을 면제한다. 제11조(합격결정 기준) ① 과목별 배점 비율 실기50%, 이론30%, 작성20%로 한다 ➁ 2급,3급은 각 과목 평균 60점 이상을 합격으로 하되 과락(40점 이하)이 있을 시에는 평균점수가 60점 이상일지라도 불합격으로 한다. ➂ 1급은 각 과목 평균 70점 이상을 합격으로 하되 과락(50점 이하)이 있을 시에는 평균점수가 70점 이상일지라도 불합격 한다. ➃ 필기시험과 실기시험 기타(경기기록지 작성)시험에 모두 합격한 자를 최종합격자로 결정한다. 제4장 수험원서 제12조(검정안내) ① 장애인배구협회는 검정의 종목, 수험자격, 제출서류, 검정방법, 시험과목, 검정일시, 검정장소 및 수험자 유의사항 등을 포함한 검정안내서를 작성 배포할 수 있다. ② 장애인배구의 모든 직원들은 수험자로부터 검정시행에 관한 문의가 있을 때에 이에 성실히 응답하여야 한다. 제13조(수험원서 등) 시험에 응시하고자 하는 자는 수험원서 및 응시자격 관련서류를 제출하여야 한다. 제14조(원서접수) ① 원서접수, 검정수수료(이하 “수수료”라 한다) 수납업무는 복무규정의 근무시간 내에 한함을 원칙으로 한다. ② 원서는 장애인배구협회에서 접수함을 원칙으로 한다. ③ 우편접수는 접수마감일까지 도착분에 한한다. ④ 원서접수 시 접수번호를 부여하고 수험표는 원서접수 마감 후에 일괄 교부한다. 다만, 접수번호는 홈페이지에 게시하여 확인할 수 있다. ⑤ 원서접수 담당자는 원서기재 사항 및 응시자격 관련서류를 확인하고 접수받아야 한다. 제15조(수험번호 부여) 원서접수에 따른 수험번호 부여는 지역별로 지정된 수험번호 부여기준에 따라 부여하여야 한다. 제16조(수수료) ① 검정을 받고자 하는 자는 수수료를 납부하여야 한다. ② 검정을 받고자 하는 자가 이미 납부한 수수료는 과오납한 경우를 제외하고는 이를 반환하지 아니한다. ③ 수수료는 계좌이체로 수납함을 원칙으로 한다. ④ 수수료는 원서접수 시에 수납함을 원칙으로 한다. 단, 마감일에 수납된 수수료는 마감일로부터 2일내에 예입한다. ⑤ 마감 후에 수납된 현금은 금고에 보관하고 은행에 예입할 때까지 필요한 조치를 취해야 한다. ⑥ 수수료에 대한 영수증은 별도 발급하지 않고 수험표로 이를 갈음한다. 단, 단체접수의 경우에는 필요 요청에 따라 수납총액이 기재된 단체접수 영수증을 발급한다. ⑦ 검정수수료는 장애인배구심판 종목은 일금100,000원으로 하고 필기와 실기로 구분하여 각각 소정의 수수료를 납부한다. ⑧ 자격증 재발급 비용은 일금 20,000원으로 장애인배구협회에서 정한 절차에 따라 발급 요청한다. ⑨ 보수교육위한 보수교육 수수료 50,000원으로 장애인배구협회에서 정한 절차에 따라 소정의 수수료를 납부한다.<신설 23.02.21.> 제17조(접수현황 및 수험자 문서 보고) ① 장애인배구협회는 원서접수 마감 종료 후 접수 현황, 검정 수수료 내역 등을 문서로 보관해야 한다. ② 장애인배구협회는 원서접수 마감일로부터 3일 이내에 수험 연명부, 필기시험 면제자 명단, 필기시험 과목면제자 명단, 실기시험 면제자 명단 등 수험자 파일을 문서화하여 내부결재를 득하여야 한다. 제18조(검정시행자료 등의 준비) ① 장애인배구협회는 시험실 배치 계획표, 좌석 배치표, 수험자 명단 등의 시행 자료를 발행해야 한다. 제5장 출제 및 감수 제19조(출제․감수위원 위촉) ① 시험문제를 출제할 때에는 각 종목 또는 과목별마다 출제위원을 위촉한다. ② 시험문제의 출제는 보안을 철저히 유지하도록 하여야 한다. 제20조(출제․감수위원 위촉기준) ① 출제위원 또는 감수위원의 위촉기준은 다음 각 호의 1에 해당하는 자로 위촉한다. 1. 장애인배구 관련 자격증 소지자로서 해당 기술종목에 5년 이상 종사하는 자 2. 장애인배구 심판 자격 소지자로서 해당 분야 현장에서 5년 이상 종사하는 자 3. 배구 분야에서 실무에 종사한 자로서 해당분야에 관한 학식과 경험이 풍부하여 자격이 있다고 인증되는 자 4. 대학교 또는 전문대학에서 해당 기술 분야 전임강사 이상으로 재직하는 자 5. 해당분야에 실무에 종사한 자로서 해당분야에 관한 학식과 경험이 풍부하여 자격이 있다고 인증되는 자 6. 국제심판(WPV) 자격소지자 제21조(시험문제 원고의 인수, 보관, 관리 등) ① 시험문제의 사전유출을 방지하기 위하여 장애인배구협회는 시험문제의 인수, 보관, 관리 등에 대한 지휘․감독의 책임을 지고 보안유지에 최선의 노력을 다하여야 한다. ② 장애인배구협회장은 실무자급 장애인배구 심판 자격 검정 위원으로 시험문제 관리담당자를 지정할 수 있다. ③ 시험문제 관리담당자는 출제위원으로부터 시험문제 원고를 인수한 즉시 출제된 문제가 출제 의뢰한 사항과 일치하는지의 여부를 확인하고 동 시험문제를 봉인한다. ④ 시험문제는 제한구역에 보관하며, 열쇠는 관리담당자가 보관하고, 동 제한구역의 개폐는 장애인배구협회장 또는 시험문제 관리담당자만이 할 수 있다. 제22조(시험문제의 감수) ① 시험문제의 감수는 장애인배구협회가 지정한 장소에서 시험문제 관리담당자가 지정한 직원의 입회하에 수행되어야 한다. ② 시험문제 감수는 종목별 또는 과목별로 시행하되, 시험문제 출제직후에 감수함을 원칙으로 하며, 필요에 따라 시험 직전에 재감수할 수 있다. 제6장 시험문제 인쇄 및 운송 제23조(시험문제 인쇄) ① 시험문제 인쇄는 장애인배구협회 내의 관련업무 종사자 또는 전무이사가 지정한 직원이 수행하여야 하며, 업무의 분량에 따라 인쇄업무 보조요원을 쓸 수 있다. ② 시험문제 인쇄는 장애인배구협회가 지정한 보안시설을 갖춘 곳에서 소정절차 에 따라 실시하여야 한다. 제24조(시험문제지 운송 및 보관) ① 장애인배구협회장은 문제지 운반 시 운반책임자를 지정하여야 한다. ② 장애인배구협회에서 해당 시험장까지 문제지 운반 책임자로 지정된 자는 시험문제 관리담당자로부터 문제지를 인수받아 해당 시험장 책임관리위원에게 직접 인계하여야 하며, 문제지 인계인수사항을 기록하여 장애인배구협회장에게 제출하여야 한다. ③ 문제지 봉투는 시험시작시간 이전에는 여하한 이유로도 개봉할 수 없다. 제7장 검정시행 제25조(검정시행 총괄) 장애인배구협회는 시험위원을 지휘, 감독하며 시험위원회의, 평가회의 주관 등 시험집행 및 시험관리업무를 총괄하여야 한다. 제26조(시험위원 기술회의) 책임관리위원은 시험시행 전에 시험위원회의를 개최, 다음사항을 주지시켜야 한다. 1. 필기시험에 있어서는 문제지와 답안지의 배부 및 회수방법, 답안지 작성방법, 부정행위자 처리요령 등 감독상 유의사항 2. 실기시험에 있어서는 종목별 시행방법에 따르는 수험자 교육사항 및 감독상 유의사항 등 제27조(수험자교육) ① 감독위원은 배치된 시험실에 입장하여 수험자 유의사항, 시험시간, 시험진행요령, 부정행위에 대한 처벌 및 답안지 작성요령 등을 주지시켜야 한다. ② 감독위원은 수험자에게 지정한 필기구, 시설․장비 또는 지급된 재료(공구)이외의 사용을 금지시켜야 한다. 제28조(수험자 확인) 감독위원은 필기시험에 있어서는 매 시험시간마다, 실기시험에 있어서는 수시로 원서부본과 주민등록증 또는 기타 신분증과 수험표를 대조하여 수험자의 본인여부를 확인하여야 한다. 제29조(시험감독 배치 및 문제지 배부) ① 장애인배구협회는 필기시험 및 실기시험의 감독위원 배치는 별표 2와 같이 배치하되, 사업 예산에 따라 필요한 인원에 대해 증액 또는 감소하여 운영 할 수 있다. ② 필기시험 문제지는 시험시작 5분전 예령과 동시에 배부하고, 시험개시 본령과 동시에 수험토록 하며, 답안지 작성이 끝난 수험자의 답안지와 문제지를 회수 확인한 후 퇴실시켜야 한다. 제30조(답안지) 필기시험 감독위원은 시험시간이 종료되면 답안지 회수용 봉투 표지에 수험현황을 기재하고, 감독위원의 성명을 기입, 날인 또는 서명한 다음 감독위원 2인이 시험본부까지 동행하여 본부위원의 확인을 받은 후 수험자 인적사항이 노출되지 않도록 봉인하여 시험본부에 제출하여야 한다. 제31조(문제지 회수) 본부위원은 필기시험 종료즉시 감독위원으로부터 문제지와 답안지 및 사무용품 등을 확인․회수하여야 한다. 제32조(시험시행결과보고) 책임관리위원은 시험종료 후 그 결과를 장애인배구협회 장에게 보고하여야 한다. 이 경우 시험 진행 중 이상이 발생하였을 때에는 그 내용을 구체적으로 유선 보고하고 차후 서면보고 하여야 한다. 제8장 시험위원의 위촉 및 임무 제33조(시험위원의 위촉) ① 실기시험의 감독위원은 다음 각 호의 1에 해당하는 자로 위촉한다. 1. 장애인배구 관련 자격증 소지자로서 해당 기술종목에 5년 이상 종사하는 자 2. 장애인배구 심판 자격 소지자로서 해당 분야 현장에서 5년 이상 종사하는 자 3. 배구 분야에서 실무에 종사한 자로서 해당분야에 관한 학식과 경험이 풍부하여 자격이 있다고 인증되는 자 4. 대학교 또는 전문대학에서 해당 기술 분야 전임강사 이상으로 재직하는 자 5. 해당분야에 실무에 종사한 자로서 해당분야에 관한 학식과 경험이 풍부하여 자격이 있다고 인증되는 자 6. 국제심판(WPV) 자격소지자 제34조(시험위원의 임무) ① 시험위원의 임무는 다음과 같다. 1. “독찰위원”은 독찰을 위하여 특별히 부여된 업무수행과 시험위원의 근무상태 및 시험장의 상황 등을 확인한다. 2. “책임관리위원“은 시험장 시설․장비의 전반적인 책임을 담당하는 자로서 시험장 의 시설․장비 등의 관리와 안전관리 등 전반적인 관리업무를 담당한다. 3. “시험감독위원”은 수험자 교육, 시설․장비 및 재료점검과 확인, 시험문제지, 답 안지 및 작품의 배부 및 회수, 시험질서 유지, 부정행위의 예방과 적발 및 처리, 실기시험의 채점업무를 담당한다. 4. “복도감독위원”은 시험장 복도 질서유지, 시험실내의 수검자를 측면에서 감독하는 업무를 담당한다. 5. “보조위원“은 시험준비 및 시험집행을 보조하는 업무를 담당한다. 6. “시설관리위원”은 시험장 시설․장비의 준비, 동력, 통신, 시험장 점검을 담당한 다. 7. “실기보조위원”은 실기 시험감독위원의 감독 및 채점을 보조하는 업무를 담당한 다. ② 시험위원으로 위촉된 자에 대하여는 소정의 서약서를 징구하여야 한다. 제35조(본부위원의 임무 등) ① 본부위원의 임무는 다음과 같다. 1. 장애인배구협회로부터 검정시행 시험장까지 시험문제지 운반 2. 검정 진행상태 점검 3. 서약서 징구 및 수당지급 4. 책임관리위원의 시험위원 회의 지원 5. 시험문제지 및 답안지 회수 수량 확인 6. 회수한 답안지를 장애인배구협회로 운반 제9장 필기시험 채점 제36조(답안지 인계) ① 본부위원은 필기시험 종료 후 회수한 답안지의 봉인상태 확인 후 장애인배구협회로 인계하여야 한다. ② 답안지는 감독위원이 봉인한 상태로 인계하여야 한다. 제37조(정답교부) ① 장애인배구협회 검정업무 담당자는 필기시험의 주관식 정답이 표시된 정답표를 작성하여 이를 봉인 후 보안시설이 갖추어진 장소에 보관하여야 한다. ② 정답표는 채점개시일에 채점위원이 보는 앞에서 개봉한 후 채점위원에게 인계한다. 제38조(채점과정) ① 필기시험의 객관식 채점은 수기 채점을 실시하며, 주관식 채점은 답안지의 수험자 인적사항이 봉인된 상태에서 진행하여야 한다. ② 정답표는 채점개시일에 채점위원이 보는 앞에서 개봉한 후 채점위원에게 인계한다. 제39조(답안지 관리) 필기시험의 답안지(검정 관련 서류 포함)는 최종합격자 발표일로부터 6개월간 보관한다. 제10장 실기시험 채점 제40조(실기시험위원의 위촉 및 채점) ① 실기채점의 공정성, 효율성 제고 및 종목의 성격을 고려하여 감독 겸 채점위원을 위촉할 수 있다. ② 실기시험의 채점은 관계 전문가를 위촉, 채점함을 원칙으로 한다. ③ 실기시험 평가표에 수험자의 인적사항이 노출되지 않도록 채점함을 원칙으로 한다. ④ 채점과정에서 기 득점분이 잔여배점을 만점으로 가산하여도 60점 미만이거나, 과락이 있을 때에는 나머지 부분을 채점하지 아니하고 불합격으로 처리 할 수 있다. 제41조(실기시험채점) ① 실기시험의 채점은 시험장 현장에서 실시한다. ② 검정종료 후 답안지 및 채점관련 자료는 일체 공개하지 않음을 원칙으로 한다. ③ 실기시험의 답안지 및 채점결과표는 합격자 발표일로부터 6개월간 보관한다. 제11장 합격자 공고 및 자격증 교부 제42조(합격자 공고) ① 장애인배구협회장은 검정종료 후 30일 이내에 합격자를 공고하여야 한다. ② 합격자를 공고할 때에는 장애인배구협회 홈페이지에 합격자 발표사실을 공지한다. 제43조(자격증 교부) ① 최종합격자중 신청자에 한하여 자격증을 교부한다. ② 자격증을 재교부 받고자 하는 자는 장애인배구협회에서 정하는 절차를 거쳐야 하며, 자격증 재교부 비용은 20,000원으로 한다. 제12장 부정행위자 처리 제44조(부정행위자의 기준 등) ① 시험에 응시한 자가 그 검정에 관하여 부정행위를 한 때에는 당해 검정을 중지 또는 무효로 하고 3년간 검정을 받을 수 있는 자격이 정지되며, 부정행위를 한 자라 함은 다음 각 호의 1에 해당하는 자를 말한다. 1. 시험 중 시험과 관련된 대화를 하는 자 2. 답안지(실기작품을 포함한다. 이하 같다)를 교환하는 자 3. 시험 중에 다른 수험자의 답안지 또는 문제지를 엿보고 자신의 답안지를 작성한 자 4. 다른 수험자 위하여 답안(실기작품의 제작방법을 포함한다)등을 알려주거나 엿 보게 하는 자 5. 시험 중 시험문제 내용과 관련된 물건을 휴대하여 사용하거나 이를 주고받는 자 6. 시험장 내외의 자로부터 도움을 받아 답안지를 작성한 자 7. 사전에 시험문제를 알고 시험을 치른 자 8. 다른 수험자와 성명 또는 수험번호를 바꾸어 제출한 자 9. 대리시험을 치른 자 및 치르게 한 자 10. 기타 부정 또는 불공정한 방법으로 시험을 치른 자 ② 시험감독위원은 부정행위자를 적발한 때에는 즉시 수검행위를 중지시키고, 그 부정행위자로부터 그 사실을 확인하고 서명 또는 날인된 확인서를 받아야 하며, 그가 확인․날인 등을 거부할 경우에는 감독위원이 확인서를 작성하여 이에 날인 등의 거부사실을 부기하고 입증자료를 첨부하여 서명날인한 후 책임관리위원에게 제출하여야 한다. 제45조(부정행위자 처리) ① 책임관리위원은 시험감독위원으로부터 부정행위자 적발 보고를 받았을 때에는 시험 종료 즉시 관계 증빙 등을 검토하여 부정행위자로 처리하고 수검자에게 응시제재 내용 등을 통보하는 한편 그 결과를 검정 종료후 장애인배구협회에게 보고하여야 한다. ② 책임관리위원은 부정행위 사실 인증을 판단하기가 극히 곤란한 사항은 관계 증빙서류를 첨부하여 장애인배구협회장에게 보고하여 그 결정에 따라 처리한다. 제46조(사후적발 처리) ① 수험자간에 성명, 수험번호 등을 바꾸어 답안을 표시 제출 한 때에는 양당사자를 모두 부정행위자로 처리한다. ② 타인의 시험을 방해할 목적으로 수험번호 또는 성명 표시란에 타인의 수험번호 또는 성명을 기입하였음이 입증되었을 때에는 행위자만을 부정행위자로 처리한다. ③ 책임관리위원은 부정행위 사실이 사후에 적발되었을 경우에는 적발된 자료를 증거로 하여 부정행위자로 처리하고, 해당 수험자에게 응시자격 제재내용을 통보하여야 한다. 제47조(시험장 질서유지 등) 감독위원은 시험장 질서유지를 위하여 다음 각 호의 1에 해당하는 행위를 하는 수험자에 대하여는 시험을 중지시키고 퇴장시킬 수 있다. 1. 시험실을 소란하게 하거나, 타인의 수험행위를 방해하는 행위 2. 시험실(장)내의 각종 시설, 장비 등을 파괴, 손괴, 오손하는 행위 3. 검정시설․장비 또는 공구사용법 미숙으로 기물손괴 또는 사고우려가 예상되는 자 4. 기타 시험실의 질서유지를 위하여 퇴장시킬 필요가 있거나 또는 응시행위를 중지시킬 필요가 있다고 인증하는 행위 제13장 보 칙 제48조(업무편람 작성, 비치) 검정업무 수행에 따른 세부적인 업무처리기준, 처리과정, 구비서류, 서식 등을 구분 명시한 민간자격검정 업무편람을 작성․비치하여 활용한다. 부 칙(2019. 10. 15.) 제1조(시행일) 이 규정은 이사회의 승인받은 날로부터 시행한다. 제2조(경과조치) 이 규정의 시행이전에 시행된 사항에 관하여는 이 규정에 의하여 시행된 것으로 본다. 부 칙(2021. 05. 10.) 제1조(시행일) 이 규정은 이사회의 승인받은 날로부터 시행한다. 제2조(경과조치) 이 규정의 시행이전에 시행된 사항에 관하여는 이 규정에 의하여 시행된 것으로 본다. 부 칙(2023. 02. 21.) 제1조(시행일) 이 규정은 이사회의 승인받은 날로부터 시행한다. 제2조(경과조치) 이 규정의 시행이전에 시행된 사항에 관하여는 이 규정에 의하여 시행된 것으로 본다.
제 정 2016.09.27. 개 정 2019.02.20. 개 정 2019.11.18. 개 정 2022.04.25. 개 정 2024.08.21.
제1장 총칙 제1조(목적)우리나라 장애인배구의 균형발전을 꾀하고 효율적인 지도자·심판 및 선수육성과 체육동호인 육성을 도모하기 위해 대한장애인배구협회(이하 “장애인배구협회”라 한다)에 선수·지도자·체육동호인·심판등록과 활동 등에 관한 절차와 기준을 정함을 목적으로 한다. 제2조(정의) 본 규정에서 사용하는 용어의 정의는 다음과 같다. 1. “선수등록”은 장애인배구협회에 종목선수(직장운동경기부, 일반부, 대회동호인부)로 선수 활동을 희망하여 정한 절차에 따라 매년 등재하는 것을 말한다. <개정‘19.2.20> 2. “지도자등록”은 장애인배구협회에 지도자활동을 희망하여 정한 절차에 따라 매년 등재하는 것을 말한다. 3. “체육동호인등록”은 장애인배구협회에 대회 참가를 위해 선수로써 등록하는 대회동호인과 시·도장애인체육회에 생활체육 참여를 위해 등록하는 생활동호인으로 구분되며 정한 절차에 따라 매년 등재하는 것을 말한다. <개정‘19.2.20> 4. “심판등록”은 장애인배구협회에 심판활동을 희망하여 정한 절차에 따라 매년 등재하는 것 을 말한다. 5. “등록선수”라 함는 제1항제1호에 의거 선수활동을 목적으로 선수등록을 마친 자를 말한다. 6. “등록지도자”는 제1항제2호에 의거 지도자활동을 목적으로 지도자등록을 마친 자를 말한다. 7. “등록체육동호인”은 제1항제3호에 의거 대회동호인과, 생활동호인으로 등록을 마친 사람을 말한다. <개정‘19.2.20> 8. “등록심판”은 제1항제4호에 의거 심판활동을 목적으로 심판등록을 마친 사람을 말한다. 9. “선수활동”은 제1항제5호에 의거 장애인배구의 각종대회 참가 등의 활동을 하는 것을 말한다. 10. “지도자활동”은 제1항제6호에 의거 장애인배구의 등록지도자로서 각종대회 참가 등의 활 동을 하는 것을 말한다. 11. “체육동호인활동”은 제1항제7호에 의거 장애인배구의 각종대회 참가를 하는 대회동호인 활동과 시도장애인체육회의 생활체육 프로그램 참가를 하는 생활동호인 활동을 말한다. <개 정‘18.1.20> 12. “심판활동”은 제1항제8호에 의거 장애인배구의 각종대회에 심판으로 활동하는 것을 말한다. 13. “등록변경”이라 함은 장애인배구협회에서 정한 바에 따라 등록된 자가 소속단체 및 등록 지 등의 등재된 사항을 변경하는 것을 말한다. 14. “이적 동의서”라 함은 정해진 선수등록 절차에 따라 등록을 마친 후 소속단체를 변경할 경우에 전 소속단체장의 동의를 표시하는 양식을 말한다. 15. “통합정보시스템”이라 함은 선수‧지도자‧체육동호인‧심판 등록업무를 효율적으로 관리하기 위하여 장애인배구협회가 운용하는 전산 프로그램을 말한다.<개정 2024.08.21.> 16. “도핑방지교육”이라 함은 세계반도핑규정에서 정하는 도핑방지교육을 말한다. 17. “성희롱‧성폭력 예방교육”이라 함은 정부 예방교육통합관리에서 추천하는 성희롱‧성폭력 분야의 예방교육을 말한다. <신설 ’19.11.18.> 제3조(제정의무) ① 시·도 장애인배구협회는 이 규정을 준용하여 장애인 배구의 선수·지도자‧체육동호인 등록규정을 이사회 승인을 받아 ‘지도자·선수·체육동호인 등록규정’ 으로 정하고 장애인배구협회의 승인을 받아 시행한다. ② 이 규정과 시·도 장애인 배구협회 규정이 상이할 경우 이 규정을 우선 적용한다. ③ 장애인배구협회장은 제1항에 따른 경기단체의 선수·지도자·체육동호인 등록 규정에 정한 사항이 이들의 등록이나 활동을 부당하게 제한하거나, 그 밖에 불합리한 내용이 있는 경우에는 이의 시정을 요구 할 수 있으며, 해당 단체는 특별한 사정이 없는 한 이에 따라야 한다. 제4조(적용범위) ① 이 규정은 장애인배구협회에 등록된 선수·지도자·체육동호인·심판과 이들의 등록 및 활동에 관여하는 자에게 적용한다. ② 전국장애인체육대회, 전국장애학생체전 등 장애인체육회가 주최하거나 주관하는 대회의 선수활동에 관한 사항은 각각의 대회 참가요강에 의한다. ③ 장애인배구협회에서 주최하거나 주관하는 대회의 선수활동에 관한 사항은 장애인배구협회가 정하는 대회별 참가요강에 의한다. ④외국국적자의 선수·지도자·체육동호인·심판등록에 대하여는 장애인배구협회 국제연맹규정 및 관계법령이 허용하는 범위 내에서 장애인배구협회가 정하는 바에 따라 허용할 수 있다. 제2장 선수 등록 및 활동 제5조(선수등록구분) ① 장애인배구협회는 다음 각 호에서 정한 바에 따라 구분하여 등록을 한다. 다만, 장애인배구협회 특성에 따라 별도 부를 정할 수 있다. 1. 직장운동경기부 2. 일반부 3. 대회동호인부 <개정‘19.2.20> ② 장애인배구협회가 특별히 정하지 아니하고는 각 부별 등록에 따른 연령제한은 하지 않으나 각종대회에 참가하기 위한 연령제한은 대회참가규정에 따른다. 제6조(선수등록) 선수등록을 희망하는 자는 다음 각 호의 어느 하나에 해당되는 자로서 장애인배구협회가 정한 절차에 따라 스포츠등급분류를 필하고 선수등록을 한다. <개정 ’19.11.18.> 1. 장애인복지법 제32조(장애인등록)에 따라 장애인등록증을 발급받은 자 <개정 ’19.11.18.> 2. 다음 법률에 의한 국가보훈대상자 중 상이자 <개정 ’19.11.18.> 가. 국가유공자 등 예우 및 지원에 관한 법률 제4조의 상이자 나. 보훈보상대상자 지원에 관한 법률 제2조의 상이자 다. 5.18 민주유공자 예우에 관한 법률 제4조의 부상자 라. 지원대상자 중 舊 국가유공자 등 예우 및 지원에 관한 법률 제73조의 2의 상이자(2012.6.30. 이전 등록자) 제7조(선수등록 제한 및 취소) ①대한장애인배구협회 정관 제25조 제2항1호에서5호 해당되는 선수는 등록을 할 수 없다.<개정 ‘19.11.18.> ② 등록절차를 마친 선수는 등록 이후 자격정지나 제명처분을 받을 경우 등록이 자동 취소된 것으로 본다. 제8조(선수등록 시기) ① 등록기간은 매년 3월 31일 이전으로 하며, 신규 등록한 선수 및 신설팀은 예외로 한다. 다만, 추가 등록 기간이 없는 한 3월 31일까지 등록하지 아니한 자는 차기 등록 시 까지 선수활동을 제한한다. ② 추가등록기간은 장애인배구협회가 결정하고 장애인체육회에 보고하여야 한다. ③ 선수는 등록 마감일(추가등록 마감일 포함)까지 통합정보시스템을 통해 신청된 자까지 유효하다.<개정 2024.08.21.> ④ 2년 이상 선수등록을 하지 않은 자가 새로이 등록할 경우 신규 등록자로 간주하며 등록기간의 제한도 받지 아니한다. 제9조(선수등록자격) ①선수등록은 장애인배구협회에 정해진 등급분류규정에 해당되는 자로 한다. ②장애인배구협회의 선수 등록은 다음 각 호에 해당하는 자로 한다. 1. 직장운동경기부는 1년 이상의 일정기간 채용되거나 계약에 의해 소속을 정한 자 2. 일반부와 대회동호인부는 선수활동을 목적으로 체육활동을 하고 있는 자 <개정‘19.2.20> 3. <삭제‘19.2.20> 제10조(선수등록비) 선수로 등록하는 자에게는 장애인배구협회 이사회의 의결을 거쳐 소정의 등록비를 징수할 수 있다. 제11조(선수등록자격의 제한) ① 외국에 등록된 선수이거나 외국 국적자는 출입국관리법 등 관계법령이 허용하는 범위 내에서 장애인배구협회로 등록여부를 정할 수 있다. ② 동일인이 직장운동경기부, 일반부, 대회동호인부에 이중으로 등록할 수 없다. <개정‘19.2.20> ③ 동일인이 종목을 달리하여 선수생활을 하고자할 경우에는 2 이상의 경기단체에 등록을 할 수 있다. 다만, 시·도를 달리하는 경우에는 2 이상의 종목에 등록할 수 없다. ④ 이 규정 및 시·도 장애인배구협회의 선수등록규정에서 정하는 바를 제외하고는 선수등록을 할 수 없다. 제12조(선수등록절차) ① 시·도 장애인배구협회는 시·도 장애인체육회의 지도·감독을 받아 장애인체육회가 운용하는 통합정보시스템에 다음 각 호의 등록절차에 따라 선수를 등록하여야 한다. <개정 2024.08.21.> 1. 선수등록을 하고자 하는 자는 선수카드를 포함한 선수등록부를 작성하여 신청한다. 2. 시·도 장애인배구협회는 각종 규정 및 지침에 따라 제1차 심사 후 결격사유에 저촉되지 않는 경우 경유란에 확인하여 시·도장애인체육회에 보고한다. 다만, 시·도 장애인배구협회가 결성되지 않거나 등록업무를 보지 못하는 경우에는 시·도장애인체육회의 2차 심사로 대체한다. 3. 시·도장애인체육회는 제출 받은 등록서류에 대해 제2차 심사 후 경유란에 확인하여, 장애인배구협회에 최종심사요청을 해야 한다. 4. 장애인배구협회는 선수등록의 자격여부에 대한 심사를 하여 15일 이내에 그 최종심사결과를 시·도장애인체육회에 통보하고, 필요에 따라 전국연맹체에 통보한다. ② 장애인배구협회는 통합정보시스템에 등록되지 않은 자에 대하여 선수로 인정하지 아니한다.<개정 2024.08.21.> ③ 등록 선수의 기본정보, 경기실적, 상벌사항 등을 통합정보시스템을 통하여 등록하고 자료공개에 대해서는「공공기관의 정보공개에 관한 법률」에 따른다. <개정 2024.08.21.> ④ 통합정보시스템을 이용하여 등록하려는 선수는 한국도핑방지위원회에서 운영하는 도핑방지교육을 의무적으로 이수하고 ’한국도핑방지규정‘ 준수 서약을 하여야 한다.<개정 2024.08.21.> ⑤ 통합정보시스템을 이용하여 등록하려는 선수는 성희롱‧성폭력 예방교육을 의무적 으로 이수하여야 한다. <신설 ‘19.11.18.,개정 2023.5.30.><개정 2024.08.21.> 제13조(선수 등록지) 선수 등록은 개인 및 단체(팀)가 소속되어 있는 시·도 장애인배구협회에 등록하여야 한다. 다만, 시·도 장애인배구협회가 없는 경우에는 시·도장애인체육회에 직접 등록한다. <개정‘19.2.20> 제14조(선수 등록변경) ① 선수등록을 마친 자의 등록사항 변경은 장애인배구협회 법제상벌위원회에서 변경사유를 심사·결정하여 변경 조치할 수 있다. ② 다음 각 호에 해당되는 경우에는 장애인배구협회 및 소속단체의 변경에 따른 활동의 제한을 받지 아니한다. 1. 소속단체(또는 팀)의 해체 또는 직장운동경기부 선수의 계약만료 2. 거주지 변경(생계유지, 직장이직, 가족단위 이사 등 이에 준하는 사항) ③ 제2항 제2호에 따라 거주지가 변경되는 선수는 소속단체장의 동의 없이도 소속단체를 변경할 수 있다. ④ <삭제‘19.2.20> ⑤ 이 규정과 시·도 장애인배구협회에서 정한 등록절차를 준수하지 아니한 등록변경은 인정하지 아니한다. 제15조(선수구제) ① 선수는 전 소속단체장의 이적동의서 발급 거부가 명백히 부당하다고 인정되는 경우 장애인배구협회 법제상벌위원회에 구제신청을 할 수 있다. 이 경우, 장애인배구협회 법제상벌위원회는 1개월 이내에 심의·조정하여 해당 소속단체장에게 의견을 제시 하여야 하며, 해당 소속단체장은 의견을 제시받는 날로부터 15일 이내에 그 조치 결과를 선수에게 통보하여야 한다. ② 제1항에 따른 장애인배구협회 법제·상벌위원회의 의견제시에도 불구하고 해당 소속단체장이 이적동의서 발급을 부당하게 기피하는 경우, 장애인배구협회 법제상벌위원회는 제1항 후단에 따른 조치결과 통보일이 지난날로부터 1개월 이내에 최종적으로 구제결정을 할 수 있으며 그 결과를 해당 소속단체장 및 구제신청자에게 통보한다. 이 경우 해당 소속단체장은 구제 결정을 따라야 한다. ③ 등록된 선수가 동 규정 및 특별한 사유로 부당하게 선수활동에 제한을 받는다고 판단될 경우, 그 사실이 기록된 구제신청서를 작성하여, 장애인배구협회 법제상벌위원회에서 구제신청을 할 수 있다. 이 경우, 장애인배구협회 법제상벌위원회는 1개월 이내에 구제결정을 하여야 한다. ④ 타의에 의하여 부당하게 이중 등록이 되었을 경우에는 장애인배구협회는 선수의 요청에 따라 즉시 부당등록을 시정하여야 한다. ⑤ 선수가 장애인배구협회로부터 받은 최종 징계 또는 이에 준하는 행위에 대하여 이의가 있을 시에는 장애인체육회에 조정신청을 할 수 있다. 제16조(선수활동의 자격) 장애인배구협회의 선수등록 절차에 따라 등록한 자만이 협회 선수로서 활동을 할 수 있다. 제17조(선수활동의 제한) ① 장애인배구협회는 이적을 원하는 선수가 전 소속단체장의 이적동의서를 발급받지 못한 경우 선수등록변경일로부터 소속팀을 달리한 기간을 포함하여 최소 2년 동안 선수활동을 제한한다. ② 유사단체 선수에 대한 등록 및 대회 참가는 장애인배구협회의 실정에 따라 제한할 수 있다 ③ 선수등록을 마친 자라 할지라도 장애인체육회 및 장애인배구협회에서 징계를 받은 자는 그 징계에 따라 선수활동의 제한을 받는다. ④ 등록된 선수가 장애인배구협회가 인정하는 특별한 사유없이 경기에 참가하지 않는 경우에는 장애인배구협회의 규정에 따라 선수활동을 제한할 수 있다. ⑤ 제12조 절차에 의하여 선수등록을 신청한 자가 장애인배구협회의 최종 확정이 되지 아니한 자는 선수활동을 할 수 없다. ⑥ <삭제‘19.2.20> 제18조(선수활동 제한의 예외) 선수등록을 마친 자로 다음 각호에 해당하는 경우에는 선수활동의 제한을 받지 아니한다. 1. 부상, 질병 등으로 인하여 장애인배구협회가 정한 진단서를 제출한 자로 입원 또는 입원이외의 일반가료로 6개월 이상의 치료를 받은 자 2. 전 소속단체장이 특별한 사유(보호자 생계유지를 위한 거주지 이동으로 전가족이 전·출입이 확인될 경우 등에 한한다)를 인정하여 이적동의서를 발급 받은 자이거나 장애인배구협회 법제상벌위원회에서 구제결정이 확정된 자 3. 계약의 만료 또는 사직 이후에도 특별한 사유 없이 전 소속단체장의 이적동의서 발급 기피로 인하여 장애인배구협회 법제상벌위원회로부터 구제결정이 확정된 자 4. 외국에서 귀국한 자 또는 국내에 거주하는 자 중에 신체적성 및 경기력 등 운동선수로서의 기량이 월등하거나, 우수선수로서의 가능성이 있다고 판단되어 당해 시·도장애인배구협회와 시·도장애인체육회장의 추천으로 장애인배구협회 법제상벌위원회가 승인한 자 제3장 지도자 등록 및 활동 제19조(지도자등록 자격) ①장애인배구협회는 다음 각 호에 해당하는 자를 지도자로 등록할 수 있다.<개정 2024.08.21.> 1. 법정 장애인체육지도자 가. 1급 장애인스포츠지도사 나. 2급 장애인스포츠지도사 2. 교육부 발행 정교사 자격증 소지자 <신설 ‘22.04.25.> <개정 2024.08.21.> 3. <개정 2024.08.21.> 4. 체육지도자 자격증(전문·생활·유소년·노인스포츠지도사) 미시행종목의 경우, 자격기본법에 따라 헤당 가맹단체에 의해 민간자격으로 등록 도는 공인된 지도자<개정 2024.08.21.> ② 장애인스포츠지도사 자격 제도가 신설된 종목의 경우, 해당 종목 비장애인 체육지도자(전문·생활·유소년·노인스포츠지도사)를 장애인스포츠지도사 등록이 신설된 연도로부터 3년간 지도자 등록을 한시적으로 허용한다.<개정 2024.08.21.> [제목개정 <개정 2024.08.21.>] 제20조(지도자등록) 지도자 등록을 희망하는 자는 장애인배구협회가 정한 절차에 따라 지도자등록을 한다. 제21조(지도자등록 제한 및 취소) ① 대한장애인배구협회정관 제25조제2항1호에서 5호에 해당되는 지도자는 등록을 할 수 없다. <개정 ‘19.11.18.> ② 등록절차를 마친 지도자는 등록 이후 자격정지나 제명처분을 받을 경우 등록이 자동 취소된 것으로 본다. 제22조(지도자등록 시기) ① 등록기간은 3월 31일 이전으로 하며, 신규 등록한 지도자 및 신설팀은 예외로 한다. 다만, 추가 등록 기간이 없는 한 3월 31일까지 등록하지 아니한 자는 차기 등록 시까지 지도자활동을 제한한다. ② 추가등록기간은 당해 장애인배구협회가 결정하고 장애인체육회에 보고하여야 한다. ③ 지도자는 등록 마감일(추가등록 마감일 포함)까지 통합정보시스템을 통해 신청된 자까지 유효하다.<개정 2024.08.21.> ④ 2년간 미등록자가 새로이 등록할 경우 신규 등록자로 간주하며 등록기간의 제한도 받지 아니한다. 제23조(지도자등록 자격) 지도자등록은 장애인배구협회에서 정한 자격을 갖춘 자로 한다. 제24조(지도자등록비) 지도자로 등록하는 자에게는 장애인배구협회 이사회의 의결을 거쳐 소정의 등록비를 징수할 수 있다. 제25조(지도자등록 절차) ① 시·도 장애인배구협회는 시·도 장애인체육회의 지도·감독을 받아 장애인체육회가 운용하는 통합정보시스템에 다음 각 호의 등록절차에 따라 지도자를 등록하여야 한다. <개정 2024.08.21.> 1. 지도자등록을 희망하는 자는 지도자카드를 포함한 지도자 등록부를 작성하여 신청한다. 2. 시·도 장애인배구협회는 각종 규정 및 지침에 따라 제1차 심사 후 결격사유에 저촉되지 않는 경우 경유란에 확인하여 시·도장애인체육회에 보고한다. 다만, 시‧도 장애인배구협회가 결성되지 않거나 등록업무를 보지 못하는 경우에는 시·도장애인체육회의 2차 심사로 대체한다. 3. 시·도장애인체육회는 제출 받은 등록서류에 대해 제2차 심사 후 경유란에 확인하여, 장애인배구협회에 최종심사요청을 해야 한다. 4. 장애인배구협회는 지도자등록의 자격여부에 대한 심사를 하여 15일 이내에 그 최종심사결과를 시·도장애인체육회에 통보하고, 필요에 따라 전국연맹체에 통보한다. ② 장애인배구협회는 통합정보시스템에 등록되지 않은 자에 대하여 지도자로 인정하지 아니한다.<개정 2024.08.21.> ③ 등록 지도자의 기본정보, 경기실적, 상벌사항 등을 통합정보시스템을 통하여 등록하고, 자료공개는 「공공기관의 정보공개에 관한 법률」에 따른다. <개정 2024.08.21.> ④ 통합정보시스템을 이용하여 등록하려는 지도자는 한국도핑방지위원회에서 운영하는 도핑방지교육을 의무적으로 이수하고’한국도핑방지규정‘준수 서약을 하여야 한다.<개정 2024.08.21.> ⑤ 통합정보시스템을 이용하여 등록하려는 지도자는 성희롱‧성폭력 예방교육을 의무적으로 이수하여야 한다. <신설 ‘19.11.18.> <개정 2024.08.21.> 제26조(지도자 등록지) 지도자 등록은 개인 또는 단체(팀)가 소속되어 있는 시·도 장애인배구협회에 등록하여야 한다. 다만, 시·도 장애인배구협회가 없는 경우에는 시·도장애인체육회에 직접 등록한다. <개정‘19.2.20> 제27조(지도자활동의 자격) 장애인배구협회의 지도자등록 절차에 따라 등록한 자만이 해당 종목의 지도자로서 활동을 할 수 있다. 제4장 심판 등록 및 활동 제28조(심판등록 구분) ① 장애인배구협회는 원칙적으로 다음 각 호와 같이 심판등급을 구분하되, 국제심판분류에 따라 별도의 용어로 분류할 수 있다. 1. 국제심판 2. 국내심판 가. 1급(A급) 나. 2급(B급) 다. 3급(C급) ② 장애인배구협회에서 양성한 심판이라 하더라도 제1항제2호에 따른 등급체계가 아닌 단일 등급인 경우에는 장애인배구협회의 심판양성지침 등에도 불구하고 이 규정에 따라 국내심판 3급으로 본다. ③ 대한체육회 배구 심판자격증을 소지한 자가 장애인배구협회 심판강습회에 동일 등급으로 지원하여 자격 취득 시 심판자격을 취득한 것으로 본다. 제29조(심판등록) 심판으로 활동하려는 자는 심판자격을 취득한 후 장애인배구협회가 정한 절차에 따라 장애인배구협회에 직접 심판등록을 한다. 제30조(심판등록 제한 및 취소) ① 대한장애인배구협회 정관 제25조제2항1호에서5호에 해당되는 심판은 등록을 할 수 없다. <개정 ‘19.11.18.> ② 등록절차를 마친 심판은 등록 이후 자격정지나 제명처분을 받을 경우 등록이 자동 취소된 것으로 본다. 제31조(심판등록 시기) ① 등록기간은 장애인배구협회에서 매년 3월 31일 이전으로 하며, 신규 등록한 심판은 예외로 한다. 다만, 추가 등록 기간이 없는 한 3월 31일까지 등록하지 아니한 자는 차기 등록 시까지 심판활동을 제한한다. ② 추가등록기간은 당해 장애인배구협회가 결정하고 장애인체육회에 보고하여야 한다. ③ 심판은 등록 마감일(추가등록 마감일 포함)까지 통합정보시스템을 통해 신청된 자까지 유효하다.<개정 2024.08.21.> ④ 2년 이상 미등록된 자가 새로이 등록할 경우 신규 등록자로 간주하며 등록기간의 제한도 받지 아니한다. 제32조(심판등록 자격) 심판등록은 장애인배구협회에서 정한 자격을 갖춘 자로 한다. 제33조(심판등록비) 심판으로 등록하는 자에게는 장애인배구협회 이사회의 의결을 거쳐 소정의 등록비를 징수할 수 있다. 제34조(심판등록 절차) ① 장애인배구협회는 장애인체육회가 운용하는 통합정보시스템에 다음 각호의 등록절차에 따라 심판을 등록하여야 한다.<개정 2024.08.21.> 1. 심판등록을 희망하는 자는 심판카드를 포함한 심판등록부를 작성하여 신청한다. 2. 장애인배구협회 각종 규정 및 지침에 따라 등록신청자에 대하여 결격사유에 저촉되지 않는지 확인한다. 3. 장애인배구협회는 심판등록의 자격여부에 대한 심사를 하여 15일 이내에 그 최종심사결과를 장애인배구협회 홈페이지에 게시한다. ② 장애인배구협회는 통합정보시스템에 등록되지 않은 자에 대하여 심판으로 인정하지 아니한다.<개정 2024.08.21.> ③ 등록 심판의 기본정보, 경기실적, 상벌사항 등을 통합정보시스템을 통하여 등록하고, 자료공개는「공공기관의 정보공개에 관한 법률」에 따른다. <개정 2024.08.21.> ④ 통합정보시스템을 이용하여 등록하려는 심판은 성희롱‧성폭력 예방교육을 의무적으로 이수하여야 한다. <신설 ‘19.11.18.><개정 2024.08.21.> 제35조(심판활동의 자격) 장애인배구협회의 심판등록절차에 따라 등록한 자만이 장애인배구협회 심판으로서 심판활동을 할 수 있다. 제36조(심판활동의 제한) 당해 연도에 선수나 지도자로 등록하여 활동하는 자는 심판등록 및 활동을 제한한다. 제5장 생활동호인 등록 및 활동<개정‘19.2.20> 제37조(생활동호인 등록) 생활동호인으로 등록하려는 제2조 제3호에 의거 등록을 한다. <개정‘19.2.20> 제38조(체육동호인등록 제한 및 취소)<삭제‘19.2.20> 제39조(생활동호인등록 시기) 등록기간은 시도장애인체육회에서 별도로 정한 기간을 따르되, 별도로 정해지지 않은 경우 등록에 제약을 받지 않는다.<개정‘19.2.20> 제40조(생활동호인등록 절차) 생활동호인 등록을 희망하는 자는 시도장애인체육회의 지도,감독을 받아 장애인체육회가 운용하는 통합정보시스템에 등록하여야 하며, 시도장애인체육회는 이를 검토하여 승인 여부를 결정한다.<개정‘19.2.20><개정 2024.08.21.> 제41조(생활동호인 등록지) 생활동호인 활동을 희망하는 시·도장애인체육회에 직접 등록한다. <개정‘19.2.20> 제42조(체육동호인 등록변경)<삭제‘19.2.20> 제43조(생활동호인의 자격) 시도장애인체육회의 체육동호인 등록절차에 따라 등록한 자만이 장애인배구의 동호인으로서 활동을 할 수 있다.<개정‘19.2.20> 제44조(동호인활동의 제한) 당해 선수로 등록이 된 자는 동일종목 생활동호인으로 등록 및 활동 할 수 없다.<개정‘19.2.20> 제6장 징계조치 제45조(징계양정 기준) ① 장애인배구협회 및 시·도 장애인배구협회에서 정한 선수·지도자·체육동호인·심판등록규정을 위반한 자에 대하여는 다음과 같이 조치하여야 한다. 1. 선수(보호자 포함) : 최소 1년 이상 5년 이하의 선수활동 금지 2. 지도자 : 최소 1년 이상 5년 이하의 장애인배구협회의 지도자활동자격 정지 3. 특수학교 관련자(교장, 관련교사, 코치 등) : 소속기관장에게 의뢰하여 징계 회부(감독, 코치의 경우에는 제2호의 조치와 병행한다) 4. <삭제‘19.2.20> 5. 심판 : 최소 1년 이상 5년 이하의 심판활동 금지 ② 징계만료 및 징계해제 후 재 위반한 경우에는 그 자격을 영구히 박탈한다. ③ 장애인배구협회는 전항에 따라 규정 위반자에 대하여 징계종류, 징계대상자 및 징계기간을 설정하여야 하며, 징계코자 할 경우에는 장애인체육회 법제‧상벌위원회규정 에 따른다. ④ 통합정보시스템에서의 등록을 지연시켜 선수활동에 지장을 초래한 관계자는 장애인배구협회 법제상벌위원회에 회부하여 그 자격을 최소 1년 이상 3년 이하의 징계로 조치한다. 다만, 직원인 경우 장애인배구협회 인사위원회에서 징계한다.<개정 2024.08.21.> 제46조(위반자 조치절차) ① 장애인배구협회 또는 시·도 장애인배구협회는 선수·지도자·체육동호인·심판등록규정 위반자에 대해 징계종류, 징계대상자 및 기간 등을 규정하여야 하며 장애인배구협회의 법제상벌위원회에 상정하여 그 절차에 따라 조치한다. ② 특수학교관련자에 대하여 징계이외에 신분상의 제한이 필요한 경우 장애인체육회에 건의할 수 있다. ③ 징계가 확정된 후 그 징계기간의 2분의 1이 경과하지 아니하고는 경감, 변경 또는 해제시킬 수 없다. ④ 징계조치를 받은 자에 대한 징계의 해제나 변경이 발생한 경우에는 정해진 절차에 따라 재등록하여야 한다. 부 칙(’16.09.27) 제1조(시행일) 이 규정은 이사회의 의결 후 장애인체육회로부터 승인을 받은 날부터 시행한다. 제2조(경과조치) ① 장애인배구협회가 선수·지도자·체육동호인·심판등록규정을 제정하는 즉시, 기존 선수등록규정은 자동으로 폐지된다. ② 지도자등록은 이 규정 제22조제1항에도 불구하고 2016년에 한하여 등록기간의 제한을 받지 아니한다. ③ 심판등록은 이 규정 제31조제1항에도 불구하고 2016년에 한하여 등록기간의 제한을 받지 아니한다. ④ 선수 및 지도자는 이 규정 제12조제4항, 제25조제4항에도 불구하고 2016년에 한하여 도핑방지교육으로 인한 등록제한을 받지 아니한다. ⑤ <삭제‘19.2.20> ⑥ 제19조제1항제2호의 기타 장애인체육지도자는 2018년까지 한시적으로 등록을 허용하며 2019년부터 해당 조항은 자동 삭제한다. 부 칙(’19.2.20.) 제1조(시행일) 이 규정은 이사회의 의결 후 장애인체육회로부터 승인을 받은 날부터 시행한다. 제2조(경과조치) ①이 규정 제6조 장애인등록증 소지자 선수등록은 2019년7월1일부터 시행한다. ②제19조 제1항 제2호의 기타 장애인체육지도자는 2020년까지 한시적으로 등록을 허용하며 2021년부터 해당 조항은 자동 삭제한다. 부 칙(’19.11.18.) 제1조(시행일) 이 규정은 이사회의 의결 후 장애인체육회로부터 승인을 받은 날부터 시행한다. 제2조(경과조치) 선수, 지도자 및 심판은 이 규정 제12조 5항, 제25조 5항, 제34조 4항에도 불구하고 2019년에 한하여 성희롱‧성폭력 예방교육으로 인한 등록제한을 받지 아니한다. 부 칙(’22.04.25.) 제1조(시행일) 이 규정은 이사회의 의결 후 장애인체육회로부터 승인을 받은 날부터 시행한다. 제2조(경과조치) 제19조 제3호의 기타 장애인체육지도자는 2022년 12월 31일까지 한시적으로 허용하며, 2023년부터 해당 조항은 삭제한다. 부 칙(2024.08.21.) 제1조(시행일) 이 규정은 이사회의 의결 후 장애인체육회로부터 승인을 받은 날부터 시행한다.개정 2015. 2. 7. 개정 2016. 4. 16. 개정 2016. 10. 14. 개정 2020. 10. 08.
제1조(설치근거 및 명칭)대한장애인배구협회(이하 “협회”라 한다) 선수위원회는 대한장애인체육회 선수위원회운영규정 제16조 및 협회 정관 제37조에 따라 설치 운영하며, 그 명칭은 대한장애인배구협회 선수위원회(이하 “위원회”라 한다)라 칭한다.<개정‘20.10.8> 제2조(목적) 위원회는 선수의 권익을 보호, 증진하여 건전한 운동환경을 조성하고 페어플레이 정신함양을 통해 존경받는 체육인상을 확립함으로써 패럴림픽 정신의 보급·확산에 기여함을 목적으로 한다.<개정‘20.09.00> 제3조(적용범위) 협회에 등록한 선수에 적용한다.<개정‘20.10.8> 제4조(기능) 위원회는 제2조의 목적을 달성하기 위하여 다음의 사항을 검토‧심의한다.<개정‘20.10.8> 1. 패럴림픽대회 등 각종 국제대회 관련, 페어플레이 정신 함양 및 패럴림픽 정신의 보급․확산 <개정‘20.09.00> 2. 국제장애인스포츠기구 선수위원회의 교류 및 협조에 관한 사항 3. 선수의 권익 보호, 증진 및 보급에 관한 사항<개정‘20.10.8> 4. 선수등록 및 경기분야 제도개선에 관한 의견제시<개정‘20.10.8> 5. 선수활동에 관한 제반사항 및 조정에 관한 사항 6. 은퇴선수 프로그램 개발 등 은퇴선수 지원사업에 대한 사항<개정‘20.10.8> 7. 협회 회장 선거인단 추천에 관한 사항<개정‘20.10.8> 8. 기타 위원회 설립 목적과 관련된 사항 9. 위 각 호와 관련되는 부대사업 제5조(구성) ① 위원회는 다음의 위원으로 구성한다. 1. 위원장 1인 2. 부위원장 1~2인<개정‘20.10.8> 3. 위원 18인 이내 (위원장 및 부위원장 포함)<개정‘20.10.8> ② 위원은 정기등록일 기준 만 18세 이상인 자로 각 협회에 등록된 선수이어야 하며, 위원 선임 년도 기준 2년 연속 선수등록을 필한 자이어야 한다.<개정‘20.10.8> ③ 위원회에 간사 1인을 두며, 회장이 협회 사무처 직원 중에서 지명한다.<개정‘20.10.8> 제5조의2(위원장의 선출)<신설‘20.10.8> ① 위원장은 직선제로 선출하며, 위원장 선거에 출마한 자 중 최다 득표자로 선출된 자를 회장이 위촉한다.<신설‘20.10.8> ② 위원장 선거에 관한 사항은 별도로 정한다.<신설‘20.10.8> 제6조(위원의 위촉) ① 부위원장은 위원회에서 호선된 자를 회장이 위촉하며, 부위원장이 2인일 경우에는 선임 순서를 위원회에서 정하여야 한다.<개정‘20.10.8> ② 위원은 시․도지부에서 선출된 선수위원장을 회장이 위촉한다.<개정‘20.10.8> 제7조(회장 선거인 선출) <개정‘20.10.8> ① 위원회는 협회 회장선거를 위하여 위원 중에서 선거인 3인을 선출하고 위원장과 함께 협회 선거관리위원회에 선거인으로 추천해야 한다.<개정‘20.10.8> 1. <삭제> 2. <삭제> ② 제1항의 선거인은 협회 회장 임기 만료 60일 전까지 선출하여야 하며, 새롭게 선출하지 않을 경우 회장 선거권을 제한한다. <개정‘20.10.8> 제8조(위원의 직무) ① 위원장은 위원회를 대표하고 그 업무를 총괄한다. ② 부위원장은 위원장을 보좌하고 위원장이 부득이한 사유로 직무를 수행할 수 없을 경우에는 부위원장 선임 순서에 따라 그 직무를 대행한다. ③ 위원은 위원회를 구성하고 위원회에 출석하여 그 직무에 관한 사항을 의결한다. 제9조(임기) ① 위원의 임기는 4년으로 하되, 일수를 기준으로 하지 않고 협회 정기총회를 기준으로 한다. 다만, 협회 정관 제23조 및 회장선거관리규정 제6조에 의한 선거인은 임기 시작 전이라도 제7조 제2항에 의거 선출된 당선자가 된다. <개정‘20.10.8> ② 보선된 위원의 임기는 전임자의 잔여기간으로 한다. 제10조(위원의 해촉) 회장은 위원이 다음 각 호의 어느 하나에 해당하는 경우 해촉할 수 있다. 1. 본인이 희망하여 사임서를 제출한 경우 2. 위원이 질병이나 그 밖의 사유로 장기간 출석이 곤란하여 직무를 수행하기 곤란하다고 판단되는 경우 3. 실정법 위반 등 위원의 품위를 손상하는 행위로 인하여 직무수행이 부적합하다고 판단되는 경우 4. 위원으로 선임된 기간 동안 선수등록을 하지 않은 경우 5. 소속 시․도지부에서 직위를 잃었을 경우<개정‘20.10.8> 제11조(회의소집) 위원장은 협회의 요구 또는 필요에 따라 위원회를 소집한다.<개정‘20.10.8> 제12조(의결정족수) 위원회에서 특별히 규정한 것을 제외하고는 재적위원 과반수의 출석으로 개회하고, 출석위원의 과반수 찬성으로 의결한다. 제13조(제척 및 회피) 위원은 본인, 또는 본인과 직접적인 이해관계가 있거나 공정을 기 할 수 없는 뚜렷한 사유가 있는 경우 위원회의 심의․의결에 참여할 수 없다. 제13조(제척 및 회피) 위원은 본인, 또는 본인과 직접적인 이해관계가 있거나 공정을 기할 수 없는 뚜렷한 사유가 있는 경우 위원회의 심의•의결에 참여할 수 없다. 제14조(장애인스포츠인권익보호센터) <삭제> <삭제’20.10.8> 제15조(선수위원회 설치 의무)<개정‘20.10.8> ① 각 시‧도지부는 선수위원회를 설치․운영하여야 한다.<개정‘20.10.8> ② 각 시‧도지부의 선수위원회운영규정은 협회의 승인을 받아야 한다.<개정‘20.10.8> 부 칙('15.2.7) 제 1 조(시행일) 본 규정은 이사회에서 승인한 2015년 2월 7일부터 시행한다. 제 2 조(경과조치) 본 규정 제9조 제1항과 관련하여 최초 적용되는 임원에 대해서는 그 임기를 2017년 정기대의원총회까지로 한다. 부 칙('16.04.16) 제 1 조(시행일) 본 규정은 이사회에서 승인한 2015년 2월 7일부터 시행한다. 제 2 조(경과조치) 이 규정 제8조 제1항과 관련하여 최초 적용되는 위원에 대해서는 그 임기를 2017년 대한장애인배구협회 정기대의원총회까지로 한다. 부 칙('16.10.14) 제 1 조(시행일) 본 규정은 이사회에서 승인(의결)을 받은 후 대한장애인체육회의 승인을 받은 날부터 시행한다. 부 칙('20.10.8) 제 1 조(시행일) 이 규정은 이사회의 의결을 받은 후 대한장애인체육회의 승인을 받은 날부터 시행한다. 선수위원회 규정 파일 열기2020. 09. 28. 제 정 2024. 09. 27. 제 정
제1조(목적) ① 본 지침은 대한장애인배구협회(이하 “협회”라 한다) 선수위원회운영규정 제5조의2에 따라 선수위원회 위원장(이하 “위원장”이라 한다) 선거에 필요한 사항을 규정함을 목적으로 한다. 제2조(적용) 위원장 선거에 관한 사항은 이 지침이 정한 것 이외에는 협회 회장선거관리규정에서 정한 바에 의하며, 필요에 따라 별도 세칙을 정하여 운영할 수 있다. 제3조(선거사무 관장) 위원장 선거사무는 협회 사무국에서 관장한다. 제4조(선거사무) 협회 사무국은 다음의 각호의 업무를 관장한다. 1. 선거공고 2. 선거인 명부 확인 및 관리 3. 입후보 등록고지 4. 선거권 및 피선거권자의 결격사유에 관한 검토 및 조치 5. 선거운동의 제한, 정견발표에 관한 관리 6. 투표용지에 관한 업무 7. 선거(투·개표)에 관한 업무 8. 선거의 연기 및 재선거에 관한 업무 9. 선거 이의신청에 관한 업무 10. 공명선거에 관한 업무 11. 당선자 보고 및 선포 12. 선거지침 유권해석 등에 관한 업무 13. 기타 선거 업무 제반 사항에 관한 업무 제5조(선거일 등의 공고) 선거일이 확정되면 별지 제1호 서식에 의거 협회 홈페이지에 즉시 공고하여야 한다. 제6조(위원장 후보자 자격요건) 선수위원회운영규정 제5조 제2항에 해당하는 자이어야 한다. 제7조(위원장 후보자의 결격사유) ① 다음 각호의 어느하나에 해당할 경우 선수위원장 후보자가 될 수 없다.<개정‘24.9.27.> 1. 대한민국 국적을 갖지 아니한 자 2.「국가공무원법」제33조(결격사유) 각 호의 어느 하나에 해당하는 사람 3. 국민체육진흥법 제2조제9호 가목부터 다목까지의 체육단체 및 시도ㆍ시군구 종목단체에서 재직기간 중 직무와 관련하여 「형법」 제355조 및 제356조에 규정된 죄를 범한 사람으로서 300만 원 이상의 벌금형이상을 선고받고 그 형이 확정된 사람 (형이 실효된 사람을 포함한다.)<개정‘24.9.27.> 4. 국민체육진흥법 제2조제9호 가목부터 다목까지의 체육단체 및 시도ㆍ시군구 종목단체가 주최ㆍ주관하는 경기의 결과에 영향을 미치는 승부조작에 가담하여 「형법」 제314조 및 「국민체육진흥법」 제47조 및 제48조에 규정된 죄를 범한 사람으로서 벌금형 이상을 선고받고 그 형이 확정된 사람 4의2. 다음 각 목의 어느 하나에 해당하는 죄를 저지른 사람으로서 금고 이상의 실형 또는 치료감호를 선고받고 그 집행이 끝나거나(집행이 끝난 것으로 보는 경우를 포함한다) 집행이 면제된 날 또는 금고 이상의 형의 집행유예를 선고받은 날부터 20년이 지나지 아니하거나 벌금형이 확정된 날부터 10년이 지나지 아니한 사람 <신설‘24.9.27.> 가. 「성폭력범죄의 처벌 등에 관한 특례법」 제2조에 따른 성폭력범죄 나. 「아동ㆍ청소년의 성보호에 관한 법률」 제2조제2호에 따른 아동ㆍ청소년대상 성범죄 4의3. 선수를 대상으로 「형법」 제2편 제25장 상해와 폭행의 죄를 저지른 사람으로서 금고 이상의 실형을 선고받고 그 집행이 끝나거나(집행이 끝난 것으로 보는 경우를 포함한다) 집행이 면제된 날 또는 금고 이상의 형의 집행유예를 선고받은 날부터 10년이 지나지 아니한 사람 <신설 ‘24.9.27.> 5. 국민체육진흥법 제2조제9호 가목부터 다목까지의 체육단체 및 시도ㆍ시군구 종목단체에서 다음 각 목에 따른 사람 가. 폭력 및 성폭력 등 성 관련 비위로 자격정지 이상의 징계 처분을 받은 사람 나. 승부조작, 편파판정, 횡령ㆍ배임으로 자격정지 1년 이상의 징계처분을 받은 사람 다. 가목과 나목에 해당하는 사람을 제외하고 자격정지 이상의 징계처분을 받고 그 기간이 종료되지 아니한 사람 6. 국회의원 7. 사회적 물의, 장애인체육회와 장애인체육회 관계단체로부터 징계는 받지 않았지만 임원의 결격사유에 해당하는 유사 행위 등 그 밖의 이에 준하는 사유가 있는 사람<신설‘24.9.27.> ② 위원장이 제1항 각호에 해당하게 되거나 선임 당시 그에 해당하는 자로 밝혀졌을 때에는 당연히 퇴임한다. <개정‘24.9.27.> 제8조(위원장 후보자 등록 및 공고) ① 위원장 선거에 입후보하고자 하는 자는 후보자 등록 마감일까지 다음의 서류를 갖추어 지정된 제출처에 위원장 후보자 등록을 하여야 한다. 1. 선수위원장 후보자 등록신청서(별지 제2호 서식) 1부 2. 이력서(별지 제3호 서식) 1부 3. 스포츠윤리센터에서 발급하는 징계사실유무확인서 1부 <신설‘24.9.27.> ② 협회 사무국은 위원장 후보자를 선수위원장 후보자 등록부(별지 제4호 서식)에 등재한 후 접수증(별지 제5호 서식)을 교부한다. ③ 위원장 후보자 등록 마감일의 다음 날에 위원장 후보자 명단을 별지 제6호 서식에 의해 협회 홈페이지에 공고한다. 제9조(선거인명부 작성) ① 협회 사무국은 위원장 후보자 접수 이후 선거인명부(별지 제7호 서식)를 비치하여야 한다. ② 선거인명부는 위원장 후보자에게 열람을 허용한다. 제10조(위원장 후보자 정견발표) 위원장 후보자의 정견발표는 투표에 앞서 후보자 기호순서에 따라 발표하고 시간은 후보자의 합의를 통해 정한다. 제11조(선거방법) ① 투표는 기표방법에 의한 무기명 비밀투표로 한다. ② 투표는 직접투표에 의한 1인 1표로 한다. ③ 협회는 필요에 따라 온라인투표시스템을 이용한 전자투표를 할 수 있다. ④ 전자투표에 관한 방법 및 절차는 중앙선거관리위원회에서 제공하는 온라인투표시스템에 의한다. 제12조(투표용지) ① 투표용지(별지 제8호 서식)는 협회에서 선거일 전일까지 준비하여야 한다. ② 투표용지에 인쇄할 후보자의 기호는 “1, 2, 3” 등으로 표시하여야 하며, 후보자의 성명은 한글로 기재하여야 한다. ③ 시각장애선거인에게는 별도의 투표보조용구를 제공할 수 있다. ④ 제2항의 후보자의 기호는 후보자 등록(접수) 순서에 의한다. 제13조(감표위원 선정) 투표 감표를 위한 감표인은 선거인단 중 3인으로 선정한다. 제14조(투표) ① 선거인은 감표자의 참여하에 본인임을 확인받은 후 선거인명부에 서명하고 투표용지 1매를 받아야 한다. ② 선거인은 투표용지를 받은 후 기표소에서 기표를 한 후 그 자리에서 보이지 않게 접은 후 투표함에 넣어야 한다. 제15조(참관인 선정) 후보자는 필요할 경우 개표참관인 1인을 선정하여 선거인 전일까지 협회 사무국에 등록(별지 제9호 서식) 할 수 있다. 제16조(무효 투표) 다음 각호의 1에 해당하는 투표지는 무효로 한다. 1. 정규의 투표용지를 사용하지 아니한 것 2. 어느 후보자의 난에도 기표를 하지 아니한 것 3. 2인 이상의 후보자의 난에 표를 한 것 4. 어느 후보자의 난에 표를 한 것인지 식별할 수 없는 것 5. ○표를 하지 아니하고 문자 또는 다른 사항을 기입한 것 6. ○표 이외에 다른 사항을 기입한 것 7. 선거인 자신이 투표용지를 공개한 것 제17조(위원장의 선출) ① 위원장은 협회에 등록된 선수의 직선제로 선출한다. ② 위원장의 선출방법은 다음 각호에 따른다. 1. 위원장 선거는 무기명 비밀투표로 하며 유효투표 중 다수의 득표자를 당선인으로 한다. 2. 다수 득표자가 동수인 경우에는 연장자를 당선인으로 한다. 3. 후보자가 1인일 때에는 투표를 실시하지 아니하고 선거일에 그 후보자를 당선인으로 결정한다. 제18조(선출 무효) 선수위원장은 선임 후에도 제7조 제1항에 해당될 경우에는 자동으로 해촉된다. 제19조(개표결과 보고서 작성) 감표인은 개표가 끝난 즉시 개표결과 보고서(별지 제10호 서식)를 작성 날인 후 협회 사무처에 제출하여야 한다. 제20조(위원장 당선인 공고) 협회 사무처는 위원장 당선인이 결정되면 선거일 다음 날 즉시 별지 제11호 서식에 의거 위원장 당선인을 협회 홈페이지에 공고하여야 한다. 제21조(부당 선거활동 금지) 위원장 입후보자는 다음 각호의 해당 행위를 금지한다. 1. 특정인의 인신공격 등 중상비방을 하거나 서명날인 운동을 주동, 선동 또는 참여하는 행위 2. 선거에 관하여 금품수수 또는 향응을 제공하는 행위 3. 허위의 이력을 기재하여 배포하는 행위 4. 기타 협회에서 공지한 사항 제22조(보칙) 협회는 선수위원장 선거에 관하여 이 규정에서 금지하고 있는 행위를 하여 적발된 자에 대하여 법제상벌위원회의 결정에 따라 제재할 수 있으며, 제재내용은 대한장애인체육회 회장선거관리규정 제16조에 의한다. 부 칙(‘20. 9. 28.) 제1조(시행일) 이 지침은 회장의 결재를 받은 날부터 시행한다. 부 칙(‘24. 9. 27.) 제1조(시행일) 이 지침은 회장의 결재를 받은 날부터 시행한다.
선수위원회위원장선거관리지침 파일 열기
2015. 02. 07. 제정 2015. 11. 28. 개정 2016. 09. 27. 개정 2020. 10. 8. 개정 2024. 10. 20. 개정
제 1 장 총 칙 제1조(설치근거 및 명칭) 심판위원회는 대한장애인배구협회(이하 “협회”라 한다) 정관 제36조 제1항에 따라 설치 운영하며, 그 명칭을 심판위원회(이하 “위원회”라 한다)라 한다.<개정‘20. 10. 8> 제2조(목적) 이 규정은 위원회의 구성과 운영 등에 관하여 필요한 사항을 정하는 것을 목적으로 한다. 제3조(적용범위) 위원회는 협회 등록심판으로 제6조 제2항의 자격자에 적용한다. <개정‘20. 10. 8> 제4조(제정의무) ① 협회는 위원회 운영규정을 마련하고 이사회 의결 후 대한장애인체육회(이하 “장애인체육회)의 승인을 받아 시행한다.<개정‘20. 10. 8> ② 이 규정과 장애인체육회의 규정이 상이할 경우 장애인체육회 규정을 우선 적용한다. 제5조(기능) 위원회는 각 호의 기능을 수행한다. 1. 심판이 경기 규칙에 따라 공정하게 직무를 수행할 수 있도록 심판의 독립성 및 자율성 보장 방법 및 기준에 관한 사항 2. 심판의 권익 보호·증진에 관한 사항 3. 심판양성 교육에 관한 사항 4. 협회장 선거인단 추천에 관한 사항 5. 심판등록 및 관리에 관한 사항<신설24.10.20.’.> 6. 심판 평가에 관한 사항<신설24.10.20.’.> 7. 기타 위원회 목적과 관련된 사항 등 제2장 위원회 구성 및 회의 제6조(구성) ① 위원회는 다음의 위원으로 구성한다. 1. 위원장 1인 2. 부위원장 2인 이내<개정‘20. 10. 8> 3. 위원 3인 이상 7인 이내(위원장, 부위원장, 상임심판 포함)<개정‘20.10.08> <신설24.10.20.’.> ② 제1항의 위원은 정기 등록일 기준 만 18세 이상인 자로 다음 조건에 해당하는 자여야 한다.<개정‘20. 10. 8> 1. 협회 등록심판으로서, 최근 3년 내 협회가 주최·주관하거나 승인한 전국규모 대회 연 1회이상 총 4회 심판으로 활동한 자<개정‘20.10.08., 개정’24.10.20.’.> ③ 협회 정관 제25조(임원의 결격사유) 제2항에 해당되는 자는 위원이 될 수 없다.<개정‘20.10.08., 개정’24.10.20.’.> ④ 위원회에 간사 1인을 두며, 협회 회장이 사무국 직원 중에서 지명한다.<개정‘20. 10. 8> ⑤ 위원회는 효율적 운영을 위하여 소위원회를 둘 수 있다. 제7조(위원 선임) ① 위원회 위원장은 협회에 등록된 심판의 직선제로 선출한다.<개정‘20. 10. 8> ② 위원은 제6조 제2항을 근거로 위원회 위원의 자격이 있는 자를 대상으로 위원장이 구성한 후 사무국에 보고한다.<개정‘20. 10. 8> ③ 부위원장은 위원회에서 호선한다. ④ 부위원장을 2인 선임할 경우 순서를 위원회에서 정해야 한다.<개정‘20. 10. 8> ⑤ 위원장 선거에 관한 투표인단의 구성방법 및 선출방법 등에 관한 세부사항은 회장이 별도로 정한다. 제8조(협회 선거인 선출)<개정‘20. 10. 8> ① 위원회는 다음 각 호에 해당하는 선거인을 선출하고 협회 회장선거관리위원회에 추천해야 한다. 1. 위원회 위원장 2. 위원 중 선거인으로 선출된 자 1명 ② 제1항의 선거인은 협회 회장 임기만료 60일 전까지 선출하여야 하며, 만약 새롭게 선출하지 않을 경우 회장 선거권을 제한한다. 제9조(위원의 직무) ① 위원회 위원장은 위원회를 대표하고 그 업무를 총괄한다. ② 부위원장은 위원장을 보좌하고 위원장이 부득이한 사유로 직무를 수행할 수 없을 경우에는 부위원장 선임 시 정한 순서에 따라 위원장의 직무를 대행한다. ③ 위원은 위원회를 구성하고 위원회에 출석하여 그 직무에 관한 사항을 의결한다. 제10조(임기) ① 위원의 임기는 4년으로 연임할 수 있다. ② 임기는 일수를 기준으로 하지 않고 협회의 정기총회를 기준으로 한다. 다만, 협회 정관 제23조(회장의 선출) 제2항 및 협회 회장선거관리규정 제6조(선거인) 제1항에 의한 선거인은 임기시작 전이라도 이 규정 제8조(협회선거인 선출) 제2항에 의거 선출된 당선자가 된다.<개정‘20. 10. 8> ③ 보선된 위원의 임기는 전임자의 잔여기간으로 한다. 제11조(위원의 해촉) ① 협회 회장은 위원이 다음 각 호의 어느 하나에 해당하는 경우 위원회의 의결을 거쳐 해촉 할 수 있다.<개정‘20. 10. 8> 1. 위원이 질병, 해외출장, 그 밖의 사유로 장기간 출석이 곤란하여 직무를 수행하기 곤란하다고 판단되는 경우 2. 실정법 위반 등 위원의 품위를 손상하는 행위로 인하여 직무수행이 부적합하다고 판단되는 경우 3. 직무와 관련된 비위사실이 있는 경우 4. 가맹단체 운영규정 제14조에 해당하는 데에도 불구하고 회피하지 아니한 경우<개정‘20. 10. 8> 5. 위원으로 선임된 기간 동안 심판등록을 하지 않은 경우 ② 위원이 다음 각 호의 어느 하나에 해당하는 경우 자동 해촉 된다. 1. 본인이 희망하여 사임서를 제출한 경우 2. 협회에서 직위를 잃었을 경우<개정‘20. 10. 8> 3. 제6조 제3항에 해당되거나 선임 이후 해당될 경우<개정‘20. 10. 8> ③ 해촉 등으로 인한 위원의 결원 발생 시 특별한 사유가 없는 이상 30일 이내에 재선출하도록 한다.<신설‘’24.10.20.’.> 제12조(회의소집) 위원회 위원장은 협회 요구 또는 필요에 따라 회의를 소집한다. 제12조의2(긴급한 업무처리) 위원회가 심의할 사안 중 그 내용이 경미하거나 긴급하다고 인정될 때에는 서면결의로 위원회 결의를 대신할 수 있다. 다만, 위원 과반수가 정식으로 위원회에 회부할 것을 요구할 때에는 이에 따라야 한다. <신설’24.10.20.’.> 제12조의3(회의소집) 위원회는 심판 운용 및 기타 활동의 전반적인 평가를 위하여 매년 상반기와 하반기에 회의를 개최하여야 한다. <신설‘’24.10.20.’.> 제13조(의결정족수) 재적위원 과반수의 출석으로 개회하고, 출석위원 과반수 찬성으로 의결한다. 제14조(수당 등의 지급) 위원에 대하여는 예산의 범위 안에서 수당, 기타 필요한 경비를 지급할 수 있다. 제15조(제척 및 회피) ① 위원은 본인 또는 본인과 직접적인 이해관계가 있거나 공정을 기할 수 없는 뚜렷한 사유가 있는 경우 위원회의 심의ㆍ의결에 참여할 수 없다. ② 본인이 제1항과 같은 사유가 있다고 판단하는 경우 회피할 수 있다. 제15조의2(의무사항) 위원회의 위원, 간사 또는 그 직에 있었던 사람은 다음 각 호의 의무사항을 준수하여야 한다.<신설‘24.0.0> ① 위원회 활동과정에서 취득한 정보나 문서 등을 임의로 공표하거나 타인에게 배포·유포할 수 없다.<신설’24.10.20.’> ② 위원회 업무수행 중 알게 된 비밀을 누설하거나 도용해서는 아니 된다.<신설’24.10.20.’> 제3장 심판 양성 교육 제16조(교육실시) ① 협회는 매년 정기적으로 심판에 대한 자체 교육계획을 수립 ‧ 운영하며, 교육 종료 후 15일 이내에 결과를 장애인체육회에 보고해야한다.<개정‘20. 10. 8> ② 교육내용은 집합교육, 보수교육, 강습회, 공정한 경기운영과 판정, 심판의 책임감 등 교양 강좌와 규약, 경기규칙, 판정의 이론, 실기 교육 등 당해 협회 실정에 맞게 실시하여야 한다. 다만 심판 윤리성을 강조하기 위해 심판의 도덕성 함양과 관련 교육은 필수교육으로 배정하여야 한다.<개정‘20. 10. 8> ③ 협회는 교육종료 후 반드시 이수증(수료증)을 발급하고 발급대장을 관리, 운영해야한다.<개정‘20. 10. 8> ④∼⑦ ”삭제“ <삭제‘20. 10. 8> 제4장 심판의 등록 및 심판평가제<개정’24.10.20.’> 제17조(심판평가) ① 심판으로 활동하고자 하는 사람은 심판자격을 취득한 후 선수·지도자·체육동호인·심판 등록규정 제31조 및 제34조에 따라 심판등록을 완료하여야 한다.<신설’24.10.20.’> ② 제1항에 따라 심판으로 등록한 사람만이 해당 대한장애인배구협회 심판으로서 활동할 수 있다.<신설’24.10.20.’> ③ 제1항에 따라 등록한 심판의 자격정보가 변경되었을 경우 대한장애인배구협회의 심의를 거쳐 심판 자격정보에 관한 사항을 변경할 수 있다.<신설’24.10.20.’> ④ 심판의 등록 취소는 선수·지도자·체육동호인·심판 등록규정 제30조에 따른다.<신설’24.10.20.’> 제17조의2(심판등급 구분) 협회는 선수·지도자·체육동호인·심판 등록규정 제28조에 따라 다음 각 호와 같이 심판등급을 구분하되, 국제심판분류에 따라 별도의 용어로 분류할 수 있다<신설’24.10.20.’> 1. 국제심판, 국제심판 후보 2. 국내심판 가. 1급 나. 2급 다. 3급 제17조3(심판평가) ① 협회는 심판에 대하여 매년 평가를 하여야 한다.<개정‘20.10.08, 개정’24.0.0.0> ② 협회는 상임심판, 협회는 당해 연도 경기진행에 참가한 심판에 대하여 등급별로 판정 평가서를 작성하며, 협회는 위원회를 통해 심판고과를 관리하고 승급이나 배정 시 자료로 활용하여야 한다.<개정‘20.10.08., 개정’24.10.20.> ③ 협회는 협회 실정에 맞게 평가지표 등 시행세칙을 정하여야 한다. 그 세칙에는 동료심판, 선수 및 지도자가 평가할 수 있는 다면평가를 반드시 포함한다.<개정‘20.10.08, 종전 17조에서 이동> 제5장 심판배정 제18조(심판기피 및 제척) ① 협회는 대회 전에 배정된 심판을 공개하고 선수, 지도자 등이 심판 기피를 합리적인 사유와 근거를 제시하여 요청할 경우 위원회에서 그 사유를 심사하고 정당한 사유가 있으면 해당 경기에 관한 심판에서 제외할 수 있다.<개정‘20. 10. 8> ② 경기에 참가하는 선수, 지도자의 친인척, 동일 대학 출신은 그 경기에 심판으로 참여할 수 없다. 제19조(심판배정) ① 협회는 협회 위원회의 결정으로 모든 대회의 심판을 배정하여야 한다.<개정‘20. 10. 8> ② 심판 배정 시 같은 선수(팀) 경기를 연속으로 배정해서는 안 된다. 1.∼3. ”삭제“ <삭제‘20. 10. 8> 제20조(심판판정) ① 심판은 경기 진행 중 경기규칙의 해석 및 적용에 대한 결정 권한을 갖는다. ② 심판은 경기종료 후 공식 경기기록 등을 기록원과 확인하며, 당해 협회 양식에 따라 경기보고서를 작성하여 위원회에 제출하여야 한다.<개정‘20. 10. 8> ③ 삭제<’’24.10.20.’> ④ 판정에 대한 이의제기 및 상고는 국제연맹 및 협회 규정에서 정한 바에 따른다.<개정‘20. 10. 8> 제21조(심판의 품위) ①심판은 협회에서 발급한 신분증서을 패용하여야 한다.<개정‘20. 10. 8> ② 심판은 협회에서 규정한 복장과 장비만 사용하여야 한다.<개정‘20. 10. 8> ③ 심판은 반드시 필요한 상해보험에 가입하여야 한다. ④ 심판은 협회 정관 및 관련 규정을 준수하여야 한다.<개정‘20. 10. 8> ⑤ 심판은 오심 및 편파판정에 대하여 협회 및 장애인체육회의 법제상벌규정에 따라 징계(문책) 받을 수 있다. ⑥ 심판은 선수․지도자의 팀(단체 등) 입단, 계약 또는 기타 취직의 알선, 협조 등 심판으로서의 직분이나 직무 공정성을 해하는 행위를 해서는 안 된다. 제6장 상 벌 제22조(심판의 상벌) ① 심판이 명백한 오심을 하거나 사회적으로 물의를 일으키고 심판의 품위를 손상시키는 등 징계 사유에 해당되는 언행을 할 경우 협회 법제·상벌위원회 관련 규정에 따라 처리한다.<개정‘20. 10. 8> ② 오심 누적 시 심판자격을 강등할 수 있으며, 오심 횟수에 따라 심판자격도 박탈할 수 있다. ③ 위 제1항에 의거 협회는 징계를 의결한 날로부터 2주 이내 장애인체육회에 징계내용을 보고하여야 한다.<개정‘20. 10. 8> ④ 협회는 자격정지 이상의 징계 결정사항을 심판 등록시스템에 반드시 등록하고 관리하여야 한다.<개정‘20. 10. 8> 제23조(심판의 포상) ①심판 평가 및 교육 우수 심판에 대해서는 장애인체육회 등에 표창을 상신하며 심판 승급 시 인센티브를 부여할 수 있다.<개정‘20. 10. 8> ② 협회는 우수 심판에 대해 장애인체육회에 국제기구 연수를 요청할 수 있다. 제24조(심판자격 상실 및 복권) <삭제> <삭제‘20. 10. 8> 제7장 심판 매뉴얼 등<개정‘24.10.20.> 제24조(심판매뉴얼) 협회는 심판매뉴얼을 제정하여 운영하여야 한다.<개정‘20. 10. 8> 부 칙('15. 2. 7) 제1조(시행일) 본 규정은 이사회가 승인한 2015년 2월 7일부터 시행한다. 부 칙('15.11.28) 제1조(시행일) 본 규정은 이사회가 승인한 2015년 11월 28일부터 시행한다. 부 칙('16. 9. 27.) 제1조(시행일) 이 규정은 이사회의 승인을 받은 날 로부터 시행한다. 부 칙(2020. 10. 8.) 제1조(시행일) 이 규정은 이사회의 의결을 받은 후 대한장애인체육회의 승인을 받은 날부터 시행한다. 제2조(경과조치) 협회는 이 규정을 준용하여 위원회 운영규정을 즉시 개정 또는 제정하여야 하며, 제 ‧ 개정을 하지 않았을 경우 장애인체육회 동 규정을 적용한다. 부 칙(2024.10.20.) 제1조(시행일) 이 규정은 이사회의 의결을 받은 후 대한장애인체육회의 승인을 받은 날부터 시행한다. 제2조(경과조치) 협회는 이 규정을 준용하여 위원회 운영규정을 즉시 개정 또는 제정하여야 하며, 제 ‧ 개정을 하지 않았을 경우 장애인체육회 동 규정을 적용한다. 심판위원회 운영규정 파일 열기2020. 9. 28. 제정 2024. 09. 27. 제정
제 1 장 총 칙 제1조(목적) ① 본 지침은 대한장애인배구협회(이하“협회”라 한다). 심판위원회운영규정 제6조(구성)에 따라 심판위원회 위원장(이하 ‘위원장’으로 한다) 선거에 필요한 사항을 규정함을 목적으로 한다. 제2조(적용) 위원장 선거에 관한 사항은 이 지침에 정한 것 이외에는 가맹단체회장선거관리규정에 정한 바에 의하며, 필요에 따라 별도세칙을 정하여 운영할 수 있다. 제3조(선거사무관장) 위원장 선거사무는 협회 사무국에서 관장한다. 제 2 장 위원장 선거관리 제4조(선거업무) 협회 사무처는 다음의 업무를 관장한다. 1. 선거공고 2. 선거인 명부 확인 및 관리 3. 입후보 등록고지 4. 선거권 및 피선거권자의 결격사유에 관한 검토 및 조치 5. 선거운동의 제한, 정견발표에 관한 관리 6. 투표용지에 관한 업무 7. 선거(투·개표)에 관한 업무 8. 선거의 연기 및 재선거에 관한 업무 9. 선거 이의신청에 관한 업무 10. 공명선거에 관한 업무 11. 당선자 보고 및 선포 12. 선거지침에 관한 업무 13. 기타 선거 업무 제반 사항에 관한 업무 제 3 장 선거운영 제5조(선거일 등의 공고) ① 선거일이 확정되면 별지 제1호 서식에 의거 협회 홈페이지에 즉시 공고하여야 한다. 제6조(위원장 후보자 자격요건) 심판위원회운영규정 제6조 제2항에 해당되는 자여야 한다. 제7조(위원장 후보자의 결격사유) ① 다음 각 호의 어느 하나에 해당하는 자는 위원장 후보자가 될 수 없다 1.「국가공무원법」제33조(결격사유) 각 호의 어느 하나에 해당하는 사람 2. 국민체육진흥법 제2조제9호 가목부터 다목까지의 체육단체 및 시도ㆍ시군구 종목단체에서 재직기간 중 직무와 관련하여 「형법」 제355조 및 제356조에 규정된 죄를 범한 사람으로서 300만 원 이상의 벌금형이상을 선고받고 그 형이 확정된 사람 (형이 실효된 사람을 포함한다.)<개정’24.9.27.> 3. 국민체육진흥법 제2조제9호 가목부터 다목까지의 체육단체 및 시도ㆍ시군구 종목단체가 주최ㆍ주관하는 경기의 결과에 영향을 미치는 승부조작에 가담하여 「형법」 제314조 및 「국민체육진흥법」 제47조 및 제48조에 규정된 죄를 범한 사람으로서 벌금형 이상을 선고받고 그 형이 확정된 사람 4. 국민체육진흥법 제2조제9호 가목부터 다목까지의 체육단체 및 시도ㆍ시군구 종목단체에서 다음 각 목에 따른 사람 4의2. 다음 각 목의 어느 하나에 해당하는 죄를 저지른 사람으로서 금고 이상의 실형 또는 치료감호를 선고받고 그 집행이 끝나거나(집행이 끝난 것으로 보는 경우를 포함한다) 집행이 면제된 날 또는 금고 이상의 형의 집행유예를 선고받은 날부터 20년이 지나지 아니하거나 벌금형이 확정된 날부터 10년이 지나지 아니한 사람 <신설 ’24.9.27.> 가. 「성폭력범죄의 처벌 등에 관한 특례법」 제2조에 따른 성폭력범죄 나. 「아동ㆍ청소년의 성보호에 관한 법률」 제2조제2호에 따른 아동ㆍ청소년대상 성범죄 4의3. 선수를 대상으로 「형법」 제2편 제25장 상해와 폭행의 죄를 저지른 사람으로서 금고 이상의 실형을 선고받고 그 집행이 끝나거나(집행이 끝난 것으로 보는 경우를 포함한다) 집행이 면제된 날 또는 금고 이상의 형의 집행유예를 선고받은 날부터 10년이 지나지 아니한 사람 <신설 ’24.9.27.> 5. 국민체육진흥법 제2조제9호 가목부터 다목까지의 체육단체 및 시도ㆍ시군구 종목단체에서 다음 각 목에 따른 사람 <신설 ’24.9.27.> 가. 폭력 및 성폭력 등 성 관련 비위로 자격정지 이상의 징계 처분을 받은 사람 나. 승부조작, 편파판정, 횡령ㆍ배임으로 자격정지 1년 이상의 징계처분을 받은 사람 다. 가목과 나목에 해당하는 사람을 제외하고 자격정지 이상의 징계처분을 받고 그 기간이 종료되지 아니한 사람 6. 국회의원 7. 사회적 물의, 장애인체육회와 장애인체육회 관계단체로부터 징계는 받지 않았지만 임원의 결격사유에 해당하는 유사 행위 등 그 밖의 이에 준하는 사유가 있는 사람<신설’24.9.27.> ② 위원장이 제1항 각호에 해당하게 되거나 선임 당시 그에 해당하는 자로 밝혀졌을 때에는 당연히 퇴임한다. <개정’24.9.27.> 제8조(위원장 후보자 등록 및 공고) ① 위원장 선거에 입후보하고자 하는 자는 후보자 등록 마감일까지 다음의 서류를 갖추어 지정된 제출처에 위원장 후보자 등록을 하여야 한다. 1. 위원장 후보자 등록신청서(별지 제2호 서식) 1부 2. 이력서(별지 제3호 서식) 1부 3. 스포츠윤리센터에서 발급하는 징계사실유무확인서 1부 <신설 ’24.9.27.> ② 협회 사무국은 위원장후보자를 후보자 등록부(별지 제3호 서식)에 등재한 후 접수증(별지 제4호 서식)을 교부한다. ③ 위원장 후보자 등록 마감일 다음날에 위원장 후보자 명단을 별지 제5호 서식에 의해 협회 홈페이지에 공고한다. 제9조(선거인명부 작성) ① 협회 사무국은 위원장 후보자 등록 마감일 다음날부터 선거인명부(별지 제6호 서식)를 비치하여야 하며 열람할 수 있도록 해야 한다. 제10조(위원장 후보자 정견발표) 위원장 후보자의 정견발표는 투표에 앞서 후보자 기호순서에 따라 발표하고 시간은 후보자의 합의를 통해 정한다. 제11조(선거방법) ① 투표는 기표방법에 의한 무기명 비밀투표로 한다. ② 투표는 직접투표에 의한 1인 1표로 한다. ③ 가맹단체는 필요에 따라 온라인투표시스템을 이용한 전자투표를 할 수 있다. ④ 전자투표에 관한 방법 및 절차는 중앙선거관리위원회에서 제공하는 온라인투표시스템에 의한다. 제12조(투표용지) ① 투표용지(별지 제7호 서식)는 협회에서 선거일 전일까지 준비하여야 한다. ② 투표용지에 인쇄할 후보자의 기호는 “1, 2, 3” 등으로 표시하여야 하며, 후보자의 성명은 한글로 기재하여야 한다. ③ 시각장애선거인에게는 별도의 투표용지 또는 투표보조용구를 제공할 수 있다. ④ 제2항의 후보자의 기호는 후보자 등록(접수) 순서에 의한다. 제13조(감표인 선정) 투표 감표를 위한 감표인은 선거인단 중 3인으로 선정한다. 제14조(투표) ① 위원회 위원은 감표자의 참여하에 본인임을 확인 받은 후 선거인 명부에 서명하고 투표용지 1매를 받아야 한다. ② 위원회 위원은 투표용지를 받은 후 기표소에서 기표를 한 후 그 자리에서 보이지 않게 접은 후 투표함에 넣어야 한다. 제15조(참관인 선정) 각 후보자는 필요할 경우 개표 참관인 1인을 선정하여 선거일 전일까지 장애인체육회 담당부서에 등록(별지 제8호 서식) 할 수 있다. 제16조(무효투표) 다음 각 호의 1에 해당하는 투표지는 무효로 한다. ① 정규의 투표용지를 사용하지 아니한 것. ② 어느 후보자의 난에도 기표를 하지 아니한 것. ③ 2인 이상의 후보자의 난에 표를 한 것. ④ 어느 후보자의 난에 표를 한 것인지 식별할 수 없는 것. ⑤ ○표를 하지 아니하고 문자 또는 다른 사항을 기입한 것. ⑥ ○표 이외에 다른 사항을 기입한 것. ⑦ 선거인 자신이 투표용지를 공개한 것. 제17조(위원장의 선출) ① 위원회 위원장은 협회에 등록된 지도자의 직선제로 선출한다. ② 위원장의 선출방법은 다음 각 호에 따른다. 1. 위원장 선거는 무기명 비밀투표로 하며, 유효투표중 다수의 득표를 한자를 당선인으로 결정 한다. 2. 다수 득표수가 동수인 경우에는 연장자를 당선인으로 결정한다. 3. 후보자가 1인일 때에는 투표를 실시하지 아니하고 선거일에 그 후보자를 당선인으로 결정 한다. 제18조(선출무효) 위원장은 선임 이후에도 가맹단체운영규정 제14조 제2항에 해당될 경우 자동으로 해촉된다 제19조(개표결과 보고서 작성) 감표자는 개표가 끝난 즉시 개표결과 보고서(별지 제9호 서식)를 작성 날인 후 협회 사무처에 제출하여야 한다. 제20조(위원장 당선인 공고) 협회 사무처는 위원장 당선인이 결정되면 선거일 다음날 즉시 별지 제10호 서식에 의거 위원장 당선인을 협회 사무처 홈페이지에 공고하여야 한다. 제21조(위원장 입후보자 선거활동 금지사항) 다음 각 호의 해당 행위를 금지한다. 1. 특정인의 인신공격 등 중상비방을 하거나 서명날인 운동을 주동, 선동 또는 참여하는 행위 2. 선거에 관하여 금품수수 또는 향응을 제공하는 행위 3. 허위의 이력을 기재하여 배포하는 행위 4. 기타 협회 공지한 사항 제22조(벌칙) 협회는 심판위원회 위원장 선거에 관하여 이 규정에서 금지하고 있는 행위를 하여 적발된 자에 대하여 법제상벌위원회의 결정에 따라 제재할 수 있으며, 제재내용은 대한장애인체육회 회장선거관리규정 제16조에 의한다. 부 칙(2020. 9. 28.) 제1조(시행일) 이 지침은 회장의 결재를 받은 날부터 시행한다. 부 칙(2024. 9. 27.) 제1조(시행일) 이 지침은 회장의 결재를 받은 날부터 시행한다.
심판위원회 위원장 선거관리 지침 파일 열기
2020. 09. 28. 제정 2021. 05. 10. 개정 2024. 09. 27. 개정
제1조(근거 및 목적) 이 규정은 대한장애인배구협회(이하 “협회”라 한다) 심판위원회(이하 “위원회”라 한다) 운영규정 제24조에 의거 제정하였으며, 위원회의 구성과 운영 등에 관하여 필요한 세부 사항을 정하는 것을 목적으로 한다.<개정‘24.9.27> 제2조(심판원 등급) 심판의 등급은 국제심판, 국제심판후보, 국내심판 1급, 2급, 3급으로 구분한다. 제3조(등급별 심판자격) 각급 심판은 협회와 각 시‧도지부가 주최, 주관하는 경기에서 각각 다음과 같은 역할을 담당할 수 있다.<개정‘24.9.27> ① 국제심판, 국제심판 후보: 국내․외에서 거행되는 모든 경기의 주심, 부심, 선심, 기록<개정‘24.9.27> ➁ 1급 → 국내에서 거행되는 모든 경기 주심, 부심, 기록, 선심 ③ 2급 → 국내에서 거행되는 모든 경기 부심, 기록, 선심 ④ 3급 → 국내에서 거행되는 모든 경기 기록, 선심 제4조(정년) 각급 심판원의 정년은 다음과 같이 규정에 따른다. ① 국제심판의 정년은 만 55세, 국내심판은 만 60세로 한다. ② 정년이 지난 심판원은 국내․외 공식경기에 임할 수 없다<개정 ’21. 05.10,개정‘24.9.27> ③ 정년이 지난 심판은 명예심판으로 추대할 수 있다. 제5조 (자격취득 및 승급절차) ① 심판자격 취득을 위한 응시가능 연령은 1급 만18세 이상, 2급 만16세 이상, 3급 만15세 이상으로 한다. ② 심판강습회 지원자격은 다음과 같이 한다 ③ 3급 취득 후 1년 이상 경과한자는 2급에, 2급 취득 후 2년 이상 경과 한 자는 1급에 응시할 수 있다.<개정‘24.9.27> ④ 대한민국배구협회 심판자격증 소지자가 대한장애인배구협회 심판강습회에 동일 동급으로 지원하여 자격 취득 시 심판자격을 취득한 것으로 본다. ⑤ 국가대표(실업선수)로 활동한 선수(1년이상)로서 협회가 주관하는 심판강습회에서 2급을 취득 할 수 있다. 단, 협회로부터 징계 중이거나 출전정지 1년 이상인 자는 제외하며, 만 2년이라 함은 전전년도의 익월에 시행하는 것도 포함한다.<개정‘24.9.27> ⑥ 현역선수는 3급 이상의 심판자격을 취득하여 등급 별 심판자격에 따라 활동할 수 있다. 단, 동일종별 중 동일성별의 심판은 볼 수 없다. ⑦ 위원회는 협회 주관 승인대회의 7일전에 협회 통보‧승인을 얻은 자에 한하여 대회에 임하도록 한다.<개정‘24.9.27> 제6조(강습회) ① 심판강습회는 16시간, 보수교육은 이론교육을 포함해 8시간의 교육을 받아야 한다. 제7조(강사의 자격) ① 심판강습회 및 보수교육 참가 강사의 자격은 아래와 같다. 1. 국제심판, 국제심판후보 2. 위원회 위원장 및 위원, 상임심판(단, 1급과 보수교육은 강사로 임할 수 없다)<신설 ‘24.9.27> 3. 교양과목은 체육행정가, 사회저명인사, 심판 등 영역별 전문가를 강사로 명할 수 있다.<개정‘24.9.27> 제8조(사정기준) 각 급 심판강습회 사정기준은 다음과 같다. ① 사정기준 1. 협회 심판자격 관리·운영규정에 따른다 2. 국제심판 후보자 강습회 참가 시 협회에서 필기(영어문제) 50%, 실기 40%, 기록 10%, 구술시험(영어)을 실시하며 과목 평균 70점 이상 합격자에 한해 선발한다 ➁ 강습회 시간은 100% 수강해야 한다. 다만, 불가항력적인 사유로 10% 이하의 수강을 못하였을 경우, 위원회에서 정상을 참작할 수 있다.<개정‘24.9.27> 제9조(기록보존 및 증명 발급) ① 심판에 관한 실적을 기록보존하기 위해 기록 카드를 2부 작성하여 부본을 관할 시‧도지부에 보관하고 정본은 협회 사무국에 보관한다. ② 증명발급 1. 각급 심판자격을 인증하기 위하여 심판자격증에 급수를 명시하여 발급한다.<개정‘24.9.27> 2. 심판자격증은 항상 휴대하여 심판에 임할 때나 연수회 수강신청을 할 때에 주최측에 제시하여 자격을 확인받아야 한다.<개정‘24.9.27> 제10조(권리) ① 각급 심판은 급별에 따라 협회 및 각 시․도지부가 주최‧주관하는 각종 경기대회의 심판을 담당한다. ② 각급 심판은 소정의 수당을 지급받는다. ③ 1급 심판자격을 취득하고 최근 3년 내 협회가 주최·주관하거나 승인한 전국규모 대회에 총 4회 이상 참가한 자만 국제 심판연수회 파견자 선발 시험에 응시할 수 있다. 제11조(의무) ① 각급 심판은 소정의 복장으로 심판에 임해야 하며 협회의 규정을 준수해야 한다. ② 심판자격을 취득한 자는 심판등록을 할 수 있다. 만일 2년간 계속하여 심판 활동을 하지 않은 자는 그 자격이 자동 상실된다. 단, 협회에서 주최‧주관하는 심판강습회 및 보수교육에 참가하여 8시간의 보수교육을 받은 자는 재등록 할 수 있다. 심판활동이란 국제연맹, 대한장애인체육회, 장애인배구협회, 시도협회가 주최‧주관 한 전문체육대회를 말한다. (단, 증빙서류는 경기기록지 등을 공문으로 제출한다.) ③ 당해년도 심판자격을 취득한 자는 해당연도에 등록할 수 있다. ④ 국제심판, 국제심판 후보, 상임심판은 협회 주관 대회에 의무적으로 참가한다. 단, 부득이 참가가 불가한 경우, 사유서를 제출한다.<개정‘24.9.27> 제12조(운영세칙) 본 규정에 명시되지 않은 사항은 위원회의 의결을 거쳐 협회 이사회의 결정에 따른다.<개정‘24.9.27> 부칙(2020. 9. 28.) 제1조(시행일) 매뉴얼은 협회 이사회의 의결을 받은 날로부터 시행한다. 부칙(2021. 5. 10.) 제1조(시행일) 매뉴얼은 협회 이사회의 의결을 받은 날로부터 시행한다. 부칙(2024. 9. 27.) 제1조(시행일) 매뉴얼은 협회 이사회의 의결을 받은 날로부터 시행한다.2016. 9. 27. 제정 2020. 10. 8. 개정 2024. 10. 20. 개정
제 1 장 총칙 제1조(설치근거 및 명칭) 이 규정은 대한장애인배구협회(이하 “협회”라 한다) 정관 제36조에 따라 설치 운영하며, 그 명칭을 지도자협의회(이하 “협의회”라 한다) 한다. 제2조(목적) 이 규정은 협의회의 구성과 운영 등에 관하여 필요한 사항을 정하는 것을 목적으로 한다. 제3조(적용범위) 협의회는 협회 등록지도자로 제6조 제2항의 자격자에 적용한다. 제4조(제정의무) ① 협회는 협의회 운영규정을 마련하고 이사회 승인 후 대한장애인체육회(이하 “장애인체육회)의 승인을 받아 시행한다.<개정 ‘24.10.20> ② 이 규정과 장애인체육회 규정이 상이할 경우 장애인체육회 규정을 우선 적용한다. 제5조(기능) 협의회는 각호의 기능을 수행한다. 1. 지도자의 권익 보호‧증진에 관한 사항 2. 경기분야 제도개선 의견제시에 관한 사항 3. 지도자 양성 및 교육에 관한 사항 4. 협회장 선거인단 추천에 관한 사항 5. 기타 협의회 목적과 관련된 사항 등 제2장 협의회 구성 및 회의 제6조(구성) ① 협의회는 다음의 위원으로 구성한다. 1. 위원장 1인 2. 부위원장 2인 이내 3. 위원 3인 이상 7인 이내(위원장, 부위원장 포함) ② 제1항의 위원은 정기 등록일 기준 만 18세 이상인 자로 다음 각 호중 1개 이상의 조건에 해당하는 자여야 한다. 1. 최근 3년 내 협회가 주최·주관하거나 승인한 전국규모 대회에 총4회 이상 참가한 자 2. 10년 내 협회 또는 장애인 배구 국가대표지도자(코치 이상)로 선임된 경력 자<개정 ‘24.10.20> 3. 협회 또는 장애인 배구 전임지도자나 실업팀지도자로서 선임된 경력 자<개정 ‘24.10.20> ③ 협회 정관 제25조(임원의 결격사유) 제2항에 해당되는 자는 위원이 될 수 없다.<개정 ‘24.10.20> ④ 협의회에 간사 1인을 두며, 협회 회장이 사무국 직원 중에서 지명한다. ⑤ 협의회는 효율적 운영을 위하여 소위원회를 둘 수 있다. 제7조(위원 선임) ① 협의회 위원장은 협회에 등록된 지도자의 직선제로 선출한다. ② 위원은 제6조 제2항을 근거로 협의회 위원의 자격이 있는 자를 대상으로 위원장이 구성한 후 사무국에 보고한다. ③ 부위원장은 협의회에서 호선한다. ④ 부위원장을 2인 선임할 경우 순서를 협의회에서 정해야한다. ⑤ 위원장 선거에 관한 투표인단의 구성방법 및 선출방법 등에 관한 세부사항은 회장이 별도로 정한다. 제8조(협회 선거인 선출) ① 협의회는 다음 각 호에 해당하는 선거인을 선출하고 협회 회장선거관리위원회에 추천해야 한다. 1. 협의회 위원장 2. 위원 중 선거인으로 선출된 자 1명 ② 제1항의 선거인은 협회 회장 임기만료 60일 전까지 선출하여야 하며, 만약 새롭게 선출하지 않을 경우 회장 선거권을 제한한다. 제9조(위원의 직무) ① 협의회 위원장은 협의회를 대표하고 그 업무를 총괄한다. ② 부위원장은 위원장을 보좌하고 위원장이 부득이한 사유로 직무를 수행할 수 없을 경우에는 부위원장 선임 시 정한 순서에 따라 위원장의 직무를 대행한다. ③ 위원은 협의회를 구성하고 협의회에 출석하여 그 직무에 관한 사항을 의결한다. 제10조(임기) ① 위원의 임기는 4년으로 연임할 수 있다. ② 임기는 일수를 기준으로 하지 않고 협회의 정기총회를 기준으로 한다. 다만, 협회 정관 제23조(회장의 선출) 제2항 및 협회 회장선거관리규정 제6조(선거인) 제1항에 의한 선거인은 임기시작 전이라도 이 규정 제8조(협회선거인 선출) 제2항에 의거 선출된 당선자가 된다. ③ 보선된 위원의 임기는 전임자의 잔여기간으로 한다. 제11조(위원의 해촉) ① 협회 회장은 위원이 다음 각 호의 어느 하나에 해당하는 경우 협의회의 의결을 거쳐 해촉 할 수 있다. 1. 위원이 질병, 해외출장, 그 밖의 사유로 장기간 출석이 곤란하여 직무를 수행하기 곤란하다고 판단되는 경우 2. 실정법 위반 등 위원의 품위를 손상하는 행위로 인하여 직무수행이 부적합하다고 판단되는 경우 3. 직무와 관련된 비위사실이 있는 경우 4. 협회 정관 제25조(임원의 결격사유)②항에 해당하는 데에도 불구하고 회피하지 아니한 경우<개정 ‘24.10.20> 5. 위원으로 선임된 기간 동안 지도자등록을 하지 않은 경우 ② 위원이 다음 각 호의 어느 하나에 해당하는 경우 자동 해촉 된다. 1. 본인이 희망하여 사임서를 제출한 경우 2. 해당종목에서 직위를 잃었을 경우 3. 제6조제3항에 해당되거나 선임 이후 해당될 경우 제12조(회의소집) 협의회 위원장은 협회 요구 또는 필요에 따라 회의를 소집한다. 제13조(의결정족수) 협의회에서 특별히 규정한 것을 제외하고는 재적위원 과반수의 출석으로 개회하고, 출석위원 과반수 찬성으로 의결한다.<개정 ‘24.10.20> 제14조(수당 등의 지급) 위원에 대하여는 예산의 범위 안에서 수당, 기타 필요한 경비를 지급할 수 있다. 제15조(제척 및 회피) ① 위원은 본인 또는 본인과 직접적인 이해관계가 있거나 공정을 기할 수 없는 뚜렷한 사유가 있는 경우 협의회 심의ㆍ의결에 참여할 수 없다. ② 본인이 제1항과 같은 사유가 있다고 판단하는 경우 회피할 수 있다 부 칙(2016. 9. 27.) 제1조(시행일) 이 규정은 이사회 의결 후 장애인체육회 승인을 받는 날로부터 시행한다. 제2조(경과조치) 협회는 규정을 준용하여 협의회 운영규정을 즉시 개정 또는 제정하여야 하며, 제ㆍ개정을 하지 않았을 경우 장애인체육회 동 규정을 적용한다. 부 칙(2020. 10. 8.) 제1조(시행일) 이 규정은 이사회 의결 후 장애인체육회 승인을 받는 날로부터 시행한다. 부 칙(2024. 10. 20.) 제1조(시행일) 이 규정은 이사회 의결 후 장애인체육회 승인을 받는 날로부터 시행한다. 지도자협의회 운영규정 파일 열기2020. 9. 28. 제정 2024. 09. 27. 제정
제 1 장 총 칙 제1조(목적) ① 본 지침은 대한장애인배구협회(이하“협회”라 한다). 지도자협의회운영규정 제6조(구성)에 따라 지도자협의회 위원장(이하 ‘위원장’으로 한다) 선거에 필요한 사항을 규정함을 목적으로 한다. 제2조(적용) 위원장 선거에 관한 사항은 이 지침에 정한 것 이외에는 가맹단체회장선거관리규정에 정한 바에 의하며, 필요에 따라 별도세칙을 정하여 운영할 수 있다. 제3조(선거사무관장) 위원장 선거사무는 협회 사무국에서 관장한다. 제 2 장 위원장 선거관리 제4조(선거업무) 협회 사무처는 다음의 업무를 관장한다. 1. 선거공고 2. 선거인 명부 확인 및 관리 3. 입후보 등록고지 4. 선거권 및 피선거권자의 결격사유에 관한 검토 및 조치 5. 선거운동의 제한, 정견발표에 관한 관리 6. 투표용지에 관한 업무 7. 선거(투·개표)에 관한 업무 8. 선거의 연기 및 재선거에 관한 업무 9. 선거 이의신청에 관한 업무 10. 공명선거에 관한 업무 11. 당선자 보고 및 선포 12. 선거지침에 관한 업무 13. 기타 선거 업무 제반 사항에 관한 업무 제 3 장 선거운영 제5조(선거일 등의 공고) ① 선거일이 확정되면 별지 제1호 서식에 의거 협회 홈페이지에 즉시 공고하여야 한다. 제6조(위원장 후보자 자격요건) 지도자협의회운영규정 제6조 제2항에 해당되는 자여야 한다. 제7조(위원장 후보자의 결격사유) ①다음 각 호의 어느 하나에 해당하는 자는 위원장 후보자가 될 수 없다 1. 피성년후견인 또는 피한정후견인 2.「국가공무원법」제33조(결격사유) 각 호의 어느 하나에 해당하는 사람 3. 국민체육진흥법 제2조제9호 가목부터 다목까지의 체육단체 및 시도ㆍ시군구 종목단체에서 재직기간 중 직무와 관련하여 「형법」 제355조 및 제356조에 규정된 죄를 범한 사람으로서 300만 원 이상의 벌금형이상을 선고받고 그 형이 확정된 사람 (형이 실효된 사람을 포함한다.)<신설 ‘24.09.27.> 4. 국민체육진흥법 제2조제9호 가목부터 다목까지의 체육단체 및 시도ㆍ시군구 종목단체가 주최ㆍ주관하는 경기의 결과에 영향을 미치는 승부조작에 가담하여 「형법」 제314조 및 「국민체육진흥법」 제47조 및 제48조에 규정된 죄를 범한 사람으로서 벌금형 이상을 선고받고 그 형이 확정된 사람 4의2. 다음 각 목의 어느 하나에 해당하는 죄를 저지른 사람으로서 금고 이상의 실형 또는 치료감호를 선고받고 그 집행이 끝나거나(집행이 끝난 것으로 보는 경우를 포함한다) 집행이 면제된 날 또는 금고 이상의 형의 집행유예를 선고받은 날부터 20년이 지나지 아니하거나 벌금형이 확정된 날부터 10년이 지나지 아니한 사람 <신설 ‘24.09.27.> 가. 「성폭력범죄의 처벌 등에 관한 특례법」 제2조에 따른 성폭력범죄 나. 「아동ㆍ청소년의 성보호에 관한 법률」 제2조제2호에 따른 아동ㆍ청소년대상 성범죄 4의3. 선수를 대상으로 「형법」 제2편 제25장 상해와 폭행의 죄를 저지른 사람으로서 금고 이상의 실형을 선고받고 그 집행이 끝나거나(집행이 끝난 것으로 보는 경우를 포함한다) 집행이 면제된 날 또는 금고 이상의 형의 집행유예를 선고받은 날부터 10년이 지나지 아니한 사람 <신설 ‘24.09.27.> 5. 국민체육진흥법 제2조제9호 가목부터 다목까지의 체육단체 및 시도ㆍ시군구 종목단체에서 다음 각 목에 따른 사람 가. 폭력 및 성폭력 등 성 관련 비위로 자격정지 이상의 징계 처분을 받은 사람 나. 승부조작, 편파판정, 횡령ㆍ배임으로 자격정지 1년 이상의 징계처분을 받은 사람 다. 가목과 나목에 해당하는 사람을 제외하고 자격정지 이상의 징계처분을 받고 그 기간이 종료되지 아니한 사람 6. 국회의원 7. 사회적 물의, 장애인체육회와 장애인체육회 관계단체로부터 징계는 받지 않았지만 임원의 결격사유에 해당하는 유사 행위 등 그 밖의 이에 준하는 사유가 있는 사람<신설 ‘24.09.27.> ② 위원장 후보자의 결격사유는 가맹단체운영규정 제14조 임원의 결격사유를 적용한다. 제8조(위원장 후보자 등록 및 공고) ① 위원장 선거에 입후보하고자 하는 자는 후보자 등록 마감일까지 다음의 서류를 갖추어 지정된 제출처에 위원장 후보자 등록을 하여야 한다. 1. 위원장 후보자 등록신청서(별지 제2호 서식) 1부 2. 이력서(별지 제3호 서식) 1부 3. 스포츠윤리센터에서 발급하는 징계사실유무확인서 1부 <신설 ‘24.09.27.> ② 협회 사무국은 위원장후보자를 후보자 등록부(별지 제4호 서식)에 등재한 후 접수증(별지 제5호 서식)을 교부한다. ③ 위원장 후보자 등록 마감일 다음날에 위원장 후보자 명단을 별지 제6호 서식에 의해 협회 홈페이지에 공고한다. 제9조(선거인명부 작성) ① 협회 사무국은 위원장 후보자 등록 마감일 다음날부터 선거인명부(별지 제7호 서식)를 비치하여야 하며 열람할 수 있도록 해야 한다. 제10조(위원장 후보자 정견발표) 위원장 후보자의 정견발표는 투표에 앞서 후보자 기호순서에 따라 발표하고 시간은 후보자의 합의를 통해 정한다. 제11조(선거방법) ① 투표는 기표방법에 의한 무기명 비밀투표로 한다. ② 투표는 직접투표에 의한 1인 1표로 한다. ③ 가맹단체는 필요에 따라 온라인투표시스템을 이용한 전자투표를 할 수 있다. ④ 전자투표에 관한 방법 및 절차는 중앙선거관리위원회에서 제공하는 온라인투표시스템에 의한다. 제12조(투표용지) ① 투표용지(별지 제8호 서식)는 협회에서 선거일 전일까지 준비하여야 한다. ② 투표용지에 인쇄할 후보자의 기호는 “1, 2, 3” 등으로 표시하여야 하며, 후보자의 성명은 한글로 기재하여야 한다. ③ 시각장애선거인에게는 별도의 투표용지 또는 투표보조용구를 제공할 수 있다. ④ 제2항의 후보자의 기호는 후보자 등록(접수) 순서에 의한다. 제13조(감표인 선정) 투표 감표를 위한 감표인은 선거인단 중 3인으로 선정한다. 제14조(투표) ① 협의회 위원은 감표자의 참여하에 본인임을 확인받은 후 선거인 명부에 서명하고 투표용지 1매를 받아야 한다. ② 협의회 위원은 투표용지를 받은 후 기표소에서 기표를 한 후 그 자리에서 보이지 않게 접은 후 투표함에 넣어야 한다. 제15조(참관인 선정) 각 후보자는 필요할 경우 개표 참관인 1인을 선정하여 선거일 전일까지 장애인체육회 담당부서에 등록(별지 제9호 서식) 할 수 있다. 제16조(무효투표) 다음 각 호의 1에 해당하는 투표지는 무효로 한다. ① 정규의 투표용지를 사용하지 아니한 것. ② 어느 후보자의 난에도 기표를 하지 아니한 것. ③ 2인 이상의 후보자의 난에 표를 한 것. ④ 어느 후보자의 난에 표를 한 것인지 식별할 수 없는 것. ⑤ ○표를 하지 아니하고 문자 또는 다른 사항을 기입한 것. ⑥ ○표 이외에 다른 사항을 기입한 것. ⑦ 선거인 자신이 투표용지를 공개한 것. 제17조(위원장의 선출) ① 협의회 위원장은 협회에 등록된 지도자의 직선제로 선출한다. ② 위원장의 선출방법은 다음 각 호에 따른다. 1. 위원장 선거는 무기명 비밀투표로 하며, 유효투표중 다수의 득표를 한자를 당선인으로 결정한다. 2. 다수 득표수가 동수인 경우에는 연장자를 당선인으로 결정한다. 3. 후보자가 1인일 때에는 투표를 실시하지 아니하고 선거일에 그 후보자를 당선인으로 결정한다. 제18조(선출무효) 위원장은 선임 이후에도 가맹단체운영규정 제14조제2항에 해당될 경우 자동으로 해촉된다 제19조(개표결과 보고서 작성) 감표자는 개표가 끝난 즉시 개표결과 보고서(별지 제10호 서식)를 작성 날인 후 협회 사무처에 제출하여야 한다. 제20조(위원장 당선인 공고) 협회 사무처는 위원장 당선인이 결정되면 선거일 다음날 즉시 별지 제11호 서식에 의거 위원장 당선인을 협회 사무처 홈페이지에 공고하여야 한다. 제21조(위원장 입후보자 선거활동 금지사항) 다음 각 호의 해당 행위를 금지한다. 1. 특정인의 인신공격 등 중상비방을 하거나 서명날인 운동을 주동, 선동 또는 참여하는 행위 2. 선거에 관하여 금품수수 또는 향응을 제공하는 행위 3. 허위의 이력을 기재하여 배포하는 행위 4. 기타 협회 공지한 사항 제22조(벌칙) 협회는 지도자협의회 위원장 선거에 관하여 이 규정에서 금지하고 있는 행위를 하여 적발된 자에 대하여 법제·상벌위원회의 결정에 따라 제재할 수 있으며, 제재내용은 대한장애인체육회 회장선거관리규정 제16조에 의한다. 부 칙(2020. 9. 28.) 제1조(시행일) 이 지침은 회장의 결재를 받은 날부터 시행한다. 부 칙(’24. 09. 27.) 제1조(시행일) 이 지침은 회장의 결재를 받은 날부터 시행한다.
지도자협의회 위원장 선거관리지침 파일 열기











파트 1:
규칙과 심판의 철학 (PHILOSOPHY OF THE RULES AND REFEREEING)
소개 (Introduction)
서론
좌식 배구는 세계에서 가장 성공적이고 인기 있는 경쟁 및 레크리에이션 스포츠 중 하나이며 선수들이
기술과 장비에 의존하지 않는 유일한 장애인 스포츠 중 하나이다. 빠르고 흥미진진하며, 동작이 폭발적이다.
그러나 배구는 보완적 상호작용으로 랠리 게임에서 몇 가지 중요한 중복 요소들로 구성된다.
최근 몇 년 동안 FIVB (국제배구연맹)와 World ParaVolley는 게임을 현대 관중들 적용시키는 것에 큰 발전을 이뤘다.
이 단락은 다음과 같은 이유로 광범위한 배구 대중을 대상 선수 코치 심판 관중 또는 해설자로 한다:
–
• 규칙을 이해하면 더 나은 경기를 할 수 있다.
감독은 더 나은 팀 구조와 전략 을 세우고 선수들의 기술을 최대로 발휘할 수 있게 한다.
• 규칙 간의 관계를 이해하면 임원들이 더 나은 결정을 내릴 수 있다.
이 소개는 성공적인 심판에 필요한 주된 자질을 식별하기 전에 경쟁 스포츠인 배구에 중점을 둔다.
경쟁 스포츠로서의 배구 (Volleyball as a Competitive Sport)
경쟁은 잠재된 힘을 두드린다. 최고의 능력, 정신, 창의성 그리고 미학을 보여준다.
규칙은 이러한 모든 자질을 허용하도록 구성되어 있다.
몇 가지 예외를 제외하고 배구는 모든 선수들이 네트(공격)와 코트 뒤(방어 또는 서브)에서 모두 경기를 할 수 있다.
이 게임의 창조자인 윌리엄 모건은 배구가 몇 년 동안 독특하고 필수적인 요소를 보유 하고 있기 때문이라고 생각한다. 이 중 일부는 다른 네트/볼/라켓 게임으로 공유한다:
• 서비스;
• 로테이션 (교대로 서브);
• 공격;
• 방어
그러나 배구는 공이 끊임없이 날아다녀야 하며
– “플라잉 볼”, 볼이 상대편으로 돌아가기 전에 각 팀에게 어느 정도의 내부 패스를 허용한다는 점 에서 이는 네트 게임 중 유일하다.
전문 수비 선수(들)인 리베로는 랠리의 길이와 다단계 플레이에 있어 게임을 발전시켰다.
서비스 규칙의 수정은 서비스가 단순히 볼을 인 플레이 상태로 만드는 것이 아닌 공격 수단으로 변경되었다.
로테이션의 개념은 만능선수(올라운더)를 위해 확립되어 있다. 선수 위치에 대한 규칙은 팀들이 융통성을 가지고 전략에 있어 흥미로운 발전을 할 수 있도록 한다.
경쟁자들은 이 체계를 이용하여 기술, 전략 그리고 힘에 경쟁을 한다.
체계는 선선수들이 관중들과 시청자들을 열광시키는 표현의 자유를 허용한다. 그리고 배구의 이미지는 점점 좋아지고 있다.
게임이 발전함에 따라 앞으로 더 좋고, 강하고, 빠르게 변할 것에 의심의 여지가 없다.
체계 내의 심판 (The Referee within this Framework)
훌륭한 임원의 본질은 공정성과 일관성의 개념에 있다.
• 모든 참가자들은 공평하다.
• 관중들에게 공평하게 보여진다.
이것은 엄청난 신뢰를 요구한다.
주심은 선수들이 즐겁게 경기를 할 수 있도록 신뢰되어야 한다.
• 자신의 판단이 정확함으로써;
• 규칙이 왜 쓰여졌는지 이해함으로써;
• 효율적인 조직자가 됨으로써;
• 경쟁을 원활하게 흐르게 하며 결론을 유도함으로써;
• 교육자가 됨으로써 - 규칙을 이용하여 불공정한 자는 벌칙을 과하고, 무례한 자를 꾸짖음으로써;
• 게임을 홍보함으로써, 즉 게임에서의 화려한 요소가 빛나고, 최고의 선수가 자신이 가장 잘하는 일을 할 수 있도록 하는 것, 대중을 즐겁게 하는 것.
마지막으로 훌륭한 주심은 경기를 모두에게 있어 성취감이 있는 경험으로 만들기 위해 규칙을 사용하는 것이라고 말할 수 있다.
여기까지 읽어 주신 사람들에게 규칙을 게임의 현재 발전 상태로 보되 앞으로의 몇 단락들이 스포츠 내 당신의 위치에서 왜 동등하게 중요한지 명심하면 된다.
제1장 시설 및 장비(FACILITIES AND EQUIPMENT)
1. 경기장(PLAYING AREA)
경기장은 경기 코트와 자유 지역(이하 "프리존"으로 표기)을 포함한다.
이것은 직사각형으로 둘로 나뉜 양쪽이 대칭을 이뤄야 한다.
1.1. 규격(DIMENSIONS)
경기 코트는 모든 면이 최소 3m 폭의 프리존으로 둘러진 10 × 6m 크기의 직사각형이다. 자유 경기 공간은 어떠한 장애로부터 자유로운 경기장 위의 공간을 말하며, 경기장 표면으로부터 최소 7m 높이가 확보되어야 한다.
Zonal 챔피언쉽 뿐 아니라 WPV 세계대회 및 공식대회에서 자유지역(Free zone)은 사이드 라인으로부터 최소 4m, 앤드라인으로부터 최소 6m가 확보 되어야 하며,
자유 경기공간은 경기장 표면으로부터 최소 10m 높이가 확보되어야 한다.
1.2. 경기장 표면(PLAYING SURFACE)
1.2.1. 표면은 평평하고 수평적이며 균등한 재질이어야 한다. 선수에게 부상 위험이 있어서는 안되며, 거칠거나 미끄러운 표면에서 경기하는 것은 금지된다.
Zonal 챔피언쉽 뿐 아니라 WPV 세계대회 및 공식대회에서는 목재나 합성 표면만이 허용되며, 어떠한 표면도 사전에 WPV에 의해 승인 받아야 한다.
1.2.2. 실내 코트의 경기장 표면은 밝은 색으로 되어야 한다.
Zonal 챔피언쉽 뿐 아니라 WPV 세계대회 및 공식대회에서는 흰색으로 선을 그어야 하며, 서로 다른 색상으로 경기 코트와 프리존이 구분되어야 한다.
경기 코트의 전위 지역과 후의 지역의 경기장 표면 색상은 다를 수 있다.
1.2.3. 실외 코트에서는 미터 당 5mm의 경사가 배수를 위해 허용되며, 딱딱한 재질로 만든 코트의 선은 금지된다.
1.3. 코트의 라인(LINES ON THE COURT)
1.3.1. 모든 라인은 5cm 폭으로 그려지며, 바닥과 다른 라인으로부터 구분되는 밝은 색상 이어야 한다.
1.3.2. 구획선(BOUNDARY LINES)
사이드라인 2개와 앤드라인 2개로 경기 코트를 표시한다. 양 사이드 라인과 앤드 라인은 경기 코트의 면적 안에 포함되어야 한다.
1.3.3. 센터 라인(CENTRE LINE)
센터 라인의 중심은 각각 6m × 5m의 크기로 측정되는 2개의 동일한 코트로 경기코트를 나눈다. 하지만 선의 전체 너비는 양 코트를 동일하게 포함시키는 것으로 간주한다. 이 선은 사이드 라인에서 사이드 라인까지 네트 아래를 연장한다.
1.3.4. 어택라인(ATTACK LINE)
센터라인의 중심에서 2m 뒤로 그려진 각 코트의 어택라인은 전위 지역을 표시한다.
Zonal 챔피언쉽 뿐 아니라 WPV 세계대회 및 공식대회에서 어택 라인은 사이드라인으로부터 너비 5cm, 길이 15cm의 짧은 5개의 선이 20cm 간격으로 이뤄진 절취선으로 1.75m까지 연장된다.
1.3.5. 벤치 지역 라인
이 규칙 변경의 목적은 경기 중 코트 표면에서 벤치로 이동하는 데 어려움이 있는 소수의 선수들에게 허용하는 것이다. 특히 그 선수가 짧은 시간 안에 교체될 경우 이
변경 사항은 모든 선수가 벤치 앞 바닥에 앉을 수 있는 모든 선수가 경기 중에 벤치에 앉도록 지시를 내린다.
각 팀 벤치 앞에는 교체 선수를 위한 특별벤치 지역이 있으며, 각 팀 벤치 앞 0.75m에 대해 선이 끊어져 표시한다.
벤치 지역 라인은 길이 15cm, 간격 20cm 간격 점선으로 표시된다.
1.4. 존과 지역 (ZONES AND AREAS)
1.4.1. 프론트 존 (FRONT ZONE)
각 코트의 프론트 존(전위 지역)은 센터라인 중심과 어택라인의 뒤 가장 자리 까지로 제한된다. 사이드라인을 넘어 프리존의 끝까지 연장되는 것으로 간주 된다.
1.4.2. 서비스 존 (SERVICE ZONE)
서비스 존은 각 앤드라인 뒤 너비 6m 지역을 말한다. 옆으로는 각각 길이 15cm 의 두 짧은 선이 사이드라인 연장선 상 앤드라인 20cm 뒤에 그려진다.
짧은 두 선은 서비스 존의 너비를 포함한다. 상세하게는, 서비스 존은 프리존 의 끝까지 연장된다.
1.4.3. 선수교대 지역 (SUBSTITUTION ZONE)
선수교대 지역은 양 어택라인의 연장선에서 기록석까지로 제한된다.
1.4.4. 리베로 교대 지역 (LIBERO REPLACEMENT ZONE)
리베로 교대 지역은 팀 벤치 쪽에 있는 프리존의 일부로, 어택라인 연장선에서 앤드라인까지로 제한된다.
1.4.5. 웜-업 지역 (WARM-UP AREA)
월드파라발리(WPV), 세계 및 공식 대회(지역(Zonal) 챔피언쉽 대회 포함)의 경우, 약 3×3m 크기의 웜-업 지역은 벤치와 일직선상에 배치된다.
웜-업 지역의 실제 크기와 위치는 벤치의 길이와 자유 지역의 범위에 따라 결정된다(경기 위원(TD)이 별도로 지정하지 않는 한).
1.4.6. - 벤치 지역
월드파라발리, 세계 및 공식 대회(지역 챔피언쉽 대회 포함)의 경우, 벤치 지역은 약
0.75×4m 크기로 양쪽 팀 앞에 위치해야한다. 자유 지역 내 벤치(경기 위원이 별도로 지정하지 않는 한).
선수교대 또는 타임아웃 동안을 제외하고는 모든 선수는 경기 중에 항상 이 라인 뒤에 있어야 한다.
지정된 지역 밖에 있다는 이유로 경고를 받은 선수는 벤치에 앉거나 웜-업 지역으로 이동해야 한다.
두번 이상 경고를 받은 선수는 “지연”으로 제재를 받게 된다.
1.5. 기온 (TEMPERATURE)
기온은 10°C(50°F) 이하가 되어서는 안 된다.
Zonal 챔피언쉽 뿐 아니라 WPV 및 공식대회 에서 최대 기온은
25°C(77°F)보다 높지 않아야 하며, 최소 16°C(61°F)보다 낮지 않아야 한다.
1.6. 조명 (LIGHTING)
Zonal 챔피언쉽 뿐 아니라 WPV 및 공식대회에서 경기장의 조명은 경기장 표면 1m 위에서 측정했을 때 1,000~1,500 룩스가 되어야 한다.
2. 네트와 지주 (NET AND POSTS)
2.1. 네트의 높이 (HEIGHT OF THE NET)
2.1.1. 네트는 센터라인에서 수직으로 남자 1.15m, 여자 1.05m 높이로 설치 된다.
2.1.2. 네트 높이는 경기 코트의 중앙에서 측정되며, 양 사이드라인 상에서 네트 높이 는 정확하게 같아야 하고, 공식적 높이보다 2cm 이상 초과 해서는 안된다.
2.2. 구조 (STRUCTURE)
네트는 너비 0.80m, 길이 6.50~7m(사이드 밴드 양 옆에 25~50cm 길이 포함)로, 10cm의 정사각형 검정 그물로 만들어진다. Zonal 챔피언쉽 뿐 아니라
WPV 및 공식대회에서 네트의 길이는 7m가 되어야 한다. 상단의 수평 밴드는 두 겹의 흰색 캔버스로 만들어진 7cm의 너비로, 전체 길이를 꿰맨다. 밴드의 양 끝에는 끈이 통과해 상단부분을 팽팽하게
유지하여 지주에 밴드를 고정시켜주는 구멍이 있다.
네트를 지주에 고정시켜 상단의 팽팽함을 유지시켜 준다. 네트 하단에는 로프로 연결된 또 다른 수평 밴드가 있는데, 이는 상단의 밴드와 유사하며, 5cm 너비로
되어 있다. 이 로프는 네트를 지주에 고정시켜 하단부분의 팽팽함을 유지시켜 준다.
2.3. 사이드 밴드(SIDE BANDS)
2개의 흰색 밴드가 수직으로 네트에 고정되어 각 사이드라인 바로 위에 설치 된다. 이 사이드 밴드는 너비 5cm, 길이 0.80m로 네트의 부분으로 간주된다.
2.4. 안테나(ANTENNAE)
안테나는 유연한 막대기로 길이 1.60m, 직경 10mm의 유리섬유나 이와 유사한 재질로 만들어진다. 안테나는 각 사이드밴드 바깥 가장자리에 고정되며 네트의 서로 반대쪽으로 설치한다.
각 안테나 상단 80cm는 네트 상단을 연장하여 대체적으로 빨간색과 흰색의 대조적 색상을 사용하여 10cm 너비의 줄 무늬로 표시한다. 안테나는 네트의 한 부분으로 간주하며, 옆으로는 통과 허용 공간의 범위를 규정 짓는다.
2.5. 지주(POSTS)
2.5.1. 네트를 받치고 있는 지주는 사이드라인 밖 0.50~1.00m 거리에 설치 되고, 1.25m의 높이로 조정 가능한 것이어야 한다. Zonal 챔피언쉽 뿐 아니라 WPV 및 공식대회에서 네트를 받치고
있는 지주는 사이드 라인 1m 밖에 설치하고 패드로 보호되어야 한다. 지주는 WPV가 승인된 단독으로 설 수 있고, 가중 지주(고정을 위해 중량을 실은 지주)로
대회를 위해 승인된 것을 제외하고는 바닥 속으로 들어가야 한다.
2.5.2. 지주는 둥글고 매끄러운 것으로, 줄을 사용하는 것 없이 바닥에 고정된다. 어떤 위험성이 있거나 방해가 되는 장치가 있어서는 안된다.
2.6. 추가 장비(ADDITIONAL EQUIPMENT)
모든 추가 장비는 WPV 규정에 의해 결정된다.
3. 볼(BALLS)
3.1. 기준(STANDARDS)
볼은 구의 형태로 고무나 이와 유사한 재질로 만든 내피에 유연한 가죽 혹은 합 성가죽 표피로 만들어진다.
색상은 동일한 밝은색 혹은 조합된 색상 이어야 한다.
Zonal 챔피언쉽 뿐 아니라 WPV 및 공식대회에서 사용되는 인조가죽 컬러 볼은 WPV 기준에 부합되어야 한다.
볼의 둘레는 65~67cm이고, 무게는 260~280g이다. 내부 0.300~0.325kg/cm²(4.26~4.61psi)(294.3~318.82 mbar 기압 또는 hPa)이다.
3.2. 볼의 균일성(UNIFORMITY OF BALLS)
경기에 사용되는 모든 볼은 둘레, 무게, 압력, 형태, 색상 등이 동일한 기준을 지녀야 한다. 세계, 국제대회, 국내 혹은 리그대회에서도 WPV의 동의가 없는 한 WPV 공인구로 시합해야 한다.
3.3. 파이브-볼 시스템(FIVE-BALL SYSTEM)
Zonal 챔피언쉽뿐 아니라 WPV 및 공식대회에서 볼 5개가 사용되어야 한다.
이 경우, 볼 리트리버 6명은 프리존의 각 모서리와 심판 뒤쪽에 위치해야 한다.
제 2 장 – 참가자들(PARTICIPANTS)
4. 팀(TEAMS)
4.1. 팀 구성(TEAM COMPOSITION)
한 팀은 확정 ‘(Confirmed)’ 또는 관찰 ‘(Review)’ 등급의 국제적 등급 분류를 받은 최대 14명의 선수들로
구성되어야 합니다. 이는 최대 2명의 ‘최소장애’(VS2)로 분류된 선수, 감독 1명 최대 보조코치 2명, 물리치료사 1명,
그리고 의사 1명을 포함합니다.
일반적으로 기록지 선수명단에 있는 사람만이 경기장/통제구역에 들어갈 수 있으며, 공식연습과 경기에 참가할 수 있다.
팀 매니저나 저널리스트는 통제구역에 있는 벤치에 또는 그 뒤에 앉을 수 없다. Zonal 챔피언쉽 뿐 아니라
WPV 및 공식대회에서 팀 의사나 물리치료사는 팀 공식 임원으로 되어야 하며 사전에 WPV 의료부 (Medical Department)에 승인받아야 한다.
4.1.1. 선수 중 한 명은 팀 주장이 되며, 경기 기록지에 표시되어야 한다.
4.1.2. 경기 기록지에 기재된 선수만이 코트에 들어가 경기를 할 수 있다.
일단 감독이나 팀 주장이 경기 기록지에 서명을 하면 기록된 선수(E-스코어지의 선수 명단)는 바꿀 수 없다.
4.2. 팀의 위치(LOCATION OF THE TEAM)
4.2.1. 경기를 하지 않는 선수들은 팀 벤치에 앉거나 연습구역에 있어야 한다.
감독이나 다른 팀원은 벤치에 앉아 있어야 하나 일시적으로 그곳을 이탈할 수 있다.
벤치는 프리존 밖으로 기록석 양 옆에 놓여야 한다.
4.2.2. 팀원만이 경기 중 벤치에 앉거나 연습시간에 참가하는 것이 허용된다.
4.2.3. 경기를 하지 않는 선수들은 다음과 같이 볼 없이 연습할 수 있다.
4.2.3.1. 경기 중 : 웜-업 구역에서
4.2.3.2. 타임-아웃 및 타임-아웃 동안 : 자기 팀 코트 뒤 프리존 내에서
4.2.4. 세트 간 휴식동안, 선수들은 자신의 프리존 내에서 볼을 사용하여 연습을 해도 된다.
4.3. 복장(EQUIPMENT)
선수들의 복장은 상의, 반바지나 긴바지, 양말(동일해야 함)과 운동화로 구성된다.
선수들은 신발을 신지 않고 경기할 수 있다. 선수들은 다음과 같은 조건을
갖추었다면 팀 반바지 속에 압박용 타이즈 입는 것이 허용된다:
- 반바지 보다 길지 않고
- 반바지와 동일한 색상 또는 흰색, 검정색 또는 무채색
- 반바지를 입고 플레이하는 팀원들은 동일한 타입 / 조합을 사용
패딩이 없는 압박용 의류는 긴 바지 속에 입을 수 있다. 긴 바지를 입고 경기에 임하는 팀원들은 동일한 타입 / 조합을 착용해야 한다.
선수는 두꺼운 재질 위에 앉거나 특별히 제작된 두꺼운 반바지나 바지를 입을 수 없다.
4.3.1. 팀의 상의, 반바지, 긴바지, 그리고 양말의 색상 및 디자인은 각각 동일해야 하며(리베로 제외) 깨끗해야 한다.
4.3.2. 신발은 굽이 없이 고무 또는 합성 발바닥으로 가볍고 유연한 것이어야 한다.
Zonal 챔피언쉽 뿐 아니라 WPV 및 공식대회에서는 자국이 남는 신발을 신어서는 안된다.
4.3.3. 선수 셔츠의 번호는 1~99번까지 이다.
4.3.3.1. 번호는 상의 앞, 뒷면 중앙에 위치하며, 번호의 색상 및 밝기는 상의의 그것과 대조되는 것이어야 한다.
4.3.3.2. 번호는 상의 앞가슴에 최소 15cm, 등에 최소 20cm 높이로 되어야 하고, 줄무늬로 형성되는 번호는 최소 2cm 너비로 새겨야 한다.
4.3.4. 팀 주장은 상의 가슴부분에 새겨진 번호 아래 8×2cm의 라인을 넣어야 한다.
4.3.5. 팀 유니폼 색상과 다른 유니폼을 입거나 공식 번호가 없는 유니폼을 착용하는 것은 금지된다(리베로 제외).
4.4. 복장의 변경(CHANGE OF EQUIPMENT)
심판은 한 명 또는 한 명 이상의 선수에게 다음 권한을 부여한다:
4.4.1. 신발 없이 경기하는 것,Zonal 챔피언쉽뿐 아니라 WPV 및 공식대회에서 맨발로(양말 없이) 경기하는 것은 금지된다.
4.4.2. 세트 사이나 선수 교대 후 새 유니폼이 색상, 디자인 및 번호가 동일하다면 젖었거나 손상된 유니폼을 바꿔 입는 것.
4.4.3. 추운 날씨에 팀 전체의 유니폼이 동일한 색상 및 디자인과 규칙 4.3.3에 의거한 공식 번호가 부착된 것이라면 트레이닝복 차림(리베로 제외)으로 경기 하는 것.
4.5. 금지된 물품(FORBIDDEN OBJECTS)
4.5.1. 선수에게 부상의 위험이 있거나 불공평하게 인위적인 이점을 줄 수 있는 물품을 착용하는 것은 금지된다.
붕대의 사용은 가능하나 위험을 줄 수 있는 어떠한 것도 허용되지 않는다.
4.5.2. 선수들은 자신이 위험 부담을 안고 안경 및 렌즈를 착용할 수 있다.
4.5.3. 압박 패드(선수 부상 보호장비 패드. 예: 무릎/팔꿈치 보호대)는 보호나 지지를 목적으로 착용할 수 있다.
이러한 장비들은 유니폼과 일치되는 부분으로 동일한 색상으로 되어야 한다. 검정색, 흰색 또는 무채색으로 착용할 수 있으나 전 팀이 동일해야 한다.
5. 팀 리더(TEAM LEADERS)
양 팀 주장과 감독은 팀원의 행동 및 규율을 책임진다. 리베로는 팀 주장 또는 경기 주장이 될 수 있다.
5.1. 주장(CAPTAIN)
5.1.1. 경기 전, 팀 주장은 기록지에 서명을 하고 팀을 대표해 토스를 한다.
5.1.2. 경기 중, 코트에 있는 동안 팀 주장은 경기 주장이 된다. 팀 주장이 코트에 없을 경우, 감독이나 팀 주장은
경기 주장의 역할을 할 코트에 있는 다른 선수를 지명해야 한다. 이 경기 주장은 선수 교대로 코트 밖으로 나가게
되거나 팀 주장이 경기하러 들어오는 경우, 또는 세트가 끝날 때까지 경기 주장으로서 책임을 유지한다.
볼이 "아웃 오브 플레이" 상태가 되었을 경우, 경기 주장만이 심판에게 말할 수 있는 권한이 주어진다.
5.1.2.1. 규칙 적용과 해석에 대한 설명을 요청하는 것, 팀 동료의 요구 및 질의를 대신해 묻는 것.
만약 경기 주장이 주심의 설명에 대해 동의를 하지 않을 경우 그런 결정에 수긍하지 않음을 결정하고는
즉시 주심에게 경기 종료 시 경기 기록지에 공식 항의를 기록할 용의가 있음을 제시할 수 있다.
5.1.2.2. 허가를 요청하는 것:
a) 용구 전체 혹은 일부의 교체
b) 팀의 위치를 확인하는 것
c) 바닥,네트,볼 등을 점검하는 것, 기타:
5.1.2.3. 감독의 부재 시 경기 주장은 타임-아웃 및 선수교대를 요구할 수 있다.
5.1.3. 경기 종료 후, 팀 주장은:
5.1.3.1. 심판에게 감사를 표하고 결과를 확인한 후 기록지에 서명한다;
5.1.3.2. 공식 항의를 주심에게 알렸을 때, 주심의 규칙 적용 또는 해석에 관한 공식 항의를 경기 기록지에 기록하고 확인할 수 있다.
Zonal 챔피언쉽 뿐 아니라 WPV 및 공식대회에서 경기 중 이뤄진 어떠한 항의도 영어로 기재되어야 한다.
5.2. 감독(COACH)
5.2.1. 전 경기 동안, 감독은 경기 코트 밖에서 팀이 경기하는 것을 관장하고 주전 선수, 교대 선수의 선정 및 타임-아웃을
요청할 수 있다. 이러한 감독의 역할을 수행함에 있어 공식적으로 이러한 기능을 접촉하는 심판은 부심이다.
5.2.2. 경기 전, 감독은 기록지에 선수들의 이름 및 번호를 확인한 뒤 서명한다.
5.2.3. 경기 중, 감독은:
5.2.3.1. 매 세트 전, 부심이나 기록원에게 라인-업 시트를 적어 서명한 뒤 제출한다.
5.2.3.2. 기록석 가장 가까운 팀 벤치에 앉으며, 자리를 떠날 수 있다.
5.2.3.3. 타임-아웃 및 선수 교대를 요구한다.
5.2.3.4. 감독은 다른 팀원뿐만 아니라 코트에 있는 선수들에게 지시를 할 수 있다.
감독은 어택라인의 연장선에서부터 자유 지역까지 자신의 팀 벤치 앞의 자유 지역 내에서 서있거나
또는 걸으면서 이러한 지시를 내릴 수 있다.
경기 통제 구역의 한 구석에 위치하는 경우, 경기를 방해하거나 지연시키지 않고 경기를 진행해야 한다.
5.3. 코치(ASSISTANT COACH)
5.3.1. 코치는 팀 벤치에 앉으나, 경기에 관여할 권리는 없다.
5.3.2. 선수로서 코트로 들어가는 것을 제외하고, 감독이 제재를 포함하여 어떤 이유에서건
팀을 떠나야 한다면, 경기 주장이 주심에게 허가를 받아 코치가 감독의 부재 동안 감독의 역할을 수행할 수 있다.
제 3 장 – 경기 형식(PLAYING FORMAT)
6. 점수, 세트 및 경기의 승(TO SCORE A POINT, TO WIN A SET AND THE MATCH)
6.1. 점수 (TO SCORE A POINT)
6.1.1. 한 팀은 아래의 경우 1점을 획득한다:
6.1.1.1. 상대편 경기 코트에 볼이 성공적으로 닿은 경우;
6.1.1.2. 상대 팀이 반칙을 범한 경우;
6.1.1.3. 상대 팀이 벌칙을 받은 경우.
6.1.2. 반칙(Fault)
한 팀은 규칙에 어긋나는 경기 동작을 함으로써 반칙을 범하게 된다.
(또는 다른 형태로 위반을 함으로써)
심판은 반칙을 판단하고 규칙에 따른 결과를 정하게 된다:
6.1.2.1. 만약 두 개 또는 그 이상의 반칙이 연속적으로 범해졌다면 첫 번째 반칙만이 적용된다.
6.1.2.2. 두 개 또는 그 이상의 반칙이 양 팀에 의해 동시에 범해졌다면 더블폴트가 선언되며 경기는 다시 시작된다.
6.1.3. 랠리와 완료된 랠리(Rally and completed rally)
한 랠리는 서버에 의해 서비스가 행해진 순간에서부터 볼이 '아웃 오브 플레이' 될 때까지의 일련의 경기 동작이다.
완료된 랠리는 1득점를 주게 되는 결과를 가져오는 일련의 경기 동작이다.
이는 다음의 것을 포함한다:- 벌칙(Penalty)의 부과- 시간 제한(time-limit) 이후 이뤄진 서비스에 대한 서비스권의 상실
6.1.3.1. 서빙팀이 랠리에서 이기게 되면 1점을 획득하게 되고 서브는 계속된다.
6.1.3.2. 리시빙팀이 랠리에서 이긴다면, 1점을 얻고 다음의 서브를 하게 된다.
6.2. 세트의 승리(TO WIN A SET)
한 세트(최종 세트, 다섯 번째 세트 제외)는 최소 2점을 앞선 상태에서 먼저 25점을 획득한 팀이 승리한다.
24-24 동점을 이룬 경우 경기는 2점 리드가 이뤄질 때까지 계속된다 (26-24; 27-25;...)
6.3.경기의 승리(TO WIN THE MATCH)
6.3.1. 경기는 3세트를 이긴 팀이 승리한다.
6.3.2. 세트가 2-2로 같을 경우, 최종 (5번째 세트는) 최소 2점을 앞선 상태에서 15점 제로 경기하게 된다.
6.4. 부전패와 불완전 팀(DEFAULT AND INCOMPLETE TEAM)
6.4.1. 팀이 경기 속행에 대해 거부하게 되면, 각 세트 0-25, 시합 0-3의 결과와 함께 몰수로 부전패가 선고된다.
6.4.2. 아무런 정당한 사유 없이 팀이 제 시간에 경기장에 나타나지 않으면 규칙 6.4.1과 같은 결과로 부전패를 선고한다.
6.4.3. 팀이 세트 혹은 경기 중 불완전한 팀으로 선고되면 그 세트 혹은 그 경기는 지게 된다.
상대 팀은 세트 혹은 경기를 이기는데 필요한 점수 및 세트를 얻게 된다. 불완전 팀의 점수와 세트는 유효하다.
7. 플레이의 구조(STRUCTURE OF PLAY)
7.1. 토스 (THE TOSS)
경기 전, 주심은 첫 세트에서의 첫 서브와 코트 선정을 위한 토스를 실시한다.
만약 5세트가 진행된다면 새로 토스를 하게 된다.
7.1.1. 토스는 양 팀 주장의 참여하에 이뤄진다.
7.1.2. 토스의 승자는 :
7.1.2.1. 서브권 또는 서브, 리시브권 중 하나 또는
7.1.2.2. 코트 면을 선택할 수 있다.
7.1.3. 분리해서 공식 웜-업을 하는 경우 첫 서비스권을 가진 팀이 네트에서 먼저 웜- 업을 한다.
7.2. 공식 웜-업 (OFFICIAL WARM-UP SESSION)
7.2.1. 경기에 앞서, 팀이 먼저 코트에서 몸을 풀고 있었다면 네트에서 함께 6분의 웜-업 시간을 갖게 되며, 그렇지 않다면 10분을 가지게 된다.
Zonal 챔피언쉽 뿐 아니라 WPV 및 공식대회에서, 팀은 네트에서 함께 10분의 웜–업시간이 주어진다.
7.2.2. 양 팀 주장 중 한 명이 네트에서의 공식 웜-업을 따로 하겠다고 요청한다면,
팀들은 각 3분 또는 각 5분 동안 그렇게 할 수 있다.
Zonal 챔피언쉽 뿐 아니라 WPV 및 공식대회에 서 팀은 네트에서 5분간 따로 웜-업이 주어진다.
7.2.3. 공식 웜-업을 따로 할 경우, 첫 서비스를 가진 팀이 먼저 네트에서 웜-업을 하게 된다.
7.3. 팀 스타팅 라인-업
7.3.1. 코트에 있는 6명의 선수는 최대 한 명의 "최소 장애" 선수(VS2)를 포함할 수 있다.
리베로가 코트에 있을 때도 코트 안의 6명의 선수는 이 조건을 충족 시켜야 한다.
팀의 스타팅 라인-업은 코트에서 선수들의 로테이션 순서를 나타내는 것으로 이 순서는 세트 동안 유지되어야 한다.
7.3.2. 매 세트 시작 전, 감독은 라인-업 용지 또는 e-스코어 장치가 사용될 경우
e-스코어 장치를 통해 팀의 스타팅 라인-업을 적고, 서명을 하여 부심 또는 기록원에게 (또는 전자적으로 e-기록원에게 바로) 제출해야 한다.
7.3.3. 세트의 스타팅 라인-업에 있지 않은 선수들은 그 세트의 교대 선수들이다(리베로 제외).
7.3.4. 일단 라인-업 용지가 부심이나 기록원에게 제출되면 정규 교대 없이 라인 -업을 바꿀 수 없다.
7.3.5. 코트에 있는 선수들의 위치와 라인-업 용지의 위치가 일치하지 않는다면 아래와 같이 처리된다:
7.3.5.1. 그와 같은 위치의 불일치가 세트 시작 전에 발견된 경우에는 선수들의 위치 는 라인-업 용지에 따라 수정 되어져야 하며, 어떠한 제재도 없다;
7.3.5.2. 세트 시작 전에 코트에 있는 한 선수가 그 세트 라인-업 용지에 기입되어 있지 않은 것을 발견했을 경우, 이 선수는
라인-업 용지에 맞춰 바꿔야 하며 어떠한 제재도 없다;
7.3.5.3. 하지만, 코트에 있는 라인-업에 등록되어 있지 않은 선수를 코트에 그대로 두고 싶다면,
감독은 선수교대 핸드시그널을 사용하여 정규적인 선수교대를 요청해야 하며, 기록지에 기록한다.
만약 선수의 위치와 라인-업 용지의 위치가 틀린 것이 나중에 발견되었다면, 반칙을 한 팀은 정확한 위치로 되돌아가야 한다.
상대 팀의 점수는 유지되고 추가적으로 1점과 다음 서비스권을 갖게 된다. 반칙이 일어난 정확한 순간부터 반칙의 발견까지 반칙한 팀이 얻은 모든 점수는 취소된다.
7.3.5.4. 경기 기록지 선수 명단에 등록되지 않은 선수가 코트에서 발견되었다면,
상대편의 점수는 유지되고, 추가로 1점 및 서비스권을 얻는다. 반칙을 한 팀은 필요하다면 등록되지 않은 선수가 코트에
들어갔을 때부터 얻은 모든 점수와 세트(0:25)를 잃게 된다. 그리고 라인-업을 수정하여 제출해야 하며, 새로 등록된
선수를 등록되지 않은 선수가 있었던 코트의 위치로 들여보내야 한다.
7.4. 위치(POSITIONS)
서버가 공을 치는 순간, 각 팀은 자기 팀의 코트 안에 위치해야 한다(서버 제외)
리시빙 팀의 선수는 서비스 타구 시 로테이션 순서에 있어야 한다.
하지만 서비스 팀의 선수는 서비스 타구에 코트 내 어떤 위치에서 자유롭게 위치를 차지할 수 있다.
7.4.1. 선수의 위치는 다음과 같이 배열된다:
7.4.1.1. 네트 근처에 있는 3명의 선수는 전위 선수로 4(전위 레프트), 3(전위 센터) 그리고 2(전위 라이트)의 위치를 차지한다.
7.4.1.2. 나머지 3명의 선수는 후위 선수로 5(후위 레프트), 6(후위 센터), 그리고 1(후위 라이트)의 위치를 차지한다.
7.4.2. 선수 간의 상관적 위치:
7.4.2.1. 각각의 후위 선수는 그와 대응하는 전위선수보다 센터라인으로부터 더 뒤에 위치해야 한다;
7.4.2.2. 전위 선수와 후위 선수는 옆으로는 각각 규칙 7.4.1에 제시된 순서에 따라 위치해야 한다.
7.4.3. 선수의 위치는 아래와 같이 바닥에 닿아 있는 둔부의 위치에 따라 결정되고 통제된다:
7.4.3.1. 각각의 전위 선수는 적어도 둔부의 일부가 그와 대응하는 후위 선수의 둔부보다 센터라인에 더 가까이 있어야 한다.
7.4.3.2. 각각의 오른쪽(왼쪽)편 선수는 적어도 둔부의 일부가 같은 열에 있는 중앙선수의 둔부보다
오른쪽(왼쪽) 사이드라인으로 더 가까이 있어야 한다.
7.4.4 서비스 타구 후 양 팀의 선수는 각자의 코트와 자유 지역의 어느 위치로든 이동하여 차지할 수 있다.
7.5. 위치 반칙(POSITIONAL FAULT)
7.5.1. 모든 선수는 서버가 볼을 히트하는 순간 그의 정확한 위치에 서 있지 않았다면 그 팀은 위치 반칙이 된다.
선수가 불법적인 선수교대를 통하여 코트 안에 있고, 플레이가 다시 시작되었을 때 이것도 불법적인 선수교대의 결과로
포지션 폴트에 해당된다.
7.5.2. 서버가 서비스 타구 순간에 서빙 반칙을 범하게 된다면 서버의 반칙이 위치 반칙보다 먼저 인정된다.
7.5.3. 서비스 타구 후 그 서비스가 반칙이 되었다면 위치 반칙이 먼저 일어난 것이다.
7.5.4. 위치 반칙은 아래의 결과를 가져오게 된다:
7.5.4.1. 그 팀은 상대편에 1점과 서비스권을 주게 되는 제재를 받는다.
7.5.4.2. 선수의 위치는 수정된다.
7.6. 로테이션(ROTATION)
7.6.1. 로테이션 순서는 팀의 스타팅 라인-업에 의해 결정되고, 세트 내내 서비스 순서 및 선수들의 위치를 결정하게 된다.
7.6.2. 리시빙 팀이 서브권을 얻게 되면 그 팀 선수들은 시계방향으로 한 위치씩 돌게 된다: 2번 위치의 선수는 서브할
1번의 위치로 가게 되고, 1번 위치에 있는 선수는 6번의 위치로 가는 것 등.
7.7. 로테이션 반칙(ROTATIONAL FAULT) D.11(13)
7.7.1. 로테이션 반칙은 서비스가 로테이션 순서에 따라 이뤄지지 않을 때 일어나게 된다. 이에 대한 결과는 다음과 같다:
7.7.1.1. 기록원은 부저를 사용해서 플레이를 정지시키고 상대 팀은 1점 획득 및 다음 서비스권을 가지게 된다.
로테이션 반칙으로 시작된 랠리가 종료된 후 로테이션 반칙이 결정된 경우만이 랠리 결과에 상관없이 상대팀 에 1점의 점수만 주어진다.
7.7.1.2. 반칙을 범한 팀의 로테이션 순서는 수정된다.
7.7.2. 또한, 기록원은 반칙이 이뤄지는 정확한 순간을 결정하고 반칙 이후에 얻어진 모든 점수는 취소되어야 한다.
상대 팀 점수는 유효하다. 로테이션 반칙이 일어난 순간을 결정할 수 없다면 점수의 취소는 없으며,
다만 상대편에 1점과 서비스권을 주게 되는 제재만 주어진다.
제 4 장 – 플레잉 동작(PLAYING ACTIONS)
8. 플레이 상태(STATES OF PLAY)
8.1. 볼 인 플레이(BALL IN PLAY)
볼은 주심의 허가에 의해 서비스가 타구 되는 순간부터 '인 플레이' 상태가 된다.
8.2. 볼 아웃 오브 플레이(BALL OUT OF PLAY)
볼은 반칙 순간 심판의 휘슬로 "아웃 오브 플레이"가 된다; 반칙이 일어나지 않았더라도 휘슬 순간 "아웃 오브 플레이"가 된다.
8.3. 볼 “인”(BALL “IN”)
볼이 바닥에 접촉하는 순간 볼의 일부가 구획선을 포함하여 코트를 접촉 한다면 "인(In)"이다.
8.4. 볼 “아웃”(BALL “OUT”)
볼은 다음의 경우 "아웃"이 된다:
8.4.1. 바닥에 접촉한 볼의 모든 부분이 완전히 구획선 밖으로 나갔을 때;
8.4.2. 코트 밖의 물체, 천장 또는 경기하는 선수 외의 사람에 접촉했을 때;
8.4.3. 안테나, 로프, 지주, 또는 사이드 밴드 바깥쪽 네트에 닿았을 때;
8.4.4. 볼이 규칙 10.1.2의 경우를 제외하고 네트 수직면의 통과공간 밖으로 부분적 또는 완전히 통과했을 때;
8.4.5. 네트 아래 공간을 완전히 통과했을 때.
9. 볼 플레이(PLAYING THE BALL)
각 팀은 자신의 팀 경기구역 및 공간 내에서 경기해야 한다(규칙 10.1.2. 제외).
하지만 볼은 프리존 너머로부터 되돌려질 수 있다. 그리고 기록석과 그 위 공간에 서도 가능하다.
9.1. 팀 타구(TEAM HITS)
타구는 경기 중 선수가 볼과 함께 하는 모든 접촉을 말한다. 팀은 볼을 상대 코트로 보내기 위해 최대 3회의 타구(블로킹 제외)를 할 수 있으며,
그 이상의 타구는 "포(4) 히트 번째 타구" 반칙이 된다.
9.1.1. 연속적인 접촉(Consecutive contacts)
1명의 선수는 연속적으로 볼을 2번 타구할 수 없다(규칙 9.2.3, 14.2와 14.4.2 제외).
9.1.2. 동시 접촉(Simultaneous contacts)
2명 또는 3명의 선수가 동시에 볼을 접촉할 수 있다.
9.1.2.1. 2(3)명의 선수가 동시에 볼을 접촉하면 2(3)회의 타구로 간주한다(블로킹제외).
그들이 볼에 다가갔으나 한 명의 선수만 볼을 접촉했다면 한 번의 타구로 간주되며, 선수들의 충돌은 반칙으로 간주하지 않는다.
9.1.2.2. 양 팀의 선수가 네트 위에서 동시에 볼을 접촉하고 그 볼이 플레이 상태로 있을 때
볼을 리시브한 팀은 또 다른 3회 타구의 권한이 주어지고, 그 볼이 "아웃"이 되었다면 그것은 볼이 떨어진 상대 팀의 반칙이 된다.
9.1.2.3. 네트 위에서 양 팀이 동시에 친 볼이 "캐치(CATCH)"로 이르게 되면 이는 "더블폴트(DOUBLE FAULT)"가 되어
그 랠리는 리플레이가 된다. 하지만 짧은 캐치성 볼은 연장된 접촉이 정지되지 않고 플레이가 이어진다면 허용된다.
9.1.3. 어시스트 타구(Assisted hit)
경기지역 내에서 선수가 볼을 치기 위해 팀원이나 어떤 구조물/물체의 도움을 받는 것은 허용되지 않는다.
하지만 반칙을 하려고 하는 선수를(네트를 터치하는 것 등) 팀의 다른 선수가 멈추게 하거나 뒤로 잡아당기는 것은 무방하다.
9.2. 타구의 특성(CHARACTERISTICS OF THE HIT)
9.2.1. 볼은 신체 어느 부분으로도 접촉할 수 있다.
9.2.2. 볼은 잡거나 던져서는 안된다. 볼을 어느 방향으로든 리바운드시킬 수 있다.
9.2.3. 동시에 일어난 접촉이라면 볼을 신체 여러 곳에 접촉할 수 있다. 예외:
9.2.3.1. 블로킹에서, 연속적인 접촉은 그 접촉이 한 동작으로 일어난 것이라면 한 명 혹은 그 이상의 블로커에 의해 연속적으로 해도 무방하다.
9.2.3.2. 팀의 첫 타구에서 볼은 그 접촉이 한 동작으로 일어난 것이라면 신체 여러 곳에 연속적으로 접촉할 수 있다.
9.3. 볼 플레이 반칙(FAULTS IN PLAYING THE BALL)
9.3.1. 포 히트: 한 팀이 볼을 상대 팀으로 보내기 전에 4번 타구 하는 것.
9.3.2. 어시스트 히트: 선수가 경기지역 내에 있는 볼을 치기 위해 팀원이나 어떤 구조물/물체의 도움을 받는 것.
9.3.3. 캐치 : 볼을 잡거나 던지는 것; 그 타구(잡거나 던져진 볼)에서 리바운드 되지 (튕겨지지) 않는다.
9.3.4. 더블 컨택: 1명의 선수가 연속적으로 볼을 2번 치거나 볼이 연속적으로 선수의 신체 여러 부분에 접촉하는 것.
9.3.5. 리프팅: 선수의 둔부와 어깨 사이의 신체 부분이 플레잉 동작 동안 코트에 접촉하지 않는 것.(예외 규칙 9.4.1)
9.4. 코트와의 접촉(CONTACT WITH THE COURT)
9.4.1. 플레이 동작 동안 항상 선수들은 둔부와 어깨 사이의 신체 일부분이 코트에 접촉해야 한다.
수비동작(1, 2번째 또는 3번째 접촉 중)으로 플레이할 볼을 플레이 할 때 볼이 네트 상단보다 완전히 위에 있지 않는 경우에서는
코트 전체에서 리프팅은 허용된다.
공격 동작을 할 때를 제외하고, 코트의 어느 지역에서든 선수의 둔부는 바닥과 잠시 접촉을 잃는 것이 허용된다.
수비 행동 후 공이 합법적으로 네트의 수직면을 통과하면 경기가 계속된다.
9.4.2. 일어선다거나, 몸을 일으키거나 스탭을 밟는 것은 금지된다.
10. 네트에서의 볼(BALL AT THE NET)
10.1. 네트를 통과하는 볼(BALL CROSSING THE NET)
10.1.1. 상대편 코트로 넘기는 볼은 통과 공간 내에 네트 위로 넘겨져야 한다.
통과공간이란 네트 수직면의 부분으로 다음과 같이 한정된다:
10.1.1.1. 아래로는 네트 상단부터:
10.1.1.2. 양 옆으로는 안테나와 그 연장 선상까지;
10.1.1.3. 위는 천장까지.
10.1.2. 팀의 첫 번째 타구에서 나온 공이 외부 공간을 완전히 또는 부분적으로 통과하여 네트 면을 넘어
상대방의 자유 지역으로 넘어간 경우, 다음과 같은 경우라면 팀 타구 내에서 자기 편으로 다시 되돌려 플레이 할 수 있다.
10.1.2.1. 선수가 상대 팀 코트를 밟지 않은 경우(규칙 11.2.2. 제외)
10.1.2.2. - 볼을 자기 편으로 되돌려 플레이 할 때 같은 코트 측면의 외부 공간을 통해
완전히 또는 부분적으로 다시 네트 수직면을 지나가야 한다 – 그렇지 않은 경우 볼 아웃이 된다. 상대팀은 이러한 행동을 방해해서는 안된다.
10.1.3. 볼이 네트 아래 공간을 통해 상대방 코트를 향하는 경우, 네트의 수직면을 완전히 통과하는 순간까지는 "인 플레이"이다.
10.2. 네트를 접촉하는 볼(BALL TOUCHING THE NET)
네트를 지나는 동안, 볼은 네트에 접촉 해도 된다.
10.1.2.3. 외부 공간을 통해 완전히 또는 부분적으로 상대팀의 자유지역으로 보내진 볼이
팀의 두 번째 또는 세 번째 타구에서 나온 경우라면 다시 플레이할 수 없으며,
네트수직면을 넘어가는 순간 볼 아웃으로 판정된다.
10.3. 네트에서의 볼(BALL IN THE NET)
10.3.1. 네트로 쳐 넣어진 볼은 팀의 3회 타구 내에서 플레이할 수 있다.
10.3.2. 만약 볼이 네트 그물을 찢거나 찢어 내려지면 랠리는 취소되고 다시 플레이 된다.
11. 네트근처의 선수(PLAYER AT THE NET)
11.1. 네트를 넘어가는 것(REACHING BEYOND THE NET)
11.1.1. 만약 선수가 공격을 하기 전이나 하는 동안, 상대 플레이를 방해하지 않는다면 블로킹에서 선수가 네트를 넘어 볼을 접촉해도 된다.
11.1.2. 공격을 한 후, 선수는 그 접촉이 자기 팀 경기 공간 내에서 이뤄졌다면 손이 네트를 넘어가는 것은 허용된다.
11.2. 네트 아래로의 침범(PENETRATION UNDER THE NET)
11.2.1. 네트 아래의 침범이 상대편 플레이를 방해하지 않는다면 네트 아래 상대편 공간을 침범하는 것은 허용된다.
11.2.2. 상대편 플레이를 방해하지 않는다면 신체 어느 부위든 센터라인을 넘어 상대편 코트를 터치하는 것은 허용된다.
11.2.3. 볼이 '아웃 오브 플레이' 상태가 된 뒤 선수가 상대편 코트로 들어가는 것은 무방하다.
11.2.4. 상대편 플레이를 방해하지 않는다면 선수들은 상대편 자유지역을 침범할 수 있다.
11.3. 네트와의 접촉(CONTACT WITH THE NET)
11.3.1. 선수가 네트를 접촉하는 것은 플레이에 방해되지 않는다면 반칙이 아니다.
11.3.2. 플레이에 방해되지 않는다면 지주, 로프, 또는 네트를 포함하여 안테나 밖의 다른 물체에 닿아도 된다.
11.3.3. 볼이 네트를 쳐 그것 때문에 상대 선수가 네트에 접촉하게 된다면 이는 반칙이 아니다.
11.4. 네트 근처의 선수 반칙(PLAYER’S FAULTS AT THE NET)
11.4.1. 선수가 상대 팀이 공격 타구를 하기 전이나 하는 동안 상대편의 공간에서 상대 선수나 볼을 터치하는 경우
11.4.2. 선수가 네트 아래 상대편의 공간을 침범하여 상대편 플레이를 방해하는 경우
11.4.3. 선수가 상대 플레이를 방해하며 상대 코트로 침범하는 경우
11.4.4. 다음과 같이 선수가 상대편 플레이를 방해하는 경우
- 볼 플레잉 동작 중 또는 볼 플레이를 시도하는 동안 안테나 사이의 네트 상단을 터치하거나 안테나에 닿는 경우
- 볼을 플레이함과 동시에 지지나 안정을 시킬 목적으로 안테나 사이의 네트를 사용하는 경우
- 네트터치를 하여 상대편보다 유리한 상황을 만들어 내는 경우
- 볼을 플레이하는 상대방의 정상적인 시도를 방해하는 행위를 만드는 경우
- 네트를 잡는 경우
볼을 플레이 할 때 볼에 가까이 있는 선수나, 플레이 하려는 선수는 볼 접촉 이 일어나지 않았다 하더라도 볼을 플레이 하는 동작으로 간주된다.
하지만 안테나 바깥의 네트 접촉은 반칙으로 간주하지 않는다(규칙 9.1.3 제외).
12. 서비스(SERVICE)
서비스 후위 우측 선수가 서비스 지역에서 인 플레이 상태로 볼을 쳐서 넣는 행위이다.
12.1. 세트의 첫 서비스(FIRST SERVICE IN A SET)
12.1.1. 첫 세트뿐 아니라 최종 세트(5세트)의 첫 서비스는 토스에 의해 결정된 팀에 의해 실행된다.
12.1.2. 다른 세트에서는 앞 세트에서 먼저 서비스를 행하지 않은 팀의 서비스로 시작된다.
12.2. 서비스 순서(SERVICE ORDER)
12.2.1. 선수들은 라인-업 용지에 기재된 서비스 순서에 따라야 한다.
12.2.2. 세트의 첫 서비스 후 서브할 선수는 아래와 같이 결정된다:
12.2.2.1. 서빙 팀이 랠리에서 이기면 앞서 서비스를 했던 그 선수(또는 교대 선수)가 다시 서브한다;
12.2.2.2. 리시빙 팀이 랠리에서 이기면 리시빙 팀은 서브권을 얻게 되고 실제로 서브하기 전에 자리를 바꾸게 된다.
전위 우측 위치에서 후위 라이트로 옮긴 선수가 서브한다.
12.3. 서비스 허가(AUTHORISATION OF THE SERVICE)
주심은 양 팀이 모두 플레이할 준비가 됐는지 확인하고 서버가 볼을 가지고 있는지 확인한 뒤 서비스를 허가한다.
12.4. 서비스 실행(EXECUTION OF THE SERVICE)
12.4.1. 공은 손에서 던지거나 놓은 뒤에 한 손이나 팔의 어떤 부분으로도 쳐야 한다.
오직 손에 장애가 있는 선수에게만 공을 던지거나 놓지 않고도 서비스 히트가 허용된다.
12.4.2. 한 번의 토스만이 허용된다. 손에서 볼을 드리블하거나 움직이는 것은 허용된다.
12.4.3. 서비스를 타구하는 순간, 서버의 둔부가 코트(엔드라인 포함)나 서비스 지역 밖의 바닥에 접촉해서는 안 된다.
서버의 발, 다리 또는 손은 코트나 서비스 밖 프리존을 터치해도 된다.
타구 후, 서버는 서비스 지역 바깥이나 코트 안으로 움직여도 무방하다.
12.4.4. 서버는 주심이 서비스 허가 휘슬을 분 뒤 8초 안에 볼을 타구해야 한다.
12.4.5. 주심의 휘슬 전에 행한 서비스는 취소되고 다시 한다.
12.5. 스크린(SCREENING)
12.5.1. 서빙팀 선수들은 개인 또는 집단 스크린으로 상대 팀이 서비스 히트나 볼의 진행 방향을 보는 것을 방해해서는 안된다.
12.5.2. 서비스를 하는 동안 볼이 네트 수직면을 넘어갈 때까지 서빙 팀의 한 선수나 여러 명의 선수들이 팔을 흔들거나,
옆으로 움직이거나 그룹을 지어 앉아 서버와 볼의 진행 방향을 숨김으로써 스크린이 형성된다.
두 선수 중 한명이라도 리시브팀의 시야에 들어온다면, 이는 스크린이 아니다. 규칙 12.5.3.을 제외
12.5.3. 서비스 팀의 선수는 서비스가 히트할 때까지 서비스 중에 머리 위로 손을 들어 올리는 것이 금지된다.
후위 선수는 팔이나 손을 머리 위로 올릴 수 없다.
주심은 고의로 스크리닝을 하고 있다고 의심되는 경우, 경기 주장을 통해 팀에 주의(조언)를 줄 수 있다.
12.6. 서비스 동안 일어나는 반칙 (FAULTS MADE DURING THE SERVICE)
12.6.1. 서빙 반칙(Serving faults)
아래의 반칙은 상대 팀이 위치 반칙을 했다 하더라도 서비스권을 넘겨주게 된다.
서버가:
12.6.1.1. 서비스 순서를 위반한 경우,
12.6.1.2. 서비스를 적절하게 실행하지 못한 경우,
12.6.1.3. 리프팅 반칙을 범한 경우.
12.6.2. 서비스 타구 후 반칙(Faults after the service hit) 볼이 정확히 타구 된 후,
아래의 경우라면 반칙 (선수가 위치 반칙을 하지 않았다면)이 된다:
12.6.2.1. 볼이 서빙 팀 선수에게 닿거나 통과 허용 공간의 네트 수직면을 완전히 넘지 못한 경우;
12.6.2.2. 볼이 "아웃" 된 경우;
12.6.2.3. 스크린 위를 지나간 경우
12.7. 서비스 반칙과 포지션 반칙(SERVING FAULTS AND POSITIONAL FAULTS)
12.7.1. 서버가 서비스를 치는 순간 반칙을 범하고(부적절한 서비스 실행, 잘못된 로테이션 순서 등)
상대 팀이 위치 반칙을 범했다면, 제재가 주어지는 것은 서비스 반칙이다.
12.7.2. 대신에 서비스를 올바르게 실행했으나 이어서 그 서브가 반칙이 되었다면(볼 '아웃', 스크린 통과 등),
위치 반칙이 먼저 일어났으므로 제재가 주어지는 것은 위치 반칙이 된다.
13. 공격(ATTACK HIT)
13.1. 공격 타구의 특성 (CHARACTERISTICS OF THE ATTACK HIT)
13.1.1. 서비스와 블로킹을 제외한, 상대편 쪽으로 볼을 보내는 모든 행위는 공격 타구로 간주된다.
13.1.2. 공격하는 동안 잡거나 던져지지 않고 볼을 깨끗하게 친 것이라면 티핑 (tipping: 가볍게 툭 치는 것)이 허용된다.
13.1.3. 공격 타구는 볼이 네트 수직면을 완전히 통과하거나 상대 팀에 의해 접촉 되는 순간 완료된다.
13.1.4. 상대 팀 서비스를 공격하는 것은 허용된다.
13.2. 공격타구의 제한(RESTRICTIONS OF THE ATTACK HIT)
13.2.1. 전위 선수는 볼의 접촉이 자기 팀 플레잉 공간 내에서 이루어진 것이라면 어떤 높이에서도 공격을 할 수 있다.
13.2.2. 후위 선수는 전위 지역 뒤 어떤 높이에서도 공격 타구를 완료할 수 있다:
13.2.2.1. 타구 시 후위 선수의 둔부는 어택라인에 닿거나 넘어서는 안된다.
13.2.2.2. 타구 후 후위 선수의 둔부는 전위 지역으로 움직여도 무방하다.
13.2.3. 볼을 접촉하는 순간, 그 볼의 일부분이라도 네트의 상단보다 아래에 있다면,
후위 선수 역시 전위 지역에서 공격 타구를 완료할 수 있다.
13.3. 공격 타구 반칙(FAULTS OF THE ATTACK HIT)
13.3.1. 선수가 상대 팀의 플레이 공간 내에서 볼을 타구하는 경우
13.3.2. 선수가 친 볼이 "아웃" 된 경우
13.3.3. 후위 선수가 네트 상단보다 높은 곳에 위치한 볼을 전위 지역 내에서 공격 타구를 완료한 경우.
13.3.4. 선수가 볼을 치는 순간 리프팅 반칙을 하는 경우
13.3.5. 리베로가 볼을 접촉하는 순간에 네트 상단보다 높은 곳에서 공격 타구를 완료한 경우
13.3.6. 리베로가 전위 지역 내에서 오버 핸드 패스로 올린 볼을 선수가 네트 상단보다 높은 위치에서 공격 타구를 완료한 경우
14. 블로킹(BLOCK)
14.1. 블로킹(BLOCKING)
14.1.1. 블로킹은 네트 가까이에 있는 선수들이 볼 접촉 높이에 관계없이 네트 상단보다 높게 손을 뻗어
상대 팀으로부터 넘어오는 볼을 차단하는 행동이다.
오직 전위 선수들만이 블로킹을 완료할 수 있으며 볼 접촉 순간 신체의 일부가 네트 상단보다 높아야 한다.
14.1.2. 블로킹 시도(Block Attempt)
블로킹 시도는 볼을 접촉하는 것 없이 블로킹하는 동작이다.
14.1.3. 완료된 블로킹(Completed Block)
블로킹은 볼이 블로커에 의해 접촉될 때 완료된다.
14.1.4. 집단 블로킹(Collective Block)
집단 블로킹은 2명 또는 3명의 선수가 서로 가까이 서서 행해지는 것이며, 그들 중 한 명의 블로커가 볼을 접촉할 때 완료된다.
14.2. 블로킹 접촉(BLOCK CONTACT)
연속적인(빠르고 계속적인) 볼 접촉은 그 접촉이 한 동작으로 일어난 것 이라면
한 명 혹은 그 이상의 블로커에 의해 일어날 수도 있다.
14.3. 상대편 공간 내에서의 블로킹 (BLOCKING WITHIN THE OPPONENT’S SPACE)
블로킹에 있어서 선수는 블로킹 동작이 상대편 플레이에 방해가 되지 않는다면 네트를 넘어 손이나 팔이 네트를 넘어갈 수 있다.
따라서 상대 팀이 공격 타구를 실행하기 전까지 네트를 넘어 볼을 접촉하는 것은 허용되지 않는다.
14.4. 블로킹과 팀 타구(BLOCK AND TEAM HITS)
14.4.1. 블로킹 접촉은 팀 타구로 간주하지 않는다. 결과적으로 블로킹 접촉 뒤 팀에게는 볼을 상대편으로 보내기 위한 3번의 타구 기회가 주어진다.
14.4.2. 블로킹 뒤 첫 번째 볼 접촉은 블로킹하는 동안 볼을 접촉했던 선수를 포함하여 어느 선수도 할 수 있다.
14.5. 서비스 블로킹(BLOCKING THE SERVICE)
상대편 서비스를 블로킹하는 것은 허용된다.
14.6. 블로킹 반칙(BLOCKING FAULTS)
14.6.1. 블로커는 공격자 또는 이후 동시에 공을 접촉할 수 있지만 공격하기 전에 접촉해서는 안된다.
14.6.2. 후위 선수나 리베로가 블로킹을 완료하거나 완료된 블로킹에 참가하는 것
14.6.3. 블로킹 참가자 또는 블로킹 완료 시 둔부가 떨어졌을 때 볼 터치가 없는 블로킹은 리프팅 반칙이 아니다.
14.6.4. 블로킹 한 볼이 "아웃" 된 경우
14.6.5. 안테나 밖의 상대편 공간에서 볼을 블로킹하는 것
14.6.6. 리베로가 개인 또는 집단 블로킹을 시도하는 것
제 5 장 – 경기 중단, 인터벌 및 경기 지연
(INTERRUPTIONS, INTERVALS AND DELAYS)
15. 정규적인 경기 중단(REGULAR GAME INTERRUPTIONS)
경기 중단은 한 번의 완료된 랠리와 주심의 다음 서비스를 위한 휘슬 사이의 시간이다.
정규적인 경기 중단은 타임-아웃과 선수교대 뿐이다.
15.1. 정규적인 경기 중단 횟수(NUMBER OF REGULAR INTERRUPTIONS)
각 팀은 세트당 2번의 타임-아웃과 6번의 선수 교대를 요청할 수 있다.
WPV 세계 및 공식 대회에서 WPV는 스폰서, 마케팅 및 방송 계약에 따라 테크니컬 타임-아웃이나 정규 타임 아웃의 횟수를 줄일 수 있다.
15.2. 정규적인 경기 중단의 연속 (SEQUENCE OF REGULAR GAME INTERRUPTIONS)
15.2.1. 한 팀에 의해 한 번 또는 2번의 타임-아웃 요청과 한 번의 선수 교대 요청은 같은 중단 내에서 이뤄질 수 있다.
15.2.2. 하지만 한 팀이 같은 중단 동안 선수 교대를 연속적으로 요청하는 것은 허용되지 않는다.
2명 또는 그 이상의 선수를 같은 요청 내에서 같은 시간에 교대할 수는 있다.
15.2.3. 동일 팀에 의해 두 번의 분리된 선수 교대 요청 사이에는 한 번의 완료된 랠리가 있어야 한다
(예외:부상 또는 퇴장/자격박탈로 인한 강제적 선수 교대 15.5.2, 15.7, 15.8).
15.2.4. 동일 경기 중단 동안 요구가 거절되고 경기 지연의 제재가 주어진 후에는
어떠한 정규적인 경기 중단 요구도 허용되지 않는다.(즉, 다음으로 완료된 랠리가) 끝나기 전
15.3. 정규적인 경기 중단 요청(REQUESTS FOR REGULAR GAME INTERRUPTIONS)
15.3.1. 정규적인 경기 중단은 감독에 의해 요청되며, 감독의 부재 시에는 경기 주장에 의해서만 요청 되어질 수 있다.
15.3.2. 세트 시작 전 선수 교대는 허용되고 그 세트에서 정규적인 선수 교대로서 기록된다.
15.4. 타임-아웃(TIME-OUTS)
15.4.1. 타임아웃
타임아웃 요청은 공이 아웃오브 플레이와 서비스 휘슬 전에 해당 핸드시그널을 보여 주어야 한다. 요청된 모든 타임아웃은 60초 동안 지속된다.
World ParaVolley, World and Official competitions(Zonal 포함)
챔피언십), 부저와 핸드시그널을 사용하는 것은 의무적이다.
타임아웃을 요청한다.
15.4.2. 모든 타임-아웃 동안, 경기 중인 선수들은 자기 팀 벤치 근처 프리존 지역으로 가야 한다.
15.5. 선수교대(SUBSTITUTION)
15.5.1. 선수교대는 리베로 또는 그/그녀와 교대한 선수가 아닌 다른 선수가 기록원이 기록지에 기재한 후,
그 순간 코트를 떠나는 선수의 위치로 들어가서 경기를 하는 행위이다.
15.5.2. 경기 중 선수가 부상을 당했을 때 이뤄지는 선수교대는 감독(또는 경기 주장)이 선수 교대에 상응하는 핸드 시그널을 보여주어야 한다.
15.6. 선수교대의 제한 (LIMITATION OF SUBSTITUTIONS)
15.6.1. 스타팅 라인-업의 선수는 한 세트에 한 번만 경기를 나갈 수 있고, 한 세트에 한 번만 다시 경기에 들어갈 수 있으며,
라인-업에 있는 이전의 위치로만 다시 들어갈 수 있다.
15.6.2. 교대 선수는 세트당 한 번만 스타팅 라인-업의 선수 자리로 경기에 들어갈 수 있다.
그러나 교대 선수는 세트마다 단 한 번만 동일한 스타팅 선수와 다시 교대 되어질 수 있다.
15.6.3. 등급분류 규칙을 어긴 팀의 선수 교대는 불법이다.
15.7. 예외적인 선수교대(EXCEPTIONAL SUBSTITUTION)
부상/질병 또는 퇴장/자격 박탈로 인해 경기를 계속할 수 없는 선수(리베로 제외)는 합법적으로 교대되어야 한다.
만약 이것이 불가능하다면 팀은 규칙 15.6의 제한을 넘어 예외적인 선수 교대가 이뤄진다.
하지만 다음의 예외적인 선수 교대는 팀 라인-업이 7.3.1에 맞아야 한다.
예외적인 선수 교대는 부상/질병과 퇴장/자격 박탈의 순간 코트에 있지 않은 어떤 선수라도(리베로, 제2리베로 또는 그들과 교대한 정규선수는 제외)
부상/질병, 퇴장/자격 박탈을 당한 선수를 대신해서 경기에 들어갈 수 있다.
부상/질병/퇴장된 교대 선수는 경기에 다시 들어갈 수 없다.
예외적인 선수 교대는 정규적인 선수 교대로서 간주되지 않는다. 그러나 경기 기록지에 세트와 경기에서 선수 교대의 총횟수 부분에는 포함되어 기록된다.
15.8. 퇴장 또는 자격 박탈에 의한 선수 교대(SUBSTITUTION FOR EXPULSION OR DISQUALIFICATION)
퇴장 또는 자격 박탈된 선수는 합법적인 선수 교대를 통해 즉시 교대가 이뤄져야 한다.
만약 이것이 불가능하다면 팀은 예외적인 선수 교대를 할 권리가 있다.
만약 이것이 불가능하다면, 그 팀은 불완전 팀으로 선언된다.
15.9. 불법적인 교대(ILLEGAL SUBSTITUTION)
15.9.1. 만약 규칙 7.3.1과 15.6(규칙 15.7의 경우 제외)에 제시된 제한을 넘어 또는 등록되지 않은 선수가 포함되었다면 선수 교대는 불법이다
15.9.2. 팀이 불법적 교대가 이뤄졌고 경기가 재개되었을 때 아래의 절차를 적용해야 한다.
15.9.2.1. 벌칙을 받은 팀은 상대팀에게 1점과 서비스권을 주는 제재가 주어진다.
15.9.2.2. 그 교대는 수정되어야 한다;
15.9.2.3. 반칙이 범해진 이후 얻어진 반칙 팀의 점수는 취소되고 상대 팀 점수는 유효하다.
15.10. 선수 교대 절차(SUBSTITUTION PROCEDURE)
15.10.1. 선수 교대는 선수 교대지역 내 에서 이뤄져야 한다.
15.10.2. 교대는 경기 기록지에 교대를 기록하고 선수의 교대를 허용하는데 필요한 시간을 주어야 한다.
15.10.3a 선수 교대를 위한 실제적인 요청은 교대할 선수가 선수 교대 지역 안으로 입장하는 순간 경기를 할 준비가 되면 시작된다.
만약 선수 교대가 부상 또는 세트 시작 전을 제외하고는 감독이 선수 교대 시그널을 할 필요는 없다.
15.10.3b 선수가 요청하는 순간에 준비가 되어 있지 않다면, 선수 교대는 허용되지 않으며 그 팀은 경기 지연의 제재를 받는다.
15.10.3c 선수 교대 요청은 기록원의 부저 또는 부심의 휘슬로서 각각 인지되고 알려진다. 부심은 선수 교대를 허가한다.
15.10.4. 만약 팀이 한 명 이상의 선수 교대를 동시에 하고자 한다면,
교대하려는 모든 선수들은 동일한 요청으로 여겨 지도록 선수 교대 지역 안으로 동시에 들어서야 한다.
이 경우, 선수 교대는 한 번에 한 조씩 차례차례 연속적으로 이뤄져야 한다.
만약 한 조(또는 그 이상 의 교대)가 불법적이라면, 정당한 교대(들)는 허가되어야 하고 불법적인 교대는 거절되어야 하며 경기 지연의 제재가 주어진다.
15.11. 부당한 요구(IMPROPER REQUESTS)
15.11.1. 아래의 경우와 같이 어떠한 경기 중단을 요구하는 것은 부당한 것이다.
15.11.1. 아래의 경우와 같이 어떠한 경기 중단을 요구하는 것은 부당한 것이다.
15.11.1.1. 랠리 중이거나 서브 휘슬을 부는 순간, 혹은 서비스 휘슬 뒤에 요구한 경우
15.11.1.2. 권한이 없는 팀원이 요구한 경우;
15.11.1.3. 경기 중인 선수의 부상/질병 퇴장/자격상실의 경우를 제외한 같은 경기 중단 동안 동일한 팀의 두 번째 선수 교대 요구
15.11.1.4. 타임-아웃과 선수 교대의 허용 횟수를 다 사용한 뒤에 요구한 경우
15.11.2. 팀에 의한 첫 번째 부당한 요구는 경기에 미치는 영향이나 경기 지연이 없었다면 거절되어진다.
그러나 어떠한 다른 결과 없이 기록지에 기록 되어야 한다.
15.11.3. 경기에서 같은 팀에 의한 이후의 어떠한 부당한 요구도 지연으로 간주된다.
16. 경기 지연(GAME DELAYS)
16.1. 경기 지연의 형태(TYPES OF DELAY)
경기의 재개를 늦추는 팀의 부당한 행위는 지연이며, 다음을 포함한다.
16.1.1. 정규적인 경기 중단을 지연하는 것;
16.1.2. 경기 재개의 지시 후에도 계속 경기 중단을 연장하는 것;
16.1.3. 불법적인 교대를 요구하는 것;
16.1.4. 부당한 요구를 반복하는 것;
16.1.5. 팀원에 의해 경기를 지연하는 것.
16.2. 경기 지연 제재(DELAY SANCTIONS)
16.2.1. "경기 지연 경고" 및 "경기 지연 벌칙"은 팀에 대한 제재이다.
16.2.1.1. 경기 지연 제재는 전 경기 동안 유효하다.
16.2.1.2. 모든 경기 지연 제재는 경기 기록지에 기재된다.
16.2.2. 팀원에 의한 첫 번째 경기 지연은 "경기 지연 경고"로 제재가 주어진다.
16.2.3. 동일 경기에서 같은 팀의 어떠한 팀원에 의한 두 번째 및 이어지는 어떤 형태의 지연이건 반칙으로 간주되며,
이는 "경기 지연 벌칙"의 제재가 주어지고 상대 팀에 1점과 서비스권을 준다.
16.2.4. 세트 전이나 세트 사이에 부과된 지연 제재는 다음 세트에 적용된다.
17. 예외적인 경기중단(EXCEPTIONAL GAME INTERRUPTIONS)
17.1. 부상/질병(INJURY/ILLNESS)
17.1.1. 볼이 인 플레이 상태에서 심각한 사고가 일어났다면 심판은 즉시 경기를 중단하고 코트에 의료진이 들어가도록 허용한다. 그런 다음 그 랠리는 다시 시작된다.
17.1.2. 만약 부상/질병이 있는 선수가 합법적 또는 예외적으로 교대 되어질 수 없다면
그 선수에게 3분간의 회복 시간이 주어진다. 그러나 한 경기에서 동일 선수에게 한 번 이상은 허용되지 않는다.
만약 선수가 회복되지 않는다면 그 팀은 불완전 팀으로 선언된다.
17.2. 외부의 방해(EXTERNAL INTERFERENCE)
경기 도중 어떤 외부의 방해가 있다면 경기는 중단돼야 하고 그 랠리는 다시 시작된다.
17.3. 연장된 경기 중단(PROLONGED INTERRUPTIONS)
17.3.1. 예기치 못한 환경으로 경기가 중단되면 주심, 조직위원 및 통제위원은 (해당되는 위원이 한 명이라도 있다면)
정상적인 상태로 되찾을 수 있는 방법을 결정해야 한다.
17.3.2. 1회 또는 여러 번의 중단이 총 4시간을 초과하지 않으면:
17.3.2.1. 경기가 동일 코트에서 재개된다면 중단된 세트는 동일한 점수와 동일한 선수(퇴장 또는 자격 박탈 제외),
그리고 동일한 위치에서 정상적으로 계속되어야 한다. 이미 진행된 세트의 점수는 유지된다.
17.3.2.2. 경기가 다른 코트에서 재개 된다면 중단된 세트는 취소되고,
동일한 팀 멤버와 스타팅 라인-업으로 다시 경기를 하게 되고(퇴장 또는 자격 박탈 제외),
그리고 모든 제재의 기록은 유지된다. 이미 진행된 세트의 점수는 유지된다.
17.3.3. 1회 또는 여러 번의 중단이 총 4시간의 초과하게 되면, 전 경기는 다시 시작된다.
18. 인터벌(세트 간 휴식) 및 코트의 교대 (INTERVALS AND CHANGE OF COURTS)
18.1. 인터벌(INTERVALS)
휴식 시간은 세트와 세트 사이의 시간이다. 모든 세트 간 휴식은 3분간 지속된다.
이 시간 동안 코트의 교대와 경기 기록지에 팀의 라인-업 기입이 이뤄져야 한다.
2세트와 3세트 사이 휴식은 조직위의 요청에 따라 10분까지 연장될 수 있다.
18.2. 코트 교대(CHANGE OF COURTS)
18.2.1. 매 세트 후 팀은 최종 세트(5세트)를 제외하고 코트를 바꾼다.
18.2.2. 최종 세트에서는 점수를 앞선 팀이 8점에 이르면 팀은 지체없이 코트를 바꾸며 선수의 위치는 그대로 유지한다.
만약 8점에 이르렀는데도 교대가 이뤄지지 않았다면 그 사실을 아는 순간 즉시 코트 교대가 이뤄지게 된다.
코트 교대 시 점수는 동일하게 유지된다.
제 6 장 – 리베로(THE LIBERO PLAYER)
19. 리베로(THE LIBERO PLAYER)
19.1. 리베로의 지명(DESIGNATION OF THE LIBERO)
19.1.1. 각 팀은 최대 2명의 수비전문선수 (리베로)를 선수명단에 지명할 권리를 가진다.
19.1.2. 모든 리베로는 경기 전 경기 기록지 리베로를 위해 준비된 특별 란에 반드시 기록해야 한다.
19.1.3. 코트에 있는 리베로가 정규 리베로이고, 만약 다른 리베로가 있다면 그/그녀는 팀의 제2 리베로이다.
단, 한 명의 리베로만이 언제든지 코트에 있을 수 있다.
19.2. 복장(EQUIPMENT)
리베로는 팀의 다른 선수들의 유니폼 색상과 확연하게 다른 색상의 유니폼 (또는 재지명된 리베로를 위한 상의 자켓/번호판)을 입어야 한다.
리베로 유니폼은 팀의 다른 선수들과 명확하게 대조되어야 한다. 두 리베로 선수는 팀원들과 각각 다른 유니폼을 입을 수 있다.
리베로 유니폼은 팀의 다른 선수들과 마찬가지로 번호가 있어야 한다.
WPV 및 공식대회(Zonal 챔피언쉽 포함) 에서 리베로 재지명시 가능하다면
원래 리베로의 상의와 동일한 스타일과 색상을 입어야 하나 자신의 번호는 유지된다.
19.3. 리베로의 동작(ACTIONS INVOLVING THE LIBERO)
19.3.1. 리베로의 플레잉 동작(The playing actions)
19.3.1.1. 리베로는 후위 위치에 있는 어떤 선수와도 교대하는 것이 허용된다.
19.3.1.2. 리베로는 후위 선수로서 경기를 하는 것에 제한을 받으며,
볼 접촉의 순간 볼이 네트 상단보다 위에 있는 경우 (경기 코트 및 프리존을 포함하여) 어느 곳에서든 공격을 완료시킬 수 없다.
19.3.1.3. 리베로는 서브, 블로킹 또는 블로킹 시도를 할 수 없다.
19.3.1.4. 볼이 전위 지역에서 리베로에 의해 손가락을 이용한 오버핸드 패스로 올려진 볼을
선수가 네트 상단보다 높은 곳에서 공격 타구를 완료할 수 없다.
전위 지역 밖에서 같은 동작으로 리베로에 의해 올려진 볼은 자유롭게 공격할 수 있다.
19.3.2. 리베로 교대(Libero Replacements)
19.3.2.1. 리베로 교대는 선수 교대로 계산되지 않는다.
리베로 교대는 제한이 없으나 리베로 포함 두 명의 교대 사이에는 한 번의 완료된 랠리가 있어야 한다
(벌칙에 의한 위치 4로의 로테이션 이동 또는 정규 리베로가 경기를 할 수 없게 되어 랠리가 완료되지 않는 경우가 아니라면).
19.3.2.2. 정규 교대 선수는 리베로 중 누구와도 교대될 수 있다.
정규 리베로는 정규 교대 선수의 그 위치로의 교대 또는 제2 리베로에 의해서만 교대를 할 수 있다.
19.3.2.3. 각 세트 시작에 리베로는 부심이 라인-업을 확인할 때까지 코트에 들어갈 수 없고 스타팅 선수와의 리베로 교대를 허가받아야 한다.
19.3.2.4. 다른 리베로 교대는 볼이 아웃 오브 플레이 동안, 그리고 서비스 휘슬 전에 이루어져야 한다.
19.3.2.5. 리베로 교대는 서브를 위한 휘슬 후, 서브 히트 전에 이뤄졌다면 거절되지는 않는다.
하지만 랠리가 끝난 후 경기 주장을 불러 이러한 절차는 허용되지 않으며 반복될 경우 경기 지연 제재의 대상이 된다는 것을 알려주어야 한다.
19.3.2.6. 연속적인 늦은 교대로 방해가 된 플레이는 즉시 중단하고 지연 제재가 부과된다.
다음 서브할 팀은 경기 지연 제재의 수준에 의해 결정된다.
19.3.2.7. 리베로와 리베로 교대 선수는 "리베로 교대지역"을 통해서만 코트를 나가고 들어갈 수 있다.
19.3.2.8. 리베로 교대는 리베로 기록지 (만약 이 기록지만 사용된다면) 또는 전자기록지에 기록되어야 한다.
19.3.2.9. 불법적인 리베로 교대는 아래의 사항을 포함한다.
- 리베로 교대 사이에 완료된 랠리가 없는 경우
- 리베로가 정규 교대 선수 또는 제2 리베로가 아닌 다른 선수와 교대된 경우
불법적인 리베로 교대는 불법적인 선수 교대와 같은 방식으로 처리되어야 한다.
다음 랠리 시작 전에 불법적인 리베로 교대를 발견했다면, 이 불법적인 교대는 심판들에 의해 정정되고, 그 팀은 경기 지연 제재를 받는다:
서브 히트 후에 불법적인 리베로 교대가 발견되었다면 그 결과는 불법적인 선수 교대와 같다.
19.4. 새 리베로의 재지명 (RE-DESIGNATION OF A NEW LIBERO)
19.4.1. 리베로가 부상을 당하거나 질병, 퇴장, 자격 박탈로 경기를 할 수 없게 되면
감독, 또는 감독의 부재 시 경기 주장에 의해 어떠한 이유에서든 그 경기를 할 수 없다고 선언할 수 있다.
19.4.2. 1명의 리베로를 가진 팀(Team with one Libero)
19.4.2.1. 규칙 19.4.1에 따라 팀이 한 명의 리베로만 사용하거나 한 명만 리베로로 등록했을 때
이 리베로가 경기를 할 수 없다고 선언되거나 경기를 할 수 없게 되면,
감독(또는 감독이 없을 경우 경기 주장)은 재지명 하는 순간 코트에 있지 않은 다른 어떤 선수
(리베로와 교대된 선수는 제외)를 남은 경기를 위해 리베로로서 재지명할 수 있다.
19.4.2.2. 만약 정규 리베로가 경기를 할 수 없게 된다면, 정규 교대 선수와 교대 되거나
즉시 재지명된 리베로가 코트로 들어가도 된다. 그러나 정규 리베로는 남은 경기 동안은 경기를 할 수 없다.
만약 리베로가 경기를 할 수 없다고 선언되었을 때 코트에 없었다면, 이것 역시 재지명의 대상이 된다.
경기가 불가능하다고 선언된 리베로는 남은 경기 동안 경기를 할 수 없다.
19.4.2.3. 감독 또는 만약 감독이 부재 중 이라면 경기 주장이 부심과 접촉하여 재지명 된 리베로를 알려주어야 한다.
19.4.2.4. 재지명된 리베로가 경기를 할 수 없다고 선언되면 추가 재지명이 허용된다.
19.4.2.5. 만약 감독이 팀 주장을 새로운 리베로로 재지명하게 되면 이것은 허용된다.
19.4.2.6. 재지명된 리베로의 경우, 리베로로 재지명된 선수의 번호는 반드시 경기
기록지의 비고란 부분과 리베로 기록용지에 기록되어야 한다(또는 전자 기록지만 사용할 경우 전자 기록지).
19.4.3. 2명의 리베로를 가진 팀 (Team with two Liberos)
19.4.3.1. 팀이 두 명의 리베로가 등록되어 있으나 한 명이 경기를 할 수 없다면 팀은 단 한 명의 리베로로 경기를 할 권리를 가진다. 그러나 만약 남아 있는 리베로가 경기를 계속할 수 없는 것이 아니라면 재지명은 허용되지 않는다.
19.5. 요약 (SUMMARY)
19.5.1. 만약 리베로가 퇴장 또는 자격박탈이 되었다면 그/그녀는 팀의 제2 리베로와 즉시 교대될 수 있다. 팀이 단 한 명의 리베로만 있다면, 그 팀은 리베로 재지명을 할 권한을 가진다.
제 7장 – 참가자의 행동(PARTICIPANTS’ CONDUCT)
20. 행동의 요건 (REQUIREMENTS OF CONDUCT)
20.1. 스포츠맨적인 행동 (SPORTSMANLIKE CONDUCT)'
20.1.1. 경기 참가자는 "공식 좌식배구 규칙"을 잘 알고 따라야 한다.
20.1.2. 경기 참가자는 항의 없이 스포츠맨적인 행위로 심판의 결정을 받아 들여야 한다. 납득할 수 없을 경우, 경기 주장을 통해서만 설명을 요구할 수 있다.
20.1.3. 경기 참가자는 심판의 결정에 영향을 끼칠 의도나 자기 팀이 범한 반칙을 은폐하기 위한 의도의 행동이나 태도를 보여서는 안된다.
20.2. 페어 플레이 (FAIR PLAY)
20.2.1. 경기 참가자는 심판 뿐 아니라 다른 임원, 상대팀, 동료 및 관중들에게 페어 플레이 정신에 입각하여 공손하고 예의 있는 행동을 해야 한다.
20.2.2. 경기 중 팀원과의 대화는 허용된다.
21. 불법행위와 그 제재 (MISCONDUCT AND ITS SANCTIONS)
21.1. 가벼운 불법 행위 (MINOR MISCONDUCT)
가벼운 불법행위는 제재의 대상이 아니다. 팀이 제재 수준에 이르지 않게 하는 것이 주심의 의무이다.
가벼운 불법행위는 두 단계가 있다:
1단계 : 경기 주장을 통해 구두경고를 전달함
2단계 : 관련된 팀 멤버(들)에게 옐로카드를 제시함
이 공식적 경고는 제재수준은 아니지만 팀 멤버(그리고 팀의 연장으로서)가 경기를 하는동안 제재 수준에 도달했다는 의미를 가진다. 이것은 기록지에 기록되며 즉각적인 결과는 없다.
21.2. 제재에 이르는 불법 행위 (MISCONDUCT LEADING TO SANCTIONS)
임원진, 상대팀, 팀원 또는 관중을 향한 팀 멤버의 바르지 못한 행동은 그 위반의 심각성 정도에 따라 3가지 범주로 분류된다.
21.2.1. 무례한 행위: 예의나 도덕성에 어긋나는 행동
21.2.2. 공격적인 행위: 명예를 손상하거나 모욕적인 말 또는 동작 또는 모욕적인 표 현을 하는 모든 행동.
21.2.3. 폭력: 실질적인 신체 공격 혹은 공격적이거나 위협적인 행위
21.3. 제재의 범위 (SANCTION SCALE)
주심의 판단 및 위반의 심각성 정도에 따라 제재의 범위가 적용되며 경기기록지에 기록된다: 벌칙, 퇴장 혹은 자격박탈
21.3.1. 벌칙 (Penalty)
경기에서 팀 멤버 누구라도 첫번째 일어난 무례한 행위는 상대팀에게 1 점과 서비스를 주는 벌칙이 주어진다.
21.3.2. 퇴장 (Expulsion)
21.3.2.1. 퇴장 제재를 받은 팀 멤버가 코트에 있다면 즉시 정규적 / 예외적인 교대를 하고 다른 결과없이 그 세트가 끝날때까지 탈의실로 가야한다.퇴장 당한 감독은 그 세트에서 경기에 개입 할 권리가 없으며 진행중인 세트가 끝날때까지 탈의실로 가야 한다.
21.3.2.2. 팀 멤버에 의해 일어난 첫번째 공격적인 행위는 다른 결과 없이 퇴장의 제재가 주어진다.
21.3.2.3. 동일 경기에서 동일 팀 멤버에 의한 두 번째 무례한 행위는 다른 결과 없이 퇴장의 제재가 주어진다.
21.3.3. 자격 박탈 (Disqualification)
21.3.3.1. 자격상실의 제재를 받은 팀 멤버가 코트 안에 있다면 합법적으로/예외적으 로 그리고 즉시 교대 되어야 하고, 다른 결과 없이 남은 경기동안 경기장 통제구역을 떠나 팀의 탈의실로 가야 한다.
21.3.3.2. 첫번째 신체공격 혹은 암시적이거나 위협적인 폭력행동은 다른 어떤 결과 없이 자격박탈의 제재가 주어진다.
21.3.3.3. 같은 경기에서 동일 팀원에 의한 두번째 공격적인 행위는 어떤 다른 결과 없이 자격 박탈의 제재가 주어진다.
21.4. 불법행위 제재의 적용 (APPLICATION OF MISCONDUCT SANCTIONS)
21.4.1. 모든 불법행위에 대한 제재는 개인에게 주어지는 제재이며, 전 경기 동안 유효하고 경기 기록지에 기재된다.
21.4.2. 같은 경기에서 동일 팀원에 의한 불법행위의 반복은 점진적으로 제재가 누적된다 (팀원은 각각 연속적인 위반에 대해 점점 무거운 제재를 받게 된다).
21.4.3. 공격적인 행위나 폭력적인 행위 때문에 받은 퇴장 및 자격박탈은 이전의 제재와는 상관없이 줄 수 있다.
21.5. 세트 전, 세트 간 일어나는 불법행위 (MISCONDUCT BEFORE AND BETWEEN SETS)
세트 시작 전이나 세트 간 일어나는 불법행위는 규칙 21.3에 따라 제재가 적용 되며, 이 제재는 다음 세트에 적용시킨다.
21.6. 카드 사용 요약(SANCTION CARDS)
경고: 제재 없음 - 1단계: 구두 경고- 2단계: 옐로카드 제시
벌칙: 제재 - 레드카드 제시
퇴장: 제재 - 레드카드, 옐로카드 동시에 제시
자격상실: 제재 - 레드카드, 옐로카드 분리해서 제시
2부 심판, 심판의 의무와 공식 핸드시그널(THE REFEREES,THEIR RESPONSIBILITIES AND OFFICIAL HAND SIGNALS)
제 8 장 – 심판
22. 심판진과 절차(REFEREEING CORPS AND PROCEDURES)
22.1. 구성(COMPOSITION)
한 경기를 진행하기 위한 심판진은 다음의 임원으로 구성된다:
- 주심
- 부심
- 기록원
- 4(2)명의 선심
그들의 위치는 도해 10에 나타나 있다.
Zonal 챔피언쉽 뿐 아니라 WPV 및 공식대회에서, 보조 기록원은 필수적이다.
22.2. 절차(PROCEDURES)
22.2.1. 오직 주심과 부심만이 경기 중에 휘슬을 불 수 있다.
22.2.1.1. 주심은 랠리의 시작 서비스를 위한 허가 휘슬을 분다.
22.2.1.2. 주심과 부심은 반칙이 일어나고 그 반칙의 종류에 대해 확실하다면 랠리 종료를 알리는 휘슬을 분다.
22.2.2. 주심과 부심은 팀의 요청을 허가 또는 거부하는 것을 나타내기 위해 볼이 '아웃 오브 플레이' 상태일 때 휘슬을 불 수 있다.
22.2.3. 랠리 완료를 알리는 휘슬 뒤 심판은 즉시 공식 핸드 시그널로 나타내어야 한다.
22.2.3.1. 반칙이 주심에 의해 불어진 것이라면 주심은 아래의 순서에 따라:
a) 서브할 팀
b) 반칙의 종류
c) 반칙을 범한 선수(필요한 경우)를 가리켜야 한다.
22.2.3.2. 반칙이 부심에 의해 불어진 것이라면 부심은:
a) 반칙의 종류
b) 반칙을 범한 선수(필요한 경우)
c) 주심의 시그널을 따라 서브할 팀을 가리켜야 한다.
이 경우, 주심은 반칙의 종류 및 반칙을 범한 선수를 지적할 필요 없이 서브할 팀만 가리킨다.
22.2.3.3. 후위 혹은 리베로 선수에 의한 공격 반칙의 경우, 두 심판은 위 22.2.3.1과 22.2.3.2에 따라 가리킨다.
22.2.3.4. 더블 폴트가 일어난 경우 두 심판은 아래의 순서에 따라:
a) 반칙의 종류
b) 반칙을 범한 선수(필요한 경우)
c) 주심에 의해 서브할 팀을 가리켜야 한다.
23. 주심(FIRST REFEREE)
23.1. 위치(LOCATION)
주심은 기록석의 반대편 네트 한쪽 끝에 설치된 포스트 뒤에 서서 심판의 역할을 수행한다.
23.2. 권한(AUTHORITY)
23.2.1. 주심은 경기 시작부터 끝까지 관장한다. 주심은 심판진 및 팀 멤버 모두 통제할 권한이 있다.
경기 동안 주심의 결정은 최종적이다. 주심은 만약 다른 심판진이 오판을 범했다고 여겨진다면 그 결정을 번복할 수 있는 권한이 있다.
또한 주심은 역할을 제대로 수행하지 못하는 심판진을 교체할 수도 있다.
23.2.2. 주심은 또한 볼 리트리버, 바닥 닦이 및 마퍼의 일을 통제한다.
23.2.3. 주심은 규칙에 명시되어 있지 않은 것을 포함하여 경기에 관계된 어떤 문제도 결정할 권한을 가지고 있다.
23.2.4. 주심은 자신의 결정에 대한 어떠한 논의도 허용해서는 안 된다.
하지만 경기 주장의 요구에 따라 주심은 결정의 근거가 된 규칙의 적용 및 해석에 대한 설명을 해 주어야 한다.
만약 경기 주장이 주심의 설명에 동의하지 않고 그 결정에 반대하여 항의한다면,
그 즉시 이 항의를 제기하여 그 경기의 결과에 그 항의 내용을 기록할 수 있는 권리를 주어야 한다.
주심은 경기 주장의 이러한 권리를 허용해야 한다.
23.2.5. 주심은 경기장의 장비와 조건이 경기 요구사항과 일치하는지에 대해 경기 전 과 경기 동안 결정할 책임이 있다.
23.3. 임무(RESPONSIBILITIES)
23.3.1. 경기 전 주심은:
23.3.1.1. 경기장 및 볼과 다른 장비의 상태를 점검하고;
23.3.1.2. 팀 주장의 참석 하에 토스를 실시하며;
23.3.1.3. 팀의 공식 연습을 통제한다.
23.3.2. 경기 동안 주심은 다음의 사항을 허가한다:
23.3.2.1. 팀에 대한 경고를 주는 것;
23.3.2.2. 불법행위 및 지연에 대한 제재를 주는 것;
23.3.2.3. 다음의 것을 판정한다:
a) 서버의 반칙 및 스크린 반칙을 포함한 서빙팀의 위치 반칙;
b) 리프팅 반칙을 포함한 볼 플레이 중의 반칙;
c) 네트 위에서의 반칙, 주로 공격측에서의 선수 네트 접촉 반칙;
d) 리베로와 후위 선수의 공격 타구 반칙;
e) 전위지역 내에서 리베로가 손가락을 이용하여 오버핸드 패스한 볼을 네트 상단 위에서 선수가 공격을 완료했을 때;
f) 네트 아래 공간을 완전하게 통과하는 볼;
g) 후위 선수에 의해 완료된 블로킹 또는 리베로의 블로킹 시도
h) 볼이 상대편 코트로 허용 공간 밖을 완전히 또는 부분적으로 넘어가거나 주심 쪽 플레잉 코트에 있는 안테나를 접촉했을 때
i) 서브 된 볼과 3번째 타구 된 볼이 주심 측 안테나를 넘어가거나 밖으로 넘어 갔을 때
23.3.3. 경기가 끝나면 그/그녀는 기록지를 확인하고 서명을 한다.
24. 부심(SECOND REFEREE)
24.1. 위치(LOCATION)
부심은 주심을 마주보며 반대쪽 포스트와 가까운 코트 밖에 위치하여 역할을 수행한다.
24.2. 권한(AUTHORITY)
24.2.1. 부심은 주심을 도와주는 역할을 하지만 자신의 결정권도 있다. 주심이 자신의 역할을 계속 진행할 수 없게 되면 부심은 주심의 역할을 대체할 수 있다.
24.2.2. 부심은 휘슬을 불지 않고 자신의 결정권 외의 반칙을 표시할 수는 있으나 주심에게 이것을 강요할 수는 없다.
24.2.3. 부심은 기록원의 업무를 통제한다.
24.2.4. 부심은 벤치에 있는 팀원을 관리하고 그들의 불법행위를 주심에게 알려준다.
24.2.5. 부심은 웜-업 지역에 있는 선수들을 통제한다.
24.2.6. 부심은 경기 중단을 허가하고 그 시간을 통제하며 부당한 요구를 거절한다.
24.2.7. 부심은 각 팀이 사용한 타임-아웃 및 선수 교대 횟수를 통제하고,
2번째 타임-아웃과 5, 6번째 선수 교대에 대해 주심과 감독에게 알려준다.
24.2.8. 선수가 부상을 당한 경우, 부심은 예외적인 선수 교대를 허가하거나 3분간의 회복 시간을 부여한다.
24.2.9. 부심은 주로 전위 지역의 바닥 상태를 점검한다. 또한 경기 동안 볼이 규정에 충족되는지를 점검한다.
Zonal 챔피언쉽 뿐 아니라 WPV 및 공식대회에서는 24.2.5에 적혀 있는 의무는 대기 심판이 수행한다.
24.3. 임무(RESPONSIBILITIES)
24.3.1. 매 세트 시작, 최종 세트에서의 코트 교대, 그리고 필요할 때마다 부심은 코트에 있는
선수들의 실제 위치와 라인-업 용지에 있는 선수들의 위치가 일치하는지 확인한다.
24.3.2. 경기 동안 부심이 결정하고 휘슬과 시그널한다:
24.3.2.1. 상대편 코트와 네트 아래 공간 침범;
24.3.2.2. 리시빙 팀의 위치 반칙;
24.3.2.3. 코트의 부심 쪽 안테나와 주로 블로커 쪽 네트에서 일어나는 선수의 접촉 반칙;
24.3.2.4. 후위 선수에 의해 완료된 블로킹이나 리베로에 의한 블로킹 시도 혹은 후위 선수나 리베로에 의한 공격 타구 반칙;
24.3.2.5. 볼의 외부 물체 접촉;
24.3.2.6. 주심이 접촉을 볼 수 있는 위치가 아닐 때 볼의 바닥 접촉;
24.3.2.7. 상대 코트로 허용 공간 바깥으로 볼이 완전히 혹은 부분적으로 통과하거나 코트의 부심 쪽 안테나 접촉;
24.3.2.8. 리프팅 반칙, 특히 블로커에 의한.
24.3.2.9. 서브 된 볼과 세 번째 볼이 부심 쪽 안테나를 넘어가거나 안테나 밖으로 나갈 때.
24.3.3. 경기가 끝난 후 부심은 기록지를 확인하고 서명한다.
25. 기록원(SCORER)
25.1. 위치(LOCATION)
기록원은 주심과 마주하여 코트의 반대쪽에 마련된 기록석에 앉아 역할을 수행한다.
25.2. 임무(RESPONSIBILITIES)
기록원은 부심과 상호 협조하면서 규칙에 따라 경기 기록지를 기입한다.
기록원은 부저 혹은 다른 음향 장치를 이용하여 자신의 임무를 기초로 심판에게 부정 행위를 알리거나 시그널을 보낸다.
25.2.1. 경기 및 세트 전 기록원은:
25.2.1.1. 절차에 따라 경기 및 리베로의 이름과 번호를 포함하는 팀의 자료를 등록하고 주장과 감독의 서명을 받는다.
25.2.1.2. 라인-업 용지에 적혀진 각 팀의 스타팅 라인-업을 기록한다(또는 전자적 으로 제출된 데이터를 체크한다).
만약 제 시간에 라인-업 용지를 받지 못하면 기록원은 즉시 이 사실을 부심에게 알린다.
25.2.2. 경기 동안 기록원은:
25.2.2.1. 획득한 점수를 기록한다;
25.2.2.2. 각 팀의 서비스 순서를 관리하고 틀렸을 때에는 서비스를 타구를 한 후 즉시 알린다;
25.2.2.3. 기록원은 부저를 사용하여 심판에게 선수 교대 요구를 인지 및 고지 할 권한이 있으며, 교대 횟수를 통제한다.
또한 선수 교대 및 타임-아웃을 기록하고 부심에게 알려준다;
25.2.2.4. 규정 외의 경기 중단 요구에 대해 심판에게 알린다;
25.2.2.5. 세트의 종료와 최종 세트에서 8점에 이르렀을 때 심판에게 알려준다;
25.2.2.6. 불법행위 경고, 제재 그리고 부당한 요구를 기록한다;
25.2.2.7. 부심에 의해 지시되는 모든 사항을 기록한다. 예로, 예외적인 선수 교대, 부상 회복 시간, 연장된 경기 중단, 외적인 방해, 리베로 재지명 등;
25.2.2.8. 세트 간 휴식 시간을 통제한다.
25.2.3. 경기 종료 후 기록원은:
25.2.3.1. 최종 결과를 기록한다.
25.2.3.2. 주심의 이전 허가와 함께 항의가 있을 경우, 직접 쓰거나 주장에게 항의 사항을 경기 기록지에 적도록 허락한다.
25.2.3.3. 양 팀 주장과 심판들이 서명하기 전에 기록원이 기록지에 서명을 한다.
26. 보조 기록원(ASSISTANT SCORER)
26.1. 위치(LOCATION)
보조 기록원은 기록석의 기록원 옆에 앉아 역할을 수행한다.
26.2. 의무(RESPONSIBILITIES)
보조 기록원은 리베로를 포함하여 그 교대를 기록한다.
기록원의 업무인 행정 업무를 도와준다.
기록원이 자신의 역할을 계속할 수 없다면 보조 기록원이 기록원과 교대한다.
26.2.1. 경기 및 세트에 앞서 보조 기록원은:
26.2.1.1. 리베로 기록지를 준비한다;
26.2.1.2. 예비 경기 기록지를 준비한다.
26.2.2. 경기 중 보조 기록원은:
26.2.2.1. 리베로 교대/리베로 재지명의 세부 사항을 기록한다;
26.2.2.2. 리베로 교대에서 일어나는 모든 반칙을 부저를 사용하여 심판에게 알린다;
26.2.2.3. 기록석에서 수동식 점수판을 운영한다;
26.2.2.4. 점수판이 일치하는지 확인하고 정확한 점수를 표시한다;
26.2.2.5. 필요하다면 예비 경기 기록지를 새로 작성하여 기록원에게 전달한다;
26.2.3. 경기 종료 후, 보조 기록원은:
26.2.3.1. 리베로 기록지에 서명을 하고 그것의 확인을 위해 제출한다;
26.2.3.2. 경기 기록지에 서명한다.
전자 기록지를 사용하는Zonal 챔피언쉽 뿐 아니라 WPV 및 공식대회의 경우,
보조 기록원은 기록원과 함께 교대 선수를 알리고 부심을 경기 중단을 요청한 팀에 안내하는 역할을 하며 리베로 교대를 확인한다.
27. 선심(LINE JUDGES)
27.1. 위치(LOCATION)
선심이 2명만 있는 경우라면 각 심판의 오른쪽으로 가까운 코트의 모서리에 서며, 모서리에서 대각선으로 1~2m 떨어진 거리에 선다.
각 선심은 자신의 코트 쪽 엔드 라인과 사이드 라인을 관리한다.
Zonal 챔피언쉽 뿐 아니라 WPV 및 공식대회에서, 4명의 선심이 필수적이다.
선심은 코트의 각 모서리 1~2m 거리의 프리존에 서며, 자신이 관리하는 선의 가상 연장 선상에 선다.
27.2. 임무(RESPONSIBILITIES)
27.2.1. 선심은 도해 12에서 나타난 대로 시그널을 하기 위해 깃발(40×40cm)을 이용하여 자신의 역할을 수행한다:
27.2.1.1. 볼이 자신의 담당라인 근처에 떨어질 때마다 "인"과 "아웃"을 시그널한다;
27.2.1.2. 볼을 리시브하는 팀에 의한 "아웃" 볼의 접촉을 시그널한다;
27.2.1.3. 볼이 안테나를 건드리거나 서브 된 공 그리고, 3번째로 타구 된 볼이 통과공간 바깥으로 네트를 통과하는 것 등을 시그널한다;
27.2.1.4. 서브를 치는 순간 어떤 경기자라도(서버는 제외) 서버의 둔부가 약간이라도 코트 밖에 있을 때 시그널 한다;
27.2.1.5. 서버의 둔부 반칙를 시그널 한다;
27.2.1.6. 볼을 플레이하는 또는 플레이를 방해하는 선수의 행위 동안 어떤 선수에 의해 자기가 맡고 있는 코트 안테나 상단 80cm에 접촉했을 때;
27.2.1.7. 볼이 상대 코트로 허용 공간 외측으로 네트를 넘어가거나 자신이 담당 하고 있는 코트에 있는 안테나를 접촉한 경우.
27.2.2. 주심의 요청이 있을 때, 선심은 시그널을 반복해야 한다.
28. 공식 시그널(OFFICIAL SIGNALS)
28.1. 심판의 핸드 시그널(REFEREES’ HAND SIGNALS)
심판은 공식 핸드 시그널로 휘슬을 분 이유를 표시해야 한다(반칙의 종류 또는 허가된 경기 중단의 목적).
시그널은 잠시 동안 유지되어야 하며, 한 손으로 표시할 경우에는 반칙이나 요구가 있었던 팀 쪽과 일치하는 손을 사용해야 한다.
28.2. 선심의 기(旗) 시그널(LINE JUDGES’ FLAG SIGNALS)
선심은 불려진 반칙의 종류를 공식적인 깃발 시그널과 함께 표시해야 하며 잠시 동안 시그널을 유지한다.
3부 용어정의 (DEFINITIONS) <부록> 용어정의(DEFINITION)
지역(Areas)
이는 규칙에 명시된 특정 기능을 가진 프리존 밖 바닥의 구역으로 웜-업 지역을 포함 한다.
These are sections of the floor outside the free zone, identified by the rules as having a specific function. These include Warm-up Area and Penalty Area.
볼 리트리버(Ball Retrievers)
랠리 간 서버에게 볼을 굴려 주어 경기의 흐름을 이어가도록 역할을 수행하는 요원을 말한다.
These are personnel whose job it is to maintain the flow of the game by rolling the ball to the server between rallies.
마퍼(Moppers)
마퍼는 바닥을 깨끗하고 미끄럽지 않도록 역할을 담당하는 요원을 말한다. 그들은 경 기 전, 세트 간, 타임-아웃, 테크니컬 타임-아웃, 그리고 필요 시 각 랠리 후 코트를 닦는다.
Moppers: are personnel whose job it is to keep the floor clean and dry. They mop the court before the match, between sets, at T-Os and TTOs and, if necessary, after each rally.
대회통제구역(Competition Control Area)
바깥 경계나 제한 펜스까지의 모든 공간으로 경기 코트 및 프리존 주위의 지대를 말한 다 (도해 1a 참조).
The Competition Control Area is a corridor around the playing court and free zone, which includes all spaces up to the outer barriers or delimitation fence(see Diagram 1a).
통과 공간(Crossing Space)
통과(허용)공간은 다음과 같이 한정한다. · 네트 상단 수평밴드
· 안테나와 그 연장선
· 천장. 볼은 통과 허용 공간을 통해 상대 코트로 넘어가야 한다. The crossing space is defined by:
• the horizontal band at the top of the net;
• the antennae and their extension;
• the ceiling. The ball must cross to the opponent’s court through the crossing
space.
드리블링(Dribbling)
드리블링은 볼을 바운드하는 것을 의미하며 (보통 토스와 서브를 준비할 때 하는 동작 을 말함), 다른 준비동작으로 볼을 손에서 손으로 움직이는 것을 포함할 수 있다. Dribbling means bouncing the ball (usually as a preparation to tossing and serving). Other preparatory actions could include (amongst others) moving the
67WPV Sitting Volleyball Rules (2022~2024)regular replacement player) not on the court at the moment of the re-designation.
교대(Replacement)
이는 정규선수가 코트를 떠나고 리베로 중 한 리베로가(리베로가 1명 이상일 때)그 자 리로 들어가는 것이며, 리베로와의 교대도 포함할 수 있다. 그런 다음 교대된 정규선 수는 리베로 중 한 명과 교대할 수 있으며 이 교대는 어떤 리베로를 포함하든 교대 간 완료된 랠리가 있어야 한다.
This is the act by which a regular player leaves the court and either Libero(if more than one) takes his/her place. This can even include Libero for Libero exchanges. The regular player can then replace either Libero. There must be a completed rally between replacements involving any Libero.
선수교대(Substitution)
한 명의 정규적인 선수가 코트를 나가고 다른 정규선수가 그의 자리로 들어가는 행위 이다.
This is the act by which one regular player leaves the court and another regular player takes his/her place. ‘
선수교대지역(Substitution Zone)
이는 선수 교대가 이뤄지는 프리존 부분을 말한다.
This is the part of the free zone through which substitutions are carried out. WPV 협약 외(예외조항) (Unless by agreement of World ParaVolley)
이는 기준에 대한 규정과 특정 장비 및 시설이 있을 경우 배구경기의 증진을 도모하고 새로운 조건을 시험하기 위해 WPV에 의해 이뤄질 수 있는 특별 협약의 경우를 말한다. This statement recognises that while there are regulations on the standards and specification of equipment and facilities, there are occasions when special arrangements can be made by World ParaVolley in order to promote the game of volleyball or to test new conditions.
WPV 기준(World ParaVolley Standards)
장비 제조업체에 주어지는 WPV에 의해 정의되는 기술 지침서 또는 제한.
The technical specifications or limits as defined by World ParaVolley to the manufacturers of equipment.
지역(Zones)
이는 규칙서 내 특정 목적(또는 특정 제한)을 위해 정의되는 경기 지역 내의 구역을 말한다. (예:경기 코트와 프리존). 이는 프론트 존, 서비스존, 선수교대존, 프리존, 백(후위)존과 리베로 교대존을 포함한다.
These are sections within the playing area (i.e. playing court and free zone) as defined for a specific purpose (or with special restrictions) within the rule text. These include Front Zone, Service Zone, Substitution Zone, Free Zone, Back Zone, and Libero Replacement Zone.
제정 2015. 11. 28.
제정 2022. 01. 17.
제1조(설치근거 및 명칭) 대한장애인배구협회(이하 “장애인배구협회”라 한다) 정관 제36조에 따라 설치 운영하며, 그 명칭은 대한장애인배구협회 전문위원회(이하“위원회”라 한다)라 한다. <신설‘22.01.17> 제2조(목적) 대한장애인배구협회 정관 제4조(사업)에 관한 사항을 심의, 의결, 자문함을 목적으로 한다. <전부개정‘22.01.17.> 제3조(기능) 위원회는 다음 각호의 사항을 심의 의결한다. <신설‘22.01.17.> 1. 배구의 기술 연구 및 보급에 관한 사항 2. 경기지도자의 양성 및 자질 향상에 관한 사항 3. 선수 발굴 육성에 관한 사항 4. 전국규모 및 국제대회의 개최 및 진행에 관한 사항 5. 국제대회 참가에 관한 사항 6. 국가대표선수선발 및 대표선수 강화훈련에 관한 사항 7. 국가대표 지도자 선임 및 평가에 관한 사항 8. 각종 국제대회 분석 및 평가에 관한 사항 9. 우수선수ㆍ신인선수 등의 훈련에 관한 사항 10. 각종 전국대회, 전국체전 분석 및 평가에 관한 사항 11. 기타 전문체육에 발전에 필요한 사항 12. 공인용품 지정 및 관리에 관한 사항 13. 반도핑 업무에 관한 사항 14. 등급분류에 관한 사항 15. 기타 장애인배구 발전에 필요한 전반적인 사항 16. 위 각호와 관련된 사항에 대한 건의 제4조(구성) ① 위원회는 다음의 위원으로 구성한다. 1. 위원장 1인 2. 부위원장 1인 3. 위원 7인 이내(위원장, 부위원장 포함) 4. 위원회 내 장애인 선수 출신 1인, 여성 1인이 반드시 포함 단 장애인 선수 출신이면서 동시에 여성일 경우에는 장애인 선수 출신1인 및 여성1인 포함요건에 충족된 것으로 본다, ② 위원회의 간사 1인을 두며, 회장이 장애인체육회 직원 중에서 지명한다. <일부개정 ‘22..01.17.> 제4조(국가대표 선발 및 보고) ①장애인체육회 국가대표 강화훈련에 참가하는 선수 및 지도자는 해당 가맹단체에서 선발하여 장애인체육회에 보고함으로써 국가대표의 자격을 갖는다. ②장애인체육회 국가대표 강화훈련에 참여하지 않고 가맹단체에 의하여 종목별 국제대회에 파견하는 선수 및 지도자는 종목별 선발절차를 거쳐 확정된 후 종목별 국가대표로서 자격을 갖는다. 제5조(위원의 위촉) ① 위원장과 부위원장은 회장이 위촉한다. ② 부위원장은 위원 중에서 호선하고 회장이 위촉한다. ③ 위원은 당해 분야에 관한 전문적인 지식이 있는 자 중에서 회장이 위촉한다. ④ 위원회 위원 구성 시 다음 각호를 준수해야 한다. 1. 동일 대학 재직자가 재적 임원 수의 20%를 초과할 수 없다. 제777조(친족의 범위) 친족관계로 인한 법률상 효력은 이 법 또는 다른 법률에 특별한 규정이 없는 한 다음 각호에 해당하는 자에 미친다. 1. 8촌 이내의 혈족 2. 4촌 이내의 인척 3. 배우자 2. 회장의 친족(민법 제777조에 따른 친족을 말한다)은 위원이 될 수 없다. 제777조(친족의 범위) 친족관계로 인한 법률상 효력은 이 법 또는 다른 법률에 특별한 규정이 없는 한 다음 각호에 해당하는 자에 미친다. 1. 8촌 이내의 혈족 2. 4촌 이내의 인척 3. 배우자 3. 장애인체육회 가맹 경기단체 등록선수는 위원이 될 수 없다. <일부개정 ‘22..01.17.> 제6조(위원의 직무) ① 위원장은 위원회를 대표하고 그 업무를 총괄한다. ② 부위원장은 위원장을 보좌하고 위원장이 부득이한 사유로 직무를 수행할 수 없을 경우 회장이 지정한 순서에 따라 그 직무를 대행한다. ③ 위원은 위원회를 구성하고 위원회에 출석하여 그 직무에 관한 사항을 의결한다. <신설 ‘22..01.17.> 제7조(임기) ① 위원의 임기는 4년으로 하되, 연임할 수 있다. 단, 임기의 기산은 일수를 기준으로 하지 않고 장애인체육회 정기총회까지로 한다. ② 보선된 위원의 임기는 전임자의 잔여기간으로 한다. <일부개정 ‘22.01.17.> 제8조(위원의 해촉) 회장은 위원이 다음 각 호의 어느 하나에 해당하는 경우 해촉할 수 있다. 1. 본인이 희망하여 사임서를 제출한 경우 2. 위원이 질병, 해외출장, 그 밖의 사유로 장기간 출석이 곤란하여 직무를 수행하기 곤란하다고 판단되는 경우 3. 실정법 위반 등 위원의 품위를 손상하는 행위로 인하여 직무수행이 부적합하다 고 판단되는 경우 <신설 ‘22.01.17.> 제9조(위원의 결격사유) ① 다음 각호의 어느 하나에 해당하는 자는 위원회 위원이 될 수 없다. 1. 대한민국 국적을 갖지 아니한 자 2. 피성년 후견인 또는 피한정후견인 3. 파산선고를 받고 복권이 되지 아니한 자 4. 금고 이상의 실형을 선고받고 그 집행이 종료되거나 집행을 받지 아니하기로 확정된 후 5 년이 경과 되지 아니한 자 5. 금고 이상의 형을 받고 그 집행유예 기간이 끝난 날부터 2년이 지나지 아니한 자 6. 금고 이상 형의 선고유예를 받은 경우에 그 선고유예 기간 중에 있는 자 7. 법원의 판결 또는 다른 법률에 따라 자격이 상실되거나 정지된 자 8. 장애인체육회 또는 가맹단체, 민간단체 등에서 재직기간 중 직무와 관련하여「형법」제355 조 및 제356조에 규정된 죄를 범한 자로서 300만원 이상의 벌금형을 선고받고 그 형이 확 정된 후 2년이 지나지 아니한 자 9. 장애인체육회 또는 가맹단체, 민간단체 등에서 1년 이상 자격정지 이상의 징계처분을 받고 징계가 만료된 날로부터 3년이 경과 되지 아니한 자 10. 장애인체육회 또는 가맹단체, 민간단체 및 그 밖의 체육단체 중에서 (성)폭력, 승부조작, 직 권 남용 등의 비위 또는 해태나 관리지정 등으로 사임하거나 해임된 자 ② 임원이 제1항 각호에 해당되거나 선임 당시 그에 해당된 자로 밝혀졌을 때는 당 연히 사임한다. <일부개정‘22.01.17.> 제10조(회의소집) 회장 또는 위원장이 필요에 따라 위원회를 소집한다. <신설‘22.01.17.> 제11조(의결정족수) 위원회에서 특별히 규정한 것을 제외하고는 재적위원 과반수의 출석으로 개회하고, 출석위원의 과반수 찬성으로 의결한다. <신설‘22.01.17.> 제12조(수당 등의 지급) 외부 위원에 대하여는 예산의 범위 안에서 수당, 기타 필요한 경비를 지급할 수 있다. <신설‘22.01.17.> 제13조(긴급한 업무처리) 위원회가 심의할 사안 중 그 내용이 경미하거나 긴급하다고 인정될 때에는 서면결의로 위원회 결의를 대신할 수 있다. <신설‘22.01.17.> 제14조(제척 및 회피) 위원은 본인, 또는 본인과 직접적인 이해관계가 있거나 공정을 기할 수 없는 뚜렷한 사유가 있는 경우 위원회의 심의ㆍ의결에 참여할 수 없다. <신설‘22.01.17.> 제15조(사무처리) 위원회의 사무처리는 대한장애인배구협회 해당부서에서 담당한다. <신설‘22.01.17.> 부 칙 (2015. 11. 28.) 제1조(시행일) 이 규정은 이사회 승인을 받는 날부터 시행한다. 부 칙(’22. 01. 17.) 제1조(시행일) 이 규정은 이사회 승인을 받은 날부터 시행한다. 제4장 지 도 자 제16조(국가대표지도자 선발)①국가대표지도자(감독, 코치)는 다음 각 호에 해당하는 자로 선발한다. 1. 감독은 전문스포츠지도사 자격증 소지자로 7년 이상(코치의 경우 5년이상)의 선수경력 또는 5년 이상(코치의 경우 2년 이상)의 장애인 경기지도 경력이 있어야 한다. 2. 해당 종목 국가대표선수 은퇴자로 장애인올림픽대회 1회 이상 출전 또는 장애인아시아경기대회에서 메달을 획득한 자. 단, 이 경우 해당 지도자는 지도자로 선발된 후 2년 이내 장애인스포츠지도사 자격증을 취득해야 하고, 위 기한 내 취득하지 못할 경우에는 선발이 자동으로 취소되는 것으로 한다. 3. 장애인종목 가맹단체에서 발급한 경기지도자 자격 소지자로서 해당 종목 장애인 경기지도 경력이 5년 이상인 자 ②자격증 취득이 불가능한 장애인 특수종목의 경우, 제16조 ①항 2호, 3호에 의거 종목별 가맹단체장의 추천에 의거 장애인체육회 전문체육위원회의 심의 및 의결을 거쳐 국가대표지도자로 선발한다. ③감독, 코치 이외에 보조지도자를 둘 수 있다. ④장애인올림픽대회(농아인올림픽 포함), 장애인아시아경기대회(농아인아시아경기대회 포함), 유형별종합대회 등 종합대회에 참가하는 국가대표지도자(감독에 한함)는 해당 가맹단체의 추천에 의하되, 장애인체육회 전문체육위원회에서 심의 및 의결을 거쳐 최종 선발한다. 단 장애인올림픽대회의 경우 대회 대비 훈련개시 최소 3개월 전에 국가대표지도자(감독에 한함)를 선발하여야 한다. ⑤국가대표지도자(감독, 코치 및 보조지도자를 모두 포함)는 최종 선발 당시까지 성폭력관련 범죄경력(징계경력을 포함)이 없는 자이어야 하고 최종 선발된 이후 장애인체육회 또는 공공기관에서 실시하는 관련 교육을 년 1회, 1시간 이상 의무적으로 이수하여야 하며 이수 후 7일 이내 이수확인서를 해당 가맹단체(또는 장애인체육회)에 제출하여야 한다. 제17조(국가대표지도자 선발방법 및 시기) ①국가대표지도자의 선발은 공개선발을 원칙으로 하며, 가맹단체 위원회 의결 후 이사회에서 확정한다. ②선발과정 및 결과는 공개하여야 하며, 회의록 등 선발근거 자료를 최소 5년 이상 보관하여야 한다. ③국가대표지도자의 임용 및 재임용 시, 해당 지도자의 평가보고서를 작성, 평가하고, 위원회의 추천을 거쳐 이사회의 승인을 얻어야 한다. ④국가대표지도자 선발은 각 가맹단체별 국가대표선수 선발에 해당 지도자가 참여할 수 있도록 국가대표선수 선발 실시 전에 확정하여야 한다. 제18조(임기 및 역할) ①국가대표지도자의 신분 보장과 안정적인 선수 관리를 위해 최소 1년 이상 임기(계약기간)를 보장하고 계약서를 작성한다. ②국가대표지도자인 감독은 코치, 보조지도자 및 국가대표선수 선발 시 위원회에 서면 또는 직접 출석하여 의견을 개진 할 수 있으며, 위원회는 감독의 의견을 반영할 수 있되, 감독의 의견에 구속되지 아니한다. 제19조(임무) 국가대표지도자의 임무는 다음과 같다. 1. 국가대표선수의 훈련 및 관리 2. 훈련계획서 작성 및 선수별 훈련성과 평가 3. 일일 훈련일지 작성 4. 각 경기단체별 국가대표 훈련대상 선수 선발 참여 5. 경기력 부진선수 교체 건의 6. 국가대표 훈련참가자의 해외전지훈련 및 국제대회 파견 시 인솔 7. 각종 국제대회 참가보고서 작성 및 분석결과 보고 8. 선수 신상파악, 사고발생 시 즉시보고 9. 훈련원 지시사항 이행 10. 기타 경기력향상과 관련되는 사항 제5장 징 계 제20조(징계) ①대한장애인배구협회는 국가대표를 구성함에 있어 본 규정을 위반하였거나 사회적 물의를 일으킨 국가대표에 대하여 징계 할 수 있다. ②징계는 가맹단체 관련위원회에서 결정하며, 해당연맹에 대한 징계는 장애인체육회가 한다. ③징계의 종류는 다음과 같다. 1. 경징계: 경고, 견책, 감봉 2. 중징계: 출전정지, 자격정지, 해임, 제명 제6장 보 칙 제21조(훈련제외)국가대표선수 및 국가대표지도자의 선발과 관련된 부정행위로 징계를 받은 자는 국가대표 강화훈련에서 제외한다. 제22조(국가대표선발 규정 제·개정)①장애인체육회 가맹단체는 본 규정을 준용하여 2015년 12월 31일까지 가맹단체별 국가대표 선발 규정을 새로이 제정 또는 개정하여야 한다. ②가맹단체에서 제·개정한 국가대표 선발규정은 제·개정 후 즉시 장애인체육회에서 승인을 득하여야 한다. 제23조(국가대표 선발규정의 개정시기) ①확정된 가맹단체 국가대표 선발 규정의 개정은 규정 제·개정 후 최소 1년 이상 경과 후에 개정할 수 있으며, 해당 가맹단체에서 이사회 의결, 확정 후 개정 내용을 장애인체육회에서 승인을 득하여야 한다. ②다만, 규정개정을 완료하고 시행함에 있어 특별한 사유가 발생하여 1년 이내 제·개정이 필요할 경우, 해당 가맹단체는 반드시 사전에 장애인체육회의 승인을 득하여야 한다. 제24조(자료의 보관) 가맹단체는 국가대표 선발기준, 과정, 결과를 투명하게 공개하여야 하며, 이의제기 시 확인이 가능하도록 선발근거(선발결과 기록지, 분석지, 및 회의록 등) 관련 자료를 최소 5년간 보관(관리)하여야 한다. 부 칙 (2015. 11. 28.) 제1조(시행일)이 규정은 이사회의 승인을 받은 날부터 시행한다.제 정 2022. 02. 21.
제1장 총 칙 제1조(근거 및 목적) ① 이 규정은 대한장애인체육회(이하 “장애인체육회”라 칭한다.) 정관 제9조에 근거하고, 대한장애인배구협회(이하 “장애인배구협회”라 한다)정관 제7조에 근거한 동 규정 제6조와 7조의 규정에 의거 가맹이 승인된 종목별 및 장애유형별 전국규모연맹체(이하“연맹체”라 한다)의 조직 및 운영에 관한 기본사항을 규정함을 목적으로 한다. ② 연맹체는 당해 종목별 또는 당해 장애 유형별 연맹단체의 대표성을 가지고 명칭을 정하되, 연맹체는 [대한장애인❍❍연맹]이라 칭하고, 영문명칭도 정해야 한다. 제2조(소재지) 연맹체의 사무소는 국내에 둔다. 제2장 사 업 제3조(목적 및 지위) ① 연맹체는 각 소관 경기종목 및 해당 장애영역의 운동을 전국적으로 널리 보급하여 장애인의 체력을 향상케 하며, 경기인 및 그 단체를 통할ㆍ지도하고 우수한 경기인을 양성하여 국위선양을 도모함을 목적으로 한다. ② 연맹체는 해당 종목별 및 장애종목별 국내ㆍ외 종합대회를 개최 및 참가할 수 있다. 제4조(사업) ① 연맹체는 제3조의 목적을 달성하기 위하여 다음의 각 사업을 수행한다. 1. 해당 종목에 관한 기본방침의 심의ㆍ결정 2. 해당 종목 대회에 관한 자문 및 건의 3. 해당 장애 유형별 분과위원회 4. 해당 종목 소관 범위 배구대회 개최 및 “장애인배구협회”가 주최, 주관, 승인한 사업에 참가 5. 해당 종목에 관한 국제대회의 개최 및 참가 6. 해당 종목 경기기술의 연구 및 향상 7. 해당 경기종목의 선수, 동호인, 지도자, 심판, 등급분류사 등록 및 관리 8. 해당 종목의 선수 및 심판, 등급분류사, 운영요원 등의 양성 9. 해당 경기종목의 동호인 조직 및 스포츠클럽 육성 지원 10. 해당 종목의 생활체육 프로그램 개발ㆍ보급 11. 해당 종목의 경기시설ㆍ장비의 개발ㆍ개량 및 이와 관련된 공인 12. 해당 경기에 관한 자료수집 및 조사통계 13. 해당 경기종목에 관한 홍보 14. 해당 경기종목의 경기규정집 발간 및 관리 15. 해당 장애인배구협회와의 업무교류 16. 해당 연맹체의 목적 달성에 필요한 사업 ② 전국규모의 사업은 연맹체가 주최하여야 한다. ③ 연맹체는 제1항 제11호의 공인과 관련하여 국제공인 규정을 벗어난 공인요건을 신설할 수 없으며, 공인제도 운영에 필요한 사항은 장애인배구협회의 공인제도에 따른다. 제3장 종목별 및 장애 유형별 전국규모 연맹체 제5조(연맹체의 설치) ① 장애인배구협회는 당해 대의원총회 승인으로 목적사업 수행을 위하여 종목별 및 장애 유형별 전국규모 연맹체를 설치할 수 있다. ② 장애인배구협회는 전국규모 연맹체의 조직 및 운영과 권리 및 의무에 관한 필요한 사항은 이사회의 의결로 별도 규정을 정한 후 장애인체육회에 제출하여야 한다. 제6조(연맹체의 가맹 및 승인) ① 연맹체의 가맹은 소정 양식에 의하여 가맹신청서를 장애인배구협회에 제출하고 장애인배구협회는 당해 종목별 및 장애 유형별을 대표하는 전국규모 연맹체를 승인하여야 하며, 이사회를 거쳐 대의원총회의 의결로 확정된다. 제7조(탈맹) ① 장애인배구협회에 가입한 연맹체의 탈맹은 임의로 할 수 있으며, 이는 장애인배구협회 이사회의 결의로 확인되고, 이사회는 이를 차기 대의원총회에 보고하여야 한다. ② 장애인배구협회에 가입한 단체회원이 그 자격을 상실하였거나 부적당하다고 인정될 때에는 장애인배구협회 이사회를 거쳐 대의원총회의 의결로 그 자격을 박탈한다. ③ 가입 및 탈퇴에 관하여 필요한 규정은 따로 이를 정한다. 제8조(전국규모연맹체의 권리) 연맹체는 장애인배구협회 정관 제11조에 따라 다음 각호의 권리를 가진다. ① 총회에 소정의 규정에 따라 대의원을 파견하여 발언권 및 의결권을 갖는다. ② 장애인 배구협회에 대하여 건의 및 소청할 수 있다. ③ 장애인배구협회의 주최, 주관, 및 승인한 사업에 참여할 수 있다. ④ 전국규모대회 등 소관 범위 내의 경기대회 개최권을 갖는다. 제9조(전국규모연맹체의 의무) 연맹체는 장애인배구협회 정관 제12조에 따라 제 규정을 준수할 의무를 진다. ① 연맹체는 장애인배구협회의 정관, 규정 및 의결된 사항을 준수하여야 한다. ② 사업계획서, 예산서, 전년도 사업 결과 보고서 및 결산서를 당해 단체의 총회 종료 후 10일 이내에 장애인배구협회에 제출하여야 한다. ③ 연맹체가 의무를 위반하여 장애인배구협회 연맹체로서 부적합하다고 인정될 때에는 장애인배구협회 정관에 의거해 제명할 수 있으며, 의무사항을 해태 또는 불이행할 경우 예산 및 지원 사항에 대하여 불이익 처분할 수 있고, 연맹체의 불투명한 회계처리 등 직무관련 비리 임ㆍ직원에 대한 징계를 요구할 수 있다. ④ 연맹체는 한국도핑방지규정을 수용하고 준수한다. 제10조(관리단체지정) ① 장애인배구협회는 연맹체의 지원육성에 필요한 방안을 강구함은 물론 경기인의 체육활동을 권장 보호하고 육성하여야 한다. ② 연맹체가 다음 각호 중 어느 하나의 사유로 정상적인 조직 운영이 어렵다고 판단될 때 장애인배구협회는 이사회의 의결을 거쳐 당해 연맹체를 관리단체로 지정할 수 있다. 1. 장애인배구협회 정관 등 제 규정의 중대한 위반 2. 장애인배구협회 지시사항의 중대한 위반 3. 60일 이상 장기간 연맹체 장의 궐위 또는 사고 4. 연맹체와 관련한 각종 분쟁 5. 재정 악화 등 기타 사유로 원만한 사업수행 불가 6. 연맹체 평가에 의거 부진단체로 3회 지정시 7. 경기력 향상을 위해 장애인배구협회의 직접 육성관리가 불가피하다고 인정될 경우 ③ 관리단체 운영에 관한 사항은 이사회 의결로 정한 관리단체 운영 규정에 따른다. 제11조(평가 및 지위 변경) ① 연맹체는 장애인배구협회에서 매년 실시하는 평가를 받아야 한다. ② 장애인배구협회는 평가 결과를 반영하여 연맹체에 대하여 각호와 같이 조치할 수 있다. 1. 부진연맹체는 1회 지정 시 단체 지위 강등, 2회 지정 시 관리단체로 지정 2. 우수단체의 경우 단체 지위 상승 등 인센티브 부여 ③ 평가 방법 및 절차 등은 관련 규정에 따라 별도로 정한다. 제11조(제명) 가입한 연맹체회원이 그 자격을 상실하였거나 제9조에 규정한 의무를 위반하여 장애인배구협회 회원으로서 부적합하다고 인정될 때에는 이사회의 의결을 거쳐 총회에서 재적 대의원 3분의 2 이상의 의결로 제명할 수 있다. 제 4 장 임 원 제12조 (임원) ① 연맹체는 임원으로 이사와 감사를 두며, 감사는 2명으로 한다. ② 이사는 다음 각호와 같다. 1. 회장 1인 2. 6인 이내의 부회장을 포함한 14인 이상 27인 이내의 이사 3. 집행부의 선임 임원 수는 연맹체의 실정에 맞추어 운용할 수 있다. ③ 제2항에서 정한 임원의 수는 연맹체 총회의결로 총10명 이하로 증원할 수 있으나 장애인배구협회의 승인을 받아야 한다. 제9조(임원의 임기) ① 회장을 포함한 이사의 임기는 4년으로 하고, 감사의 임기는 2년으로 하되, 임원은 1회만 연임할 수 있다. 다만, 회계감사는 연임 횟수를 제한하지 않는다. ② 제1항에도 불구하고 연맹체의 임원은 장애인배구협회 정관 제22조에 따른 임원심의위원회의 결정에 따라 임원 연임 횟수 제한의 예외를 인정받을 수 있다. ③ 제1항에 따라 회장의 임기 횟수 제한을 산정할 때에는 회장 이외의 다른 임원으로 활동한 기간은 포함하지 아니한다. ④ 제1항에 따라 부회장의 임기 횟수 제한을 산정할 때에는 회장으로 활동한 기간은 포함하나 이사 및 감사로 활동한 기간은 포함하지 아니한다. 제1항에 따라 이사 및 감사(회계감사 제외)의 임기 횟수 제한을 산정할 때에는 회장 및 부회장으로 활동한 기간을 포함한다. ⑥ 임기의 기산은 일수를 기준으로 하지 않고 임원을 선출한 정기총회를 기준으로 한다. ⑦ 회장은 회장으로 당선된 후 처음으로 개최되는 정기총회일에 임기가 시작되는 것 으로 본다. 다만, 각 호에 해당하는 경우에는 임기를 달리 적용한다. <개정‘21.7.30.> 1. 연맹체가 부득이한 사유로 규약(정관)에서 정한 기일에 정기총회를 개최하지 못한 경우에는 해당 일자에 회장의 임기가 시작된 것으로 본다. 2. 해당년도 정기총회 개최 기일까지 장애인배구협회의 승인을 받지 못한 연맹체 회장 당선자의 경우에는 장애인배구협회의 승인일부터 임기가 시작된다. ⑧ 회장을 제외한 임원은 장애인배구협회의 승인일로부터 임기가 시작된다. ⑨ 보선된 임원의 임기는 전임자의 잔여기간으로 하고 임원 수가 증원되어 선임된 임원의 임기 또한 다른 임원의 잔여기간과 같다. ⑩ 제1항의 임원의 임기 제한에 있어 임원의 임기가 2년 미만인경우 연임 횟수에 포함하지 아니한다. ⑪ 정관 제22조 제2항 및 회장선거관리규정 제4조 제1항에 의한 선거인은 임기시작전이라도 장애인배구협회장의 승인을 받은 제10항의 당선자가 된다. 제10조(회장의 선출) ① 회장은 회장 선출기구에서 선출한다. ② 연맹체의 회장 선출기구는 다음 각호의 사람으로 구성한다. 1. 선수 대표 4명(연맹체 선수위원장 1명은 당연직, 선수위원회에서 선출된 위원 3명) 2. 지도자 대표 2명(지도자협의회장 1명은 당연직, 지도자협의회에서 선출된 위원 1명) 3. 심판 대표 2명(심판위원장 1명은 당연직, 심판위원회에서 선출된 위원 1명) ③ 제2항 1호의 선수대표에는 비장애인 선수는 포함되지 아니하며, 다종목에 등록한 선수와 지도자를 겸하고 있는 선수는 1인 1표로 제한 한다. ④ 회장 후보자는 학식과 덕망, 경험이 풍부한 자로서, 국내장애인체육진흥과 패럴림 픽운동에 크게 기여하였거나, 기여할 수 있는 자이어야 한다. ⑤ 회장의 선출방법은 다음 각호에 따른다. 1. 회장선거는 무기명 비밀투표로 하며 유효투표 중 다수의 득표를 한 자를 당선인으로 결정한다. 2. 다수 득표수가 동수인 경우에는 연장자를 당선인으로 결정한다. 3. 후보자가 1인일 때에는 투표를 실시하지 아니하고 선거일에 그 후보자를 당선인으로 결정한다. ⑥ 제1항에도 불구하고 선거 공정성 확보를 위하여 장애인배구협회가 직선제 등 선출방 식 개선을 지시할 수 있으며, 연맹체는 이에 따라야 한다. ⑦ 회장이 궐위된 경우 잔여임기가 1년 미만인 경우에는 제16조 제2항에 정한 순서에 따 라 부회장이 직무를 대행하고, 잔여임기가 1년 이상인 경우에는 궐위된 날로부터 60일 이 내에 회장을 선출하여야 하며, 이 경우 새로 선임된 회장의 임기는 전임자의 잔여기간으 로 한다. ⑧ 연맹체는 공정한 선거관리를 위하여 선거관리위원회 위원을 5명 이상 7명 이내의 내·외부 인사로 구성하되 연맹체 임원이 과반수를 넘을 수 없다. ⑨ 이 규정에 정한 것 외에 회장 후보자의 자격요건, 결격사유, 등록 및 선거 절차, 선 거관리위원회의 설치 등 회장 선거에 필요한 사항은 연맹체가 장애인배구협회의 ‘회장선거규정’에 따라 별도로 정한 후 장애인배구협회의 승인을 받아야 한다. ⑩ 제⑦항에 따른 직무대행자는 통상적 사무(선거관리위원회 구성 업무 포함)를 수행하며, 새로운 정책의 수립, 인사의 이동 등 현상 유지의 범위를 벗어난 사무를 처리할 수 없다. 다만, 긴급한 경우 이사회 의결로 가능할 수 있다. ⑪ 장애인배구협회, 연맹체, 시ㆍ도 장애인배구협회 (시ㆍ군ㆍ구장애인배구협회 포함)의 회장과 임원이 회장 후보자로 등록하고자 하는 경우 회장의 임기 만료일 전 60일까지 그 직을 그만두어야 한다. 다만, 보궐선거에 후보자로 등록하는 경우 그 실시 사유가 확정된 날로부터 10일 이내에 그 직을 그만두어야 한다. 제11조(임원선임) ① 부회장 및 이사는 회장이 추천한 자 중에서 총회에서 선임한다. 단, 대의원총회의 의결로 선임권한을 회장에게 위임할 수 있으며, 이 경우 차기 총회에서 선임결과를 보고하여야 한다. ② 제1항에 따라 위임된 임원 선임권한의 기한은 총회에서 특별히 정한 경우를 제외하고는 차기 총회까지로 한정한다. ③ 임원 구성은 다음 각호의 요건이 반드시 충족되어야 한다. 1. 동일 대학 출신자 및 동일 직장 재직자가 재적임원수의 20%를 초과할 수 없다. 2. 이사 중 3인 이상은 장애인 선수 출신으로 한다. 3. 비경기인(학계, 언론계, 법조계 등)이 재적 임원수의 20%이상 포함되어야 한다. 4. 장애인과 여성 임원이 재적 임원수의 30% 이상 포함되도록 노력하여야 한다. ④ 감사는 총회에서 선임하되, 대의원 중에서 1인, 공인회계사 자격을 가진 자 중에서 1인을 선임하여야 한다. ⑤ 부회장과 이사의 결원이 있을 때에는 회장이 추천한 자를 이사회에서 보선하되 차기 총회에 이를 보고하여야 한다. ⑥ 대의원은 임원에 선임될 수 있으나, 재적이사(회장, 부회장 포함)의 3분의 1을 초과할 수 없다. 이 경우 동일 연맹체 시·도지부 및 연맹체의 회장 또는 부회장은 1인을 초과하여 임원에 선임될 수 없다. ⑦ 연맹체의 임원은 장애인배구협회의 승인을 받아 취임하며, 필요한 경우 관계기관에 신원사항이나 관련사항을 조회할 수 있다. 승인 후에 임원의 결격 및 기타 사유가 드러나 승인에 하자가 있는 경우 장애인배구협회는 직권으로 승인을 취소 또는 철회할 수 있다. ⑧ 제17조 제2항에 따라 부회장이 직무를 대행하고자 할 때에는 즉시 장애인배구협회에 그 사실을 보고하여 승인을 받아야 한다. 제12조(임원의 결격사유) ① 대한민국 국적을 갖지 아니한 자는 연맹체 회장이 될 수 없다. ② 다음 각호의 어느 하나에 해당하는 자는 연맹체의 임원이 될 수 없다. 1. 「국가공무원법」제33조(결격사유) 각호의 어느 하나에 해당하는 사람 2. 국민체육진흥법 제2조제9호 가목부터 다목까지의 체육단체 및 시도ㆍ시군구 종목단체에서 재직기간 중 직무와 관련하여 「형법」 제355조 및 제356조에 규정된 죄를 범한 사람으로서 300만 원 이상의 벌금형을 선고받고 그 형이 확정된 사람 3. 국민체육진흥법 제2조제9호 가목부터 다목까지의 체육단체 및 시도ㆍ시군구 종목단체가 주최ㆍ주관하는 경기의 결과에 영향을 미치는 승부조작에 가담하여 「형법」 제314조 및 「국민체육진흥법」 제47조 및 제48조에 규정된 죄를 범한 사람으로서 벌금형 이상을 선고받고 그 형이 확정된 사람 4. 국민체육진흥법 제2조제9호 가목부터 다목까지의 체육단체 및 시도ㆍ시군구 종목단체에서 다음 각 목에 따른 사람 가. 폭력 및 성폭력 등 성 관련 비위로 자격정지 이상의 징계 처분을 받은 사람 나. 승부조작, 편파판정, 횡령ㆍ배임으로 자격정지 1년 이상의 징계처분을 받은 사람 다. 가목과 나목에 해당하는 사람을 제외하고 자격정지 이상의 징계처분을 받고 그 기간이 종료되지 아니한 사람 5. 국회의원 6. 관리단체로 지정되어 해임된 임원으로 관리단체 지정일로부터 4년이 지나지 아니한 사람 ③ 회장의 친족(민법 제777조에 따른 친족을 말한다)은 그 연맹체의 임원이 될 수 없다. ④ 연맹체와 거래관계에 있는 사업체의 임ㆍ직원은 연맹체의 임원이 될 수 없다. 다만, 연맹체의 필요에 따라 해당자를 임원으로 선임하고자 하는 경우 연맹체는 해당자로부터 연맹체와 위법ㆍ부당한 거래를 하지 않겠다는 서약서를 제출받아 총회에서 선임할 수 있다. 이 경우 해당 임원과 연맹체 간 거래관계에 위법ㆍ부당의 이의가 제기되면 장애인배구협회는 직권으로 조사할 수 있으며 그 결과에 따라 해당 임원을 해임할 수 있다. ⑤ 문화체육관광부 산하 체육단체 및 그 가맹연맹체의 임원 결격사유에 해당하는 자는 임원이 될 수 없다. ⑥ 제1항부터 제5항까지의 임원 결격사유에 해당하는 사람이 소속되어 있는 연맹체, 시·도장애인배구협회, 연맹체 시·도지부, 법인 또는 기타 단체 등은 장애인배구협회, 연맹체, 시·도장애인배구협회, 연맹체 시·도지부, 대한체육회 및 문화체육관광부 산하 체육단체의 사업에 참여할 수 없다. 제13조(명예회장 및 고문) ① 연맹체에 다음 각호에 정하는 바에 따라 명예회장 1인 및 약간인의 고문을 둘 수 있다. 1. 명예회장은 총회에서 추대하며, 이사회 및 총회에 참석하여 자문할 수 있다. 2. 고문은 이사회의 동의를 얻어 회장이 위촉한다. ② 제14조 제2항 내지 제4항의 결격사유에 해당하는 자는 명예회장 및 고문에 위촉될 수 없고, 재임 중 이에 해당하는 자로 밝혀졌을 때에는 당연히 해촉된다. 제14조(동일인의 겸직 제한) ① 동일인이 다른 연맹체의 대의원 또는 임원을 겸할 수 없다. 다만, 대한체육회 가맹 종목의 연맹체 대의원 또는 임원은 겸직할 수 있다. ② 동일인이 다른 연맹체의 회장 선출에 후보자가 되려는 경우에는 후보자 등록신청 전까지 현재 소속 연맹체의 임원직을 사임하여야 한다. ③ 선임 임원 중 회계전문가로서 감사로 선임된 자는 타 연맹체의 감사를 겸임할 수 있다. ④ 선임 임원은 해당 연맹체 및 다른 연맹체의 선수를 겸할 수 없다. 제15조(임원의 보수) 회장을 비롯한 비상근임원에게는 보수를 지급하지 아니한다. 다만, 업무수행에 필요한 실비는 지급할 수 있으며, 사업계획에 반영하여 이사회에서 의결을 받아 지급한다. 제16조(임원의 직무) ① 회장은 연맹체를 대표하고 그 업무를 총괄한다. ② 부회장은 회장을 보좌하고, 회장이 궐위 되었거나, 또는 사고로 인하여 직무수행이 곤란한 경우에는 회장이 부회장 선임 시 정한 순서에 따라 직무를 대행하되, 순서의 정함이 없는 경우에는 부회장 중 연장자가 대행한다. 다만, 외국 국적의 부회장은 회장의 직무를 대행할 수 없다. ③ 이사는 이사회를 구성하고 이사회에 출석하여 그 직무에 관한 사항을 의결한다. ④ 감사는 다음 각호의 직무를 행한다. 1. 연맹체의 재산 상황을 감사하는 사항 2. 이사회의 운영과 그 업무를 감사하는 사항 3. 연맹체의 재산 상황 또는 대의원총회 및 이사회의 운영과 그 업무에 관하여 회장, 이사회 및 대의원총회에서 의견을 진술하는 사항 4. 제1호 및 제2호의 감사 결과 부정 또는 비위가 있음을 발견한 때에는 이를 이사회 및 대의원총회에 그 시정을 요구하고, 그래도 시정되지 아니할 때에는 장애인배구협회에 보고하는 사항 5. 제4호의 보고를 위하여 필요한 때에 이사회 또는 대의원총회의 소집을 요구하는 사항 ⑤ 연맹체의 임원이 동 단체의 운영과 관련된 범죄사실로 기소되었을 경우 그 직무가 정지된다. 다만, 다음 각호의 경우는 그러하지 아니하다. 1. 기소된 범죄사실의 법정형이 벌금형만 있는 경우 2. 약식명령이 청구된 경우 3. 과실범으로 기소된 경우 ⑥ 연맹체의 임원이 동 단체의 운영 이외의 범죄사실로 구속 기소되었을 경우 그 직무가 정지된다. ⑦ 시·도장애인배구협회 및 연맹체 시·도지부의 임원 또는 해당지역 체육단체를 대표하는 자로서 연맹체의 임원이 된 자가, 해당단체에서 직무가 정지되었을 경우 연맹체 임원으로서의 직무도 당연 정지된다. ⑧ 연맹체의 임원이 장애인배구협회 및 장애인배구협회 관계단체의 운영과 관련된 비위의 사유로 장애인배구협회의 감사처분을 받아 징계절차가 진행 중인 경우 그 직무가 정지된다. 제17조(임원의 사임 및 해임) ① 이사 및 감사가 사임할 경우에는 회장 또는 그 직무대행자에게 사직서를 제출하여야 하며, 회장이 사임할 경우에는 사무처에 사직서를 제출해야 한다. 이사, 감사 또는 회장이 사직서를 제출한 경우에는 제출과 동시에 사임한 것으로 본다. ② 연맹체가 관리단체로 지정된 경우에는 지정 즉시 해당 단체의 임원은 즉시 해임된다. ③ 연맹체에 대한 관리단체 지정이 장애인배구협회 이사회 안건으로서 통지된 경우, 통지서 발송일 30일 전부터 관리단체 지정 절차가 종료될 때까지는 임원의 사임 효력이 발생되지 아니한다. ④ 임원이 다음 각호의 어느 하나에 해당하는 경우에는 당연히 퇴임한 것으로 본다. 1. 제13조 제7항에 따라 장애인배구협회로부터 승인이 취소 또는 철회된 자 2. 제14조에 해당하는 때 3. 연맹체 시ㆍ도지부 및 연맹체의 임원 또는 체육단체를 대표하는 자가 해당 단체에서 해임되거나 사임하는 경우 제18조(임원에 대한 징계 요구) ① 장애인배구협회는 다음 각호에 해당하는 경우 연맹체 임원에 대해 구체적 징계 수위를 정하여 징계를 요구할 수 있다. 이 경우 해당단체는 장애인배구협회의 징계요구에 따라야 한다. 1. 임원 직위를 이용하여 관련 종목의 시설운영과 사업운영에 관여하거나, 해당 단체에 중대한 손해를 입힌 자 2. 친족간 업무위탁 및 도급에 관여한 자 3. 공금횡령, 편파 판정, 승부조작, 폭력, 성폭력, 직권남용 등 사회적 물의를 일으켜 품위 를 손상시킨 자 4. 해당 연맹체의 규정을 위반한 자 5. 제9조 제3항의 징계 요구를 따르지 않을 경우 ② 징계에 관한 사항은 장애인배구협회 법제상벌위원회 규정에 따른다. 제5장 대의원 총회 제19조(대의원) ① 연맹체의 대의원은 다음과 같다. 1. 선수 위원장 2. 각 분과위원장 3. 심판위원장 4. 지도자협의회의 장 5. 대한민국 국적의 해당 종목 국제기구 임원 6. 대한민국 국적의 종목별 및 유형별 국제기구 임원 ② 연맹체의 장이 부득이한 사유로 총회에 출석할 수 없는 경우에는 부회장 선임 시 정한 순서에 따라 대리인을 지명하여 출석하게 할 수 있으나, 순서의 정함이 없는 경우에는 부회장 중 연장자 순으로 한다. 이 경우 대리인을 5일전에 연맹체에 서면으로 통보하여야 하며, 그 대리인의 권한은 해당 총회에서만 대의원과 동일한 권한을 가진다. ③ 동일인이 제1항의 각호의 직을 겸할 수 없다. ④ 제1항 제3호부터 제6호에 해당하는 대의원은 총회에 대리참석이 불가하다. 제20조(총회의 구성 및 기능) ① 총회는 제20조 제1항 또는 제2항 각호의 대의원 또는 그 대리인으로 구성한다. ② 총회는 다음 사항을 의결한다. 1. 당해 단체의 해산 및 정관(규약) 변경에 관한 사항 2. 연맹체 시·도지부 설치 및 제명 3. 연맹체 가맹과 제명 4. 임원의 선임(회장 제외) 및 해임에 관한 사항 5. 사업결과 및 결산에 관한 사항 6. 기타 중요사항 제21조(정기총회와 임시총회) ① 연맹체의 정기총회는 매 회계연도 종료 후 1개월 이내에 회장이 소집한다. ② 임시총회는 다음 각호의 어느 하나에 해당하는 경우에 15일 이내에 회장이 개최하여야 한다. 1. 회장이 필요하다고 인정하는 경우 2. 구체적 안건을 명시한 재적이사 과반수의 소집요구가 있는 경우 3. 구체적 안건을 명시한 재적대의원 3분의 1 이상의 소집 요구가 있는 경우 4. 제17조 제4항에 따라 감사가 소집을 요구한 때 ③ 제2항의 제2호 내지 제3호의 경우에 회장이 정당한 사유 없이 총회를 개최하지 아니한 때에는 소집요구를 한 이사나 대의원이 연맹체장에게 요청한 총회 소집 요청서를 첨부 하고 회의안건, 일시, 장소를 명기하여 장애인배구협회의 승인을 받아 총회를 소집할 수 있다. 다만, 이사 또는 대의원이 총회를 소집한 경우에는 이사 또는 대의원 중 연장자가 총회의 소집권자가 되고, 대의원 중 연장자의 사회로 출석대의원 중에서 의장을 선출한다. ④ 총회의 소집은 늦어도 개최 7일전에 안건ㆍ 일시 및 장소를 명기하여 서면(전자문서를 포함한다)으로 대의원에게 통지하여야 한다. 다만, 긴급한 사유가 있을 때에는 그 기간을 단축할 수 있다. ⑤ 총회는 통지된 안건에 한하여서만 의결할 수 있다. 다만, 출석대의원 전원의 찬성이 있는 경우에는 그 외의 안건에 대하여도 상정하여 의결할 수 있다. 제22조(의장) ① 회장이 총회의 의장이 된다. 다만, 회장이 부득이한 사유로 직무를 수행할 수 없을 때에는 부회장 선임 시 순서에 따라 부회장이 의장이 되나, 순서의 정함이 없는 경우에는 부회장 중 연장자가 의장이 된다. ② 제22조 제3항에 따라 이사나 대의원이 소집한 총회의 경우에는 출석대의원의 의결로 의장을 선출한다. ③ 제1항에 의한 의장은 의결권을 행사할 수 없고, 제2항에 의한 의장은 의결권을 가지며 가부동수일 때에는 결정권을 행사할 수 있다. 제23조(의결정족수) ① 총회는 이 규정에 특별히 규정한 것을 제외하고는 재적 대의원의 과반수 출석으로 개회하고, 출석대의원 과반수 찬성으로 의결한다. ② 대의원총회 의결은 서면결의로 할 수 없다. ③ 내우, 외환, 중대한 재난이나 재해 등으로 인해 출석하여 결의하는 것이 어려운 특별한 사정이 있는 경우, 대의원의 전부 또는 일부가 직접 회의에 출석하지 아니하고 총회 참석자의 음성을 동시에 송수신하는 원격통신수단에 의하여 결의할 수 있다. 다만 이 경우에도 제1항의 출석 및 의결정족수를 충족하여야 한다. ④ 제3항의 원격통신수단의 운영에 관한 사항은 별도의 지침에 따른다. 제24조(임원의 불신임) ① 총회는 임원에 대하여 부분적 또는 전체적으로 해임을 의결할 수 있다. ② 제1항에 따라 임원 전원을 해임할 경우에는 임원의 임기 경과와 관계없이 해임할 수 있으며, 일부 임원을 해임할 경우에는 해당 임원이 선출된 날부터 만 1년이 경과해야 한다. 다만, 해당 임원이 구속 기소된 경우에는 경과기간의 제한을 두지 아니한다. ③ 해임안은 재적대의원 과반수 찬성으로 발의되고, 출석대의원 3분의 2 이상의 찬성으로 의결한다. ④ 해임안이 의결되었을 때에는 해당 임원은 즉시 해임된다. ⑤ 임원 전원이 해임되었을 경우, 사무국은 긴급한 업무처리를 위하여 장애인배구협회의 승인을 받아 위원회 등을 구성하는 절차를 진행할 수 있다. 제25조(총회의결 제척사유) 의장 또는 대의원이 다음 각호의 어느 하나에 해당하는 때에는 그 의결에 참여하지 못한다. 1. 임원 선출 및 해임에 있어 자신에 관한 사항을 의결할 때 2. 금전 및 재산의 수수를 수반하는 사항으로써 자신과 당해 단체의 이해가 상반될 때 3. 제척사유에 해당되는 대의원 또는 임원은 해당 총회에 참석할 수 없다. 다만 총회 참석 대의원 전원이 찬성할 경우에는 그러하지 아니한다. 제6장 이 사 회 제26조(이사회의 구성 및 기능) ① 이사회는 회장, 부회장 및 이사로 구성된다. ② 이사회는 다음 사항을 심의 의결한다. 1. 사업계획 및 예산에 관한 사항 2. 사업결과 및 결산에 관한 사항 3. 각종 위원회 운영에 관한 사항 4. 기본 자산의 편입 및 처분에 관한 사항 5. 제 규정의 제정 및 개정 6. 총회에서 위임받은 사항 7. 총회 안건 상정에 관한 사항 8. 기타 중요사항 제27조(의결정족수) ① 이사회는 이 규정에 특별히 규정한 것을 제외하고는 재적이사 과반수의 출석으로 개회하고 출석이사의 과반수 찬성으로 의결한다. 다만, 가부동수일 때에는 회장이 결정한다. ② 이사회 의결은 서면결의로 할 수 없다. ③ 내우, 외환, 중대한 재난이나 재해 등으로 인해 출석하여 결의하는 것이 어려운 특별한 사정이 있는 경우, 이사의 전부 또는 일부가 직접 회의에 출석하지 아니하고 이사회 참석자의 음성을 동시에 송수신하는 원격통신수단에 의하여 결의할 수 있다. 다만 이 경우에도 제1항의 출석 및 의결정족수를 충족하여야 한다. ④ 제3항의 원격통신수단의 운영에 관한 사항은 별도의 지침에 따른다. 제28조(이사회의 소집) ① 회장은 필요에 따라 이사회를 소집하고 그 의장이 된다. 다만, 회장이 부득이한 사유로 직무를 수행할 수 없는 때에는 부회장 선임시 정한 순서에 따라 부회장이 의장이 되나, 순서의 정함이 없는 경우에는 부회장 중 연장자가 의장이 된다. ② 회장은 다음 각호의 해당하는 소집요구가 있을 때에는 그 소집요구일로부터 10일 이내에 이사회를 소집하여야 한다. 1. 재적이사 과반수 이상의 소집요구가 있는 경우 2. 제17조 제4항 제5호의 규정에 의하여 감사가 소집을 요구한 때 ③ 이사회를 소집하고자 할 때에는 회의 5일 전까지 안건ㆍ일시ㆍ장소를 명시하여 서면(전자문서를 포함한다)으로 각 이사에게 통지하여야 한다. 다만, 긴급한 사유가 있을 때에는 그 기간을 단축할 수 있다. ④ 이사회는 미리 통지된 안건에 한하여서만 의결할 수 있다. 다만, 출석이사 전원의 찬성이 있는 경우에는 그 외의 안건을 상정하여 의결할 수 있다. ⑤ 이사회 소집권자의 기피에 의하여 이사회 소집이 불가능할 때에는 재적이사 과반수의 찬성으로 장애인배구협회의 승인을 받아 이사회를 소집할 수 있고, 그 의장은 제1항에 의한다. 제29조(긴급한 업무의 처리) 회장은 그 내용이 긴급하다고 인정될 때에는 이를 집행할 수 있다. 다만, 차기 이사회에 이를 승인받아야 한다. 이사회의 의사는 서면결의에 의하여 처리할 수 없다. 제7장 각종위원회 제30조(각종위원회의 설치) ① 연맹체의 사업수행과 목적 달성을 위하여 이사회의 자문기구로서 장애인배구협회 정관이 정한 범위 내에서 각종위원회를 이사회의 의결로써 설치할 수 있다. ② 종목별 연맹체는 다음 각호의 위원회를 반드시 설치하여야 한다. 1. 전문체육위원회 2. 등급분류위원회 3. 법제상벌위원회 4. 선수위원회 5. 지도자협의회 6. 심판위원회 ③ 유형별 체육단체는 다음 각호의 위원회를 반드시 설치하여야 한다. 1. 전문체육위원회 2. 등급분류위원회 3. 법제상벌위원회 ④ 각 위원회 위원은 다른 위원회 위원을 2개까지 겸임할 수 있으며, 제14조의 결격사유에 해당되는 자는 위원이 될 수 없다. 다만, 제2항 1호 및 제3항 1호의 전문체육위원회 위원은 다른 위원회 위원을 겸임할 수 없다. ⑤ 회장과 친족관계인자(민법 제777조)는 위원이 될 수 없다. ⑥ 동일 대학 출신자 및 재직자가 재적위원수의 20%를 초과할 수 없다. ⑦ 등록선수 및 현직 지도자(비장애인 종목 지도자 제외)는 전문체육위원회 위원이 될 수 없다. ⑧ 제1항의 각종위원회의 구성 및 운영에 필요한 사항은 별도로 정한다. ⑨ 제2항 3호 및 제3항 3호에 의한 법제상벌위원회 위원 구성 시 법률전문가를 1인 이상 포함하도록 한다. 제8장 자산 및 회계 제31조(재원) 연맹체의 유지 및 운영에 필요한 경비의 재원은 다음과 같다. 1. 보조금(국고 및 국민체육진흥기금) 2 기본재산으로부터 생기는 과실금 3. 기부금 및 찬조금 4. 사업수입금(후원금 등) 5. 기타 수입금 제32조(재산의 구분) ① 연맹체 재산은 기본재산과 보통재산으로 구분한다. ② 기본재산은 연맹체의 목적사업 수행에 관계되는 부동산 또는 동산으로서 이사회에서 정한다. ③ 보통재산은 기본재산 이외의 재산으로 한다. 제33조(재산관리) ① 연맹체의 다음 각호 어느 하나의 재산을 양도, 증여, 교환 또는 용도변경하거나 담보에 제공하고자 할 때, 또는 연맹체가 재정적, 업무적 부담을 하거나 권리를 포기를 하고자 할 때에는 이사회 및 총회의 결의를 거쳐 장애인배구협회 또는 주무부처장관(법인에 한한다)의 승인을 받아야 한다. 차입금(해당 회계년도내의 수입으로 상환하는 일시 차입금은 제외)에 대하여도 같다. 1. 토지 및 건물 2. 그 밖에 이사회가 정하는 주요 재산 ② 연맹체의 재산을 취득할 때에는 지체 없이 이를 해당 단체의 재산으로 편입 조치하여야 한다. ③ 연맹체의 재산관리에 있어 이 규정에서 정한 사항 이외의 것은 「국유재산법」 및 「물품관리법」의 일반적인 관리의무 규정을 준용한다. 제34조(잉여금의 처리) 연맹체의 매회계연도 결산상 잉여금은 다음 순으로 처리한다. 1. 이월결손금의 보전 2. 차기 회계연도 목적사업비의 이월 3. 기본재산으로 편입시키기 위한 적립 제35조(예산편성 및 결산) ① 연맹체는 매 회계연도 마다 사업계획과 예산안을 편성하여 이사회 의결을 거쳐 장애인배구협회장의 승인을 받아 이를 총회에 보고하여야 하며, 중요사업계획 및 예산을 변경하고자 할 때에도 이사회 의결을 거쳐 장애인배구협회장의 승인을 받아야 한다. ② 매 회계연도 종료 후 2개월 이내에 결산서를 작성하여 이사회 및 총회의 의결을 거쳐 장애인배구협회에 제출하여야 한다. ③ 결산대의원 총회 개최 후 1개월 이내에 결산서(감사의 의견서를 첨부하여야 한다)를 홈페이지에 게재하여야 한다. ④ 장애인배구협회가 지원하는 교부금 및 각종 지정후원금(각종 국내·외 대회 등), 일반후원금(사무국 일반 후원금) 집행완료 후 관련 규정에 따라 사업결과 보고를 해야 하며 다음 각호의 사항이 포함되어야 한다. 1. 정산보고서 2. 예산 집행관련 증빙서류 사본 일체. 단, 정산서에는 총사업비 재원(기금, 지방비, 지정후원금, 자체예산 등)별로 구분하여 증빙되어야 한다. 3. 일반 후원금에 대하여도 별도 보고하고 증빙되어야 하며, 모든 후원금의 잔여예산 집행에 대하여도 장애인배구협회 승인을 받아야 한다. ⑤ 기금을 제외한 재원에 대해서도 위반행위가 발견될 경우, 민간단체 보조금의 관리에 관한 규정을 준용하여 제재하고, 최대 3년간 연맹체 운영비의 50%까지 삭감할 수 있다. 제36조(사업계획, 예산의 승인) ① 연맹체는 매 회계연도 마다 사업계획과 예산안을 마련하여 이사회 의결을 거쳐 장애인배구협회장의 승인을 받아야 하고, 이를 총회에 보고한다. ② 제1항의 규정에 의하여 승인을 받은 중요 사업계획 및 예산을 변경하고자 할 때에는 이사회의 의결을 거쳐 장애인배구협회장의 승인을 받아야 한다. ③ 연맹체는 매 회계연도 종료 후 결산서를 작성하여 이사회 및 총회의 의결을 거쳐 장애인배구협회에 제출하여야 한다. 제37조(회계연도) 연맹체 회계연도는 정부의 회계연도에 따른다. 제38조(기금 및 적립금) ① 연맹체는 이사회 및 총회의 의결을 거쳐 특별한 목적을 위한 기금 또는 적립금을 둘 수 있다. ② 제1항의 기금 및 적립금은 특별회계로 한다. 제39조(회계처리) 재산 및 회계에 관한 필요한 사항은 별도로 정한다. 제40조(경영공시) ① 연맹체는 운영의 투명성을 제고하기 위하여 주요사업의 추진계획 및 성과 등을 공시한다. ② 제1항의 공시항목은 이사회 및 총회 회의록, 예산집행내역, 외부평가, 감사결과와 그 외 장애인배구협회의 장이 정한 것으로 한다. 제9장 사 무 국 제41조(사무국) ① 연맹체는 사무집행을 위하여 사무국을 둔다. ② 사무국에 사무국장 1인과 기타 필요한 직원을 둘 수 있다. ③ 사무국장은 임원을 겸직할 수 없다. ④ 연맹체는 임원의 친족을 사무직 직원으로 채용할 수 없다. 다만, 임원 취임 전 사무 국 직원으로 채용된 자는 예외로 한다. ⑤ 사무국장을 포함한 직원은 그 직무 이외에 영리를 목적으로 하는 업무에 종사하지 못하며, 회장의 허가를 받지 아니하고는 다른 직무를 겸할 수 없다. 제42조(사무국 규정) ① 연맹체는 사무국 직원의 신분보장을 포함한 사무국 운영에 관한 필요한 사항은 장애인배구협회의 규정에 따라 별도로 정하여야 한다. 다만, 다음 각호의 규정은 반드시 정하여야 한다. 1. 회계규정 2. 국가대표 선발규정 3. 위임전결규정 4. 사무국 직원 인사 및 인사위원회 규정 5. 선수·동호인·지도자 등록규정 6. 등급분류 규정 7. 선수위원회 운영규정 8. 지도자협의회 운영규정 9. 심판위원회 운영규정 ② 연맹체는 규정 제정 전에 발생한 사안에 대해서는 장애인배구협회 규정을 준용하여 처리한다. 제43조(전자문서) 사무국의 모든 행정문서는 전자문서로 생산, 결재, 유지 관리하여야 한다. 제10장 독점적 사용에 대한 권리 제44조(독점적 사용에 대한 권리) ① 장애인배구협회의 “명칭, 로고, 표장”과 장애인배구협회가 주최하거나 파견하는 대회와 관련된 국가대표선수, 지도자, 심판의 이름 및 사진에 대해서는 장애인배구협회가 독점적인 사용권을 갖는다. ② 제1항의 장애인배구협회 권리를 사용하고자 하는 개인 또는 단체나 법인은 장애인배구협회의 사전 승인을 받아야 한다. ③ 이 정관에서 규정하지 않았으나 필요한 사항이 있을 시 이를 별도로 정한다. 제11장 보 칙 제45조(표창 및 징계) ① 연맹체는 장애인배구에 공적이 있는 단체 및 개인을 표창하고 비위가 있는 단체 및 개인을 징계하는 권한을 가진다. ② 표창 및 징계에 관한 규정은 따로 이를 정한다. 제46조(규약 및 규정의 제ㆍ개정) ① 연맹체는 이 규정을 준용하여 당해 연맹체의 규약(정관)을 제·개정하여야 한다. ② 연맹체의 규약(정관)을 변경할 때에는 이사회 의결 또는 재적대의원 3분의 1이상의 찬성으로 발의하여 출석대의원 3분의 2이상의 찬성으로 의결하여(법인은 문화체육관광부장관의 승인) 장애인배구협회에 승인을 받아야 한다. ③ 당해 연맹체 규약(정관) 이외 제규정의 제ㆍ개정은 이사회의 의결을 거친다. ④ 장애인배구협회의 승인을 받아야하는 규약(정관) 및 규정에 대해서는 장애인배구협회와의 사전협의를 거쳐야 한다. ⑤ 연맹체의 규약(정관) 및 제규정(사무국 규정 포함)은 반드시 홈페이지 등을 통해 공개하여야 한다. 제47조(규약의 해석) ① 이 규정에 의거하여 제정된 각 연맹체의 규약(또는 정관으로 이하 같다)은 장애인배구협회가 승인한 날로부터 유효하며, 수정이 있을 때마다 장애인배구협회의 승인을 받아야 한다. 보고된 규약에 대하여 개ㆍ수정 및 삽입이 필요한 때에는 장애인배구협회의 결정한 바에 따라 시행하여야 한다. ② 이 규정은 각 연맹체 규약에 우선하며, 당해 단체규약을 이 규정에 맞게 변경하지 아니하여 이 규정과 당해 단체규약이 상이할 경우에는 반드시 이 규정에 따라야 한다. 장애인배구협회 정관에 규정한 조항을 준용할 수 없는 것으로서 이 규정에 규정되지 아니한 사항 및 각 연맹체 규약의 해석상 불분명한 사항은 장애인배구협회가 정한 바에 따른다. 제48조(해산) ① 연맹체는 재적대의원 4분의 3 이상의 해산결의 또는 주무부처장관의 설립인가 취소(법인에 한한다)로 해산한다. ② 연맹체가 해산하였을 때에는 잔여재산을 장애인배구협회(법인은 문화체육관광부장관)의 승인을 얻어 국가 또는 당해 연맹체의 목적과 유사한 공공단체에 기부한다. 제49조(관련당사자간의 분쟁해결) 연맹체는 장애인배구협회와 시ㆍ도장애인배구협회를 포함하여 당해 단체의 지부 및 소관단체 구성원간의 분쟁에 대하여 연맹체 규정 제30조에 의거 설치한 법제상벌위원회에 중재를 요청할 수 있음을 당해 단체 정관(또는 규정)에 명문화해야 한다. 제50조(제한사항) 연맹체가 장애인배구협회의 정관 및 이 규정에서 규정한 사항이나 장애인배구협회가 지시한 사항을 이행하지 않을 경우 장애인배구협회는 정관 제11조에서 정한 권리사항을 제한(정연맹체의 경우, 대의원 자격의 정지를 포함한다)하거나 장애인배구협회의 지원금 또는 지원 사항을 중단, 회수, 감액 등의 불이익 처분을 할 수 있다. 제51조(경영공시) ① 연맹체는 경영의 투명성을 위하여 경영에 관한 중요 정보를 일반국민이 알 수 있도록 공시하여야 한다. ② 제1항의 공시항목은 이사회 및 총회 회의록, 예산집행내역, 외부평가, 감사결과와 그 외 연맹체의 장이 정한 것으로 한다. 부 칙(2022.2.22) 제1조(시행일) 이 규정은 대한장애인배구협회의 아사회 승인을 받은 날로부터 시행한다. 제2조(사무소의 예외) 제2조의 규정에 불구하고 부득이한 사정으로 인하여 사무소가 서울특별시에 있지 아니하는 연맹체의 경우 장애인배구협회와의 협의한 기한 내에 다른 지자체에 사무소를 개설하는 것으로 하여 연맹체로 인정할 수 있다. 제3조(경과조치) ① 제1조 ②의 규정에도 불구하고 이 규정 제정 이전에 기 명칭된 명칭은 이 규정의 시행일로부터 3개월 안에 이사회의 승인을 얻어 개명하여야 한다. ② 2022년 2월 21일 이후에 임기가 시작되는 창립 연맹체는 이 규정을 적용하여 회장 및 임원의 임기를 2025년 1월 정기총회까지로 한다.제 정 2022. 04. 22.
개 정 2024. 09. 27.
제 1장 / 경기장 제 1조 (경기장 확보) 대회는 대한장애인배구협회(이하 KoPVA 라고 한다)가 승인한 경기장에서 개최한다. 협회는 경기규칙에 규정된 배구코트가 설치된 실내 경기장을 확보하고, 최적의 상태에서 경기를 실시할 수 있도록 한다. 만약 확보된 주 경기장에서 개최 불가 시 제3의 경기장에서 개최할 수 있다. (경우에 따라 장소는 변경될 수 있음)<개정‘24.9.27> 제 2조 (경기장 설비) ➀ 경기장에는 다음 각호의 설비를 갖추어야 한다. (경기규칙서 배치도면 참조) 1. 스코어보드(전자식) 및 비상용 스코어보드 (세트별 상세점수 표기 가능) 2. 네트 및 비상용 네트 세트(안테나 포함) 3. 경기용 배구 지주 및 비상용 배구 지주 4. 감독관석(경기위원/심판위원/전문위원 좌석, 마이크, 테이블보 포함) 5. 감독석 및 팀 벤치(9개) 6. 경기 기록석 및 개인 기록석(테이블 보 포함) 7. 의무석(테이블 보 포함) 8. 기자석(투명 아크릴 보호대 설치) 및 중계방송석(어떠한 광고물도 부착금지) 9. 태극기, 대회기, 10. 장내 방송 설비 11. 조명(평균 1000 룩스 이상) 12. 경기방송 카메라석(경기기록석 좌우측) 13. 비디오 촬영구역 14. 리베로 조끼(남녀 각2벌) ➁ 경기장 내부에 다음의 부대시설을 갖추어야 한다. 1. 대기실(홈팀, 방문팀, 심판[남,여]) : 잠금장치 필수 2. 소방시설(소화기 등) 제 3조 (팀 벤치) 벤치는 경기기록석 양측에 설치하며 10명이 착석 가능하여야 한다. 벤치 착석 인원은 최대 5명(감독 포함)이고 감독이 결정한다, 그러나 경기 기록지에 기재되고 O-2(bis)에 등록되어야 한다. 제 4조 (감독관석) 경기 및 심판 감독관석은 경기 기록석 뒤 단상 위에 설치한다. 제 5조 (경기장 내 방송 및 이벤트) ➀ 경기 운영책임자는 장내 아나운서 1명을 두어 경기 의전 진행 및 경기 진행에 관한 최소 한의 정보를 관중에게 제공하도록 한다. ➁ 장내 아나운서는 경기 시작 전 또는 경기 중에 공식 대회 명칭을 사용하여야 한다. ➂ 장내 아나운서는 안전사고 발생에 대비하여 비상시 대처 요령(비상구 위치, 대처 방법 등)을 경기 개시 전에 장내 방송으로 안내하여야 한다. 제 6조 (의무) 경기 운영책임자는 다음 각호에 해당하는 의무 조치를 취하여 경기 개시 1시간 전까지 경기 감독관에게 보고하여야 한다. 의무진은 경기가 종료될 때까지 지정된 좌석에서 대기해야 한다. 1. 경기장 내에 응급처치사 또는 간호사 각 1인 배치 2. 경기 중 선수 부상에 대비하여 현장에 응급 후송 차량 대기 및 지역 응급조치병원을 지정 3. 응급상황에 대비하여 경기장 내에 자동 제세동기, 산소 호흡기 및 들 것 비치 제 7조 (개인 기록석) ➀ 경기기록 전산 통계를 위한 개인 기록석은 체육관 사정에 따라 위치한다. ➁ 개인기록을 통합 관리하는 전산관리원의 좌석은 개인 기록석과 함께 위치하며, 전산관리원과 개인 기록석에는 독립된 인터넷 라인, 전원, 프린터 등을 확보해주어야 한다. ➂ 개인 기록석 전면에는 기록원 및 전산장비 보호를 위해 투명아크릴 보호대를 설치해야 한다. 제 8조 (경기장 검사) ➀ 각 경기장은 공식 경기 개막 2일 전까지 경기 운영위원장에게 검사를 요청하여 승인을 받아야 한다. ➁ 경기 운영위원장은 검사 결과 미비한 사항에 대한 적절한 조치를 요구할 수 있으며 시설팀은 이를 즉각 시정하여야 한다. 제 2장 / 경기 제 9조 (개막전) 공식 개막전은 각 대회의 특성에 따라 진행된다. 제 10조 (개막전 식순) ① 개막식의 식순은 원칙적으로 다음과 같다. 1. 선수 입장 2. 국민의례(애국가 1절 포함) 3. 개회사 4. 축사 5. 개회선언 6. 선수 퇴장 ② 경기별 경기 의전은 협회 경기규칙에 따른다. 제 11조 (대회 명칭 · 경기의 주최 및 주관 및 협찬) 대회의 명칭은 “2022 000 전국장애인 배구대회”라 한다. 대한장애인체육회가 주최하고 대한장애인배구협회가 주관하며 문화체육관광부, 국민체육진흥공단이 후원하고 미카사. 동아오츠카. 아이바나리. 리즈랩. 바이알. 이뮨. 닥터에스리. 널 셋. 데지엄. 드림에이블이 협찬한다. <개정‘24.9.27> 제 12조 (경기규칙 · 참가팀, 임원, 지도자, 선수의 자격) 대회는 대한장애인배구협회의 경기규칙을 적용하되 특별한 사항은 KoPVA가 결정한다. ① 대회의 참가 자격은 매년도 협회에 등록한 팀(임원, 지도자, 선수)으로 참가신청서를 제출한 팀에 한한다.<개정‘24.9.27> ② 징계 중인 임원(지도자 포함)은 등록 신청은 물론 어떠한 형태로도 경기에 관여할 수 없다.<개정‘24.9.27> ③ 징계 중인 선수의 경우 징계 기간이 해제된 날부터 참가 신청을 할 수 있으며 경기 출전은 징계 해제 이후부터 할 수 있다. ④ 대회 중 임원변동이 있을 경우 필히 신규 등록을 하여야 한다. ⑤ 추가 참가 신청은 협회에 추가 등록을 필한 후, 공문으로 참가 신청 후 협회의 승인을 받아야 한다.<개정‘24.9.27> ➅ 경기 참여 인원은 한 팀당 14명까지 구성할 수 있으며, 그 외 선수는 경기에 참여할 수 없다.<개정‘24.9.27> ⑦ 참가신청서에 기재된 배번은 유효하고 출전선수의 배번은 대회종료 시까지 이를 변경할 수 없다. 제 13조 (사용구 및 경기용기구) ① 대회 사용구 및 경기용기구는 협회가 공식 인정하는 것으로 사용한다.<개정‘24.9.27> ② 협회 공식 사용구인 미키사로 한다.<개정‘24.9.27> ③ 코트는 선수들이 안전과 부상 방지를 위해 안전한 합성표면 바닥재가 설치되어야 하며, 부득이한 경우 목재바닥에서도 경기할 수 있다.<개정‘24.9.27> 제 14조 ( 순위 결정 방식) 순위는 아래와 같이 결정된다. ① 승패율.<개정‘24.9.27> ② 점수비율<개정‘24.9.27> ③ 승자승<개정‘24.9.27>| 구분 | 승리팀 | 패배팀 |
|---|---|---|
| 세트스코어 3:0 또는 3:1 | 3점 | 0점 |
| 세트스코어 3:2 | 2점 | 1점 |
제 정 2022. 04. 25.
제1조 (목적) 본 규정은 대한장애인배구협회(이하 “장애인배구협회”라 한다) 정관 [제7조(전국규모연맹체)] [제9조(가입)] [제10조(탈퇴)]에 의하고 종목별 및 장애유형별 전국규모 연맹체 운영 규정(이하 “연멩체운영규정”이라 한다)에 의한 장애인배구협회 가맹 및 탈퇴의 절차와 기준을 규정함을 목적으로 한다. 제2조 (정의) ① 본 규정에서 사용하는 용어의 정의는 다음과 같다. 1. "가맹"이라 함은 장애인배구협회 정관에서 정한 권리 및 의무사항을 이행할 것을 확약하여 장애인배구협회에 가입하는 것을 말한다. 2. "정가맹단체"는 가맹단체로서 권리 및 의무사항을 이행할 것에 동의하여 장애인배구협회 이사회를 거쳐 대의원총회 의결로써 가맹을 확정한 종목별 및 장애 유형별 전국규모 연맹체를 말한다. 3. "준가맹단체"라 함은 장애인배구협회 이사회 의결로써 준 가맹을 승인받아 장애인배구협회 정관에서 정한 권리와 의무사항을 제한적으로 적용받는 단체를 말한다. 4. "인정단체"라 함은 장애인배구협회 이사회 의결로써 당해 단체의 대표성만을 한시적으로 인정받을 뿐 장애인배구협회 정관에서 정한 권리 및 의무사항을 적용받지 않는 단체를 말한다. 5. "탈퇴"라 함은 장애인배구협회에 의해 가맹을 승인받은 가맹단체가 장애인배구협회 정관에서 정한 가맹 관계에서 이탈하는 것을 말한다. ➁ 종목별 연맹체라 함은 배구의 종목별 연맹체 중 장애인배구협회에 가맹한 단체를 말한다. ③ 장애 유형별 연맹체라 함은 장애 유형별 연맹체 중 장애인배구협회에 가맹한 단체를 말한다. 제3조 (가맹구분) ①가맹단체는 가맹 및 준가맹단체로 구분한다. ②장애인배구협회는 가맹시킬 필요성이 충분히 인정되나 제5조의 가맹요건이 충족되지 못한 경우 정관 제8조에서 정한 권리를 제한하여 준가맹단체로 승인할 수 있다. 다만, 명시된 승인조건을 준수해야 한다. ③장애인배구협회는 필요한 경우 당해 단체의 대표성만을 한시적으로 인정하되 장애인배구협회와의 권리·의무관계가 없는 인정단체를 승인할 수 있다. 다만, 명시된 승인조건을 준수해야 한다. ④장애인배구협회는 준가맹단체의 정 가맹에 대하여 준 가맹을 승인한 당해 연도 대의원총회에 부의하여 승인한다. 제4조 (가맹신청서류) 장애인배구협회에 가맹코자 하는 연맹체 및 장애 유형별 연맹체는 다음 서류를 구비하여 이를 상정할 대의원총회 3월 이전에 제출하여야 한다. 다만, 장애 유형별 체육단체의 경우 제5호, 제7호 및 제8호는 제외한다. 1. 가맹신청서(장애인배구협회 양식) 2. 단체 연혁 3. 임원명단(취임승낙서 및 이력서 첨부) 4. 정관 또는 단체규약 5. 경기개요 및 경기규칙 6. 장애유형별분과위원회 설치현황 7. 선수 또는 팀 등록현황 8. 사업실적 및 사업계획서 9. 수지결산서 및 수지예산서 10. 가맹을 결의한 대의원총회 회의록(법인인 경우 이사회 회의록) 11. 당해 단체의 국제 장애인체육기구의 참고자료 제5조 (가맹요건) ①장애인배구협회 가맹에는 다음의 요건을 구비하여야 한다. 1. 전국을 대표하는 당해 유일의 연맹체나 장애 유형별 연맹체일 것. 2. 전국을 통할하는 권위와 지도력이 인정되는 연맹체나 장애 유형별 연맹체일 것. 3. 국제패럴림픽위원회(IPC) 공인종목이거나 국제장애인체육기구가 인정 또는 승인을 받은 경기종목일 것. 그리고, 생활체육 종목 중 보급도가 높고 향후 발전가능성이 인정되는 종목일 것. 다만, 경기종목 및 체육단체의 특성에 따라 예외로 할 수 있다. 4. 당해 종목의 보급도와 경기력 발전성이 인정될 것. ②제1항의 요건이 충족될지라도 장애인배구협회가 가맹시킬 필요성을 충분히 인정하여야 한다. ③장애 유형별 체육단체의 경우 제1항 제3호는 적용하지 아니할 수 있다. 제6조 (심의절차) ① 가맹 및 탈퇴에 관한 심의 절차는 장애인배구협회 정관의 규정에 의한다. ②준 가맹 경기단체 및 인정단체의 지정은 장애인배구협회 이사회 의결로써 승인한다. 제7조 (제한사항) ①장애인배구협회 가맹 및 준가맹단체라 할지라도 장애인배구협회 정관에서 정한 의무사항 및 지시사항을 소홀히 하거나 게을리 할 경우 장애인배구협회 정관에서 정한 권리 사항을 제한할 수 있으며, 장애인배구협회가 지원하는 예산의 지원을 보류하거나 중단할 수 있다. ②제3조제2항의 규정에 의한 준가맹단체는 장애인배구협회 정관에서 정한 권리 사항 중 대의원 파견권이 없으며, 제한된 범위 내에서 장애인배구협회 지원금을 요청할 수 있다. 제8조 (탈퇴요건) 다음 각호의 1에 해당하는 가맹단체는 장애인배구협회에서 탈퇴케 한다. 1. 가맹연맹체가 해산하거나 탈퇴를 요청하였을 경우 2. 제5조의 가맹요건을 상실하여 가맹연맹체로서의 존속할 필요성이 인정되기 곤란한 경우 5. 장애인배구협회 위상을 심각하게 침해하거나 장애인 체육발전을 저해하는 경우 제9조 (탈퇴신청) 가맹연맹체가 제8조제1항에 의해 탈퇴코자 하는 경우는 다음 서류를 제출하여야 한다. 1. 탈퇴신청서 2. 탈퇴사유서 3. 탈퇴를 결의한 대의원총회 회의록(법인인 경우 이사회 회의록) 부 칙(‘22.04.25.) 제1조 (시행일) 이 규정은 이사회의 승인을 받은 날부터 시행한다.제 정 2022. 04. 25.
제1조(목적) 이 규정은 대한 장애인배구협회(이하 “장애인배구협회”라 한다)로 기부되는 기부금품의 접수절차 및 사용 방법과 후원업체 선정 등에 관한 필요 사항을 규정함으로써 장애인배구협회에 대한 기부 및 후원업체 후원을 통한 장애인배구협회의 활성화를 목적으로 한다. 제2조(정의) 이 규정에서 사용하는 용어의 정의는 다음과 같다. 1. [기부금품]이라 함은 반대급부 없이 취득하는 금전 또는 물품을 말한다. 2. [일반기부금품]이라 함은 기부 조건의 지정이 없는 기부금품을 말한다. 3. [지정기부금품]이라 함은 지원대상자 또는 사용용도를 지정한 기부금품을 말한다. 4. [후원업체]란 장애인배구협회의 활동이 원활하게 이루어질 수 있도록 여러 면에서 도움을 주는 업체를 말한다. 제3조(적용범위) 이 규정은 장애인배구협회에서 처리하는 기부금품 관리와 후원업체 관리 및 기부금 영수증 발급에 대하여 이를 적용한다. 제4조(다른 규정과의 관계) 장애인배구협회의 기부금품 및 후원업체 관리에 관하여는 관계 법령 등 다른 법규에서 특별히 정한 경우를 제외하고는 이 규정이 정하는 바에 따른다. 제5조(기부금품의 접수 및 보관) ① 기부자로부터 기부 신청을 받아 장애인배구협회에 접수를 요구하는 기부금품의 경우는 관련 부서의 장이 확인한 후 사무국장이 접수한다. ②지정 기부금품의 지정 취지가 「기부금품 모집 및 사용에 관한 법률」 및 「공직선거법」이나 장애인배구협회의 정관을 위반하는 경우 그 사실을 기부자에게 설명하고 「기부금품 모집 및 사용에 관한 법률」 및 「공직선거법」이나 장애인배구협회의 정관을 위반하지 아니하게 지정하도록 요구하거나 그 지정을 철회하도록 요구하여야 한다. 기부자가 이에 응하지 아니하는 경우에는 기부금품을 접수하지 아니하여야 한다. 제6조(기부신청) 장애인체육회에 기부하고자 하는 자는 다음 사항을 기재한 기부금품 신청서(별지 제1호 서식)를 제출하여야 한다. 1. 기부금품 또는 기부 재산의 표시 2. 기부자의 성명(법인명) 및 주소(소재지), 주민등록번호(사업자등록번호) 3. 지정 기부금품일 경우에는 기부 조건 제7 조(기부금품 영수증의 발급 및 장부비치) ①기부금품을 접수한 경우 접수자는 기부금품의 접수사실을 장부에 기재하고, 부서장의 승인을 받아 그 기부자에게 영수증을 교부하여야 하며, 기부금품 영수증은 발급한 날로부터 5년간 보관하여야 한다. 다만, 기부자가 성명을 밝히지 아니한 경우 등 기부자를 알 수 없는 경우에는 익명의 기부금품 영수증을 발급하여 장애인배구협회에 보관하여야 한다. ②장애인배구협회 및 시·도장애인배구협회, 가맹경기연맹체에 기부하는 지정금품에 대하여 기부금의 수입 및 지출내역을 작성 보관하고, 기부대상과 사용목적을 명확하게 하기 위하여 기부물품 관리대장 장부(별지 제4호 서식)를 비치하여 관리한다. 제8조(기부물품 가액 산정) ①금전이 아닌 물품 형태로 접수 받은 경우 당해 기부물품의 가액은 이를 접수한 때의 시가로 기부가액을 산정하며 시가가 장부금액보다 낮은 경우에는 장부금액에 의한다. ②시가는 공공기관이 제공하는 공신력 있는 물가정보 또는 기부자가 제시하는 매입증빙서류상의 가액에 의하여 산정하되, 해당 기부물품의 가격이 없거나 중고물품의 경우에는 동일하거나 유사한 물품의 최근 거래가액을 조사하여 가액을 산정하고 최근 거래가액도 알 수 없는 경우에는 기부자가 제공하는 원가자료에 의한다. 제 9 조(기부금품의 채납 결정 및 통지) ①대한장애인배구협회 회장(이하 “회장”이라 한다)은 후원협약에 따른 기부금품의 경우 기부 신청일로부터 2주일 이내에 기부금품 채납 여부를 결정하고 이를 즉각 기부자에게 통지하여야 한다. ②회장은 기부금품 채납 여부 결정시 해당 기부금품의 후원 조건이 장애인체육회 정관의 고유목적사업에 합당한지 여부와 이에 관련된 제반사항을 검토하여 기부금품의 채납여부를 결정한다. 제10조(기부금품의 회계처리) 기부금품은 장애인체육회 자체회계의 수입 및 지출로 처리한다. 제11조(기부금품의 사용) 회장은 일반기부금품을 기부 목적과 대상을 지정하여 기부금품을 사용할 수 있다. 단, 관계 법령 및 정관의 고유목적사업, 기부자의 기부취지등 위반여부가 불분명한 경우에는 감사의 의견을 고려한 후 지정여부를 결정하여야 한다. 제12조(지정기부금품에 의한 사업의 조정 지원) ①회장은 지정기부금품에 의한 사업을 지원함에 있어 지원효과를 고려하여 그 금액 또는 사업내용을 조정할 수 있다. ②회장은 지정기부자가 제1항에 의한 금품 또는 사업 내용의 조정을 동의할 경우에 한하여 지정기부금품을 채납한다. ③접수된 지정기부금품 중 해당 사업 종료 후 잔액이 발생하였을 경우에는 기부자의 사전 동의를 거쳐 일반기부금품으로 채납할 수 있다. 단, 지정기부자가 당초 기부 신청시 지정기부금품의 잔액 처리 방법을 지정한 경우에는 그러하지 아니한다. 제13조(지정기부금품의 교부신청 및 사업의 수행상황보고 등) 지정기부금품의 교부신청 및 교부, 지정기부 대상사업의 수행상황보고 등은 장애인배구협회의 회계규정을 준용하여 처리한다. 부 칙(’22. 04. 25.) 제1조(시행일) 이 규정은 이사회의 승인을 받은 날로부터 시행한다.제 정 2022. 04. 25.
제1장 총 칙 제1조(목적) 이 규정은 대한장애인배구협회(이하 “협회”라 한다)의 공인제도 운영에 관하여 필요한 사항을 정한다. 제2조(공인제도 운영) ① 협회는 국제장애인배구연맹(WPV)의 경기규칙에 의거하고 “협회”의 규격품 사용을 제도화하여 안전한 경기 운영 및 경기력 향상을 도모하기 위한 공인제도를 운영한다. ② 협회는 공인과 관련하여 국제배구연맹(FIVB)의 공인 규정을 벗어난 공인 요건을 신설하거나 특정 업체의 제품 사용을 강요하여서는 아니 된다. 제3조(규정 제정) 협회는 이 규정에 따라 해당 종목의 경기 시설․장비와 관련된 공인을 위해 필요한 사항을 전문위원회의 의결을 거쳐 정하도록 한다. 제2장 공인 심의 제4조(공인대상) 공인은 경기시설(부대시설 포함) 및 경기용품을 대상으로 하며 업체를 대상으로 하지 아니한다. 제5조(심의기준) ① 협회는 공인 심의를 위해 경기 적합성, 품질, 안전성 등에 대한 기준을 제시하여야 하며 해당 기준을 충족하는 공인대상에 대해서는 공인대상 수의 제한 등 별도의 추가 조건을 두지 않고 공인하여야 한다. ② 공인 관련 기준은 국제장애인배구연맹(WPV) 규정보다 강화된 기준을 적용해서는 아니 되며, 국제장애인배구연맹(WPV) 기준과 상이한 기준을 추가하고자 하는 경우에는 해당 내용 및 사유를 이 규정에 명시하여야 한다. 제6조(심의 방법) 심의 방법은 서류평가, 설비․용품 검사, 현장 테스트 평가 등 객관적으로 하여야 한다. 제7조(시설[바닥재] 공인) ① 위원회가 경기 시설에 대해 공인을 하고자 할 경우 다음 각호를 포함한 심의기준을 면밀히 검토한 후 공인을 승인하여야 한다. 1. 시설[바닥재]의 국제규격 부합 여부 2. 시공업체의 유사 경기시설 시공 실적 (사업자등록 유무, 사업 실적 등) 3. 시설의 하자보수 보증 기간 ② 시설 공인을 받고자 하는 단체는 경기 시설의 설계단계부터 협회와 협의하여야 한다. 제8조(사용구 공인) ① 위원회가 사용구에 대해 공인하고자 할 경우 다음 각 호를 포함한 심의기준을 면밀히 검토한 후 공인을 승인하여야 한다. 1. 사용구의 국제장애인배구연맹(WPV) 기준 부합 여부 2. 사용구 생산 및 유통업체가 해당 공인 사용구를 안정적으로 공급할 수 있는지 여부 (사업자등록 유무, 사업 실적 등) ② 국제대회, 국내종합대회 및 전국규모대회를 주관하는 단체가 대회에서 사용하는 경기용품은 대회 결정 전 협회와 협의하여야 한다. 제9조(경기 용품 공인) ① 위원회가 경기 용품에 대해 공인하고자 할 경우 다음 각 호를 포함한 심의기준을 면밀히 검토한 후 공인을 승인하여야 한다. 1. 경기용품의 국제장애인배구연맹(WPV) 기준 부합 여부 2. 경기용품 생산 및 유통업체가 해당 공인 경기 용품을 안정적으로 공급할 수 있는지 여부 (사업자등록 유무, 등) ② 국제대회, 국내종합대회 및 전국규모대회를 주관하는 단체가 대회에서 사용하는 경기용품은 대회 결정 전 협회와 협의하여야 한다. 제10조(경기 용기구 공인) ① 위원회가 경기 용기구에 대해 공인하고자 할 경우 다음 각 호를 포함한 심의기준을 면밀히 검토한 후 공인을 승인하여야 한다. 1. 경기용 기구의 국제장애인배구연맹(WPV) 기준 부합 여부 2. 경기용 기구 생산업체가 해당 공인용 기구를 안정적으로 공급할 수 있는지 여부 (사업자등록 유무, 사업 실적 등) ② 국제대회, 국내종합대회 및 전국규모대회를 주관하는 단체가 대회에서 사용하는 경기용기구는 대회 결정 전 협회와 협의하여야 한다. 제11조(광고 대행 공인) ① 위원회가 경기 광고 대행에 대해 공인하고자 할 경우 다음 각 호를 포함한 심의기준을 면밀히 검토한 후 공인을 승인하여야 한다. 1. 광고 대행업체가 해당 광고 대행을 안정적으로 공급할 수 있는지 여부 (사업자등록 유무,등) 제12조(공인료) ① 협회는 시설[바닥재] 공인/ 사용구 공인/ 경기 용품 공인/ 경기 용기구 공인/ 광고 대행 공인에 대한 공인료 기준표를 별지 제1호서식에 따라 작성한 후 별표로서 명시하여야 한다. ② 협회는 공인료 수입에 대해서는 예산계정을 별도로 구분하여 회계처리를 하여야 하며 그 집행에 대해 투명하게 관리하여야 한다. 제13조(공인기한) ① 공인기한은 4년으로 하되 종목 특성에 따라 달리 정할 수 있다. ② 공인 종목의 해제로 인한 새로운 공인 기간은 잔여 공인 기간으로 하되 협회 사정에 따라 달리 정 할 수 있다. 제3장 사후 관리 제14조(결과 공개) 협회는 공인의 결과에 대해 이사회 및 대한장애인체육회에 보고하여야 한다, 1. 공인 대상 시설 및 용품 목록 2. 공인 기간 3. 공인 시설 및 용품 생산업체의 상호, 주사무소 주소 4. 공인료 제15조(시정 요구) ① 협회는 공인 후에도 해당 시설․용품이 관련 규정 및 규격에 위배되거나 그 품질이 저하되었다고 판단 될 경우 시정을 요구할 수 있다. ② 공인 후 시설 및 용품의 하자로 인해 경기운영에 막대한 차질을 초래하거나 문제점 보완에 대한 협회의 지시를 불이행한 경우에는 공인기간 중이라도 협회는 공인 대상에 대해 공인의 정지 또는 취소 등의 제재 조치를 할 수 있다. 부 칙(2022.04.25.) 제1조(시행일) 이 규정은 협회 이사회의(22. 04. 25.) 의결을 거친 날부터 시행한다. 제2조(경과조치) 이 규정 시행일 이전에 공인을 받아 계약 기간중에 있는 업체 및 품목에 대해서는 이 규정에 따라 공인을 받은 것으로 본다.